
Giữa lòng Sài Gòn nhộn nhịp, Bosgaurus Coffee Roasters không chỉ là một quán cà phê, mà là nơi nghệ thuật pha chế được nâng tầm thành một màn trình diễn đầy cảm hứng. Tại đây, những barista trở thành nghệ sĩ trong một không gian kiến trúc kết hợp hài hòa giữa tinh thần lịch sử và hơi thở hiện đại.
Thiết kế của Bosgaurus Coffee Roasters do NU Architecture & Design thực hiện, lấy cảm hứng từ Art Deco của Nhà hát Lớn Sài Gòn, kết hợp hài hòa giữa nét sang trọng cổ điển và phong cách tối giản hiện đại. Những đường nét mạnh mẽ và hình khối đặc trưng của Art Deco được tiết chế để phù hợp với tinh thần tối giản, tạo nên một tổng thể vừa thanh lịch vừa hiện đại. Mặt tiền giữ nguyên nét cổ điển với cột trụ, cửa sổ vòm và nước sơn trắng, tạo ấn tượng ngay từ cái nhìn đầu tiên.


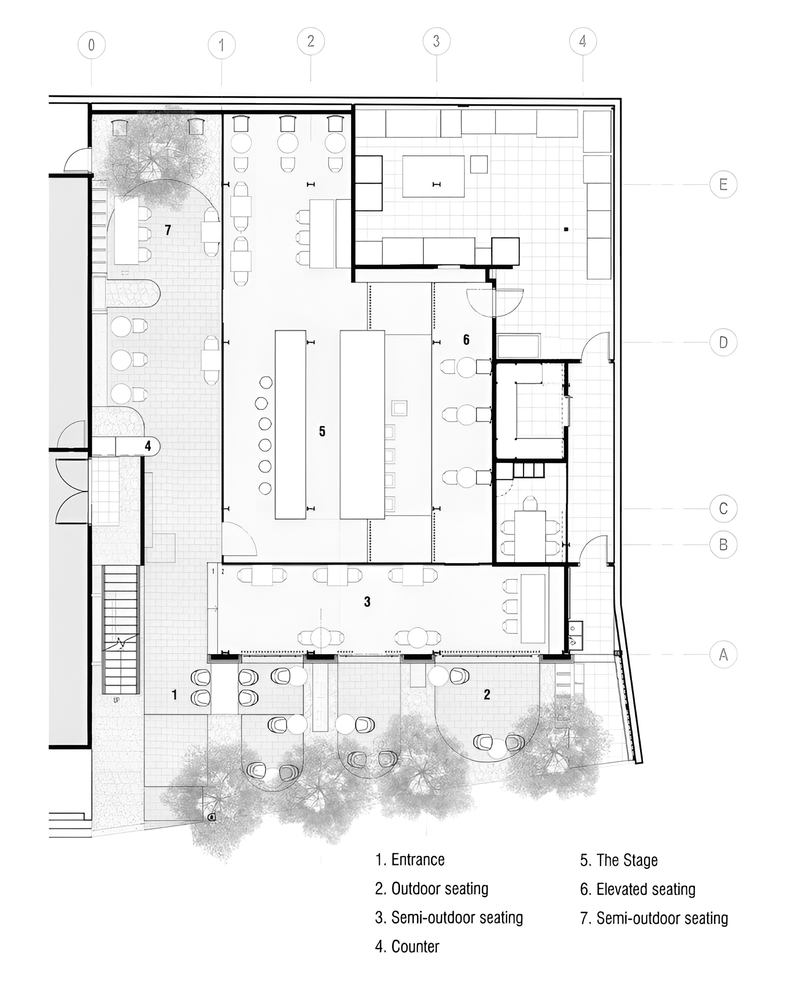
Không gian bên trong được thiết kế như một sân khấu trình diễn, nơi kiến trúc và trải nghiệm hòa làm một. Điểm nhấn ấn tượng nhất là “fly bar” – quầy bar cantilever đúc nguyên khối từ bê tông, chỉ được nâng đỡ bởi một trụ duy nhất, trong khi đầu còn lại hoàn toàn lơ lửng. Sự sắp đặt táo bạo này không chỉ tạo hiệu ứng thị giác mạnh mẽ mà còn cân bằng giữa kỹ thuật và thẩm mỹ, khiến quầy bar vừa vững chắc vừa thanh thoát. Kết hợp cùng đồ nội thất tùy chỉnh từ thép không gỉ, toàn bộ không gian Bosgaurus mang đến cảm giác tinh giản nhưng vẫn tràn đầy năng lượng.


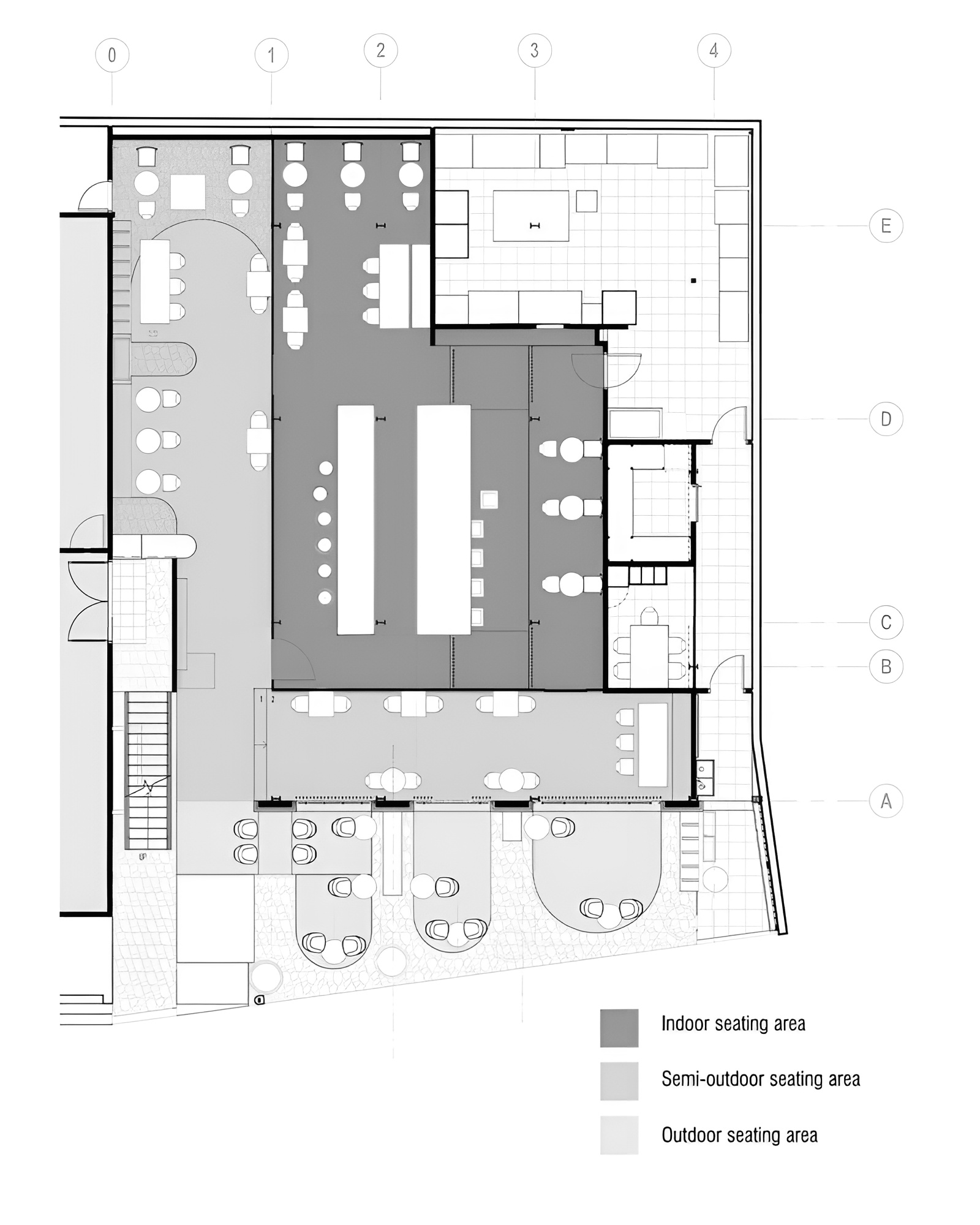
Không chỉ tập trung vào sự minh bạch trong trải nghiệm, Bosgaurus còn chú trọng tính bền vững trong từng chi tiết thiết kế. Toàn bộ quán sử dụng kính không khung, tạo sự liền mạch thị giác giữa ba không gian: trong nhà, khu vực bán ngoài trời và không gian mở hoàn toàn. Khách hàng, dù ngồi ở bất kỳ vị trí nào, đều có thể chiêm ngưỡng quá trình pha chế, giúp cảm nhận sự gắn kết giữa người barista và thực khách.


Với tinh thần bền vững là nguyên tắc cốt lõi, NU đã lựa chọn những vật liệu thân thiện với môi trường mà vẫn đảm bảo tính thẩm mỹ. Quầy bar và sàn nhà được làm từ sàn sinh học gốc nước của Nora Design Italiano, giúp giảm tác động môi trường trong khi vẫn tạo hiệu ứng bóng mờ sang trọng như bề mặt da thuộc. Khoảng hở trên mái được thiết kế bên cạnh giếng trời như một ‘ống khói năng lượng mặt trời’, giúp thông gió tự nhiên, giảm tối đa sự phụ thuộc vào điều hòa và ánh sáng nhân tạo.







Không chỉ tạo dấu ấn bằng kiến trúc, Bosgaurus còn mang đến trải nghiệm thị giác ấn tượng nhờ cách sử dụng ánh sáng như một phương tiện truyền tải cảm xúc. Ánh sáng tại Bosgaurus không đơn thuần để chiếu sáng, mà được điều chỉnh theo từng thời điểm trong ngày để mang đến cảm giác phù hợp với không gian. Ban ngày, ánh sáng trắng 4000K mang lại sự tỉnh táo, lý tưởng cho làm việc và trò chuyện. Khi đêm xuống, ánh sáng ấm áp tôn lên vẻ huyền ảo của ‘fly bar’ — trái tim của không gian, nơi mọi ánh nhìn đều hướng về. Hệ thống đèn tường khuếch tán càng làm nổi bật không gian sang trọng, gần gũi như một lounge bar đẳng cấp.







| Thông tin dự án: Tên công trình: Bosgaurus Coffee Roasters – The Opera House Địa chỉ: Nguyễn Siêu, Bến Nghé, Quận 1, TP Hồ Chí Minh Đơn vị thiết kế: NU Architecture & Design Diện tích xây dựng (m2): 300m2 Năm hoàn thành: 2023 Nhiếp ảnh: Hiroyuki Oki Giải thưởng / Đề cử: – Được đề cử “Công trình của năm” 2024 bởi ArchDaily – Được đề cử “Nội thất của năm 2023” bởi Ashui Awards – Thiết kế F&B xuất sắc nhất bởi VMark – Xuất bản: Coffee Break Magazine, Loft Production, Tây Ban Nha (Ấn bản in) |

