Ad imageAd image
Kiến trúc

Trung tâm văn hóa Red Stone Formation: Triết lý của sự trở về

Giữa “thị trấn mộng mơ” Đông Phong Vận của tỉnh Vân Nam, Red Stone Formation Cultural Center không đơn thuần…

Biểu hiện kiến trúc cổ điển phương Tây trên mặt đứng nhà cổ ở Sa Đéc, tỉnh Đồng Tháp

1. Giới thiệu Vào cuối thế kỷ XIX, dưới tác động của bối cảnh thuộc địa, kiến trúc cổ điển…

Thư viện Yellamundie: “Người kể chuyện” của miền tây nam Sydney

Dòng chảy Georges trong “hình hài tri thức” Thiết kế của thư viện Yellamundie lấy cảm hứng từ dòng sông…

Nội ngoại thất

Ngôi nhà Relax Park Verholy / thiết kế: Yod Design Lab

Được xây dựng giữa một rừng thông ở khu vực Poltava, Ukraine, nhà khách Relax Park Verholy đã được hoàn…

Không gian art

Adelaïde de Perlinghi là người sáng lập www.arte-vox.com, chuyên bán buôn tranh nghệ thuật từ mười năm nay ở Pháp,…

Nội thất giá rẻ – giải pháp tiết kiệm chi phí thời hậu Covid-19

Trong thời buổi nền kinh tế khó khăn, dịch bệnh hoành hành khiến nhiều người mất việc, thì mua sắm…

Quy hoạch đô thị

[RMIT] Đô thị Việt Nam năm 2050: Thông minh, bền vững và đáng sống

Theo phân tích của Đại học RMIT Việt Nam (RMIT), Việt Nam đã đạt nhiều tiến bộ trong đặt nền…

Phát triển hệ thống hạ tầng giao thông đồng bộ, tạo sức bật cho tăng trưởng kinh tế

Hình thành các hành lang trục dọc quốc gia Bắc - Nam với đủ 5 phương thức vận tải Nghị…

Hoàn thiện thể chế về quy hoạch đô thị và nông thôn phù hợp với mô hình chính quyền địa phương mới

Trong tiến trình đổi mới, hoàn thiện thể chế và tổ chức bộ máy nhà nước, việc thực hiện sáp…

Bất động sản

TOD – “cú hích” cho thị trường bất động sản Hà Nội

Giải pháp cho bài toán giao thông và nhà ở Transit Oriented Development – phát triển dựa trên hướng giao…

Thị trường bất động sản 2026: Giai đoạn “chuyển nhịp” hướng tới phục hồi bền vững

Sau giai đoạn trầm lắng kéo dài, thị trường bất động sản Việt Nam đang bước vào thời điểm then…

Lực đẩy nào tái định hình bất động sản công nghiệp Việt Nam năm 2026?

Thương mại điện tử thúc đẩy nhu cầu kho vận hiện đại Theo số liệu báo cáo của Savills Việt…

Năng lượng / Môi trường

Trung Quốc: Tăng tốc chuyển đổi xanh, mục tiêu giảm 17% lượng phát thải CO2

Trung Quốc đang bước vào giai đoạn tăng tốc chuyển đổi xanh, với mục tiêu giảm 17% cường độ phát…

Quyền phát thải của các công trình xanh, công trình ZEB tại Việt Nam

1. Đặt vấn đề Thị trường carbon muốn vận hành và phát triển thì ngoài cơ chế vận hành thị…

Việt Nam lọt vào Top 10 thị trường công trình xanh đạt chứng nhận LEED toàn cầu

Việt Nam ghi nhận sự gia tăng ngày càng nhanh của công trình xanh Theo số liệu từ USGBC, trong…

- Advertisment -
Ad imageAd image
Công nghệ mới

Israel phát triển vật liệu xây dựng sinh học hấp thụ CO₂, thay thế xi măng

Ngành Xây dựng toàn cầu đang chịu áp lực lớn về phát thải carbon, các giải pháp thay thế xi…

Tái chế thủy tinh phế thải sản xuất gạch xây dựng bền vững

Từ bột thủy tinh đến gạch xây dựng  Không như tưởng tượng, thủy tinh vốn dĩ không dễ tái chế,…

Pháp thử nghiệm cao tốc sạc điện không dây đầu tiên trên thế giới

Bước tiến lớn Tại Pháp, hiện có gần 1 triệu xe chạy hoàn toàn bằng điện, tăng mạnh so với…

Giải pháp

Tiềm năng tiết kiệm năng lượng của lớp vỏ bao che tòa nhà văn phòng tại 3 thành phố có điều kiện khí hậu khác nhau ở Việt Nam

1. Giới thiệu  Các tòa nhà văn phòng là một trong những đối tượng có mức tiêu thụ năng lượng…

Phát triển công trình hầm kỹ thuật đa tiện ích tại các đô thị ở Việt Nam

1. Giới thiệu Trên thế giới, việc khai thác không gian ngầm đã trở thành xu hướng tất yếu trong…

Mô hình Nhà lắp ghép nổi của CTA | Creative Architects và Nhà Xanh

Bối cảnh: Ý tưởng: Dự án được triển khai theo concept "Kiến Trúc Thích Ứng Theo Mùa" mang lại tính…

Xu hướng

Công nghệ xanh sẽ mang đến điều gì cho Việt Nam?

Những thành quả mà công nghệ xanh sẽ mang đến cho Việt Nam? Có thể tóm tắt qua hai điểm…

Công trình hiệu quả tài nguyên – Cơ hội lớn cho Kiến trúc sư và Chủ đầu tư Việt Nam

Công trình hiệu quả tài nguyên là công trình trong quá trình thiết kế, thi công và khai thác sử…

The Line – Thành phố trên đường thẳng dài 170km giữa sa mạc

Saudi Arabia có tham vọng táo bạo khi muốn xây một thành phố tên The Line (đường thẳng) dài 170km…

Ứng dụng

Ngành Xây dựng triển khai, ứng dụng các công nghệ tiên tiến như thế nào?

Ứng dụng trong xây dựng công trình và phát triển kết cấu hạ tầng giao thông Đây là một trong…

Xây dựng cơ sở dữ liệu cho quản lý và phát triển đô thị hiện đại

Xây dựng nền tảng quản lý hiện đại  Nghị quyết số 214/NQ-CP ngày 23/7/2025 đã đề ra mục tiêu trọng tâm…

Ứng dụng AI trong tòa nhà thông minh và hạ tầng năng lượng

Hội nghị Đổi mới Sáng tạo Innovation Day Hà Nội 2025 chủ đề "Hạ tầng số sẵn sàng cho AI…

Ad imageAd image

Phát triển Ninh Bình thành cực tăng trưởng quan trọng phía Nam vùng Đồng bằng sông Hồng

Cực tăng trưởng phía Nam của Đồng bằng sông Hồng Theo điều chỉnh quy hoạch tỉnh Ninh Bình thời kỳ…

Báo Xây dựng

Từ phủ đường xưa đến không gian sáng tạo nay

Trong cấu trúc đô thị di sản của Huế, Cơ Mật Viện (số 33 Tống Duy Tân) không chỉ là…

KTSG Online

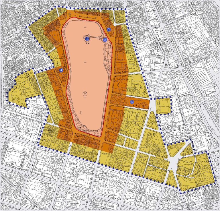
Bảo tồn, tái thiết khu phố cổ Hà Nội, phố cũ và hồ Gươm

Trong cấu trúc phát triển đô thị Hà Nội, khu vực phố cổ, hồ Gươm và khu phố cũ không…

Liu Thai Ker, người giúp Singapore không còn khu ổ chuột

Thành công ngoài mong đợi Ngày nay, Singapore là đất nước thịnh vượng bậc nhất Đông Nam Á. Nhưng vào…

Ashui.com

Cần đẩy mạnh phát triển sân chơi công cộng và cải tạo không gian sinh thái trong đô thị

Đánh thức các khoảng trống tiềm ẩn trong đô thị Thưa bà, tính đến thời điểm hiện tại, TPG đã…

Báo Xây dựng

Quản lý cấp nước sạch: Bài toán tại đô thị mới và ven đô

Nghệ An: Vướng mắc từ cơ chế đến thực thi Thực tế tại Nghệ An, việc cung cấp nước cho…

Báo Xây dựng
Ad imageAd image
Ad imageAd image