
Tọa lạc tại Hà Nội – một trong những thủ đô lâu đời nhất thế giới với lịch sử hình thành và phát triển hơn 1000 năm, nơi lưu giữ những thăng trầm lịch sử và bề dày văn hóa của người Việt. Cách đây hơn 800 năm khi nơi đây còn là kinh thành Thăng Long trù phú, bên bờ Hồ Tây, sau làn khói mỏng của nồi luộc kén, giữa những nong tằm vàng óng và tiếng thoi dệt lách cách là hình ảnh nàng công chúa Từ Hoa – người lập ra trại Tằm Tang, đặt nền móng cho sự hồi sinh và phát triển của nghề dệt gấm thêu hoa, một dấu ấn rực rỡ trong thời kỳ phồn thịnh của văn hóa Đại Việt.

Từ huyền tích ấy, Dusit Le Palais Từ Hoa được xây dựng như chính cung điện mà vua cha đã xây cho công chúa, khi nàng rời Hoàng thành để giúp đỡ người dân vùng Dâm Đàm (nay là Hồ Tây). Thiết kế được xây dựng dựa trên tưởng tượng về một “Chuyến viếng thăm vượt thời gian tới Cung điện Từ Hoa” – nơi hơi thở hiện đại hòa quyện cùng dư âm của một thuở vàng son. Chất liệu của thiết kế được hình thành từ 3 nguồn cảm hứng chính:
- Đặc trưng kiến trúc thời Lý – Triều đại mở đầu thời kỳ hoàng kim của văn hóa Đại Việt.
- Tôn vinh các nghề thủ công truyền thống, đặc biệt là nghề ươm tơ dệt lụa.
- Những nét văn hóa Việt dung dị, mộc mạc nhưng sâu sắc và bền bỉ qua thời gian.


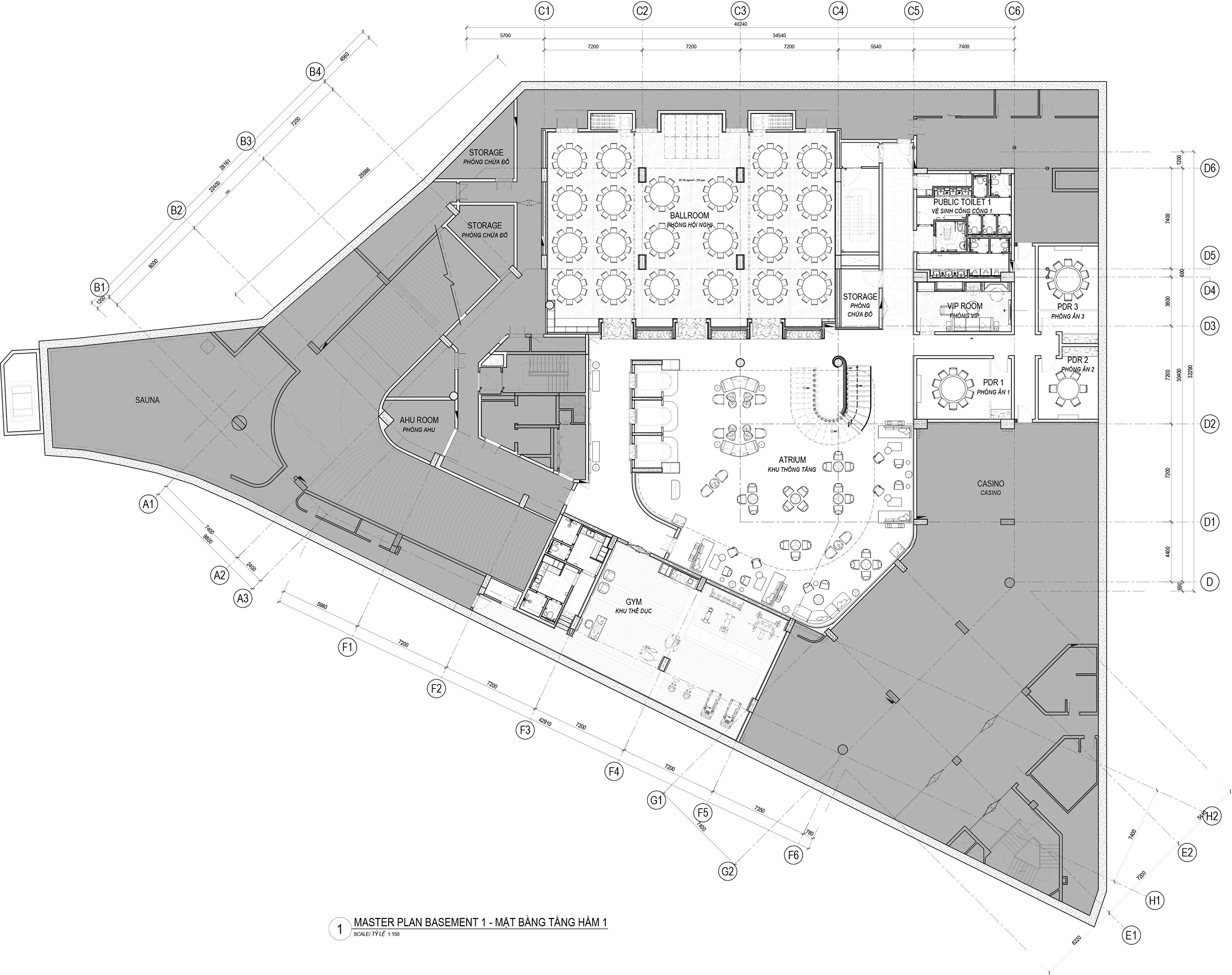
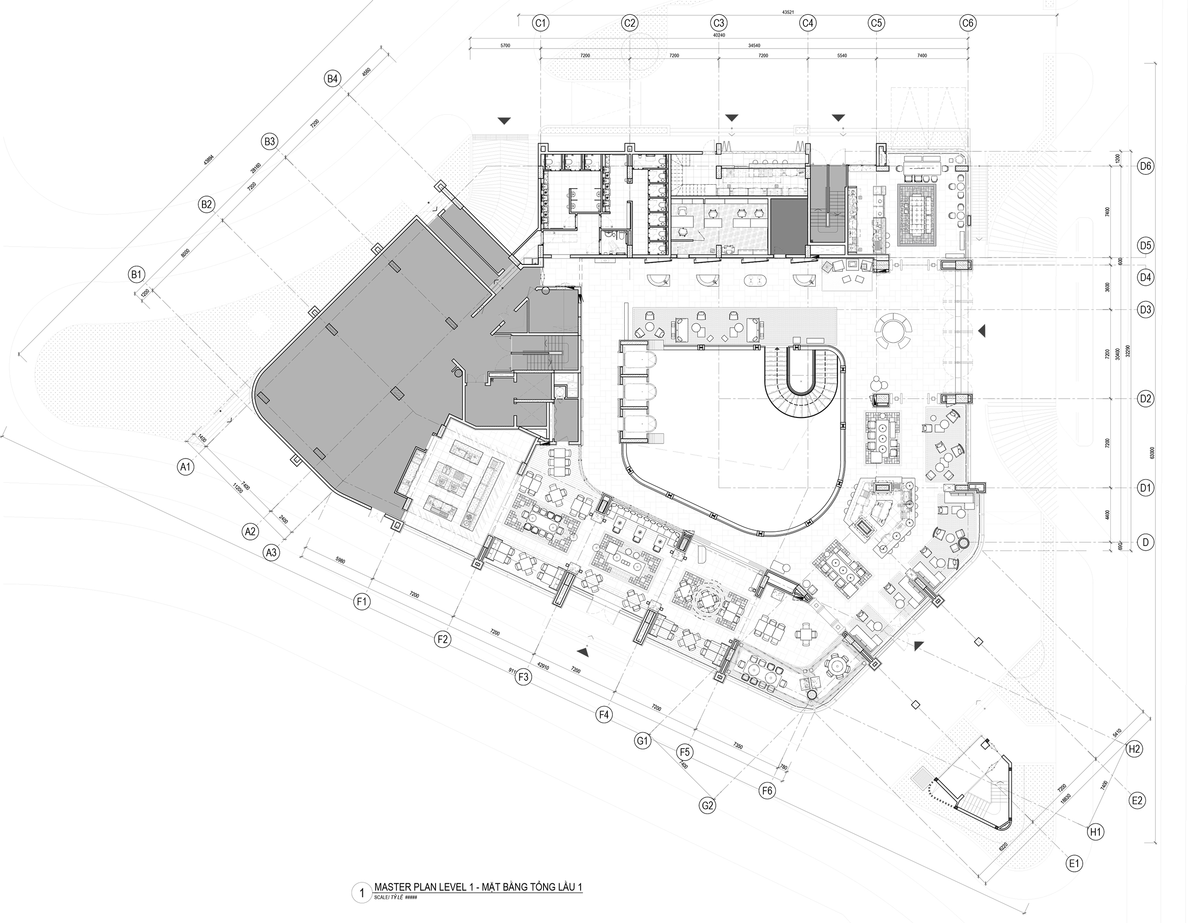
Khoảng thông tầng ở vị trí trung tâm mở ra một trục không gian khoáng đạt, nơi các khu vực chức năng được sắp đặt xung quanh như những mảnh ghép hài hòa, tạo nên ấn tượng về sự rộng mở và tráng lệ. Tuy nhiên, chính sự kết nối ấy cũng mang đến thách thức: làm thế nào để dung hòa giữa mở và khép, giữa sự thông suốt trong vận hành và cảm giác riêng tư, tĩnh tại để mỗi không gian đều có câu chuyện và trải nghiệm riêng.
Khu vực Lễ tân mở ra như cánh cổng đầu tiên của Cung điện, nơi người lữ khách dừng chân, an tọa bên tách trà ấm, để lắng lại và cảm nhận sự bình yên đầu tiên sau chuyến hành trình dài. Không gian nơi đây được dệt nên từ những chất liệu mang hồn Việt: gạch ngói đất nung, gốm gạch mộc mạc – những vật liệu đã nhuốm màu thời gian.



Tâm điểm của khu vực là bốn bức vách trang trí lớn đặt sau quầy lễ tân, lấy cảm hứng từ motif “tứ bình”. Những viên gạch tráng men sáng bóng phản chiếu ánh sáng tự nhiên từ giếng trời, tạo nên điệu nhạc ánh sáng biến ảo theo từng khoảnh khắc trong ngày, khi thì dịu dàng như sớm mai, khi lại lấp lánh tựa hoàng hôn chạm ngõ – tái hiện vẻ đẹp lấp lánh của một cung điện xưa giữa nhịp sống hiện đại.
Giữa Sảnh chờ, quầy bar hiện lên như tâm điểm của nhịp sống – nơi ánh sáng, âm thanh và chuyển động giao thoa. Bao quanh đó, những vách trang trí được sắp đặt đều đặn, dẫn hướng ánh nhìn về khoảng thông tầng, mở ra cảm giác liên kết và rộng mở giữa các không gian liền kề xung quanh.



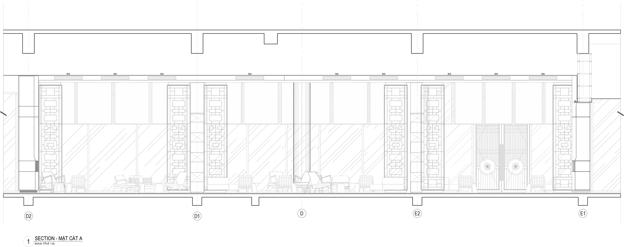
Từng vách ngăn được tạo hình theo tỉ lệ của những cánh cửa cung đình xưa, để mỗi bước chân đi qua đều mang cảm giác khám phá – như đang dạo bước giữa những gian phòng thâm nghiêm và rực rỡ của hoàng cung.


Trong văn hóa Việt, màu đỏ mang nhiều tầng ý nghĩa: biểu tượng của may mắn, thịnh vượng, của sự cao sang quyền quý, và đồng thời cũng gần gũi như màu đôi môi người ăn trầu – tượng trưng cho tình thân, cho kết nối và sum vầy. Chính vì lẽ đó, màu đỏ được chọn làm gam màu chủ đạo cho Cung điện Từ Hoa – vừa gợi hoài cổ, vừa khơi dậy sức sống và niềm hân hoan.
Lấy cảm hứng từ một đêm dạ tiệc trong Cung điện của Công chúa Từ Hoa, nơi ánh đèn lồng lụa đỏ rực rỡ soi bóng lên những cờ phướn đầy sắc màu, và những bàn tiệc trải dài từ gian nhà này sang gian nhà khác, vang vọng tiếng đàn ca và tiếng cười rộn rã.



Thiết kế nhà hàng là hành trình tái hiện lại bầu không khí lễ hội rực rỡ ấy bằng ngôn ngữ của thời đại mới nơi tinh thần cổ truyền giao hòa cùng hơi thở đương đại. Từng chi tiết được nâng niu qua bàn tay nghệ nhân Việt: gốm Bát Tràng mộc mạc, đồng chạm tinh xảo, và những bức tranh từ làng nghề truyền thống được chọn lựa như lời tri ân với quá khứ vàng son.
Bao quanh một phần ba khoảng thông tầng, khu vực nhà hàng được sắp đặt khéo léo để vừa đủ kết nối với các không gian lân cận, đồng thời duy trì sự riêng tư cần thiết. Không gian không phô bày trọn vẹn mà ẩn hiện qua từng lớp vách, khơi gợi sự tò mò và mời gọi bước chân khám phá. Những vách trang trí mảnh mai chia nhà hàng thành nhiều “gian phòng” nhỏ – mỗi nơi mang một tính cách riêng, nơi gặp gỡ ấm cúng cho nhóm bạn, bữa ăn thân mật của gia đình hay không gian tĩnh lặng dành cho những vị khách thích sự riêng tư.


Khoảng thông tầng giữ vai trò như sợi dây kết nối toàn bộ không gian, vừa mở theo trục dọc, vừa trải theo trục ngang của công trình. Trong tưởng tượng về Cung điện Từ Hoa, nơi đây là khoảng sân trong – không gian đệm giữa trại Tằm Tang sôi động (khối công cộng) và những ngọa phòng tĩnh lặng (khu lưu trú).
Chuyển động lên xuống nhịp nhàng của thang máy kính trong khoảng thông tầng tựa như những con thoi uyển chuyển trên khung cửi. Từ đó, ý tưởng thiết kế được phát triển — khoảng thông tầng được xem như tấm lụa quý đang được dệt nên bởi một khung cửi khổng lồ. Ánh đèn lấp lánh nơi lan can như những viên bảo châu rải trên tấm lụa vàng óng, tôn vinh vẻ huy hoàng và tráng lệ của cung điện xưa.

Không gian hội nghị mang đến thách thức trong việc dung hòa hệ cột và dầm hiện hữu để mở rộng tối đa công năng. Trần được xử lý tinh tế để vừa đảm bảo chiều cao lý tưởng, vừa đáp ứng yêu cầu kỹ thuật của hệ thống ánh sáng – âm thanh.
Lấy cảm hứng từ “Hà Nội 36 phố phường”, không gian được tạo hình như một bức tranh Đông Hồ khổng lồ, nơi các vách CNC mô phỏng nhịp sống phố cổ, trần nghiêng gợi mái ngói lô xô, vừa gợi sự sầm uất, vừa nên thơ như câu hát:
“Hà Nội mùa thu, cây cơm nguội vàng, cây bàng lá đỏ,
nằm kề bên nhau, phố xưa nhà cổ, mái ngói thâm nâu”


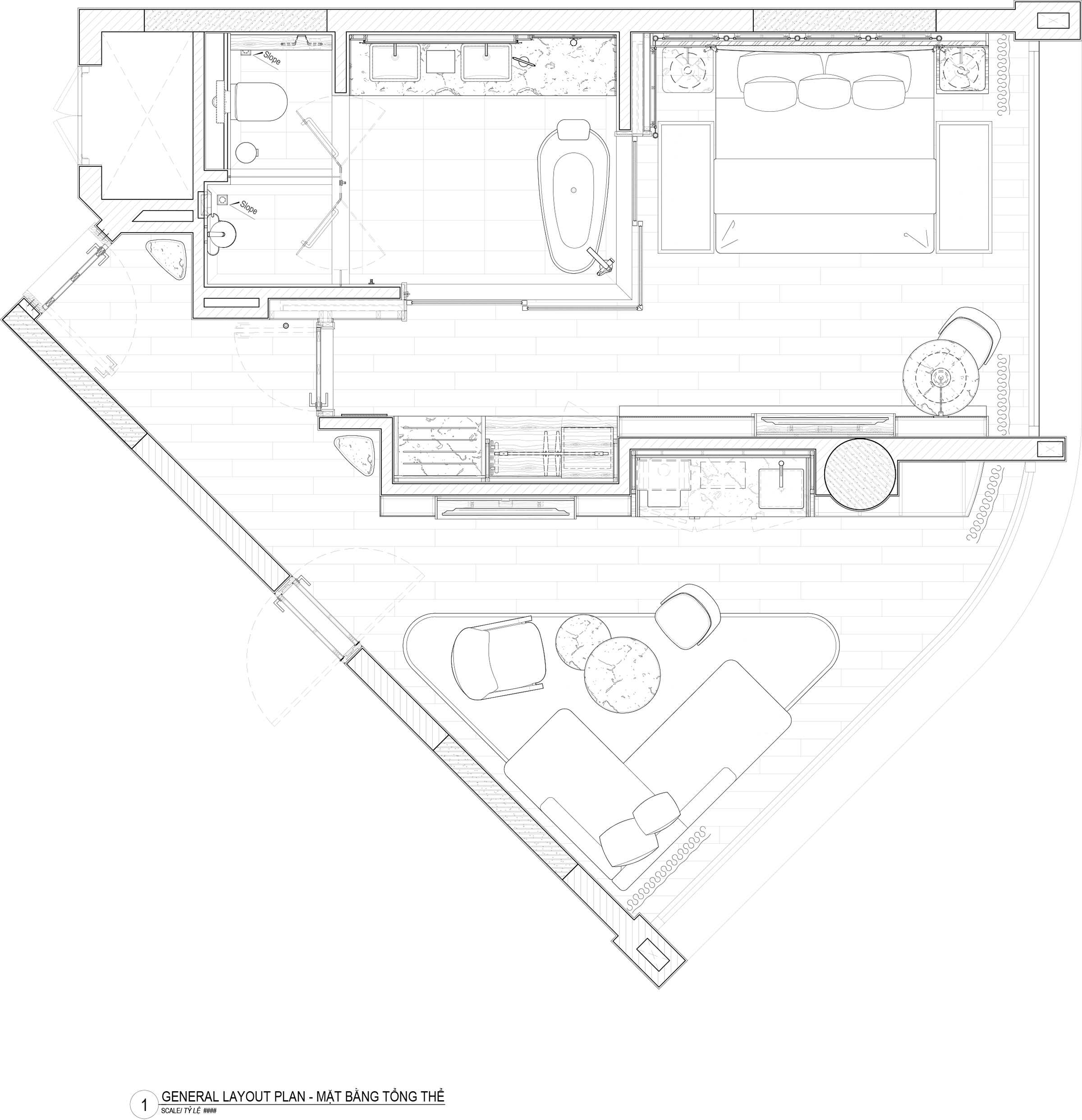
Sau hành trình dài đến với Cung điện Từ Hoa, người lữ khách tìm thấy cho mình một khoảng lặng dịu êm – nơi mọi thanh âm ồn ã cũng như nhịp sống vội vã đều dừng lại trước cánh cửa của sự an yên. Nếu khu vực công cộng là không gian rực rỡ sắc màu, nơi tôn vinh nghề lụa và tràn đầy sức sống, thì khu phòng lại mang đến một bản hòa ca nhẹ nhàng tĩnh lặng – nơi cảm xúc được lắng lại và tâm hồn được khẽ vuốt ve.
Lấy cảm hứng từ hình ảnh “gác tía lầu son” – biểu tượng của vẻ đẹp cao sang trong kiến trúc truyền thống dung hòa tinh thần Á Đông trong đường nét hiện đại tạo nên không gian vừa gần gũi, vừa thanh lịch. Trong từng chi tiết – từ ánh sáng len qua lớp rèm, lớp sàn gỗ nâng niu nhẹ nhàng dưới chân đến mùi hương phảng phất trong không gian – tất cả hòa quyện tạo nên một trải nghiệm rất riêng, nơi người ta không chỉ nghỉ ngơi mà còn cảm nhận được sự an nhiên trong từng hơi thở.

Tổng thể thiết kế là hành trình dung hòa giữa di sản và đương đại, nơi mỗi không gian không chỉ kể lại câu chuyện về Cung điện Từ Hoa và nghề lụa truyền thống mà còn thổi vào đó hơi thở mới của thời đại – tinh tế, hiện đại nhưng vẫn thấm đẫm tinh thần Hà Nội. Dusit Le Palais Tu Hoa vì thế không chỉ là một công trình kiến trúc, mà còn là tấm lụa mềm dệt nên từ ký ức và cảm xúc, nơi quá khứ và hiện tại giao hòa trong từng chi tiết. Ở đó, người lữ khách tìm thấy hình bóng của một Hà Nội thanh lịch, trầm mặc nhưng lại thân quen, mới mẻ.








| Thông tin dự án: Địa điểm: Số 10, Ngõ 431 Âu Cơ, Quận Tây Hồ (cũ), Hà Nội Thể loại: Khách sạn Thiết kế nội thất: DESIGNLAB Nhà thầu: NEM Funiture Chủ đầu tư: Công ty Cổ phần Công nghệ Tổng hợp Diện tích khu đất: 3300m2 Tổng diện tích sàn: 14000 m2 Hoàn thành: 2025 Nhiếp ảnh: Nguyễn Thái Thạch Giải thưởng: Nội thất của Năm – Ashui Awards 2025 |

