
Museum of Design (MoD) giới thiệu 50 CHAIRS, một triển lãm nơi 50 văn phòng kiến trúc Việt Nam thể hiện thế giới quan của mình chỉ qua một đối tượng duy nhất: chiếc ghế. Đây không phải là một bài tập về các kiểu hình, cũng không phải cuộc trình diễn vật liệu và công nghệ. Triển lãm vận hành như một phòng thí nghiệm mở, đặt ghế vào đúng vị trí vốn có của nó: một công cụ để đo chiều sâu tư duy thiết kế, để đọc về văn hóa qua một lăng kính khác, để quan sát những căng thẳng tinh tế giữa công năng, kỹ nghệ và biểu tượng. Trong bối cảnh thiết kế tại Việt Nam đang bước vào giai đoạn tự định nghĩa, với các thái cực bản địa – toàn cầu, thủ công – công nghiệp, truyền thống – giải pháp mới đan xen liên tục, 50 CHAIRS như một bản đồ nén lại của những mạch ngầm tư tưởng này.

Phòng thí nghiệm của “sự ngồi”

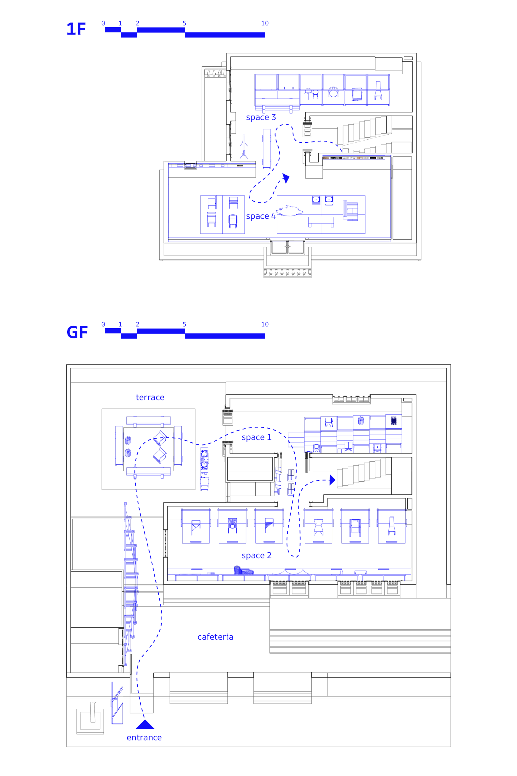
Triển lãm bao gồm 4 phòng chính được đặt trong một căn biệt thự nhiều tầng, một không gian vốn dành cho trưng bày các tác phẩm hội họa hơn là thiết kế, nhưng chính điều này mở ra tiềm năng để MoD thực hành tư duy phê phán và thích ứng với bối cảnh, đây cũng là căn tính của một bảo tàng phi tập trung như MoD. Không gian hiện hữu được “đọc lại” và tạo một “lớp mới” nhạy cảm và tiết chế để “thương lượng” lại “lớp hiện hữu”. Những căn phòng với tỷ lệ chênh nhau, hành lang hẹp, góc mở bất ngờ, hay những cầu thang ánh sáng gián tiếp, tất cả trở thành một cấu trúc dẫn dắt nhịp điệu và cảm xúc của khách tham quan.
Đi xuyên qua phòng số 1, cũng là lối vào chính tại tầng trệt, khách tham quan sẽ ngay lập tức bị kêu gọi sự chú ý bởi góc đọc của cuốn sách 50 CHAIRS, nơi trưng bày ấn phẩm về những thiết kế ghế và những câu chuyện về lịch sử – văn hóa của đối tượng này. Tuy vậy những người ngồi đọc sách lại là những người ở đoạn cuối của quá trình tham quan. Trong bối cảnh một triển lãm vốn có mật độ thị giác cao, việc mở đầu bằng sự đọc là một quyết định khá táo bạo: nó như kích thích hành vi quan sát chủ động từ những khách tham quan mới.



Ở tầng hai, nhịp điệu tiếp tục được phân đoạn bằng không gian chiếu phim tư liệu. Đây là một trong những khoảnh khắc giàu thông tin và chân thực nhất của toàn triển lãm: các kiến trúc sư, qua những chia sẻ súc tích, đưa người xem vào hành trình lên ý tưởng, khảo sát bối cảnh, vật liệu và phương pháp chế tác. Những câu chuyện về thử và sai, về giới hạn công nghệ, về những lần làm lại xuất hiện song song với những suy tư về ký ức, văn hóa và môi trường. Không gian này như một khoang trung chuyển, cân bằng năng lượng giữa bốn phòng triển lãm.
Điểm có vẻ là yếu của không gian tòa nhà này lại có thể cung cấp những “khoảng lặng” thú vị giữa những vùng trưng bày. MoD sử dụng chúng như những đơn vị điều chỉnh nhịp tim của hành trình xem triển lãm: không quá trống trải để trở nên lạc lõng, cũng không quá can thiệp để mất đi tính ngẫu nhiên của kiến trúc nhà ở.



Ngôn ngữ vật liệu: gỗ – vải như nền tảng của sự ấm áp
Thay vì lựa chọn các vật liệu công nghiệp mạnh mẽ, MoD quyết định sử dụng gỗ và vải xuyên suốt triển lãm: hai chất liệu vừa quen, vừa ấm áp, vừa không áp đặt thẩm mỹ lên tác phẩm. Gỗ mang lại chiều sâu vật lý và sự ổn định; vải điều tiết âm thanh, ánh sáng, bầu không khí. Lựa chọn này làm dịu sự cạnh tranh giữa kiến trúc biệt thự và hình hài ghế; đồng thời bổ sung độ thân thiện mà MoD muốn có để có thể tiếp cận với học sinh và đại chúng.
Các module gỗ – vải được thiết kế theo hướng “ẩn mình”: không cố gắng trình diễn kỹ nghệ mà chỉ hỗ trợ tác phẩm. Nhưng chính sự tiết chế này mở ra một vùng trống thị giác cần thiết để mỗi chiếc ghế tự trình bày câu chuyện của chính nó, nói cách khác có thể xem đây chính là “ghế” của những chiếc ghế.

Một triển lãm có cấu trúc đa tầng: dẫn dắt bằng vật liệu và nhịp điệu
Một trong những thế mạnh trong không gian của 50 CHAIRS nằm ở cách “chiếu sáng” tác phẩm bằng vật liệu và nhịp điệu không gian. Trải nghiệm được đẩy lên cao từng đợt như làn sóng: mở rộng – nén lại – nghỉ – rồi mở ra lần nữa. Cấu trúc đa tầng của biệt thự trở thành bộ xương cho dòng trải nghiệm này, còn các can thiệp của MoD đóng vai trò bộ khung điều chỉnh cảm xúc.
Người xem có thể cảm nhận rất rõ sự thay đổi nhiệt độ ánh sáng, mật độ âm thanh, chất liệu và khoảng trống khi di chuyển từ phòng này sang phòng khác. Toàn bộ hành trình là một câu chuyện của vật liệu, ánh sáng và hình dáng.

Ghế như một bản đồ tư duy
Ghế là đối tượng rất đặc biệt trong thiết kế, bởi sự hiện diện mang tính “đối thoại” của nó. Ghế mang kích thước gần với cơ thể, tương quan trực tiếp với cột sống, trọng tâm, nhịp thở, và gợi ra một lượng lớn ký ức về ngồi, chờ, trò chuyện, làm việc, suy tư.
Trong 50 CHAIRS, các chiếc ghế không bị phân loại hay sắp xếp theo chủ đề quá mạnh mẽ. MoD từ chối cách diễn giải tuyến tính để giữ nguyên sự hỗn độn, thứ bản chất vốn có của tư duy thiết kế đương đại. Người xem có thể bắt gặp: Các thử nghiệm cấu trúc uốn cong, mô phỏng chuyển động vật lý; Những nghiên cứu vật liệu mới, từ foam nhẹ đến gỗ ghép thủ công; Các hình khối tối giản, gọn nét như kết quả của một quá trình tinh lọc khắc nghiệt; Những chiếc ghế xem trọng câu chuyện văn hóa: hình dáng gợi lại kiến trúc truyền thống, thói quen sinh hoạt, các cấu trúc phi hình thức của phố sá Việt Nam; Hay các mô hình lai ghép giữa nội thất, điêu khắc và kiến trúc nhỏ.
Điểm chung của tất cả là sự nghiêm túc. Không có sản phẩm nào mang cảm giác “vội vã” hay đánh bóng tên tuổi. Sự đa dạng này không chỉ thể hiện năng lực của từng văn phòng kiến trúc và các nhà thiết kế mà còn phác họa được những chùm tư tưởng đang vận hành trong thiết kế Việt Nam hiện nay.

Phương pháp chế tác và dấu ấn hậu cần
Khác với nhiều triển lãm nội thất chỉ tập trung vào sản phẩm hoàn thiện, MoD sử dụng cả vật liệu thừa để chế tác ghế và bàn đọc sách, kệ trưng bày mô hình, ghế băng nghỉ chân, đôn, ghế bành nhỏ… hỗ trợ cho công tác vận hành của triển lãm. Có thể thấy rằng chính nhờ những vật dụng này mà các không gian như sân chào đón được sắp đặt lại cho buổi tối khai mạc triển lãm, hay phòng lớn 3 được thiết lập dã chiến cho buổi ra mắt sách được biến đổi một cách thú vị như thể dành riêng cho các sự kiện này. Điều này tạo ra một mạch thống nhất giữa khâu tập hợp – trưng bày – vận hành – trải nghiệm, đồng thời tiết giảm lãng phí vật liệu. Cách làm này phản ánh một thái độ rõ ràng: thiết kế không chỉ là vật thể cuối cùng mà là toàn bộ quá trình dẫn đến nó. MoD nghiêm túc đặt ra câu hỏi về vòng đời vật liệu, hệ sinh thái sản xuất địa phương và tính bền vững của thực hành trưng bày và vận hành triển lãm.

Thiết kế là thứ dành cho tất cả mọi người
MoD luôn khẳng định thiết kế phải có khả năng lan tỏa vượt khỏi phạm vi nghề nghiệp chuyên nghiệp. 50 CHAIRS được xây dựng như một nền tảng giáo dục tự nhiên: dễ tiếp cận, dễ quan sát nhưng không đơn giản hóa nội dung. Đối với học sinh, chiếc ghế là vật thể gần gũi nhất để tìm hiểu khái niệm thiết kế và tư duy làm đồ vật. Đối với cộng đồng thiết kế, đây là cơ hội để nhận diện bối cảnh nghề nghiệp của mình qua 50 tiếng nói song song.
Không gian triển lãm vì thế tránh hoàn toàn sự “trình diễn”, thay vào đó MoD chọn thái độ trung tính: rõ ràng, chậm rãi, để khách tham quan tự đọc tác phẩm theo tốc độ riêng của mình.
























50 chiếc ghế như 50 mảnh ký ức – hiện tại – tương lai của thiết kế đương đại Việt Nam
Khi đặt 50 ghế cạnh nhau, triển lãm vô tình tạo ra một câu chuyện cộng dồn và lớn hơn từng tác phẩm đơn lẻ. Đó là câu chuyện về một thế hệ các nhà thiết kế và kiến trúc sư Việt Nam đang tìm kiếm giọng nói riêng của mình. Có sự rụt rè, có sự táo bạo; có chiêm nghiệm, có thí nghiệm; có hoài niệm và cả những nỗ lực tách khỏi truyền thống.
MoD không cố ép buộc điều gì có thể trở thành “hình ảnh đại diện”. Triển lãm không nhằm đưa ra câu trả lời cuối cùng mà mở ra một hệ câu hỏi : Điều gì hình thành nên bản sắc của kiến trúc – thiết kế Việt Nam đương đại? Các nhà thiết kế và kiến trúc sư Việt Nam đang đối thoại với thế giới như thế nào? Ghế, một vật thể nhỏ bé, có thể phóng chiếu đến đâu các chiều tư duy về văn hóa, xã hội và công nghệ?
50 CHAIRS xem ghế như một “đơn vị nghiên cứu căn bản” mang thông tin nén về con người, bối cảnh và nghề nghiệp. Một vật thể có thể chứa cả lịch sử 5.000 năm đối thoại giữa hình thái và cơ thể, giữa chức năng và biểu tượng.

Triển lãm vận hành trơn tru nhờ sự kết hợp giữa tư duy giám tuyển của Design Committee (DC), tính mềm dẻo không gian của ngôi biệt thự và quan điểm nhất quán của MoD: thiết kế là thứ dành cho tất cả mọi người. 50 CHAIRS không tìm cách trình diễn sự rực rỡ mà chọn con đường rõ ràng hơn: để mỗi chiếc ghế tự nói, để mỗi người xem tự đọc.
Trong một bối cảnh thiết kế Việt Nam đang âm thầm chuyển động theo nhiều hướng khác nhau, 50 CHAIRS là một khoảnh khắc để dừng lại, nhìn vào chính mình, và thấy được cả sự đa dạng lẫn những đường nối vô hình đang hình thành nên nền thiết kế đương đại Việt Nam.

| THÔNG TIN TRIỂN LÃM Thời gian: 15/11 – 23/11/2025, mở cửa tất cả các ngày trong tuần từ 8h00 – 18h00. Địa điểm: Phòng triển lãm SANN The House of Art, số 106 Nguyễn Văn Hưởng, phường An Khánh (Thảo Điền cũ), thành phố Hồ Chí Minh. |


