Vị trí căn hộ: Chung cư Central Garden, 225 bến Chương Dương, Q.1, TP.HCM
Thiết kế: KTS Vương Hoàng Lê, công ty Thiết kế và xây dựng LDC.
72m2 của căn hộ dạng “đại chúng” với hai phòng ngủ không phải là một không gian tha hồ xoay xở, bày biện với một gia đình bốn thành viên, trong đó có hai cậu con trai đang tuổi lớn. Làm sao để có một chỗ ở vừa đủ, dễ chịu và khôn khéo nhất?

Không gian phụ bao gồm bếp, khu vệ sinh, phơi đồ đều mở trực tiếp ra không gian chính của căn hộ, nên được cho “ở ẩn” nép sau những tấm cửa lá sách lùa và vách kính. Chỉ cần đóng cửa lại, là chúng… mất tiêu.
“Biết thân biết phận” của một căn hộ diện tích khiêm nhường, chủ nhà “giao khoán” cho kiến trúc sư muốn làm sao thì làm, chỉ “cài cắm” yêu cầu duy nhất: làm sao tận dụng được cái view rất ổn – cửa sổ ở không gian trung tâm căn hộ mở ra hướng đông nam thành phố, để chiều chiều tắt nắng có thể phóng vút tầm mắt qua đại lộ Đông Tây hướng về phía quận 4, quận 7 mà không phải đứng kiễng chân ngó qua ban công hay bắc ghế lên để ngó. “Quẳng một cục” cho đối tác tự “cân đong đo đếm” là một điều vừa dễ lại cũng vừa khó cho kiến trúc sư, đặc biệt trong bối cảnh mối quan hệ giữa chủ nhà và kiến trúc sư cũng đồng thời là bạn thân, thấu hiểu nết ăn ở, tính cách và nhu cầu của nhau.

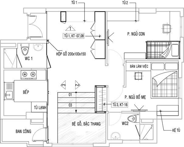
Khoảng không gian bên cửa sổ không gian chính được giật cấp, để tận dụng tầm nhìn phóng khoáng rộng rãi về hướng Đông Nam thành phố, đồng thời, phía dưới được tận dụng làm kho đựng đồ gọn gàng, kín đáo
Việc đầu tiên, cũng là giải pháp mạnh tay nhất khi xử lý không gian chức năng trong căn hộ là… “vứt quách” cái phòng khách với sofa, bàn ghế chình ình giữa nhà như nhiều căn hộ khác, cũng chẳng có quầy bar “thời thượng” hiện diện đâu đó trong nhà, dù chủ nhà chiều nào cũng vui vầy với ly, tách. Vậy là thoáng và bọn trẻ có chỗ đi lại, khua chân khua tay cũng khỏi đụng chạm nhau, đụng chạm đồ đạc. Một khoảng cỡ tương đương cái sập gụ ở cửa sổ hướng ra đại lộ Đông Tây được giật cấp sàn gỗ cao sát mép cửa sổ. Chủ nhà vừa có một khoảnh để cả nhà quây quần cơm nước, đọc sách, nghe nhạc, tiếp khách hay ngồi duỗi chân nhâm nhi ly vang ngắm thành phố lên đèn… ngay dưới chân mình. Thêm nữa, dưới sàn gỗ được triển khai thành một “nhà kho” bao gồm vô số ngăn kéo, khoang tủ để chứa đồ đạc vốn không ít của chủ nhà, mà họ lại hoàn toàn không muốn chúng cứ phơi ra ở đâu đó. Một quyết định khác quan trọng của gia chủ giúp cho kiến trúc sư dễ bề xoay xở hơn rất nhiều, đó là toàn bộ nội thất do kiến trúc sư tự “đo ni đóng giày”.


Phòng ngủ, không bị can thiệp nhiều, chỉ chú trọng bố trí hợp lý, giải quyết về mặt công năng, giản tiện và nhẹ nhàng / Sảnh chờ trước cửa hai phòng ngủ và mở ra không gian chính, cũng là nơi hội tụ các thành viên gia đình trước khi ai nấy về không gian riêng của mình
Hai phòng ngủ, kiến trúc sư không can thiệp nhiều, chỉ chú trọng bố trí hợp lý, giải quyết về mặt công năng, giản tiện và nhẹ nhàng. Chỉ riêng khoảng trước cửa phòng ngủ được tạo ra một sảnh chờ, bằng cách đẩy cửa phòng ngủ lui lại. Ở điểm nhấn này, không chỉ tạo thêm một lớp lang và chiều sâu cho không gian khi nhìn từ tâm căn hộ, mà còn triển khai một ý đồ khác của kiến trúc sư. Chủ nhà là một nhiếp ảnh gia nổi tiếng, nên toàn bộ phần vách của sảnh chờ được phủ kín hình ảnh của gia đình, từ người đã khuất tới những thành viên đang sống. Sảnh chờ đã được ngụ ý trở thành nơi hội tụ các thành viên gia đình trước khi ai nấy trở về với không gian riêng của mình.

Ngó căn hộ đơn giản vậy mà… đơn giản thật. Các tiểu tiết trong toàn bộ căn hộ không rườm rà, thừa thãi. Mọi thứ đều đơn giản, hợp lý, vừa phải. Liệu đó có phải là, đưa ra yêu cầu tương đối cho kiến trúc sư tự xoay sở là một cách khôn khéo của chủ nhà, biết “chọn mặt gửi nhà” để đạt được hiệu quả tối đa.
Ảnh: ANNIKA SCHMERMBECK

