Công trình dân cư 44 ở thành phố Zaragoza (Tây Ban Nha) với diện tích dự án là 6.546 m2, thiết kế bởi công ty kiến trúc Magen Arquitectos và được hoàn thành vào năm 2010.
Khởi điểm ban đầu của dự án nằm trên đường Canal de Tauste bắt đầu từ việc phân tích sự kết nối giữa các không gian riêng và công cộng. Được thiết kế tuân theo quy định như một khối gồm nhiều công trình xoay quanh sân trong, sơ đồ tổ chức của công trình đuợc hình thành cho một công trình đã hiện hữu tại phía nam và một công trình mới, với mặt bằng hình chữ “U”. Hình thức của không gian cộng đồng bên trong công trình mang lại những kết nối với các công trình hiện hữu xung quanh và đồng thời cung cấp các không gian chuyển tiếp lôi cuốn. Nó cũng cải thiện các điều kiện nhà ở, vốn bị giới hạn do đặc điểm xã hội, mang lại cho chúng một không gian bên ngoài để trò chuyện và gặp gỡ.

Công trình tọa lạc tại phía nam, phía sát ngoài ranh giới đô thị của Tauste, vốn cách khoảng 50km với thành phố Zaragoza. Dự án này tránh việc tiếp xúc trực tiếp với các khu vực gần nhất xung quanh vốn không mấy phù hợp – khu đất giáp ranh với không gian cây xanh tại phía bắc, các công trình dân cư tại phía nam, khu vực công nghiệp tại phía đông và con đường đến thành phố Zaragoza và trung tâm thể thao tại phía tây. Không gian cộng đồng bên trong hình thành nên các kết nối với các không gian gần kề để hòa nhập một cách phù hợp nhất tại khu vực.
Với mục đích giải quyết đặc điểm đô thị của không gian bên trong của các cụm công trình thành phố, hai giới hạn được đặt ra: đầu tiên là làm cho vừa khu đỗ xe của tầng bán tầng hầm với bề rộng ngang bằng các tầng khác, không cho phép bố trí mật độ cao nhất để không phải giảm kích thước của không gian công cộng; thứ hai là giải phóng cái cổng lớn tại phía bắc, bên dưới tòa nhà, vốn kết nối không gian bên trong với không gian cây xanh hiện hữu trước đây. Không gian mở này cùng với các không gian mở khác tại phía tây và phía nam của khu đất, cùng với cây xanh và ghế ngoài trời đã giúp cho khu vực sân bên trong trở thành một không gian cộng đồng.

Dự án cũng đồng thời thể hiện việc tham khảo địa thế của khu đất, với một con dốc quan trọng hiện nằm giữa điểm đầu và điểm cuối của khối công trình, và với những giới hạn về công năng cũng như tính khả thi kinh tế, vốn là những điều bình thường của thể loại phát triển nhà ở này. Các yếu tố quyết định của dự án -tính kinh tế thể hiện trong việc lựa chọn vật liệu và sự thích nghi với con dốc – được truyền tải vào công trình bằng một ngôn ngữ ẩn dụ dựa vào các dải ngang đen và trắng. Tổ hợp này, vốn xắp xếp và kết nối các ô cửa sổ của các căn hộ dân cư, mang lại một sự năng động nhất định cho hình khối của công trình. Chi tiết giữa tòa nhà và sàn được giải quyết bằng các tấm đá vôi trắng.


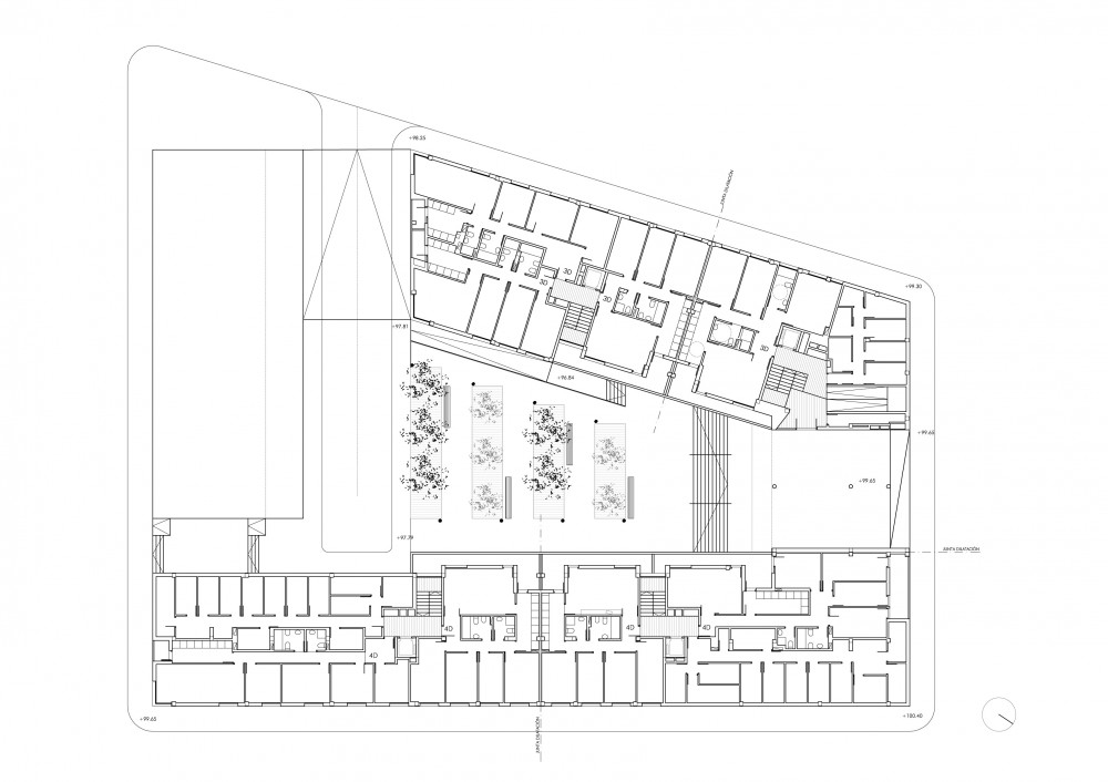
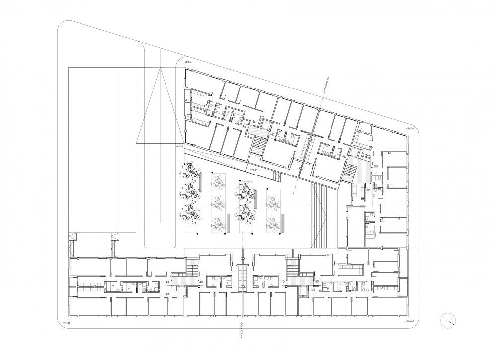
Về hình thức căn hộ, công trình này là công trình dành cho xã hội do có chủ đầu tư là Suelo y Vivienda de Aragón, với 44 căn hộ đươc hỗ trợ giá có từ 3 đến 4 phòng ngủ, các gara đậu xe và các phòng kho chứa đồ, trong một khối có hình chữ “U”. Công trình này có 3 tầng dành cho các căn hộ dân cư và khu đậu xe được bố trí tại tầng có phân nửa là tầng hầm.
Bốn lõi giao thông mang lại lối ra vào đến 3 căn hộ dân cư với hướng nhìn ra 2 mặt tại từng tầng. Một trong số đấy cắt ngang qua bởi hai hành lang giao thông bố trí xung quanh lõi dịch vụ, thông qua sảnh và khu bếp, và tiếp giáp trực tiếp với phòng khách, cả hai không gian này đều nhìn hướng về khu vực sân trong. Đối với hai căn hộ còn lại, phòng khách được bố trí nằm ở góc và có hai hướng nhìn ra ngoài, đồng thời các phòng ngủ và bếp được bố trí sang hai bên và lõi dịch vụ tại khu vực sân trong.
Sân trong của công trình được chú trọng thiết kế từ ý tưởng ban đầu cho đến khi hoàn thiện như là một không gian ngoài trời có chất lượng tốt: khi hoàn thành công việc, không gian trung tâm bị tách biệt khỏi phần còn lại của khu đất và được tính là thuộc một phần diện tích của những con đường, quảng trường và không gian công cộng của Tauste, tài sản của hội đồng thành phố.



Mặt bằng tầng trệt

Mặt bằng tầng điển hình


KTS Vũ Linh Quang – Công ty Kiến trúc ARDOR Architects (biên dịch từ ArchDaily)

