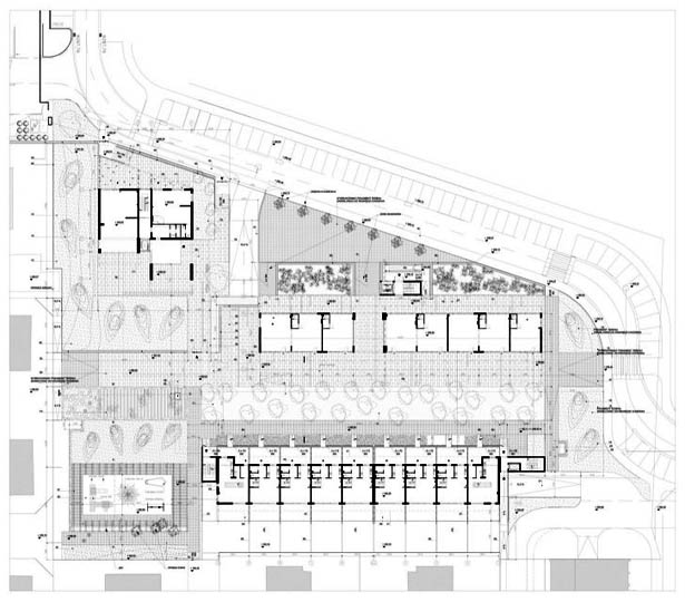
Công trình dân cư tại Katowice, Ba Lan do công ty kiến trúc Medusagroup thiết kế đã được hoàn thành trong giai đoạn từ năm 2006 đến 2009 với diện tích khu đất là 8.914 m2. Hai khối công trình dân cư được thiết kế theo dạng công trình hành lang được bố trí song song với nhau với một trục giao thông trung tâm nội khu ngay chính giữa. Và khối công trình thứ 3 là chung cư. Nhóm thiết kế khi thiết kế công trình đã có tham vọng là phá vỡ đi những cảm nhận không tốt của cư dân cho thể loại công trình này tại Ba Lan.


Không gian cộng đồng với một khuôn viên nhỏ ngay giữa các khối công trình và các hành lang, được bảo vệ bằng kính che chắn khỏi các điệu kiện thời tiết, nhằm tạo nên một không gian cộng đồng thú vị mà thông thường không xuất hiện trong thể loại điển hình công trình có cầu thang bên ngoài như vậy.


Khối dân cư phía bắc
Khối dân cư phía bắc là một công trình gồm 5 tầng với một tầng hầm đậu xe (sử dụng chung với khối chung cư) và kết nối với 3 hành lang giao thông có cầu thang và thang máy bố trị tại hướng đông. Hình dáng công trình đơn giản với các hành lang hướng bắc và một loạt các ban công bố trí tại hướng nam. Toàn bộ công trình được trát thạch cao màu xám than chì, và tầng trên cùng thì được lát thêm bằng các tấm gỗ. Ngoài ra, các ban công được tách biệt ra với nhau bằng những vách gỗ thông thoáng gió. Các hành lang được che chắn bằng các tấm kính, còn tường của chúng thì được bao phủ bằng vật liệu tổng hợp làm bằng sợi thuỷ tinh và nhựa với màu vàng nổi trội. Các không gian phụ được bố trí tại tầng trệt, bao che xung quanh bằng những tấm kính lớn hướng ra phía ngoài.






Khối dân cư phía nam
Khối dân cư phía nam được thiết kế với hành lang bên là kết quả của việc xếp chồng lên nhau của các dãy nhà liên kết. Hình dáng công trình đơn giản và được thiết kế theo những phong cách hiện đại. Các mặt đứng được hoàn thiện bằng thạch cao màu xám than chì và một phần bằng các tấm gỗ.
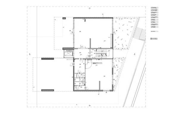
Công trình có hai khối dân cư. Khối phía dưới với các lối vào riêng biệt phía bên hành lang giao thông và vườn cây xanh tại phía nam được che chắn bởi các căn hộ chung cư cao 2 tầng. Khối chung cư này có bố trí lối vào từ hành lang tại hướng bắc. Các không gian thường được sử dụng trong ngày thì được bố trí ngay tại tầng có lối vào trong khi các không gian tiện ích khác thì nằm tại tầng phía dưới.
Cả 2 bên hành lang đều có các cầu thang ngoài trời, được làm chắc chắn, với cái hướng đông có thang máy.





Khối chung cư
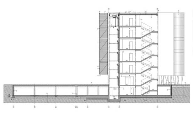
Do vị trí của khu đất (thuộc phần trung tâm của khu vực dân cư) và là công trình chất lượng cao nên khối chung cư được thiết kế để nổi bật. Công trình được thiết kế với 6 tầng và một tầng hầm đậu xe. Công trình có 10 căn hộ cao cấp, được bố trí 2 căn hộ tại mỗi tầng lầu. Các căn hộ được thiết kế trên khối đế, nơi sảnh ra vào cùng với thang máy, cầu thang cũng như các phòng phụ khác được bố trí. Các mặt đứng phía bắc, đông và tây được thiết kế với đa dạng cách bố trí và kích thước cửa sổ, còn mặt đứng hướng đông nơi có sân hiên được thiết kế với các tấm vách gỗ. Tất cả các mặt đứng được hoàn thiện chung vật liệu với các khối công trình khác bằng thạch cao màu xám than chì.






Hành lang giao thông trung tâm
Ngay chính giữa các khối công trình là hành lang giao thông nội khu rộng rãi. Không gian thư giãn, giải trí được bố trí ngay tại khu vực trung tâm của hành lang này và được bao quanh bởi gạch lát tại hai bên. Không gian vui chơi trẻ em được bố trí tại khu vực tây nam và bao quanh bởi những hàng cây xanh.


KTS Vũ Linh Quang – Công ty Kiến trúc ARDOR Architects (biên dịch từ ArchDaily)

