
Innotech minibuilding nằm tại Hà Nội – một thành phố đang trải qua quá trình chuyển đổi đô thị nhanh chóng. Công trình phản ánh nhu cầu ngày càng tăng đối với mô hình nhà ở kết hợp làm việc trong bối cảnh nhà phố mật độ cao và quỹ đất ngày càng hạn chế. Dự án đặt ra câu hỏi: làm thế nào một khu đất nhỏ vẫn có thể tạo ra không gian sống và làm việc chất lượng, thông thoáng và gắn kết với thiên nhiên trong lòng đô thị nén?


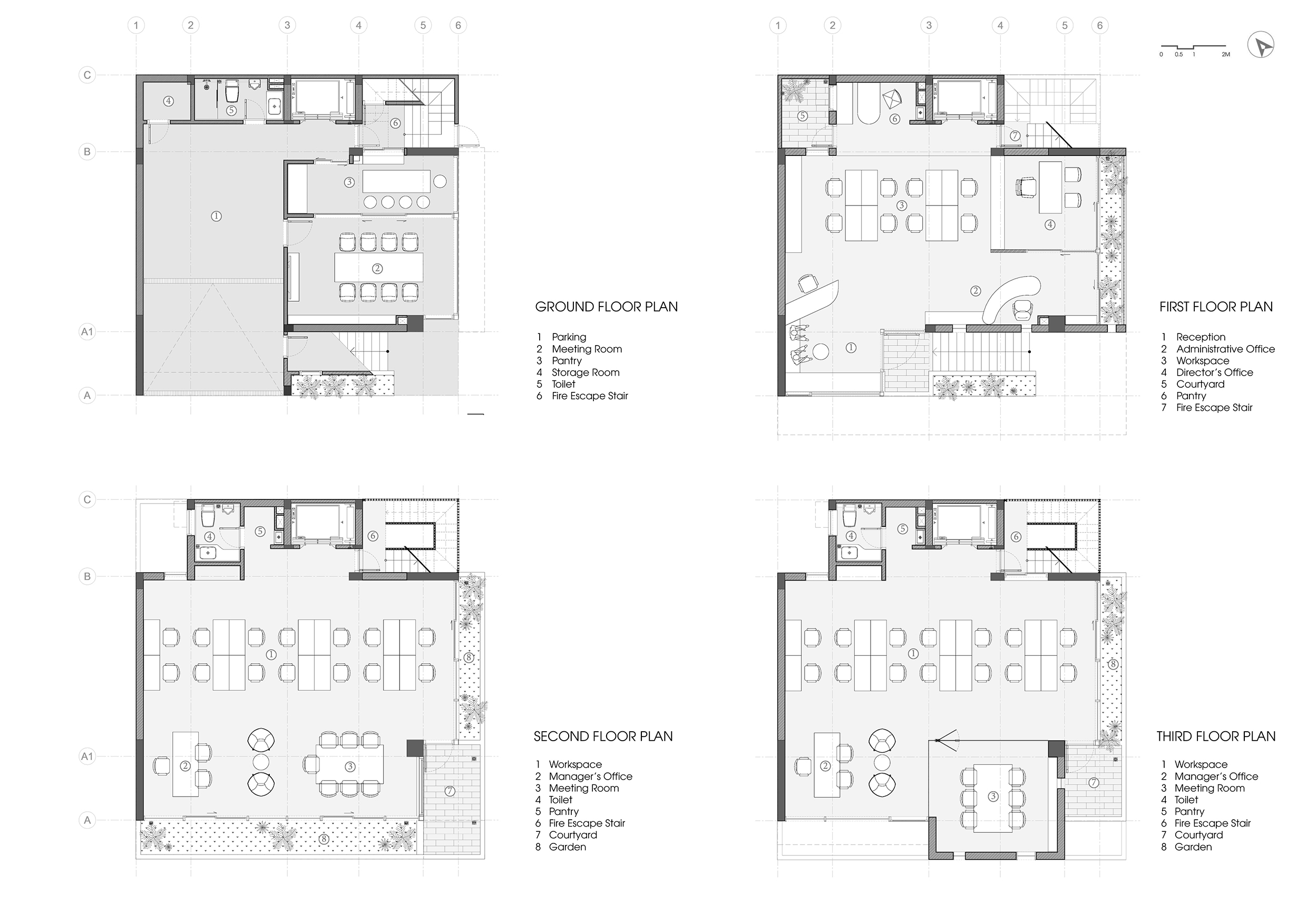
Thay vì tận dụng tối đa diện tích xây dựng, thiết kế tập trung tối ưu hóa công năng bên trong để chủ động chừa lại các khoảng lùi ở mặt tiền. Chuỗi khoảng lùi này trở thành chiến lược tổ chức không gian chính, cho phép hình thành các sân vườn, ban công và không gian ngoài trời xen kẽ theo chiều cao công trình. Kiến trúc được hình dung như các khối không gian xếp chồng và trượt lên nhau, trong đó mỗi khối không chỉ là không gian sử dụng mà còn đồng thời đóng vai trò là mái, sân hoặc vườn cho khối phía dưới.

Những khoảng trống này không được xem là phần diện tích bị bỏ phí, mà là một phần cấu thành quan trọng của công trình. Ánh sáng, gió và cây xanh được đưa sâu vào bên trong, giúp cải thiện vi khí hậu và tạo điều kiện thích ứng tốt hơn với khí hậu nhiệt đới của Hà Nội.




Giải pháp kết cấu đóng vai trò quan trọng trong việc giải phóng hình thức kiến trúc. Hệ kết cấu chính được bố trí về phía sau, trong khi mặt tiền phía trước được đỡ bởi một cột lớn, cho phép các khối phía trên vươn ra và xếp lớp linh hoạt theo yêu cầu sử dụng. Cách tiếp cận này giúp công trình không bị ràng buộc bởi lưới cột thông thường, từ đó tăng tính linh hoạt trong tổ chức không gian và biểu đạt kiến trúc.









Các tầng dưới được bố trí làm văn phòng với mặt bằng mở, kết nối trực tiếp với các khoảng xanh phía trước, tạo môi trường làm việc thông thoáng và dễ chịu. Các tầng ở phía trên có tính khép kín hơn, tiếp nhận ánh sáng và gió gián tiếp thông qua các khu vườn và không gian đệm thay vì mở trực tiếp ra phố. Những không gian sinh hoạt chính đều gắn liền với các sân vườn trên cao, mang lại cảm giác sống gần gũi với thiên nhiên ngay trong bối cảnh đô thị mật độ cao.




Tổng thể công trình là sự đan xen có kiểm soát giữa khối đặc và khoảng rỗng, giữa không gian xây dựng và các khoảng trống do chính công trình tạo ra. Innotech minibuilding đề xuất một mô hình nhà ở kết hợp làm việc phù hợp với điều kiện đô thị Hà Nội đương đại, nơi kiến trúc không chỉ giải quyết bài toán công năng mà còn chủ động tạo dựng chất lượng không gian sống cho người sử dụng.



| Thông tin dự án: Vị trí: Thượng Thanh, Long Biên, Hà Nội Thiết kế: AfA Design Chủ trì: KTS Nguyễn Văn Sinh Nhóm thiết kế: Phạm Ngọc Sơn, Lê Trung Thông, Trịnh Đăng Huy, Đặng Hoàng Linh, Nguyễn Tiến Dũng Diện tích khu đất: 100 m² Hoàn thành: 2025 Nhiếp ảnh: Hoàng Lê |

