Được thiết kế bởi kiến trúc sư người Thuỵ Sĩ Max Dudler, thư viện Folkwang đã tập hợp lưu trữ của ba tổ chức riêng biệt vào trong một toà nhà bốn tầng, hoàn thành hình bốn cạnh của tu viện Bendictine cũ mà bây giờ là khuôn viên chính của trường đại học.
Ý tưởng của Dudler cho thư viện mới này là tạo ra “một khối hình được xây dựng trên nền tảng của những bức tường đá cũ”, với lối vào đi từ phía quảng trường.


Mặt tiền đá cẩm thạch được phát triển với sự hợp tác của nhiếp ảnh gia Stefan Mueller, người đã đến thăm một mỏ đá và chụp lại hình ảnh của những phiến đá. 12 hình ảnh khác nhau được sắp xếp bố trí phía sau các tấm kính như để gợi đến 12 nốt nhạc khác nhau được xếp trên khuông nhạc.
Buổi tối, ánh sáng xuyên qua các tấm chắn mờ đó đem đến cho tòa nhà một sự hiện diện rực rỡ ở trong sân.
Phòng đọc sách nằm tại tầng 1 của toà nhà là khoảng thông của ba tầng, được bao phủ bởi các giá sách làm từ gỗ anh đào, trong khi nhiều cuốn sách khác có thể tìm thấy được ở hai tầng gallery phía trên.


























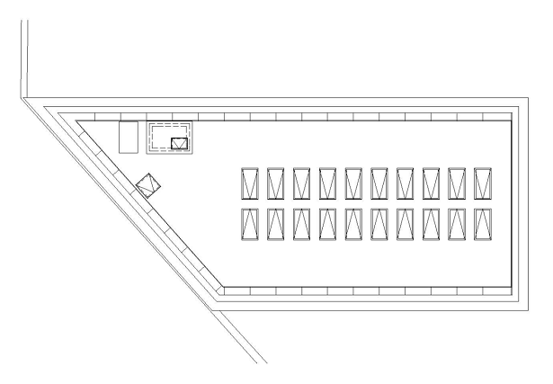
Mặt bằng tầng 1

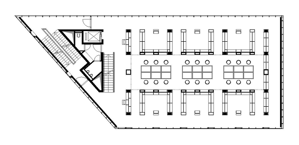
Mặt bằng tầng 2

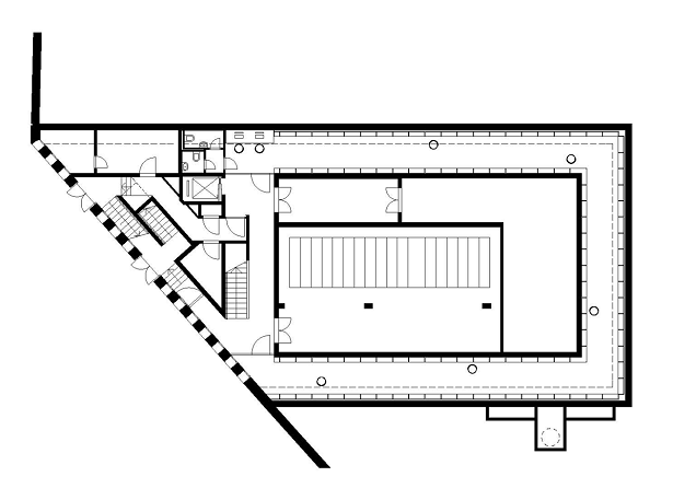
Mặt bằng tầng 3

Mặt bằng tầng 4

Mặt bằng tầng 5

Mặt bằng tầng 6



Mặt cắt hướng Bắc

Mặt cắt hướng Nam

Mặt cắt hướng Tây

Mặt cắt hướng Đông

Mặt cắt
Architects: Max Dudler Architekt
Location: Essen, Germany
Project Manager: Alexander Bonte
Client: Duisburg branch of the Building and Real Estate Management Authority
Area: 5.603 m2
Year: 2012
Photographs: Stefan Müller / ArchDaily

