
1. Hình thái học đô thị
Hình thái học đô thị (Urban Morphology) là lĩnh vực nghiên cứu hình dạng, cấu trúc không gian, sự phát triển và biến đổi không gian của các đô thị qua tiến trình thời gian. Đây là một công cụ phân tích quan trọng trong quy hoạch và thiết kế đô thị, giúp nhận diện các yếu tố cấu thành không gian đô thị như hình dạng địa hình, mạng lưới đường phố, lô đất, công trình kiến trúc và không gian công cộng. Từ đó hiểu được quá trình phát triển lịch sử, logic hình thành, bản chất các hoạt động sống trong đô thị và xu hướng phát triển không gian của đô thị.
Tiếp cận về hình thái đô thị thường được phân chia theo các trường phái chính:
Trường phái Anh (Conzenian School) – do M.R.G. Conzen khởi xướng, nhấn mạnh việc phân tích ba yếu tố chính: pattern of streets (hình thái mạng lưới đường), plot pattern (hình thái lô đất), và building fabric (hình thái kiến trúc công trình), xem đây là “thể tam nguyên” của hình thái đô thị. Phương pháp này mang tính hệ thống, chú trọng phân tích các lớp lịch sử và quá trình chuyển đổi không gian qua thời gian. [2]
Trường phái Ý (Muratori – Caniggia) – nhấn mạnh đến “quá trình hình thành kiến trúc – đô thị như một ngôn ngữ”, xem kiến trúc và đô thị là kết quả của các quá trình tiến hóa tổng thể của các đối tượng theo thời gian. Caniggia phát triển mô hình “typological process” trong đó các hình thái kiến trúc đô thị có thể được truy nguyên nguồn gốc và phân tích theo loại hình. [3]
Trường phái Pháp (Panerai – Castex) – tiếp cận hình thái đô thị thông qua hệ hình không gian – chức năng – xã hội, coi đô thị là một thực thể tổng hợp có quan hệ giữa yếu tố vật thể và và phi vật thể ví dụ như đời sống xã hội. Đây là phương pháp nhận diện cấu trúc đô thị dựa trên khối tích, không gian rỗng, đặc, và tính khả biến. [6]
Tóm lại, việc nghiên cứu hình thái học đô thị đóng vai trò quan trọng trong việc xác định các yếu tố đặc trưng và nhận diện giá trị không gian kiến trúc đô thị. Trên cơ sở đó, có thể đề xuất các giải pháp quy hoạch, bảo tồn hoặc phát triển bền vững một cách phù hợp, mà vẫn đảm bảo gìn giữ các giá trị truyền thống và bản sắc đô thị đặc thù của khu vực.
2. Phân tích hình thái khu vực Bến Bình Đông
Bến Bình Đông là khu vực ven kênh Tàu Hủ mang đậm dấu ấn giao thương, văn hóa, kiến trúc đô thị sông nước truyền thống của Sài Gòn – Chợ Lớn. Với giá trị lịch sử, không gian đặc trưng và tiềm năng phát triển du lịch. Đây là một trong những khu vực quan trọng trong chiến lược bảo tồn và phát triển đô thị TP.HCM.
Hiện nay do quá trình đô thị hóa, khu vực này bị xuống cấp, lấn chiếm, hoạt động trên bến dưới thuyền không còn nữa, do vậy không gian đô thị mất dần các giá trị của nó. Phân tích hình thái đô thị khu vực Bến Bình Đông nhằm nhận diện các giá trị đặc trưng không gian từ đó xây dựng các giải pháp phát triển không gian một cách bền vững.

2.1. Phương pháp nghiên cứu
Phương pháp phân tích hình thái học chủ yếu dựa trên các công cụ đồ bản (mapping); phân tích tách lớp hình thái dựa trên tài liệu bản đồ lịch sử (bản đồ Sài Gòn thời Pháp, bản đồ quy hoạch 1/5.000, ảnh vệ tinh Google Earth); vẽ ghi và khảo sát thực địa. Phân tích dựa trên Khu vực nghiên cứu được lựa chọn với ranh bất kỳ (khung 500 x 500m) tại khu vực nhà kho Bến Bình Đông và Khu vực Cầu đi bộ số 7.
Việc lựa chọn theo khung bất kỳ nhằm xác định một cách ranh giới ngẫu nhiên phạm vi nghiên cứu, giúp phân tích một cách đầy đủ, khách quan, và nhận diện rõ đặc điểm hình thái khu vực mà không bị tác động bởi các ranh giới giao thông, địa giới hành chính và các quy định – quy chế quản lý của các khu vực khác nhau.
Phân tích thời gian và tiến trình nghiên cứu tại khu vực có thể lựa chọn từ trước 1893 đến nay với các điểm mốc cơ bản (1893-1923-1950-1975-1995-2010-2025). Mục tiêu đánh giá xu hướng biến đổi hình thái không gian các lớp hình thái: Địa hình và tự nhiên, Mạng lưới đường, Lô đất, Kiến trúc (Hình 2)
2.2. Kết quả phân tích hình thái
Nhận diện theo tiến trình lịch sử: Trước năm 1893, khu vực ven kênh Tàu Hủ hầu như chưa được hình thành, giao thông đường thủy là chủ yếu và phục vụ vận chuyển hàng hóa vào khu vực trung tâm Sài gòn.
Giai đoạn 1893-1923, tuyến đường ven kênh Tàu Hủ (nay là Bến Bình Đông) xuất hiện, phục vụ cho việc tiếp cận từ giao thông thủy vào các khu vực lân cận. Bắt đầu hình thành các khu vực ven sông với cấu trúc lô đất nông – dài, chạy vuông góc với bờ kênh, phù hợp cho nhà ở kết hợp kho (thương cảng dân sinh). Kiến trúc chủ yếu là nhà truyền thống Nam Bộ, nhà gỗ, mái ngói hoặc lá, mật độ thấp. Các công trình phục vụ thương mại và nhà ở theo phong cách thuộc địa tường gạch, mái ngói được xây dựng.
Giai đoạn từ năm 1923-1950, tuyến đường Bến Bình Đông phát triển, giao thông đường bộ gia tăng vai trò lưu thông. Bắt đầu định hình lô đất đô thị kiểu Pháp (hẹp – sâu); phân lô ngay ngắn theo các trục giao thông mới. Giao thông thủy vẫn chiếm vai trò quan trọng, các hoạt động buôn bán trên sông rất nhộn nhịp. Các công trình nhà kho và nhà ở trên mặt tiền được xây dựng ồ ạt mang phong cách kiến trúc thuộc địa (façade tân cổ điển). Kiến trúc tường gạch mái ngói, có chiều cao 1-2 tầng được xây dựng thành dãy tạo ra một dạng hình thành một hình thái không gian đặc trưng. Khu vực dân cư phía sau lưng các khu vực mặt tiền bắt đầu hình thành,
Giai đoạn 1950-1975, vai trò giao thông thủy giảm dần nhường chỗ cho giao thông đường bộ, tuy nhiên hàng hóa vẫn được vận chuyển bằng đường thủy vào sâu trong trung tâm. Mật độ cư trú tăng lên, dân cư trở nên đông đúc hơn, một số lô đất bị chia nhỏ, chuyển mục đích sử dụng; xuất hiện dạng lô đất không có hình dáng và kích thước theo chuẩn. Mạng lưới hẻm mở rộng tự phát, hình thành nhiều tuyến đường kết nối bờ kênh với các khu dân cư nhưng thiếu quy hoạch đồng bộ. Chính quyền trước năm 1975 hầu như thiếu quản lý các khu nhà tự phát ở phía sau dãy mặt tiền.
Giai đoạn 1975-1995 là giai đoạn phát triển đô thị thiếu sự kiểm soát trong thời bao cấp. Dân nhập cư xây nhà lấn chiếm các khu vực kênh rạch tại Quận 8 (trước khi sáp nhập) hình thành nhiều khu ổ chuột. Nhà ở cấp 3-4 xây dựng tự phát, sử dụng vật liệu tạm; kiến trúc lộn xộn, thiếu kiểm soát. Do nhu cầu kết nối và tiếp cận nên đã hình thành nhiều tuyến hẻm nhỏ chật hẹp.
Giai đoạn 1995-2010 là giai đoạn bắt đầu mở cửa, đổi mới và bắt đầu có sự quản lý đầy đủ hơn về quy hoạch và trật tự xây dựng. Đường Bến Bình Đông được nâng cấp; mở rộng một số trục kết nối. Một số lô đất được hợp khối để xây nhà phố cao tầng; xuất hiện xu hướng thương mại hóa mặt tiền. Nhà ống 3-4 tầng, công trình bê tông cốt thép phổ biến với kiến trúc hiện đại hóa, mất dần yếu tố bản địa.
Từ 2010 đến 2024, áp lực giao thông tăng mạnh, đường ven kênh quá tải và xuất hiện tuyến xe buýt đường thủy. Quá trình tái cấu trúc bắt đầu, một số khu vực để làm chung cư/cao tầng và diện tích đất dân cư bị thu hẹp. Nhà ở phải được xây dựng theo giấy phép, xen kẽ với nhà tự phát cũ kỹ, dẫn đến thiếu tính đồng bộ về mặt thẩm mỹ. Cảnh quan ven kênh được cải tạo, không gian công cộng ven sông được mở rộng và định hướng phát triển các tuyến du lịch thủy.

Bảng 1. Thống kê đặc điểm hình thái đô thị tại khu vực nghiên cứu (Nguồn: Tác giả):

2.3. Nhận diện các giá trị không gian đô thị và đặc trưng kiến trúc
2.3.1. Đặc trưng hoạt động trên kênh rạch
Qua phân tích hình thái và tiến trình lịch sử có thể thấy các giá trị đặc trưng về hoạt động trên kênh rạch như sau:
(i) Hoạt động thương mại – giao thương đường thủy truyền thống Chợ nổi – ghe hàng: Đây là hoạt động mang giá trị lịch sử và tạo dựng hình ảnh đô thị. Từ lâu, Bến Bình Đông là nơi tập kết, buôn bán hàng hóa nông sản, trái cây, hoa kiểng… từ các tỉnh miền Tây qua đường thủy. Khu vực này hình thành các khu cảng dân sinh là điểm trung chuyển hàng hóa nhỏ lẻ, theo kiểu “nhà kho + thuyền + mặt tiền buôn bán”. Khu vực này có đặc trưng giao thương nhộn nhịp theo mùa: Đặc biệt dịp Tết, khu vực này trở thành chợ hoa tết nổi trên kênh Tàu Hủ, một nét văn hóa độc đáo.
Tuy nhiên hiện nay hoạt động này giảm dần do giao thông thủy bị hạn chế, nhà kho xưởng dọc kênh không còn. Hiện nay, chính quyền địa phương nỗ lực duy trì các hoạt động buôn bán dịp lễ, Tết nhằm khôi phục và gìn giữ các giá trị đặc trưng mang tính lịch sử của khu vực. Hình ảnh Cầu Bình Tây (xây dựng từ thế kỷ 19) là minh chứng rõ nét cho giá trị của hệ thống giao thông thủy, thể hiện khả năng kết nối hai bờ kênh đồng thời đáp ứng tốt yêu cầu về khoảng thông thủy cho hoạt động tàu thuyền tấp nập trên kênh Tàu Hủ.
Trong giai đoạn hiện nay, dù Cầu đi bộ số 7 đã được phục dựng và lồng ghép các hình ảnh lễ hội Tết truyền thống, công trình này vẫn chưa thể thay thế giá trị lịch sử, văn hóa độc đáo của Cầu Bình Tây trước đây.
(ii) Hoạt động sinh hoạt dân cư gắn liền với mặt nước: Giai đoạn trước 2010, nhiều hộ dân sinh sống ven kênh, trong các ngôi nhà mặt tiền Bến Bình Đông, lưng quay ra hẻm, mặt hướng ra sông. Trước khi đường bộ phát triển mạnh, thuyền là phương tiện đi lại chủ yếu. Đặc trưng không gian: Không gian “sống – buôn – vận chuyển” đan xen: Nhà ở, kho, điểm bán hàng và bến đỗ ghe thường kết hợp chung trong một lô đất. Hình 3, 4 và 5 cho thấy đặc trưng kiến trúc tại khu vực Bến Bình Đông, đặc biệt là khu vực cầu đi bộ, dãy nhà kho kết hợp nhà ở vẫn tồn tại đến hiện nay.
(iii) Hoạt động tiểu thủ công – kho bãi truyền thống, kho chứa hàng, xưởng mộc, xưởng cơ khí nhỏ: Trước đây, một số công trình dạng nhà kho ven sông dùng chứa gạo, nông sản, gỗ, hoặc hoạt động gia công thủ công. Từ thập niên 1980-2000, có sự chuyển đổi thành cửa hàng vật liệu xây dựng, cửa hàng nông sản.
(iv) Hoạt động văn hóa – lễ hội đặc trưng miền Nam: Chợ hoa Tết trên Bến dưới Thuyền là sự kiện thường niên lớn nhất, thu hút người dân và du khách đến mua hoa, chụp ảnh, trải nghiệm. Bên cạnh đó, khu vực này cũng hình thành không gian văn hóa cộng đồng tự phát: Các điểm tụ họp sinh hoạt nhỏ như quán nước, bàn cờ ven đường, hay các hoạt động tâm linh gần đình, miếu.
(v) Giao thông và hoạt động đô thị hiện đại (giai đoạn sau 2000): Tuyến đường Bến Bình Đông ngày nay là trục giao thông chính ở Quận 8 (trước khi sáp nhập), thường xuyên kẹt xe giờ cao điểm. Hình ảnh xe cộ đông đúc, áp lực giao thông trở thành đặc trưng không gian đô thị.
Bên cạnh đó, hình ảnh đô thị với các công trình xen cài, cải tạo tự phát, nhà ở nhiều tầng, xen lẫn công trình cũ xuống cấp, đặc trưng của quá trình đô thị hóa “chen lấn”. Một phần bờ kè đã được nâng cấp, cải tạo cảnh quan với vỉa hè, cây xanh và tuyến đường đi bộ ven kênh, từng bước hình thành không gian công cộng.

2.3.2. Hình thái kiến trúc và không gian đô thị
Trong phạm vi nghiên cứu, hình thái kiến trúc biểu hiện đặc trưng chủ yếu trên 2 trục đường chính là Bến Bình Đông (đoạn từ đường Nguyễn Văn Của đến đường Nguyễn Chế Nghĩa) và đường Nguyễn Văn Của. Thực tế trên đường Nguyễn Chế Nghĩa cũng có một số công trình có giá trị, cũng như dãy nhà cổ trên Bến Bình Đông (đoạn từ đường Nguyễn Chế Nghĩa đến đường Bùi Huy Bích) có nhiều giá trị nhưng trong khung nghiên cứu lựa chọn không bao gồm khu vực này.
Đối với hình thái kiến trúc trên 2 trục đường này, có 2 giai đoạn mang lại dấu ấn giá trị kiến trúc: Giai đoạn 1923-1950 và giai đoạn sau 2010.
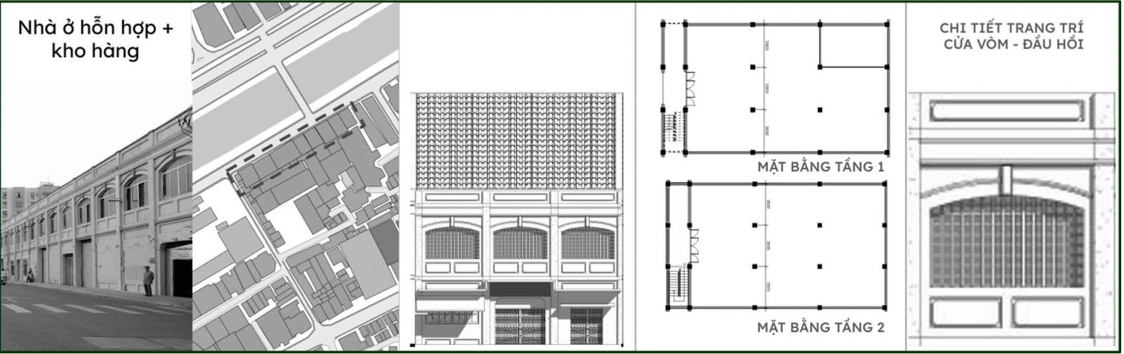
+ Giai đoạn 1923-1950, công trình kiến trúc trên mặt tiền trục đường Bến Bình Đông được phát triển mạnh mẽ. Khu vực này có đặc trưng kiến trúc bao gồm các khu vực nhà ở và dãy nhà kho gạo kết nối khu nhà máy bên kia kênh Tàu Hủ. Khu vực này do người Hoa làm chủ nhưng việc xây dựng lại, được thực hiện bởi các nhà thầu Singapore. Kiến trúc thường được xây theo dạng nhà phố với bề ngang hẹp, nhằm tăng số lượng nhà mặt tiền và nhờ đó mau chóng thu hồi vốn đầu tư xây dựng. Tầng trệt là cơ sở kinh doanh, chành, và tầng trên là nhà ở. Chi tiết trang trí lại mang ảnh hưởng phương Tây với các cây cột được xây bằng gạch, lan can gạch hoặc bằng sắt, gờ chỉ làm bằng thạch cao hoặc vôi.
Cụm công trình được xây dựng theo hình thức nhà ống đặc trưng, chiều ngang hẹp, chiều sâu kéo dài. Tầng trệt thường dùng làm nơi kinh doanh hoặc kho chứa hàng, tầng trên để ở. Mặt tiền dãy nhà kho được xây dựng theo lối kiến trúc pha trộn giữa Đông – Tây, thể hiện qua các chi tiết như phù điêu thạch cao (hoặc đắp vôi), mái ngói, cửa gỗ lá sách. Một số nhà ở riêng lẻ cũng có hình thức kiến trúc tương tự nhưng chủ yếu tầng trệt để ở, hoặc thương mại nhỏ.


Hình 4 và Hình 5 đã phân tích giá trị hình thái kiến trúc giai đoạn 1923-1950. Trong đó hình thái kiến trúc Indochina với sự kết hợp Đông – Tây thích ứng với điều kiện bản địa là một đặc trưng cho kiến trúc giai đoạn này.


Hình 6 và Hình 7 đã phân tích giá trị hình thái kiến trúc giai đoạn 1923-1950. Trong đó hình thái kiến trúc Indochina với sự kết hợp Đông – Tây thích ứng với điều kiện bản địa là một đặc trưng cho kiến trúc giai đoạn này. Mặt bằng các công trình theo kiểu nhà ống thích hợp với việc phân chia quyền sử dụng cho các hộ gia đình cũng như kết hợp với phương thức buôn bán tư nhân. Mô hình nhà kho kết hợp nhà ở cũng là sự phát triển linh hoạt, phù hợp với hình thái sông rạch và hoặc hoạt động buôn bán trên bến dưới thuyền.

Đặc trưng chi tiết kiến trúc (Hình 8) với các chi tiết kiến trúc kết hợp Đông – Tây, giữa Pháp – Hoa – Việt cũng mang lại giá trị đặc sắc cho cụm công trình trên mặt tiền Bến Bình Đông.
Hiện nay dãy nhà kho cổ có tuổi thọ hơn 100 năm đã được cải tạo chỉnh trang, mặt tiền công trình được sơn lại tạo bộ mặt đô thị khang trang hơn. Tuy nhiên các không gian trong nhà còn xuống cấp, vẫn chưa có giải pháp gia tăng giá trị sử dụng.
+ Giai đoạn sau năm 2010 với quá trình chỉnh trang đô thị, việc xây dựng cho phép hình thành các công trình nhà ở với thiết kế nghiêm túc và bài bản. Nhà ở 3-4 tầng kết hợp thương mại dịch vụ, kết cấu bê tông cốt thép chi tiết hiện đại với cửa kính, lan can sắt, mặt tiền sơn nước hoặc ốp gạch.
Các công trình kiến trúc kết hợp nhà ở và chức năng thương mại dịch vụ ở tầng trệt (hoặc tầng trệt và lầu 1). Mặc dù các công trình riêng lẻ có các giá trị nhất định về mặt sử dụng và hình thức kiến trúc, tuy nhiên các kiến trúc nhà ở này thiếu sự nhất quán trong hình dáng, chi tiết kiến trúc.
Các công trình này được xây xen kẽ với các công trình cấp 3-4 hình thành trong các giai đoạn 1950-1995 dẫn đến việc không tạo nên mặt đứng trục phố có giá trị thẩm mỹ hoặc bản sắc đô thị rõ rệt. Mặt đứng dọc trục đường Nguyễn Văn Của thể hiện sự thiếu đồng bộ về chiều cao, phong cách kiến trúc và vật liệu hoàn thiện, góp phần tạo nên cảm giác lộn xộn trong không gian đường phố. Đặc biệt, vào năm 2016, sự xuất hiện của chung cư Bình Đông Xanh (số 557 Bến Bình Đông) đã làm thay đổi hình thái kiến trúc trên trục đường Bến Bình Đông (Hình 10).


3. Các đề xuất định hướng phát triển và bảo tồn giá trị không gian kiến trúc
3.1. Gia tăng giá trị hình thái kiến trúc trên Bến Bình Đông
Đối với khu vực nhà kho và nhà ở trên trục đường Bến Bình Đông, các đánh giá đã chỉ ra rằng khu vực này sở hữu những giá trị nhất định về hình thái kiến trúc. Do vậy, việc phát huy các giá trị không gian kiến trúc tại Bến Bình Đông cần tập trung vào giữ gìn hình thái kiến trúc đặc trưng đồng thời phát triển và nâng cao giá trị sử dụng của các công trình.
Đề xuất này dựa trên trường hợp điển hình về việc cải tạo khu vực nhà kho kết hợp nhà ở, theo giải pháp bảo tồn bộ khung công trình, bao gồm giữ lại mái thép, tường gạch tróc sơn và hệ kết cấu khung dầm thép nhằm giữ gìn ký ức đô thị thời kỳ phát triển công nghiệp hóa đầu thế kỷ 20. Hình ảnh mặt đứng kiến trúc Đông Dương được thể hiện rõ qua các chi tiết như vòm cửa, lan can và diềm mái. Tuy nhiên, hiện nay việc cải tạo và chỉnh trang mới chỉ dừng lại ở việc sơn lại mặt tiền, trong khi chưa có giải pháp cụ thể nhằm khai thác và phát huy hiệu quả sử dụng của công trình.
Do vậy, đối với dãy nhà kho và nhà ở mặt tiền đường, hướng nghiên cứu phát triển giá trị hình thái kiến trúc là đề xuất việc khai thác sử dụng công trình với không gian đa dạng.
Trong giai đoạn hiện nay, việc khai thác sử dụng không gian còn được mở rộng về phía khu nhà kho phía sau trong khi khu vực này chưa có dự án khai thác và đầu tư (Hình 11). Gia tăng giá trị sử dụng bằng việc sử dụng đa năng không gian với nhiều công năng, gia tăng các không gian công cộng và bán công cộng (Hình 12) tại các công trình nhà kho kết hợp nhà ở. Có thể tích hợp quán cà phê, cửa hàng sáng tạo, hội chợ nghệ thuật, chợ nông sản tạo dòng tiền mang lại hiệu quả kinh doanh và duy trì hoạt động phi lợi nhuận và nghệ thuật.


Giải pháp không gian được cải tạo tối giản, sử dụng nghệ thuật thị giác (tranh tường, sắp đặt, triển lãm) để kéo cộng đồng quay trở lại không gian từng bị lãng quên. Việc cải tạo và sử dụng không gian bên trong công trình được kết nối với các không gian công cộng và bán công cộng trên trục đường Bến Bình Đông, kết nối toàn bộ không gian bên trong nhà với khu vực Cầu đi bộ số 7 tại khu vực hoạt động sống động.
Giải pháp không gian được đề xuất theo hướng cải tạo tối giản, kết hợp ứng dụng nghệ thuật thị giác như tranh tường, sắp đặt và triển lãm nhằm thu hút cộng đồng quay trở lại những không gian từng bị lãng quên. Việc cải tạo và tổ chức lại không gian bên trong công trình được định hướng kết nối với các không gian công cộng và bán công cộng dọc trục đường Bến Bình Đông, đồng thời mở rộng liên kết đến khu vực Cầu đi bộ số 7 nơi tập trung các hoạt động cộng đồng sôi động.
3.2. Chỉnh trang không gian kiến trúc trục đường Nguyễn Văn Của
Quá trình phát triển không gian kiến trúc dọc tuyến đường Nguyễn Văn Của chịu ảnh hưởng mạnh mẽ từ giai đoạn 1950-1995, dẫn đến tình trạng phát triển thiếu kiểm soát, phân mảnh và lộn xộn. Nhiều công trình kiến trúc mang phong cách Đông Dương, được xây dựng từ thập niên 1920, đã dần bị thay thế. Bên cạnh đó, một số nhà kho và công trình phụ trợ hiện đã xuống cấp nghiêm trọng, làm giảm giá trị cảnh quan kiến trúc khu vực.
Trong giai đoạn 1950-1995, kiến trúc khu vực phát triển một cách thiếu kiểm soát, dẫn đến tình trạng xây dựng tự phát. Các công trình nhà gạch và bê tông cốt thép cao từ 1 đến 3 tầng, mang phong cách hiện đại, được xây xen cài với các công trình kiến trúc Đông Dương từ thập niên 1920. Sự pha trộn này tạo nên mặt tiền phố lộn xộn về kiểu dáng, màu sắc và vật liệu.
Từ sau năm 1995, một số căn nhà đã được cải tạo, nâng cấp với việc ốp đá hoặc sử dụng kính cường lực, tuy nhiên vẫn thiếu sự đồng bộ về thiết kế mặt đứng, không tuân theo một định hướng quy hoạch tổng thể. Tầng trệt của nhiều ngôi nhà được chuyển đổi chức năng thành cửa hàng tạp hóa, tiệm cơ khí, sửa xe hoặc dịch vụ ăn uống. Không gian sống và kinh doanh thường đan xen trong cùng một công trình, theo mô hình shophouse truyền thống.
Một số nhà kho cũ liên quan đến hoạt động thương mại ven kênh vẫn còn hiện diện, tuy nhiên đã xuống cấp nghiêm trọng. Một phần trong số đó được cải tạo để phục vụ mục đích sử dụng mới, trong khi một số khác đang bị bỏ hoang. Những nhà kho này thường có kiểu mái ngói, kết cấu tường gạch dày và cửa sắt trượt lớn, đặc trưng cho kiến trúc nhà kho thời Pháp hoặc giai đoạn hậu thuộc địa. Hiện nay, hầu hết các công trình này đều xuống cấp nặng nề và chỉ còn lại rất ít giá trị sử dụng.
Năm 2016, Chung cư Bình Đông Xanh được xây dựng tại góc đường Bến Bình Đông và Nguyễn Văn Của, khiến không gian trục đường vốn đã lộn xộn càng mất đi đặc trưng kiến trúc của giai đoạn 1920-1950. Công trình cao tầng này có mặt đứng theo phong cách hiện đại, với các ô cửa vuông kết hợp phân vị đứng, tạo nên hình khối đồ sộ, tương phản rõ nét với đường nét hình thái truyền thống của trục đường.
Các đề xuất cho cải tạo chỉnh trang không gian kiến trúc trên trục đường Nguyễn Văn Của: Có 3 mức độ đề xuất
+ Giữ lại các công trình kiến trúc có giá trị về hình thái giai đoạn 1920-1950 (kiến trúc cổ – phong cách Đông Dương) và sau 2010 (kiến trúc hiện đại)
+ Cải tạo chỉnh trang: gồm chỉnh trang mặt tiền, hoặc cải tạo chiều cao cục bộ đối với kiến trúc giai đoạn 1995-2010
+ Thay thế và xây mới các kiến trúc kho xuống cấp không có khả năng cải tạo và sử dụng, các kiến trúc trong giai đoạn 1950-1995.
Kết quả đề xuất cải tạo chỉnh trang hình thái kiến trúc được mô phỏng như hình 13 và hình 14.


4. Kết luận
Phương pháp Hình thái học đánh giá sâu hơn các yếu tố cấu thành không gian kiến trúc và đô thị thông qua phương pháp nghiên cứu tách lớp theo bối cảnh từng giai đoạn. Kết quả phân tích hình thái học giúp nhận diện một cách đầy đủ giá trình hình thái không gian, từ đó có những giải pháp đề xuất phù hợp.
Trường hợp Khu vực Bến Bình Đông là một trong những ví dụ điển hình cho một không gian đô thị giàu giá trị lịch sử – văn hóa, hình thành và phát triển theo trục giao thương thủy từ cuối thế kỷ 19. Cấu trúc đô thị dọc kênh Tàu Hủ, hệ thống lô đất dài – hẹp và sự đan xen giữa nhà ở, nhà kho, thương mại nhỏ lẻ đã tạo nên bản sắc hình thái độc đáo.
Qua các thời kỳ, khu vực này chịu tác động mạnh mẽ của đô thị hóa nhưng vẫn lưu giữ nhiều lớp trầm tích kiến trúc quý giá. Tuy nhiên, sự xuống cấp và phát triển thiếu kiểm soát đang làm mai một bản sắc đó. Việc nghiên cứu hình thái học là cơ sở khoa học quan trọng để định hướng bảo tồn thích ứng.
Các giải pháp đề xuất của bài báo góp phần định hướng việc giữ gìn các giá trị không gian đô thị và phát triển giá trị hình thái kiến trúc một cách bền vững.
PGS.TS Lê Anh Đức, Phan Chí Dũng, Vũ Đức Nguyên – Khoa Kiến trúc, Trường Đại học Văn Lang

