Từng là một nhà máy công nghiệp nằm trong khu Poblenou thành phố Barcelona từ những năm đầu thế kỷ XX, nơi đây giờ khoác lên vẻ đẹp của thiết kế tối giản. Tổ hợp Acid House Barcelona luôn tràn ngập ánh nắng mặt trời mang dinh dưỡng nuôi lớn những khối óc sáng tạo cho từng con người, trở thành nơi lý tưởng thu hút những công ty như Vice, Nomad Coffee, Offf,…


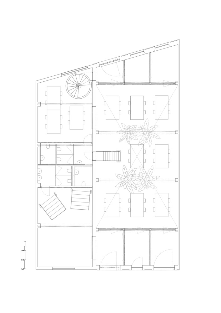
Acid House Barcelona có diện tích 500m2, gồm 2 gian nhà. Gian chính có mái dốc kép còn gian phụ có trần cao. Công ty kiến trúc Arquitectura-G đã khéo léo sắp đặt các không gian sao cho phù hợp nhất với mục đích sử dụng mà vẫn tôn trọng kết cấu nguyên bản của khu nhà. Một văn phòng ở lối đi chính, lớp học, phòng tắm, và không gian làm việc chung ở liền kề. Tầng trệt được sử dụng để đặt văn phòng, cửa sổ trưng bày sản phẩm của các cửa hàng, quán ăn và phòng họp.

Các nhà thiết kế quyết định sơn trắng tất cả mọi thứ từ tường cho tới đồ nội thất để đảm bảo tính thống nhất về trực quan. Tuy nhiên những vách kính và sàn gỗ hay thạch cao và gạch vẫn được kết hợp với nhau, thể hiện sự kế thừa và tiếp nối những giá trị kiến trúc vốn có.
Là nơi hoạt động của rất nhiều công ty và tổ chức sáng tạo, Acid House Barcelona rất cần sự linh hoạt. Những đồ nội thất như bàn, giá đỡ, cầu thang,… đều có thể dễ dàng tháo rời và di chuyển giúp mọi người có thể tùy thích sắp xếp và tận dụng không gian tối ưu nhất có thể.





Lauren Grace Morris – Ảnh: José Hevia
Biên dịch: Đức Tùng (Interior Vietnam /theo FRAME)

