Hiện nay, hệ thống Tiêu chuẩn quốc gia lĩnh vực xây dựng nói chung và thiết kế nói riêng (TCVN) đang tồn tại những hạn chế nhất định trong cách biên soạn về nội dung và hình thức trình bày, như: Nhiều tiêu chuẩn trình bày dưới dạng văn bản dài, phức tạp, khó tra cứu nhanh, ngôn ngữ mang tính kỹ thuật cao, ít hình minh họa, gây khó khăn cho người dùng.
Bên cạnh đó, tiêu chuẩn chủ yếu ở dạng văn bản PDF hoặc sách in, khó tra cứu khi cần thông tin nhanh, do chưa được sử dụng công nghệ số với việc ứng dụng các phần mềm để số hóa dữ liệu và có công cụ hỗ trợ tìm kiếm tức thì theo từ khóa. Mặt khác, mỗi quốc gia lại có hệ thống tiêu chuẩn riêng, đôi khi không đồng nhất với các tiêu chuẩn quốc tế, do đó tổ chức và cá nhân làm việc trong môi trường toàn cầu gặp nhiều khó khăn khi áp dụng tiêu chuẩn khác nhau, nhiều kiến trúc sư gặp khó khăn khi áp dụng tiêu chuẩn vào thiết kế thực tế. Nhất là hiện nay, nhiều công trình có chức năng hỗn hợp chứ không đơn chức năng sử dụng như trước đây.
Cuốn Neufert (tên đầy đủ là “Neufert Architects’ Data“) là một tài liệu tham khảo nổi tiếng trong ngành kiến trúc và xây dựng, nhưng nó không phải là một tiêu chuẩn chính thống theo định nghĩa pháp lý hoặc kỹ thuật. Thay vào đó, nó được coi là một cẩm nang hữu dụng, hướng dẫn thiết kế và là nguồn tham khảo quan trọng cho các kiến trúc sư, kỹ sư và nhà thiết kế. Vì vậy, nếu các tiêu chuẩn kiến trúc được biên soạn và trình bày một cách trực quan, có thể tra cứu nhanh trên nền tảng số và cập nhật linh hoạt theo thực tế như Neufert, chúng sẽ trở nên hữu ích và dễ áp dụng hơn rất nhiều. Đây cũng chính là ý tưởng và đề xuất nội dung của bài viết này.
1. Giới thiệu tóm tắt về vai trò của Neufert Architects’ Data – Dữ liệu thiết kế của kiến trúc sư

Dữ liệu thiết kế kiến trúc Neufert không được công nhận là tiêu chuẩn chính thức bởi các tổ chức tiêu chuẩn hóa quốc tế, châu lục hoặc quốc gia (như ISO, Eurocodes, IBC…), nó không có giá trị pháp lý bắt buộc trong thiết kế hoặc xây dựng. Tuy vậy, Neufert lại cung cấp các hướng dẫn chi tiết về kích thước, không gian và bố trí công năng trong thiết kế kiến trúc, dựa trên kinh nghiệm và nghiên cứu thực tiễn. Và vì thế, nó được sử dụng rộng rãi như một công cụ hỗ trợ thiết kế.
Nội dung chính của Neufert bao gồm: Cung cấp các thông số kỹ thuật về kích thước tối thiểu và tối ưu cho các không gian khác nhau, như phòng ở, phòng làm việc, nhà vệ sinh, cầu thang, hành lang…; Hướng dẫn cách bố trí các khu vực chức năng trong công trình để đảm bảo tính hiệu quả và tiện nghi; Cung cấp thông tin về quy hoạch đô thị, thiết kế cảnh quan và các yếu tố liên quan đến môi trường xây dựng; Đề cập đến các loại vật liệu xây dựng và phương pháp thi công phổ biến…
Với vai trò đó của Neufert, các kiến trúc sư và nhà thiết kế có thể và thường sử dụng Neufert như một nguồn tham khảo để xác định kích thước, bố trí không gian và công năng phù hợp với yêu cầu của dự án. Để từ đó, giúp đưa ra các quyết định thiết kế dựa trên các tiêu chuẩn thực tiễn và kinh nghiệm, khi không có quy định cụ thể từ phía khách hàng hoặc cơ quan quản lý. Đặc biệt, Neufert có thể được sử dụng kết hợp với các tiêu chuẩn bắt buộc (như ISO, Eurocodes, IBC, QCVN, TCVN…) để đảm bảo thiết kế đáp ứng cả yêu cầu pháp lý và tiện nghi sử dụng.
Chúng ta có thể thấy rõ sự khác biệt căn bản giữa Neufert và các Tiêu chuẩn khác từ tính pháp lý, mục đích sử dụng đến phạm vi áp dụng qua bảng 1:

Tuy nhiên, các chỉ dẫn của Neufert hết sức có giá trị, được các ngành kiến trúc và xây dựng toàn cầu sử dụng như một cẩm nang hướng dẫn chung. Thậm chí, nhiều quốc gia chưa phát triển, chưa xây dựng được các công cụ quản lý nhà nước thông qua tiêu chuẩn hoặc các công cụ hướng dẫn, chỉ dẫn về thiết kế, đều có thể nương tựa nhờ chỉ dẫn của Neufert. Đó là vì Neufert được xây dựng dựa trên sự đúc kết thực tiễn qua nhiều thời gian, lại được nghiên cứu thấu đáo thông qua thiết kế công thái học (ergonomic design) được dựa trên các nghiên cứu về nhân trắc học của con người, để hướng tới mục tiêu bảo vệ sức khỏe và sự an toàn của con người đi đôi với tăng năng suất lao động.
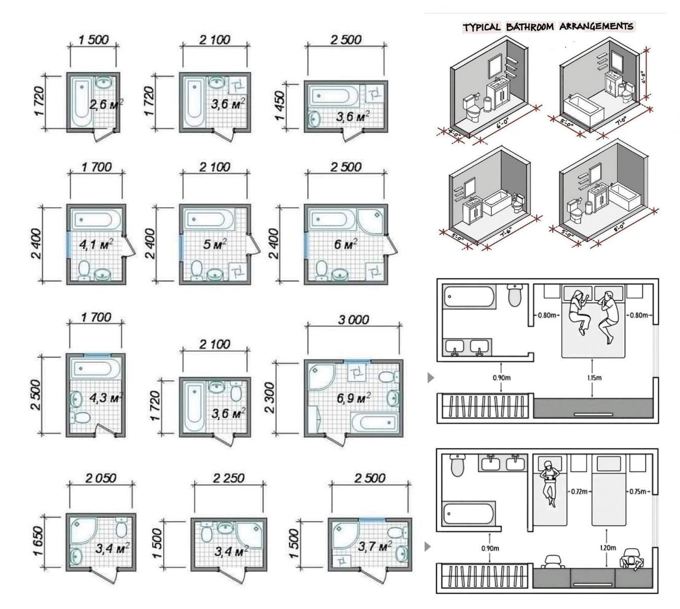
Có thể thấy rõ một số cách áp dụng Neufert vào thiết kế các công trình kiến trúc như: Với thiết kế nhà ở, Neufert cung cấp các thông số về kích thước phòng ngủ, phòng khách, nhà bếp, nhà vệ sinh, giúp kiến trúc sư thiết kế không gian sống tiện nghi và hiệu quả; Với thiết kế văn phòng, Neufert hướng dẫn cách bố trí bàn làm việc, khoảng cách giữa các phòng, và không gian lưu thông để đảm bảo hiệu quả công việc, hay với thiết kế bệnh viện, Neufert cung cấp thông tin về kích thước phòng bệnh, hành lang, khu vực y tế, giúp thiết kế đáp ứng nhu cầu sử dụng và vận hành… (Hình 1).
Như vậy, có thể khẳng định, Neufert là một tài liệu tham khảo quý giá trong ngành kiến trúc và xây dựng, nhưng nó không phải là tiêu chuẩn bắt buộc. Hiện nay, nó đang được sử dụng rộng rãi để hỗ trợ đắc lực cho thiết kế, đặc biệt trong việc xác định kích thước, bố trí không gian và công năng cho công trình.
2. Những lý do và cách thức nên biên soạn hệ thống tiêu chuẩn thiết kế theo cấu trúc của Neufert?
Có thể thấy, trong nhiều thập kỷ qua, hệ thống tiêu chuẩn kỹ thuật quốc gia lĩnh vực xây dựng (TCVN), đặc biệt là Tiêu chuẩn thiết kế đã ngày càng trở nên lỗi thời và lạc hậu. Sau đây là những lý do hạn chế trong biên soạn theo cách thức truyền thống và cách thức cũng như phương hướng mới để biên soạn tiêu chuẩn theo cấu trúc của Neufert, được trình bày tóm tắt, bao gồm những nội dung chính sau:
+ Hiện nay, nhiều tiêu chuẩn được trình bày dưới dạng văn bản dài, phức tạp, khó tra cứu nhanh. Ngôn ngữ mang tính kỹ thuật cao, nhưng lại ít hình minh họa, gây khó khăn cho người dùng. Do đó, cần hướng tới biên soạn tiêu chuẩn theo hướng trực quan và dễ tra cứu với tích hợp nhiều hình vẽ, sơ đồ minh họa giống như Neufert để trực quan hơn.
Biên soạn tiêu chuẩn theo dạng bảng biểu thay vì mô tả dài dòng.
Chia nhỏ nội dung tiêu chuẩn theo danh mục dễ tra cứu, ví dụ: Nhà ở: kích thước phòng, chiều cao trần, hành lang…; Trường học: diện tích lớp học, bàn ghế, khoảng cách giữa các hàng ghế…; Bệnh viện: giường bệnh, không gian di chuyển cáng cứu thương…
Hoặc thiết kế tài liệu theo dạng sổ tay (Handbook) giúp dễ tra cứu hơn so với tiêu chuẩn được biên soạn theo lối truyền thống.

+ Tiêu chuẩn hiện nay chủ yếu ở dạng văn bản PDF hoặc sách in, khó tra cứu khi cần thông tin nhanh. Không có công cụ hỗ trợ tìm kiếm tức thì theo từ khóa. Vì vậy, cần số hóa tiêu chuẩn và phát triển ứng dụng tra cứu thông minh trên điện thoại và máy tính giúp người dùng tìm kiếm nhanh chóng. Trên cơ sở đó, tạo lập website để tra cứu trực tuyến, với các quy trình như: nhập từ khóa và tìm ra tiêu chuẩn liên quan; hiển thị thông tin theo dạng hình ảnh và bảng số liệu trực quan; cung cấp công cụ tính toán nhanh theo tiêu chuẩn (Ví dụ: diện tích tối thiểu phòng học theo số lượng học sinh). Tiến tới, ứng dụng AI để đề xuất tiêu chuẩn phù hợp với loại công trình đang thiết kế. (Ví dụ: khi thiết kế bệnh viện, nhập từ khóa “hành lang khoa cấp cứu”, hệ thống sẽ trả về tiêu chuẩn chiều rộng tối thiểu, kèm theo hình minh họa trực quan). (Hình 2)
+ Mỗi quốc gia đều có hệ thống tiêu chuẩn riêng, vì vậy, người thiết kế làm việc trong môi trường toàn cầu sẽ gặp nhiều khó khăn khi áp dụng các tiêu chuẩn khác nhau, do chưa thể có sự tương thích nhất định với tiêu chuẩn quốc tế. Do đó, cần đồng bộ hóa tiêu chuẩn giữa các quốc gia và khu vực, trên cơ sở tạo dữ liệu chung về tiêu chuẩn xây dựng, trong đó có bảng đối chiếu giữa tiêu chuẩn quốc gia và quốc tế, cũng chính là chuẩn hóa và đơn giản hóa hệ thống tiêu chuẩn quốc gia theo hướng gần với tiêu chuẩn quốc tế để thuận lợi khi hội nhập. (Ví dụ: Eurocodes ↔ TCVN ↔ ISO). Đặc biệt, cần phát triển hệ thống tiêu chuẩn theo dạng module, với phần cốt lõi (áp dụng chung cho mọi công trình) và phần mở rộng (tùy chỉnh theo điều kiện địa phương hoặc từng dự án cụ thể). (Nội dung này đã được trình bày tại phần 1 thuộc bài viết “Cần biên soạn hệ thống Tiêu chuẩn xây dựng quốc gia theo cấu trúc module ở Việt Nam”, đã đăng trên Tạp chí kiến trúc số 06/2025). (Hình 3)

+ Một số tiêu chuẩn lạc hậu, chưa phù hợp với công nghệ mới hoặc nhu cầu thực tế, hoặc không có cơ chế phản hồi từ người dùng để cải tiến tiêu chuẩn. Do đó, cần định kỳ cập nhật tiêu chuẩn theo thực tế sử dụng. Với việc thiết lập kênh phản hồi từ kiến trúc sư, kỹ sư và nhà thầu để cập nhật tiêu chuẩn dựa trên thực tế; Thiết lập hội đồng chuyên gia rà soát tiêu chuẩn định kỳ (3 – 5 năm/lần) để điều chỉnh nội dung phù hợp và tích hợp khảo sát thực tế trong các dự án đã xây dựng để kiểm tra mức độ hiệu quả của tiêu chuẩn hiện hành.
+ Với nhiều lý do cả khách quan lẫn chủ quan, rất nhiều kiến trúc sư trẻ gặp khó khăn khi áp dụng tiêu chuẩn vào thiết kế thực tế. Do đó, nên xây dựng tài liệu hướng dẫn tiêu chuẩn theo dạng Case Study (nghiên cứu trường hợp), với việc cung cấp tài liệu hướng dẫn theo từng loại công trình, có thể bao gồm: tiêu chuẩn áp dụng, ví dụ thiết kế thực tế và phân tích ưu nhược điểm khi áp dụng tiêu chuẩn. Bên cạnh đó, cần tổ chức các khóa đào tạo và tập huấn về tiêu chuẩn xây dựng, đặc biệt cho sinh viên kiến trúc và kỹ sư mới ra trường.
3. Một số giải pháp chính trong biên soạn tiêu chuẩn thiết kế theo hướng ứng dụng công nghệ số để dễ sử dụng như Neufert
Trong giai đoạn hiện nay, chúng ta đang triển khai thực hiện và cụ thể hóa Nghị quyết số 57-NQ/TW ngày 22/12/2024 và Nghị quyết số 59-NQ/TW ngày 24/01/2025 của Bộ Chính trị về “Đột phá phát triển khoa học công nghệ, đổi mới sáng tạo và chuyển đổi số quốc gia” và “Hội nhập quốc tế trong tình hình mới”. Vì vậy, để hệ thống tiêu chuẩn xây dựng có tính ứng dụng cao và dễ sử dụng như cuốn Neufert, chúng ta cần xem xét những yếu tố làm nên sự thành công của Neufert và áp dụng chúng vào việc phát triển và trình bày các tiêu chuẩn. Dưới đây là một số giải pháp chính để hệ thống tiêu chuẩn xây dựng có thể đạt được tính ứng dụng cao và dễ sử dụng tương tự như Neufert:
3.1. Tập trung vào tính trực quan và đồ họa
Tăng cường sử dụng hình ảnh, sơ đồ, bản vẽ: thay vì chỉ trình bày dưới dạng văn bản thuần túy, tiêu chuẩn nên tích hợp nhiều hình ảnh minh họa, sơ đồ nguyên lý, bản vẽ kỹ thuật, biểu đồ so sánh và các dạng đồ họa khác… Neufert thành công lớn nhờ vào việc sử dụng dày đặc hình ảnh trực quan, giúp người dùng nhanh chóng nắm bắt thông tin và hình dung ứng dụng thực tế. Ví dụ: thay vì chỉ mô tả bằng lời về kích thước và khoảng cách tối thiểu cho không gian vệ sinh tiếp cận, tiêu chuẩn nên kèm theo bản vẽ 2D và 3D minh họa rõ ràng, có ghi chú kích thước chi tiết. (Hình 4)

Sử dụng đồng bộ mã màu, biểu tượng và ký hiệu: áp dụng hệ thống mã màu nhất quán, biểu tượng trực quan và ký hiệu dễ hiểu để phân loại thông tin, đánh dấu các điểm quan trọng, giúp người dùng dễ dàng định hướng trong tài liệu. Ví dụ: sử dụng màu xanh lá cây cho các yêu cầu về môi trường, màu đỏ cho an toàn cháy, biểu tượng hình người khuyết tật cho các quy định về tiếp cận… (Hình 5)

Thiết kế giao diện trực quan cho phiên bản số: nếu tiêu chuẩn được phát hành dưới dạng số (website, phần mềm, ứng dụng), giao diện cần được thiết kế thân thiện, trực quan, dễ điều hướng và có khả năng tùy biến hiển thị. Ví dụ: giao diện website tiêu chuẩn nên có thanh tìm kiếm mạnh mẽ, bộ lọc theo lĩnh vực, loại công trình, từ khóa và khả năng xem trước nội dung bằng hình ảnh thu nhỏ.
3.2. Đảm bảo tính thực tiễn và hướng dẫn ứng dụng
Tập trung vào các thông tin thiết kế thực tế: tiêu chuẩn nên tập trung vào cung cấp thông tin và dữ liệu trực tiếp hữu ích cho quá trình thiết kế, thay vì chỉ là các quy định pháp lý thuần túy. Neufert thành công vì nó cung cấp dữ liệu nhân trắc học, kích thước không gian chức năng, thông số kỹ thuật vật liệu và các thông tin thiết kế cốt lõi. (Hình 6). Ví dụ: tiêu chuẩn về thiết kế trường học không chỉ quy định diện tích tối thiểu cho lớp học, mà còn cung cấp các sơ đồ bố trí bàn ghế, gợi ý về ánh sáng tự nhiên, thông gió và các yếu tố học đường khác.

Cung cấp ví dụ minh họa và case study: đi kèm với các quy định tiêu chuẩn, nên có các ví dụ minh họa cụ thể, các case study điển hình và các giải pháp thiết kế mẫu, giúp người dùng hiểu rõ cách áp dụng tiêu chuẩn vào thực tế. Ví dụ: tiêu chuẩn về tiết kiệm năng lượng nên có các ví dụ về công trình thực tế đã áp dụng thành công các giải pháp thiết kế thụ động và chủ động, kèm theo phân tích hiệu quả năng lượng đạt được.
Tạo ra các công cụ hỗ trợ ứng dụng tiêu chuẩn: phát triển các công cụ, phần mềm, hoặc ứng dụng hỗ trợ người dùng tra cứu, tính toán và áp dụng tiêu chuẩn một cách dễ dàng, nhanh chóng. Ví dụ: phần mềm tính toán hệ số truyền nhiệt vách, công cụ kiểm tra sự phù hợp với quy chuẩn về phòng cháy, ứng dụng tra cứu nhanh các thông số kỹ thuật vật liệu.
3.3. Tổ chức và cấu trúc thông tin rõ ràng, dễ tra cứu
Phân loại và cấu trúc logic: tiêu chuẩn cần được tổ chức theo cấu trúc logic, phân loại rõ ràng theo lĩnh vực, loại công trình, giai đoạn thiết kế, hoặc các tiêu chí khác… Neufert được đánh giá cao về cấu trúc phân mục rõ ràng, giúp người dùng nhanh chóng tìm đến thông tin cần thiết. Ví dụ: Phân chia tiêu chuẩn theo các lĩnh vực chính như: Kiến trúc, Kết cấu, Điện, Nước, PCCC, Môi trường…, sau đó lại chia nhỏ theo loại công trình (nhà ở, văn phòng, trường học, bệnh viện…) và các yếu tố thiết kế kỹ thuật (mặt bằng, mặt đứng, chi tiết cấu tạo, vật liệu…). Thực hiện được phân loại và cấu trúc này, cũng dẫn tới có thể chủ động lập các thiết kế điển hình hoặc các thiết kế mẫu cho các thể loại công trình khi chưa có tiêu chuẩn thiết kế hoặc cần có tiêu chuẩn thiết kế đặc thù và riêng biệt (Ví dụ khi đã có rất nhiều các tiêu chuẩn thiết kế về nhà ở như nhà ở thấp tầng riêng lẻ, căn hộ chung cư, nhà ở chung cư… thì việc triển khai thiết kế điển hình nhà ở xã hội là hoàn toàn có cơ sở và khả thi, mặc dù chưa có tiêu chuẩn thiết kế cho đối tượng này). (Hình 7)

Chỉ mục chi tiết và hệ thống tìm kiếm hiệu quả: xây dựng chỉ mục chi tiết (index) ở cuối tài liệu và trang bị hệ thống tìm kiếm mạnh mẽ (nếu là phiên bản số) để người dùng dễ dàng tra cứu theo từ khóa, chủ đề, hoặc mã số tiêu chuẩn. Ví dụ: chỉ mục có thể bao gồm cả thuật ngữ chuyên ngành, tên các loại cấu kiện, vật liệu, không gian chức năng và các chủ đề thiết kế quan trọng.
Liên kết nội bộ và liên kết tham chiếu: sử dụng siêu liên kết nội bộ (hyperlink) trong phiên bản số để kết nối các phần liên quan với nhau trong tài liệu. Đồng thời, cung cấp các liên kết tham chiếu đến các tiêu chuẩn, quy định và tài liệu khác có liên quan.
3.4. Ngôn ngữ trình bày dễ hiểu và nhất quán
Sử dụng ngôn ngữ đơn giản, rõ ràng, tránh thuật ngữ chuyên môn khó hiểu: tiêu chuẩn cần được viết bằng ngôn ngữ phổ thông, dễ hiểu, tránh sử dụng quá nhiều thuật ngữ chuyên ngành hoặc ngôn ngữ pháp lý phức tạp. Khi cần sử dụng thuật ngữ chuyên môn, cần giải thích rõ ràng. Ví dụ: thay vì viết “Đảm bảo hệ số truyền nhiệt U của lớp vỏ công trình tuân thủ yêu cầu về hiệu suất năng lượng,” có thể viết “Vỏ và mái nhà cần được thiết kế để giữ nhiệt tốt, đảm bảo chỉ số cách nhiệt đạt mức quy định (xem Bảng…). Điều này giúp tiết kiệm năng lượng cho việc sưởi ấm và làm mát”.
Đảm bảo tính nhất quán trong thuật ngữ và ký hiệu: sử dụng thuật ngữ và ký hiệu một cách nhất quán trong toàn bộ tài liệu để tránh gây nhầm lẫn cho người dùng. Xây dựng bảng chú giải thuật ngữ và ký hiệu ở đầu tài liệu để người dùng dễ dàng tham khảo.
Cấu trúc câu và đoạn văn mạch lạc, dễ đọc: trình bày thông tin theo cấu trúc câu và đoạn văn ngắn gọn, mạch lạc, dễ đọc, tránh các câu văn quá dài và phức tạp. Sử dụng gạch đầu dòng, đánh số thứ tự để phân chia ý và làm nổi bật thông tin quan trọng.
3.5. Cập nhật thường xuyên và thu thập phản hồi người dùng
Thiết lập quy trình cập nhật định kỳ: tiêu chuẩn cần được xem xét và cập nhật định kỳ để phản ánh những tiến bộ khoa học kỹ thuật, thay đổi trong thực tiễn xây dựng và các yêu cầu mới của xã hội. Quy trình cập nhật nên rõ ràng, minh bạch và có sự tham gia của các chuyên gia và người dùng.
Thu thập và phản hồi ý kiến người dùng: thiết lập cơ chế thu thập phản hồi từ người dùng (kiến trúc sư, kỹ sư, nhà thầu, sinh viên…) về tính ứng dụng, độ dễ sử dụng và những điểm cần cải thiện của tiêu chuẩn. Phản hồi này cần được xem xét nghiêm túc trong quá trình cập nhật và phát triển tiêu chuẩn. Có thể tổ chức các khảo sát trực tuyến, hội thảo, hoặc diễn đàn để thu thập ý kiến người dùng.
4. Kết luận
Tóm lại, để hệ thống tiêu chuẩn ngành xây dựng, đặc biệt là tiêu chuẩn thiết kế trở nên hữu ích và dễ sử dụng như Neufert – cần có sự chuyển đổi từ cách tiếp cận truyền thống (chủ yếu dựa trên văn bản pháp lý) sang cách tiếp cận lấy người dùng làm trung tâm, tăng cường tính trực quan, tập trung vào thực tiễn thiết kế và đảm bảo cấu trúc thông tin rõ ràng, dễ tra cứu. Sự kết hợp giữa nội dung tiêu chuẩn chất lượng cao và hình thức trình bày thân thiện, dễ tiếp cận sẽ giúp tiêu chuẩn trở thành công cụ đắc lực cho mọi chủ thể và đối tượng trong ngành Xây dựng. Đây chính là cách tiếp cận và chủ động biên soạn, xây dựng hệ thống tiêu chuẩn xây dựng theo hướng sáng tạo và ứng dụng công nghệ số. Đồng thời, cũng chính là góp phần tạo dựng một trong ba yếu tố chính để làm nên định hướng phát triển nền kiến trúc Việt Nam: Phù hợp với điều kiện tự nhiên, phát huy và kế thừa văn hóa bản địa cùng khai thác công nghệ của thời đại kỷ nguyên số.
TS.KTS Nguyễn Tất Thắng – Nghiên cứu viên cao cấp, Viện Kiến trúc Quốc gia, Bộ Xây dựng

