Bước sang thế kỷ 21 tư tưởng của kiến trúc muốn phản ánh tính xã hội nhiều hơn tính thẩm mỹ. Trải qua thế kỷ 20 với đủ các loại trường phái ở từng thời kỳ khác nhau, hiện nay các kiến trúc sư không muốn bị phụ thuộc bởi một lý tưởng do một “dòng” kiến trúc đặt ra mà hoàn toàn tự do thể hiện với những nhìn nhận mang tính toàn cầu. Nhưng dù gì đi nữa thì kiến trúc vẫn luôn là những “hình ảnh” bộc lộ rất nhiều điều. Và công việc của người kiến trúc sư vẫn là công việc của những người đi tìm “hình ảnh”.

Ảnh chụp một con phố ở Tokyo, hình ảnh của một mạng mạch điện tử khổng lồ.
Như chúng ta đã biết, khi nhìn vào kiến trúc của một nước ta có thể thấy được “hình ảnh” phản chiếu bộ mặt xã hội cũng như nét văn hoá của dân tộc nước đó. Ở đầu thế kỷ 20, phong trào kiến trúc hiện đại ở châu Âu trên tư tưởng hình thái phải phụ thuộc vào công năng, sự sử dụng các vật liệu công nghiệp sản xuất hàng loạt đã mang tới cho kiến trúc một cách thể hiện mới và khẳng định “hình ảnh” của một nền công nghiệp mới. Cuối những năm 1990 sự bùng nổ xây dựng nhà ở tư nhân trong các thành phố lớn của nước ta với phong trào kiến trúc Pháp cổ, đó là sự mong muốn tái tạo “hình ảnh” của một sự hoài niệm đã qua. Điều nguy hiểm là hình ảnh này được lấy rập khuôn theo tính hình thức nên đã trở thành một hình ảnh coppy, cái phải tránh đầu tiên khi thiết kế kiến trúc.
Đó là những phạm trù về hình ảnh mang ý nghĩa trừu tượng hay nói đúng hơn mang nghĩa bóng, vậy thì nghĩa đen của hình ảnh, cái được cảm nhận bằng giác quan được thể hiện thế nào trong kiến trúc. Đó là chủ đề mà bài viết này muốn đề cập tới.
Đầu tiên phải nói tới hình ảnh mang tính hình tượng. Kiến trúc hình tượng hay biểu tượng thì không ở đâu hết mà chính ở châu Á là nơi được sử dụng thường xuyên nhất, đặc biệt ở Trung Quốc và nước ta. Đó là nét văn hoá mà ngay cả chữ viết cũng bắt nguồn từ tính tượng hình. Kiểu thể hiện này còn bị ảnh hưởng sâu đậm một lần nữa bởi tư tưởng chính trị xã hội chủ nghĩa. Điều đó phải kể đến trường phái nghệ thuật “constructivism” xuất hiện ở Nga đầu thế kỷ 20. Dựa trên cơ sở của trường phái “cubism” (lập thể) nền hội hoạ của “constructivism” mang tư tưởng trừu tượng và luôn được tổ hợp bởi các thể hình học cơ bản như hình tròn, hình chữ nhật và các đường thẳng. Xuất hiện cùng với thời kỳ của cuộc “Cách mạng tháng 10” năm 1917 nên trường phái này được sử dụng nhiều cho mục đích chính trị. Bản thân phạm trù “constructivism” đến từ “construction” có nghĩa là xây dựng, từ được sử dụng rất nhiều ở thời kỳ này với mục đích mong muốn xây dựng một xã hội mới.
![]() Đồ án cho Pavillon của Liên Xô (KTS El Lissitzky) nhân dịp Triển lãm quốc tế về báo chí tại thành phố Cologne nước Đức năm 1928. Mô hình được làm lại năm 2010 bởi sinh viên kiến trúc năm thứ 5 trường University of Western Australia trong khuôn khổ nghiên cứu kiến trúc “constructivism” của Liên Xô đầu thế kỷ 20. Trường phái “constructivism” là trường phái nghệ thuật hiện đại duy nhất có được ở nước Nga. Nó là cơ sở cho sự phát triển của rất nhiều các trường phái nghệ thuật sau này. Nhưng điều đáng tiếc là những sự phát triển đó đều nằm ngoài nước Nga. Với nhiều thập kỷ chìm đắm trong chiến tranh lạnh, nước Nga đã đóng cửa và quay lưng lại với những nước văn minh khác, vì vậy mà các ngành nghệ thuật hầu như không phát triển được nữa. |
Khoảng từ năm 1920 – 1930 trường phái “constructivism” ảnh hưởng trực tiếp tới kiến trúc và đã có nhiều công trình cụ thể được xây dựng. Để biểu dương sức mạnh của một thể chế chính trị mới, những công trình kiến trúc thường được gắn thêm những biểu tượng mang nặng tính tuyên truyền và cổ động. Nhiều khi biểu tượng “búa và lưỡi liềm” và từ USSR (Liên Xô cũ) trở thành phần tử tổ hợp quan trọng của mặt tiền.
Hình ảnh về tuyên truyền và cổ động được sử dụng trong tất cả các nước xã hội chủ nghĩa và chính bản thân nó đã trở thành một trường phái nghệ thuật riêng biệt. Hình ảnh của kiến trúc được sử dụng trong những bức tranh này đều là hình ảnh của những nhà máy, với ý tưởng mong muốn đẩy mạnh nền công nghiệp nhưng mục đích chính vẫn là tán dương hình ảnh của người công nhân, những người sẽ nắm vận mệnh của đất nước.
Sự sử dụng hình ảnh gắn trực tiếp vào công trình cũng đã là đề tài nghiên cứu của trường Bauhaus tại Đức (trường nghệ thuật hiện đại đầu tiên ở châu Âu). Đồ án cho Quán bán báo do một sinh viên thiết kế năm 1924 được coi như sự tổ hợp của ba ngành: kiến trúc, điêu khắc và đồ hoạ. Những bức tường được vẽ kín chữ và báo có tỷ lệ quan trọng trong công trình và chính bản thân những chữ và hình báo này được coi như vật liệu của những bức tường.
![]() Tranh cổ động của Trung Quốc năm 1953. Hình ảnh của kiến trúc luôn là hình ảnh của các nhà máy. Ý tưởng của bức tranh mốn nói tới sự đấu tranh cho nền công nghiệp trong khi học tập những phương pháp sản xuất hiện đại của Liên Xô. Người công nhân Trung Quốc được vẽ nhỏ bé hơn, lắng nghe kỹ sư của Liên Xô rất chăm chú. Hình ảnh này mấy năm sau đó bị loại bỏ khi Trung Quốc tự đi con đường riêng của mình tiến tới chủ nghĩa xã hội. |
![]() Đồ án Quán bán báo của sinh viên trường Bauhaus năm 1924. |
Còn một khía cạnh khác của hình ảnh cũng đáng phải nêu ra. Đó là vai trò của hình ảnh trong xã hội hiện nay. Chúng ta đang sống trong thế kỷ của hình ảnh, cứ thử quan sát xung quanh chúng ta từ trong nhà ra đến ngoài đường sẽ thấy đủ mọi hình ảnh tràn ngập. Đã có quá nhiều các loại báo và tạp chí xuất bản hàng ngày, các biển quảng cáo thì quá cỡ phủ kín đường phố, việc sử dụng thái quá tivi với càng ngày càng thêm nhiều kênh truyền hình và đặc biệt với internet hiện nay ta có thể tìm được nhiều thể loại hình ảnh mà thế kỷ trước vẫn còn cấm đoán. Chúng ta thực sự đã bão hoà với hình ảnh. Cái gì khi vượt quá giới hạn đều có mặt xấu của nó. Các công ty quảng cáo đã tuyển mộ những chuyên viên nghiên cứu tâm lý con người thông qua việc cảm nhận về hình ảnh để đưa ra các giải pháp lôi cuốn thị giác tạo mục đích bán được hàng nhiều hơn. Điều nghiêm trọng hơn nữa là đã nảy sinh các tổ chức tội phạm tình dục trên internet dùng các hình ảnh để phỉnh dụ các trẻ vị thành niên. Việc kiểm soát hình ảnh thực sự trở thành một dạng chống thuốc phiện của thế kỷ 21.
Sự phát triển nở rộ của hình ảnh bắt đầu từ thập niên 80 ở thế kỷ trước tại Nhật Bản, đất nước của tivi, video và máy ảnh. Như chúng ta đã biết ở thập kỷ này Nhật Bản là nước đứng đầu thế giới về hàng điện tử. Sự tác động của mặt hàng này vào kiến trúc và đô thị rất rõ nét. Những tấm biển điện tử dùng cho quảng cáo phủ kín đường phố tạo nên một diện mạo rất đặc biệt cho các thành phố Nhật Bản. Không gian đô thị trở thành một mạng mạch điện tử khổng lồ, tạo cho chúng ta cảm giác như sống trong một thế giới ảo. Phạm trù về “thế giới ảo” không còn gì là lạ lẫm nữa, với mức độ chơi game và sự sử dụng internet như hiện nay thì thực sự nhiều khi chúng ta không biết đang sống ở thế giới nào nữa.
Việc ứng dụng hình ảnh vào kiến trúc vẫn luôn là một đề tài hấp dẫn đối với các nhà thiết kế. Ngày nay với sự trợ giúp của khoa học kỹ thuật đã sáng tạo ra những công trình thật bất ngờ và ấn tượng. Khi nói đến kiến trúc không thể không nhắc tới ánh sáng, một số công trình giới thiệu sau đây được tạo ra hay hoàn thiện hơn bởi ánh sáng nhân tạo, một phần tử mà hiện nay không chỉ còn có mỗi mục đích chiếu sáng. Những công trình từ công đến tư đều muốn đem lại những giá trị mới cho không gian đô thị và tất nhiên phục vụ cho từng cá thể hay cộng đồng một cuộc sống tốt đẹp hơn.
“Led action façade”, 2009, Madrid, Tây Ban Nha
Văn phòng kiến trúc: Langarita Navarro Arquitectos, ảnh: Miguel De Guzman
Sáng tạo và tổ chức các không gian công cộng trong thành phố là một trong những công việc quan trọng bậc nhất của sự phát triển đô thị. Nó không chỉ còn là sự mong muốn tự phát ở từng cụm dân cư mà đã trở thành chủ trương chính trị của nhiều quốc gia trên thế giới. Đây là sự thách thức rất lớn ở các nước đang phát triển. Sống trong thành phố không thể thiếu những khoảng không này. Hiện nay bệnh tự kỷ đã bắt đầu xuất hiện ở nhiều trẻ em, cuộc sống cá nhân hoá cũng đã bắt đầu thấm sâu vào lối sống mới, đó cũng là lý do giải thích sự thiếu vắng những không gian dành cho cộng đồng ở các thành phố lớn nước ta.
Không nên nghĩ không gian công cộng là một cái gì đó to lớn, nhiều khi chỉ là những khoảng sân nhỏ hay một cái ghế băng được đặt đúng chỗ là đã có thể tạo được nhịp cầu nối tình làng nghĩa xóm. Ngày nay khi thiết kế các công trình kiến trúc công cộng như bảo tàng, nhà hát, thư viện hay trường học thì cấu trúc không gian tầng một luôn được dành cho không gian đô thị là chủ yếu. Chúng hoàn toàn mở rộng để đón chào tất cả mọi người và cũng là nơi để gặp gỡ và vui chơi.




Mặt tiền điện tử được gắn vào mặt bên của ngôi nhà hướng trọng tâm vào không gian công cộng Plaza de las Letras. Nó đã đem lại một tính chất riêng cho không gian nơi đây và đặc biệt nó là nhịp cầu nối giữa những người dân sống trong khu vực cũng như những khách bộ hành đi qua.

Với cấu trúc không gian khép kín ta vẫn tìm được sự yên tĩnh ở một không gian công cộng.
Led action façade là mặt tiền điện tử ở không gian công cộng Plaza de las Letra được thiết kế xuất phát từ lời yêu cầu của ban tổ chức nghệ thuật thành phố Madrid tới trung tâm Medialab-Prado (trung tâm chuyên nghiên cứu nghệ thuật từ những ứng dụng khoa học kỹ thuật mới). Sau đó văn phòng kiến trúc Langarita Navarro Arquitectos được chọn để thực hiện công trình này.
Đây là ý tưởng rất đáng được hoan nghênh cho thành phố Madrid khi đã loại bỏ những tấm biển quảng cáo để thay vào đó là những tác phẩm nghệ thuật đem lại giá trị văn hoá cho người dân. Mặt tiền điện tử được gắn vào mặt bên của ngôi nhà hướng trọng tâm vào không gian công cộng Plaza de las Letras. Nó có diện tích 144m2 và được cấu tạo bởi một hệ thống đèn LED (loại đèn sử dụng rất ít năng lượng). Nó như một bức tranh khổng lồ với những hình ảnh được thay đổi theo chương trình định trước. Nó đã đem lại một tính chất riêng cho không gian nơi đây và đặc biệt nó là nhịp cầu nối giữa những người dân sống trong khu vực cũng như những khách bộ hành đi qua.
Sự tổ hợp của những đèn LED có thể đặt theo những thể hình học tự do nên đã giữ được dạng hình chóp của mặt bên ngôi nhà, do vậy không phá vỡ đi cấu trúc của không gian ban đầu. Ban ngày khi không chiếu sáng, ánh nắng mặt trời chiếu vào đây tạo nên một mặt phẳng “động” có chiều sâu khác hẳn cảm giác nặng nề của bức tường cũ.
Nói thêm về không gian công cộng Plaza de las Letras, nó có diện tích không lớn và được cấu trúc bởi hai tầng. Tầng trên được sử dụng cho giao thông đi lại là chính, tầng ngầm ở dưới được cấu tạo như một khoảng sân khép kín đem đến sự yên tĩnh hơn. Đây là một kiểu cấu trúc không gian công cộng khá phổ biến ở nhiều nước châu Âu. Khi trên mặt đất không còn chỗ để xây dựng nữa thì các không gian dưới lòng đất bắt đầu được khai thác. Mặt sàn đi lại ở tầng trên cũng chính là mái của các cửa hàng, quán uống nước hay xưởng thủ công ở tầng ngầm phía dưới. Mối liên hệ giữa trong và ngoài, giữa trên và dưới đem lại chất lượng cho không gian khá linh hoạt.
Bản vẽ dưới Không gian công cộng Plaza de las Letras được cấu trúc bởi hai tầng. Tầng trên được sử dụng cho giao thông đi lại là chính, tầng ngầm ở dưới được cấu tạo như một khoảng sân khép kín đem đến sự yên tĩnh hơn.
“BOOM-Box”, 2008 – “Perspective lyrique”, 2010, Lyon, Pháp
Văn phòng kiến trúc: 1024 Architecture, ảnh: 1024 Architecture
Khi nói đến hình ảnh không thể không nhắc tới âm thanh. Mấy năm trở lại đây một kiểu thể hiện hình ảnh mới trong không gian như “VJing” và “mapping” được kết hợp tương tác đồng thời với âm thanh. Ý tưởng ban đầu đến từ thể loại âm nhạc mới Dj (một kiểu nhạc điện tử được hoà trộn bởi các bản nhạc khác nhau và chỉ có một người chơi). Song song với nhạc sĩ Dj, nghệ sĩ Vj cũng sáng tác ra những hình ảnh rất ngẫu hứng tuỳ thuộc vào âm thanh phát ra. Thông thường họ chỉ cần một máy tính, chương trình phần mềm, máy quay phim và máy chiếu hình.
Gần đây kiểu thể hiện này đã được phát triển rộng rãi và đã trở thành một loại hình nghệ thuật riêng biệt. Nhiều hoạ sĩ lấy đây là chủ đề chính trong công việc sáng tác của mình. Hàng năm nhiều thành phố trên thế giới đã tổ chức các lễ hội festival để trình bày những tác phẩm mới với những ý tưởng luôn gây ấn tượng hơn. Hiện nay tính ứng dụng của nó cho kiến trúc thật đáng bất ngờ, đặc biệt dành cho những công trình mang tính sự kiện ở những không gian công cộng. Nhiều công trình nội thất cũng đã được ứng dụng khi những mảng tường cố định được biến thành những bức tranh khổng lồ luôn thay đổi một cách sống động tạo cho chúng ta những cảm xúc khác nhau. Nó thực sự đã trở thành một loại hình thể hiện tạo ra mối liên hệ trực tiếp giữa kiến trúc và nghệ thuật.
Có thể nói văn phòng kiến trúc 1024 Architecture tại Paris đi đầu về cách thể hiện này. Ý tưởng của họ luôn muốn tìm một lời đối thoại giữa một không gian “mộc” với thế giới hình ảnh. Họ luôn muốn tạo ra một kiểu trình diễn sống động, cái sẽ mang đến cho các công trình xây dựng khô cứng và nặng nề một cảm nhận khác và mới lạ. Nhiều khi họ cũng tạo ra những khối kiến trúc có kết cấu nhẹ, sắp đặt tại hiện trường và có hạn sử dụng ngắn. Những công trình mang tính tạm thời sẽ hoà nhịp và gần gũi với người dân hơn. Và tất nhiên chúng tạo ra những cảm xúc mới ở các không gian công cộng, cái sẽ mang đến những giá trị tinh thần mới cho cuộc sống của người dân.


Công trình BOOM-Box, trên cùng một mặt phẳng nhưng các hình ảnh đã đưa chúng ta vào trong thế giới của không gian ba chiều.




Công trình BOOM-Box được thiết kế năm 2008 và đã được dàn dựng ở nhiều thành phố trên thế giới. BOOM-Box là sân khấu cho nhạc sĩ Dj, nó được thiết kế theo hình tượng của một máy nghe nhạc mà vị trí đứng của nhạc sĩ Dj chính là vị trí của băng cassette. Nó được tổ hợp bởi một hệ giàn giáo với 16m chiều rộng và 8m chiều cao. Khi hai giác quan thính giác và thị giác được hoạt động đồng thời bởi sự hoà trộn rất kích thích giữa hình ảnh và âm thanh sẽ đưa chúng ra như bay vào một thế giới huyền ảo.
Công trình Perspective lyrique được thiết kế năm 2010 nhân ngày lễ hội về ánh sáng tại thành phố Lyon của Pháp. Một lần nữa kiểu thể hiện hình ảnh này chứng tỏ sự đa dạng về tính ứng dụng cho các thể loại công trình khác nhau. Khác với công trình BOOM-Box là người nghệ sĩ chơi ngẫu hứng cùng với âm nhạc, công trình Perspective lyrique được lập trình từ trước để có sự tác động trực tiếp của người dân đến xem. Chương trình được tổ hợp nối liền giữa máy phóng ảnh và một micro đặt ở quảng trường. Mặt tiền của nhà hát Célestin bị biến dạng đi khi ai đó nói hoặc hát vào micro. Hình ảnh sẽ biến dạng theo nhiều kiểu khác nhau tuỳ thuộc vào mức độ âm thanh của người nói phát ra. Các hình vẽ được tính toán vừa để chỉ rõ cấu trúc mặt tiền của nhà hát nhưng đồng thời cũng vui đùa với nó đem đến những khoảnh khắc thú vị của cuộc sống.
Những kiểu thể hiện hình ảnh này không thể hoàn thiện nếu thiếu vắng âm thanh, www.1024architecture.net là địa chỉ internet của văn phòng 1024 Architecture sẽ giúp chúng ta khám phá được hết những tinh tế của các tác phẩm.




Công trình Perspective lyrique, nghệ thuật hình ảnh được ứng dụng cho không gian công cộng. Những công trình mang tính tạm thời sẽ hoà nhịp và gần gũi với người dân hơn. Và tất nhiên chúng tạo ra những cảm xúc mới ở các không gian công cộng, cái sẽ mang đến những giá trị tinh thần mới cho cuộc sống của người dân.
Hotel Arc del Teatre, 2010, Barcelona, Tây Ban Nha
Văn phòng kiến trúc Equip Xavier Claramunt, ảnh: Adrià Goula
Bỏ qua các khái niệm truyền thống về thể thức và tỷ lệ, mặt tiền của một công trình kiến trúc có thể được hiểu đơn giản như một bức tranh hai chiều, một hình ảnh bất kỳ nào đó mà có thể thay đổi dễ dàng khi mong muốn, đó là trường hợp mặt tiền của khách sạn Arc del Teatre tại thành phố Barcelona.
Cùng ý tưởng như đồ án Quán bán báo của sinh viên trường Bauhaus năm 1924, nhưng mặt tiền của khách sạn Arc del Teatre được làm bằng những tấm vải bạt trong mờ mà trên đó được in những hình vẽ theo kiểu truyện tranh thiếu nhi. Với việc sử dụng vật liệu như vậy nên khi có sự tác động của ánh sáng đã mang lại cho công trình một hình thái luôn thay đổi theo thời gian trong ngày. Ban ngày khi ánh sáng tự nhiên chiếu xuyên qua mặt tiền thì một phần của hình vẽ biến thành một bức tranh trừu tượng chiếu vào từng phòng nghỉ. Khi buổi tối đến, ánh sáng nhân tạo ở các không gian bên trong hắt ra phía ngoài làm cho bức tranh tổng thể trở nên rất sinh động, những hình vẽ như đang di chuyển.
Khách sạn Arc del Teatre nằm trong khu vực El Raval là nơi có bề dày lịch sử và mật độ xây dựng rất dày đặc. Nó được xây trên nền của một nhà hát cũ nên ý tưởng bảo tồn mặt tiền của nhà hát này đã được lấy làm trọng tâm của đồ án. Một phần chính của mặt tiền được tổ hợp bởi ba lớp, lớp trong cùng bằng kính, tiếp theo là mặt tiền bằng đá của nhà hát cũ và lớp ngoài cùng là bức tranh bằng vải bạt. Sự tổ hợp nhiều lớp bởi những vật liệu cũ và mới tạo ra sự đối trọng giữa cố định và tạm thời, giữa quá khứ và hiện tại. Với hình thái và vị trí của nó trong khu vực, khách sạn trở thành một điểm nhấn, đúng nghĩa với chức năng sử dụng của công trình.
Ngoài ra cũng phải kể đến sự tổ chức không gian bên trong cũng rất thành công. Hai tầng ngầm dành cho các khu sinh hoạt chung được khai thác ánh sáng từ những giếng trời. Tầng một mở thông liền với đô thị, phòng tắm ở các phòng nghỉ được đặt về phía mặt tiền. Tất cả tạo ra những âm hưởng mới trong không gian gây nên những cảm giác thật bất ngờ cho những khách nghỉ tại đây.

Mặt tiền của khách sạn Arc del Teatre đã biến công trình thành điểm nhấn của khu vực.



Mặt tiền của nhà hát cũ được giữ lại. Sự tổ hợp nhiều lớp bởi những vật liệu cũ và mới tạo ra sự đối trọng giữa cố định và tạm thời, giữa quá khứ và hiện tại.

Mặt tiền phía đối diện của khách sạn Arc del Teatre. Khi buổi tối đến, ánh sáng nhân tạo ở các không gian bên trong hắt ra phía ngoài làm cho bức tranh tổng thể trở nên rất sinh động, những hình vẽ như đang di chuyển.


Không gian tầng 1 mở thông với đô thị, phòng tắm được đặt về phía mặt tiền. Tất cả tạo ra những âm hưởng mới trong không gian gây nên những cảm giác thật bất ngờ cho những khách nghỉ tại đây.
Old – New house, 2006, Melbourne, Australia
Văn phòng kiến trúc Jackson Clements Burrowns, ảnh John Gollings
Như khách sạn Arc del Teatre ngôi nhà ống Old-New house cũng được áp dụng một hình ảnh trên mặt tiền, nhưng tư tưởng của đồ án thì hoàn toàn khác hẳn. Khi nhận được lời mời thiết kế, những kiến trúc sư của văn phòng Jackson Clements Burrowns đã không ngần ngại đưa ra quyết định đập bỏ ngôi nhà cũ, cái không còn đem lại chất lượng cho cuộc sống nữa, để thay vào đó sẽ là ngôi nhà mới có đầy đủ tiện nghi phục vụ cho một cuộc sống hiện đại hơn. Nhưng hội đồng bảo vệ di sản của khu vực thì hoàn toàn không đồng tình với ý tưởng đó, họ cho rằng ngôi nhà là một trong những phần tử đóng góp cho hình ảnh chung của kiến trúc toàn khu vực. Cuối cùng thì một giải pháp cũng được đưa ra có thể làm hài lòng một phần nào cả hai phía. Ngôi nhà cũ bị loại bỏ nhưng hình ảnh của nó được gắn lên ngôi nhà mới. Công trình đã gây ra rất nhiều tranh cãi cho vấn đề bảo tồn di sản. Nhưng chính cái sự tranh cãi mang chiều hướng tích cực đã đem đến giá trị cho công trình.

Sự dàn cảnh của ánh sáng nhân tạo đã tạo ra những bóng đổ của cây trên mặt tiền. Sự hoà trộn tài tình giữa giả và thật.
Câu nói của một người dân sống trong khu phố đáng để cho chúng ta phải suy nghĩ “Ngôi nhà vẫn giữ được hình ảnh của nó, chính cái hình ảnh này sẽ vĩnh viễn sống mãi cùng thời gian”. Tất nhiên sự ứng dụng này có thể chấp nhận trong phạm vi đơn lẻ và cá biệt, cái sẽ dẫn đến sự sống hoà đồng giữa công trình mới và những công trình cũ xung quanh và đặc biệt tạo ra một câu chuyện mới đóng góp cho lịch sử phát triển của kiến trúc toàn khu vực.
Có được ý tưởng là một chuyện nhưng thực hiện ý tưởng đó có thành công hay không lại là một chuyện khác. Bắt đầu từ ý tưởng sử dụng hình ảnh mặt tiền ngôi nhà cũ dán trực tiếp lên mặt tiền ngôi nhà mới đã dẫn tới toàn bộ hệ quả của sự nghiên cứu về khối cũng như cấu trúc không gian sau này.
Để tạo ra nét tự nhiên, một góc mặt tiền của ngôi nhà mới được lấy vát theo đường chéo của mái chóp ngôi nhà cũ. Đây là đường chéo đầu tiên quyết định sự ra đời của một loạt các đường chéo khác cấu tạo nên tính chất không gian của ngôi nhà. Ngôi nhà được nâng thêm một tầng vì yêu cầu sử dụng mới đặt ra, nhưng để không làm ảnh hưởng tới chiều cao của toàn khu vực thì tầng 2 phải xây lùi vào bên trong. Từ đó dẫn đến việc đặt chéo mái của không gian cầu thang nối liền mặt tiền với mái của tầng 2. Chính nhờ độ chéo này mà từ ngoài đường ta không nhận thấy được chiều cao của ngôi nhà.

Ngôi nhà được mở hoàn toàn ra khu vườn phía sau.
Tính linh hoạt của đường chéo cho khối lại được ứng dụng một lần nữa trên mặt bằng. Bức tường bên ở tầng 2 được đặt chéo để thu nhỏ không gian của tầng này hướng về phía vườn sau nhà. Với sự xắp đặt như vậy nó đã tạo ra một khe hở với nhà bên cạch, từ đó có cơ hội trổ cửa sổ lấy thêm ánh sáng vào nhà. Đồng thời bức tường này cũng chính là phần tử xác định không gian của hệ giao thông theo chiều dọc nhà, với cách đặt chéo nó đã tạo ra một cảm giác ảo cho chiều sâu phối cảnh. Điểm nhìn có cảm giác xa hơn nếu ta đi từ không gian rộng đến không gian hẹp và ngược lại.
Ngoài ra việc xử lý mặt tiền cũng rất nhạy cảm. Tấm ảnh tỷ lệ 1:1 được dán sau những tấm kính trong suốt, nên phía ngoài đường những tấm kính này vẫn lấy được sự phản chiếu của môi trường xung quanh. Tất nhiên điều đó không thể thành công nếu thiếu ánh sáng mà đặc biệt là sự dàn cảnh của ánh sáng nhân tạo. Bóng của những lá cây chiếu trên mặt tiền tạo ra sự hoà trộn giữa giả và thật làm cho chúng ta có cảm giác bối rối rất đặc biệt.

Để tạo ra nét tự nhiên, một góc mặt tiền của ngôi nhà mới được lấy vát theo đường chéo của mái chóp ngôi nhà cũ. Đây là đường chéo đầu tiên quyết định sự ra đời của một loạt các đường chéo khác cấu tạo nên tính chất không gian của ngôi nhà.

Sân thượng tầng 2. Các đường chéo tạo nên cấu trúc không gian của ngôi nhà.

Bức tường gạch cũ được dàn cảnh rất khéo léo. Ở ngoài đường nó được in trên mặt tiền, ở trong nhà nó lại được xuất hiện ở không gian ăn. Nó trở thành phần tử nối liền quá khứ và hiện tại.

Mặt đứng của ngôi nhà với các nhà bên cạnh. Việc đặt chéo mái của không gian cầu thang nối liền mặt tiền với mái của tầng 2 đã làm cho chúng ta không thấy được độ cao của không gian này khi ở ngoài đường.

Không gian sinh hoạt chung ở tầng 1, thông thẳng ra khu vườn sau nhà.

Bức tường bên ở tầng 2, được đặt chéo. Với sự sắp đặt như vậy nó đã tạo ra một khe hở với nhà bên cạnh, từ đó có cơ hội trổ cửa sổ lấy thêm ánh sáng vào nhà.

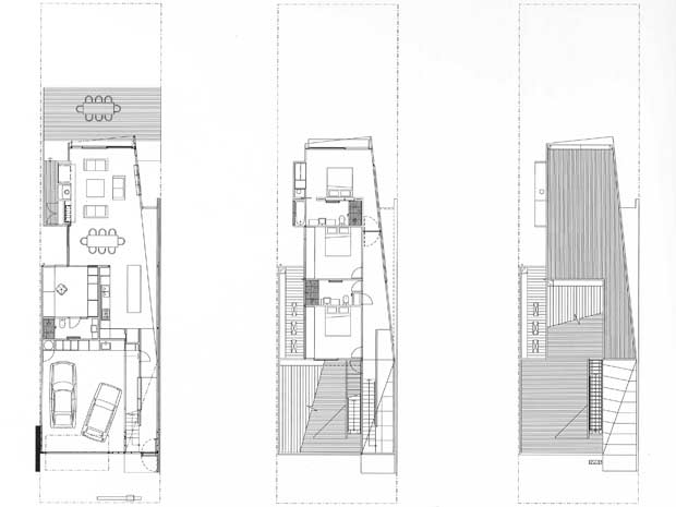
Mặt bằng tầng 1, tầng 2 và sân thượng. Cầu thang đặt phía ngoài đường dẫn thẳng lên tầng hai, hai tầng hoàn toàn cách biệt.
Ngôi nhà ống Old-New house mang đến cho chúng ta một ví dụ về việc hoà đồng của những nhà ở tư nhân xây mới trong môi trường đô thị hiện tại. Đây có phải là một ứng dụng “mẫu” lý tưởng không? Đó là một câu hỏi lớn. Nhưng dù gì đi nữa giải pháp mà các nhà thiết kế đưa ra thực sự đầy tính sáng tạo.
KTS Vũ Hoàng Sơn




