Căn nhà nằm ở Kon Tum, một thành phố phía bắc Tây Nguyên với khí hậu nắng và gió hai mùa khá khắc nghiệt. Chủ nhà là một cặp vợ chồng trẻ, cũng là những người bạn thân của kiến trúc sư nên sự tin tưởng và cởi mở luôn diễn ra xuyên suốt quá trình thiết kế căn nhà. Khó khăn lớn nhất khi chủ nhà đã có một bản vẽ cơ bản theo ấn định của thầy phong thủy, dẫn đến khi bố trí mặt bằng căn nhà phải tuân theo bản vẽ này. Vậy bài toán đặt ra là làm sao dung hòa việc chỉ định của thầy phong thủy và ý tưởng thiết kế của kiến trúc sư để tạo ra được không gian sống thú vị cho chủ nhà.

Bằng cách sử dụng những đường cong và bo góc cho những bức tường đã bị ấn định bởi thầy phong thủy để làm không gian mềm mại và an toàn cho trẻ nhưng cũng không sai lệch đi khỏi những hướng tốt mà chủ nhà mong muốn.
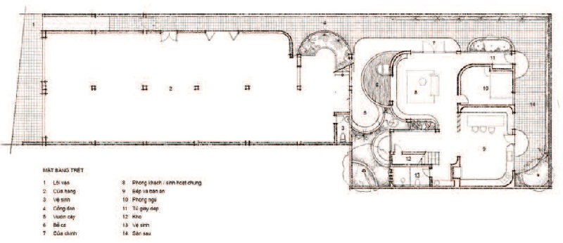
Với quy mô căn nhà ngoài khu vực kinh doanh của gia đình ở phía trước, còn lại kiến trúc sư tập trung “bày binh bố trận” cho không gian phía sau của gia đình có 4 thành viên (bố mẹ và 2 con nhỏ) nên cấu trúc căn nhà ưu tiên cho các không gian sinh hoạt rộng rãi và thân thiện với trẻ nhỏ. Gian bếp rộng, thông thoáng, nhìn ra được phòng khách nhưng vẫn có độ riêng tư cho gia chủ. Xung quanh chủ nhà muốn mở tối đa để nhìn ra vườn cây, hồ cá và hòa mình vào thiên nhiên bên ngoài.



Không gian được ưu ái để gió và sáng là phòng sinh hoạt, học tập – nó như một phòng thư viện với nhiều sách để cho con và ba mẹ cùng đọc. Với yêu cầu này, kiến trúc sư đã mở nhiều cửa sổ và một hệ bông gió được thiết kế riêng như một điểm nhấn nhằm đưa cái nắng của vùng đất Tây Nguyên vào phòng một cách dịu nhẹ với hình dạng của những bông hoa bao quanh. Điểm nhấn hoa gió này cũng được sử dụng ở hầu hết các không gian trong nhà như một thể thống nhất.
Vật liệu sử dụng cũng được chủ nhà đầu tư xứng đáng để đem lại một không gian mộc mạc, gần gũi nhất có thể với gạch bông thủ công và đá mài sử dụng trong nội, ngoại thất .
Tầng trệt có hệ kính mở rộng ra không gian xung quanh nhà. Nhưng vì khu đất cũng không quá rộng để tạo được nhiều cảnh quan sân vườn, nên phần hàng rào, kiến trúc sư đã tạo hình một bồn cây băng dài để đưa phần cây xanh lên cao tạo màu xanh khi nhìn từ lầu 1 và ưu tiên trồng những cây rủ để làm xanh mát khu vực tường bao quanh tầng trệt.
Trên mái, chủ nhà muốn tạo một khu vườn để cả gia đình có thể cùng nhau lên trồng hoa, rau và sinh hoạt cùng bạn bè mỗi khi có dịp. Vì thế nhóm thiết kế đã ưu tiên bố trí nhiều bồn cây và bệ ngồi cũng như giàn cây leo tạo bóng mát cho sân thượng.









Tổng thể căn nhà có 3 mặt thoáng đã tạo điều kiện thuận lợi cho việc lấy sáng thông thoáng cho căn nhà, đồng thời cũng đem đến nhiều khó khăn trong việc kiểm soát nắng gió của vùng đất Tây Nguyên. Hệ thống bông gió sử dụng trong căn nhà có bổ sung cửa nhôm bên trong để kiểm soát lưu lượng gió vào mùa gió lạnh ở đây.
Với nhiều thủ pháp kiến trúc đã được sử dụng cộng với sự “chịu chơi” của chủ nhà và những tính toán của thầy phong thủy, gia đình nhỏ sẽ có một trải nghiệm sống thú vị và hạnh phúc trong căn nhà của mình tại mảnh đất Tây Nguyên xinh đẹp.


| Đơn vị thiết kế: Khuôn Studio Kiến trúc sư: Huỳnh Anh Tuấn, Ngô Quang Hậu Diện tích tổng khu đất: 990m2 Diện tích khu đất của khối nhà chính phía sau: 440m2 Diện tích xây dựng khối nhà chính (1 trệt, 2 lầu): 600m2 |
(Kiến trúc & Đời sống – số 213)

