Nhà gỗ vùng Tyne Valley được thiết kế theo phong cách chuồng ngựa (barn-style) phổ biến ở các vùng đồng quê Anh Quốc. Các NTK cũng khéo léo thêm thắt các chi tiết hiện đại. đồng thời đưa giá trị lịch sử địa phương vào không gian.
Ngôi nhà gỗ tọa lạc tại Tyne Valley, Anh Quốc với địa thế nhìn ra thung lũng Tyne ở phía bắc và hướng về Pennines phía nam. Về hình thức, công trình được tham khảo cảm hứng từ hình mẫu trang trại kiểu cũ và nhà gỗ nông thôn địa phương. Tổng hòa công trình là sự kết nối của tập quán bản địa, hình thức xây dựng truyền thống tạo nên cuộc sống phóng khoáng, trong lành.

Ngôi nhà gỗ lý tưởng giữa đồng bằng.


Tuy thuộc phong cách nhà gỗ chuồng ngựa điển hình nhưng các NTK đã lồng ghép thêm chi tiết kim loại ở phần mái nhằm kiến tạo hình thức thẩm mỹ hiện đại, đồng thời liên hệ trực tiếp với văn hóa lịch sử là nền công nghiệp luyện kim đã có từ thế kỷ XVIII.
“Chúng tôi sử dụng chi tiết mái kẽm như một lời giải thích khôn ngoan về mối liên hệ lịch sử trong ngành khai thác và luyện kim của khu vực. Phần gỗ bao phủ ngôi nhà là loại gỗ linh sam Douglas có nguồn gốc địa phương.” – Nhóm thiết kế chia sẻ, “Chúng tôi muốn tạo ra hình thức ngôi nhà trông giống như nhà một tầng, thay vì rõ ràng hai tầng. Lối thiết kế này biến ngôi nhà trông giống như địa điểm hội họp của ngôi làng hay nhà nguyện. Tuy nhiên mỗi không gian lại khép kín hơn, tạo cảm giác ấm áp và an toàn.”

Màu sắc trung tính đóng vai trò chủ đạo, làm nền cho các điểm nhấn đậm đà sắc độ hơn như hồng, lam.

Không gian đẩy cao độ vượt mức thông thường để tạo độ thoáng đãng.
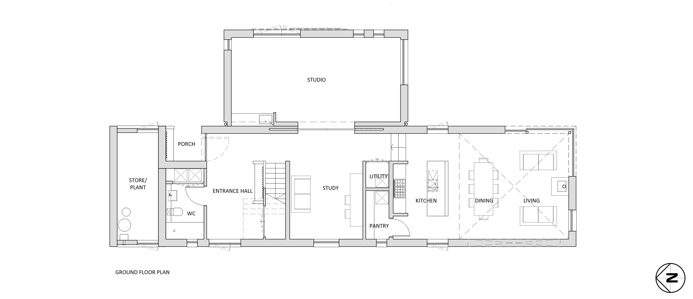
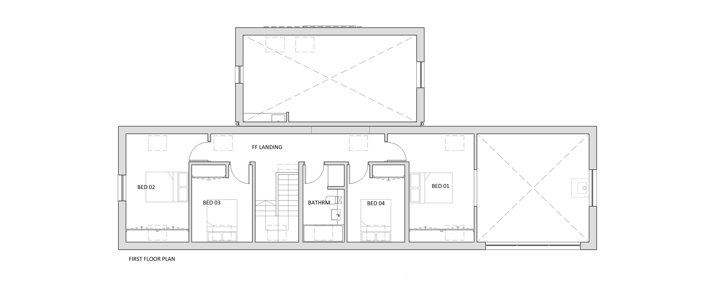
Nhà gỗ được chia thành hai tầng với các khu vực chức năng cần thiết như bếp, phòng khách, phòng ngủ, phòng ăn và cả studio cá nhân. Tuy phân chia thành hai tầng nhưng nhóm thiết kế đã khéo léo đẩy cao độ công trình vượt mức bình thường để từ đó xóa bỏ cảm giác xếp chồng không gian. Nhờ giải pháp này mà không gian trở nên rộng rãi, thoáng đãng hơn dù không mở rộng diện tích sàn. Đồng thời với lợi thế nằm đơn lẻ nên việc đẩy cao độ lên cũng không gặp phải sự che chắn của các công trình liền kề.



Tông màu sử dụng phổ biến cho công trình được quy về nhóm trung tính như beige, xám, màu gỗ tự nhiên và chắt lọc điểm nhấn bằng sắc hồng, lam. Cảnh quan thiên nhiên cũng đóng vai trò quan trọng đối với gam màu tổng thể khi dùng chính sự trong trẻo của cây lá để trung hòa bầu không khí. Không gian ngôi nhà được thiết kế với nhiều hệ cửa lớn nhỏ khác nhau không chỉ để hòa hợp màu sắc mà còn tạo điểm nhìn ra cảnh quan và hơn hết là tối ưu hóa ánh sáng trời.
“Chúng tôi phủ lên ngôi nhà một lớp vữa trát thô mộc, chi tiết này hoàn toàn phù hợp với tinh thần thiết kế.”

Đức Nguyên – Ảnh: Jill Tate
(ELLE Decoration VN /Theo Dezeen)

