Ngôi nhà độc đáo này có vị trí nằm tại góc một khu dân cư đông đúc trên một quả đồi, và mặt tiền hướng về đường dốc phía Tây và phía Bắc. Khu dân cư này đã được phát triển một thế kỷ rưỡi trước đây. Cùng với thời gian, sự phát triển quy mô nhỏ đã được thực hiện do phân chia và hợp nhất của các lô đất. Địa thế phức tạp của lô đất đã tạo nên những khó khăn thú vị cho thiết kế ngôi nhà này.
![]()

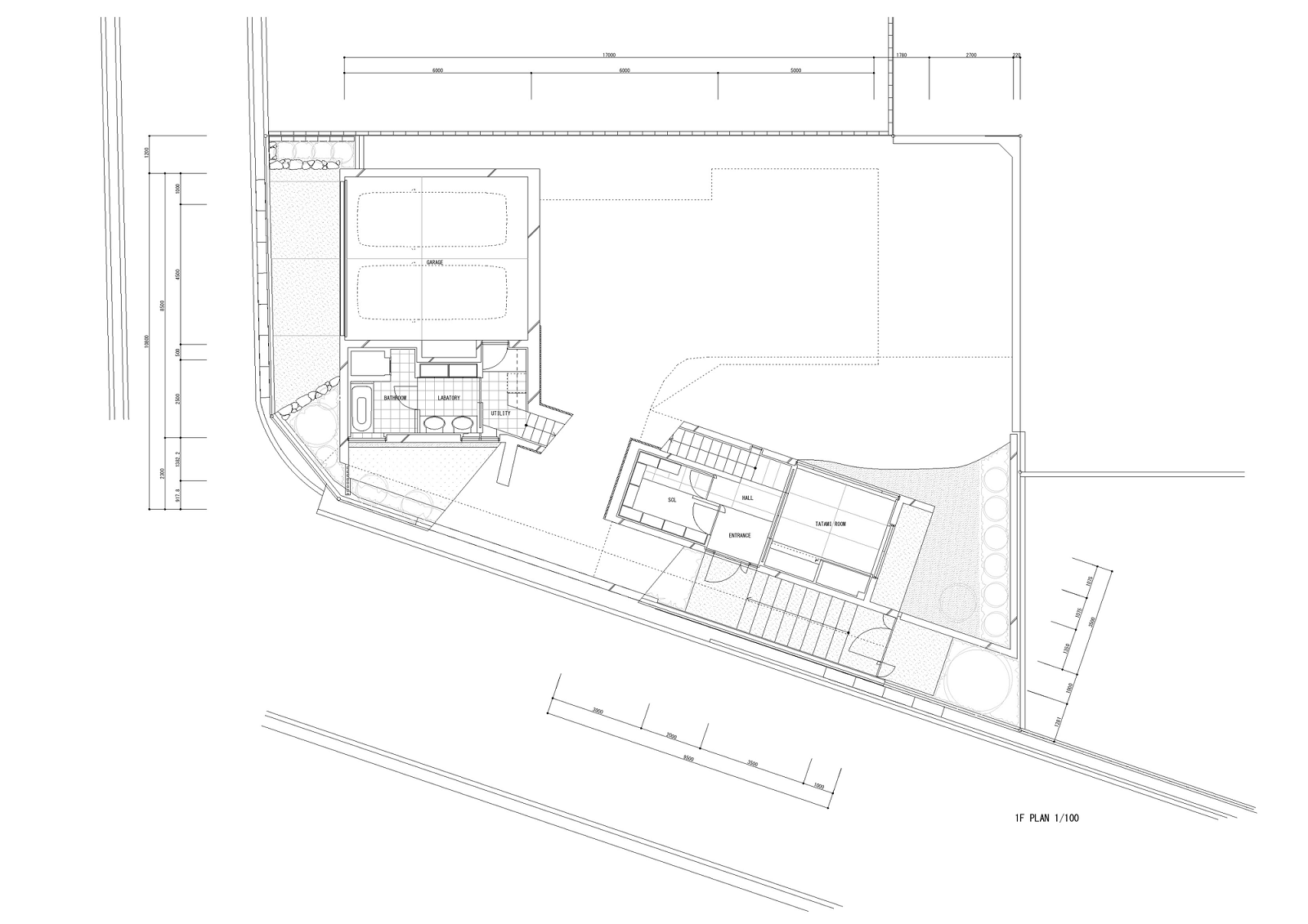
Ngôi nhà có một bức tường cao được xây dựng ở phía Tây như thể từ chối một cách tiếp cận cho khu đất. Song song với đó là một nhà để xe được xây dựng trong lòng đất và một mặt phẳng cùng đường dốc kết nối sự khác biệt chiều cao 3m ở phía Tây Nam.
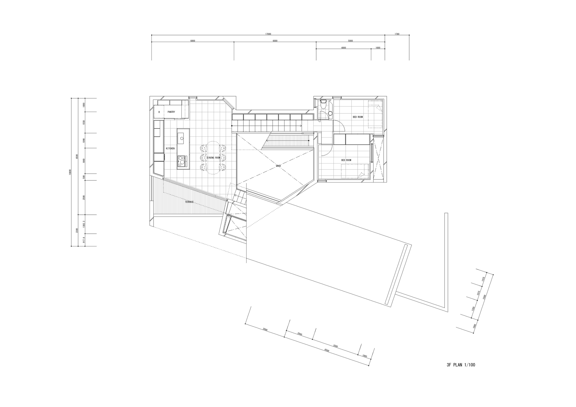
Khu đất này có ba cốt được sắp đặt do mối quan hệ giữa những con đường ở phía Tây, phía Bắc, và nhà hàng xóm. Các kiến trúc sư cho rằng việc phát triển xây dựng theo một cao độ mới là vô nghĩa. Thiết kế đã được sáng tạo nên một cách tự nhiên theo bối cảnh. Ba mức sàn, điều chỉnh theo từng chiều cao, đã được thực hiện riêng rẽ. Bằng cách kết nối này, toàn bộ không gian được thành lập.





Dựa trên khối tích cần thiết, ba khu vực được phân lớp theo chừng mực và kết nối với cầu thang cùng đường dốc từ lối vào ở mái nhà. Nghiên cứu khối lượng đã được tiến hành để tạo ra một hình thức để hiện thực các hoạt động như vậy. Các hoạt động được định hình từ những đặc điểm của khu đất, chứ không phải là căn nhà xác định hoạt động sống. Kết quả là ngôi nhà đã được thành lập với ba hình thức khối chằng chịt, như thể chúng là sự tương tác tổng hợp với con đường dốc ở phía Tây.
Khối nhà phía Tây nằm trong phần thấp nhất của khu đất nơi có một lối vào và một phòng ngủ cho khách, và khối nhà phía Đông Nam nằm trong phần cao nhất có những không gian riêng tư như phòng ngủ. Khối thứ ba kết nối hai khối khác là garage ôtô có lối vào từ mặt phía Bắc, không gian phòng khách là không gian trung tâm của căn nhà.
Architects: Shogo ARATANI Architect & Associates
Location: Hyogo Prefecture, Japan
Area: 359.0 sqm
Year: 2013
Structure: Reinforced Concrete
Structural Engineer: S3 Associates Inc.
Construction: Atelier Eight Co., Ltd.
Photographs: Shigeo Ogawa

















