Trong những năm gần đây, lĩnh vực thiết kế nhận diện thương hiệu cho các doanh nghiệp đã phát triển rất xa từ một công việc ban đầu đơn thuần là thiết kế sáng tạo logo. Các sản phẩm thiết kế nhận diện thương hiệu xuất hiện khắp mọi nơi từ format 2D như business cards, phong bì hồ sơ, đồng phục nhân viên cho đến các công trình 3D như thiết kế sân khấu, thiết kế sàn diễn thời trang, phim tài liệu, quảng cáo minh họa,… Các thiết kế nhằm giúp nhận dạng thương hiệu của một công ty qua chuẩn mực về màu sắc, phông chữ cho đến các sản phẩm và hiện vật gắn liền với lịch sử hoạt động của một doanh nghiệp.
Công ty XNK Thiên Sơn, Công ty CP đầu tư xây dựng kiến trúc Khang An (KAHN atelier) cùng các cộng sự tâm huyết đã hợp tác tại thị trường Việt Nam trong thập kỷ vừa qua, tập trung vào tiêu chí thiết kế – thi công lấy giá trị văn hóa làm nền tảng, và tôn vinh thương hiệu của các tổ chức, doanh nghiệp; đã nghiên cứu, khảo sát, tổ chức đề xuất các phương án thiết kế kiến trúc – nội thất, cải tạo, lên phương án tiêu chuẩn chuyên môn thiết kế, các tài liệu khái toán cho công trình Cải tạo và Tu sửa Tòa nhà làm việc 3 tầng của hội đồng thành viên ban tổng giám đốc và các phòng ban của Tổng Công ty Hàng Không Việt Nam (Vietnam Airlines) ở Gia Lâm, Hà Nội.
KTS Antoni Nguyễn chủ trì nhóm thiết kế đưa ra giải pháp kiến trúc; KTS Nguyễn Đức Bình – Thành viên Hiệp hội Kiến trúc sư Hoa Kỳ (Associate AIA, American Institute of Architects) là giám đốc sáng tạo của công ty Thiên Sơn và văn phòng thiết kế tại New York đã sát cánh cùng KAHN atelier thiết kế – nghiên cứu sáng tạo cho NASA Hoa Kỳ với nhiều yếu tố công nghệ khoa học tương đồng với Vietnam Airlines.

Công ty Thiên Sơn và nhà thầu thiết kế KAHN atelier đã đề xuất một nhận diện thương hiệu mới cho văn phòng trụ sở của Vietnam Airlines bằng sản phẩm thiết kế lắp đặt Kiến trúc + Triển lãm. Cụ thể đề xuất bao gồm:
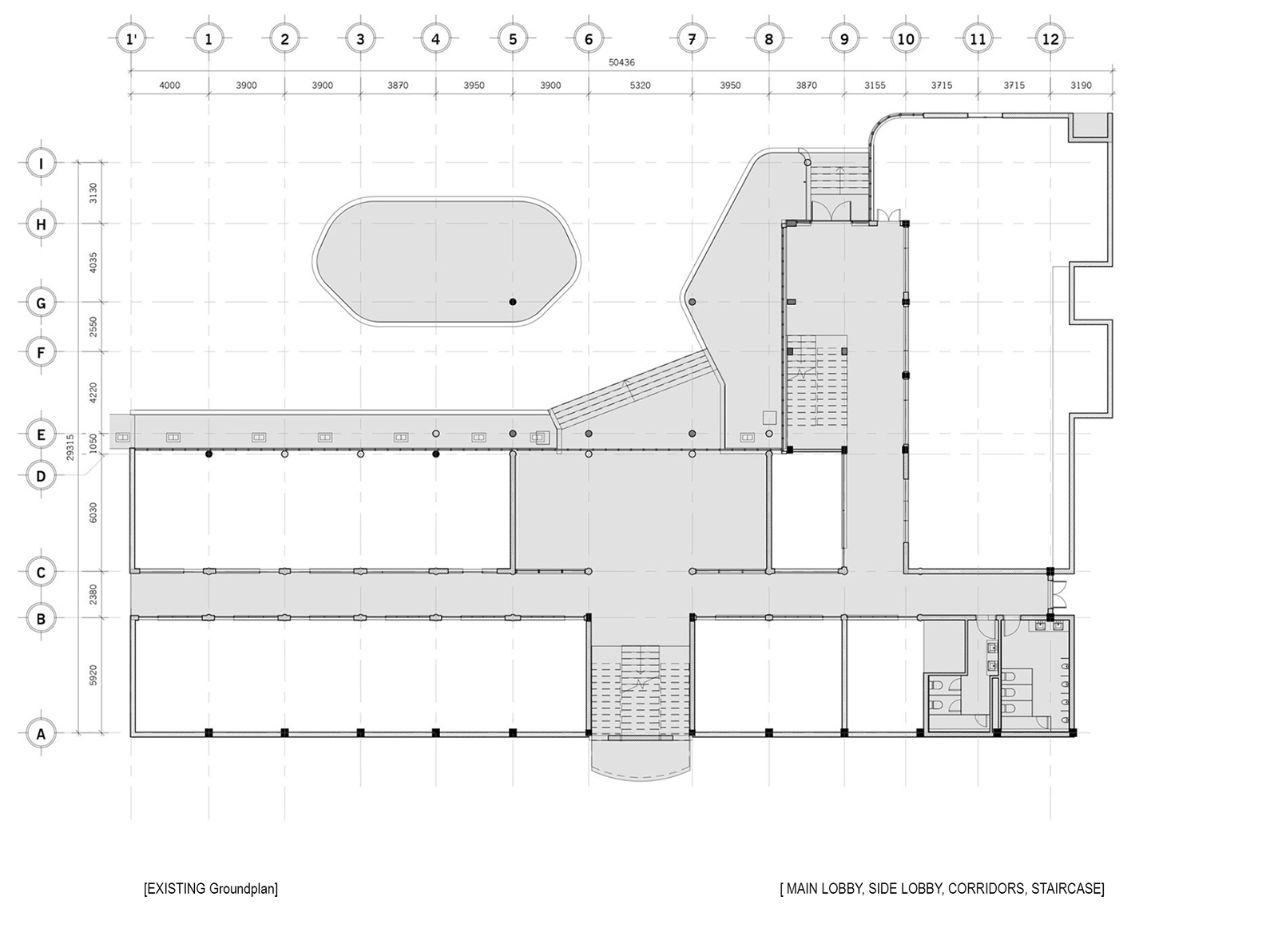
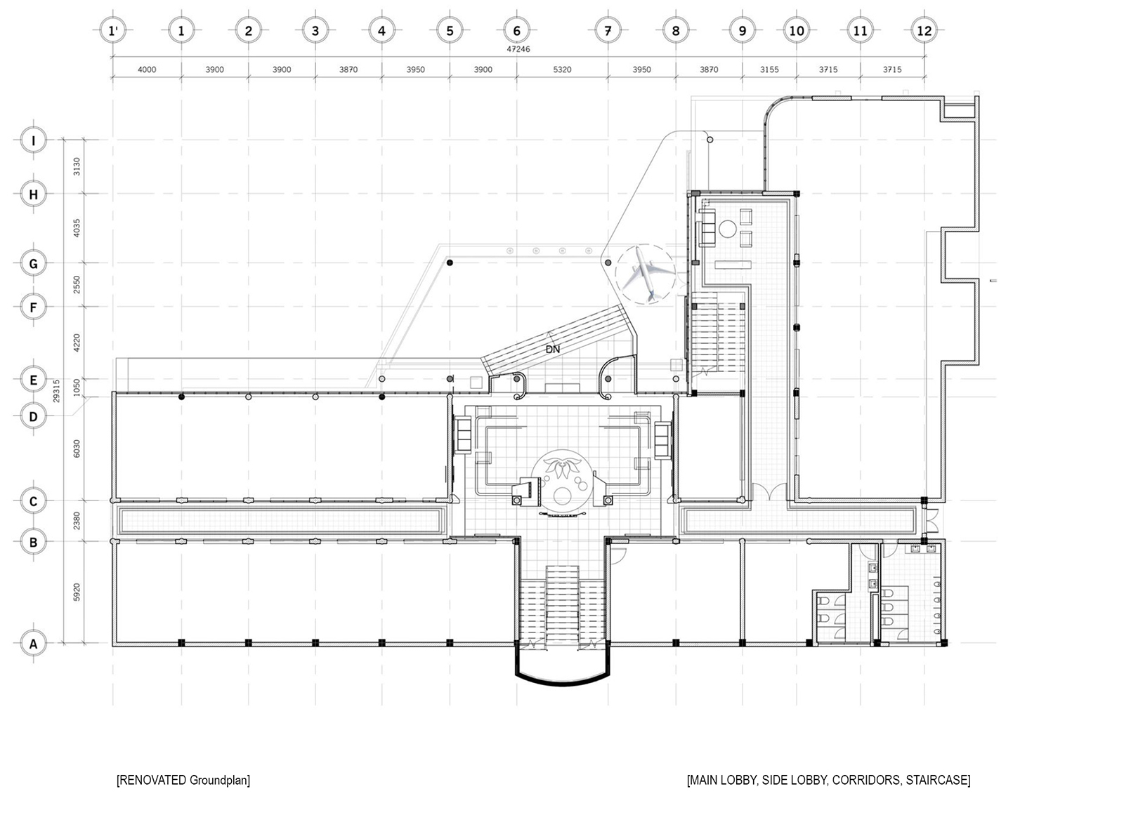
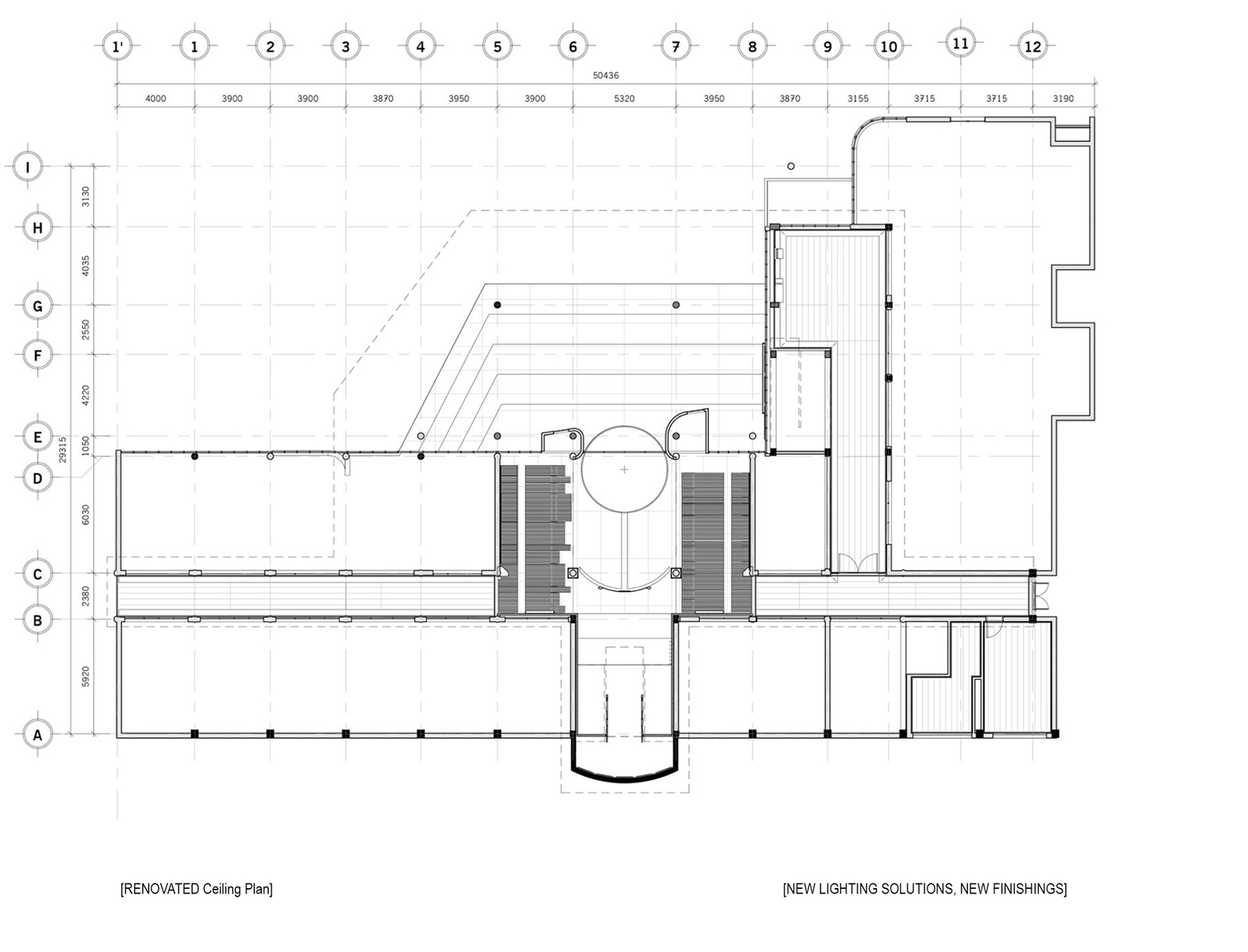
- Cải tạo không gian sảnh đón tầng 1 (bao gồm cả tiền sảnh tam cấp), tận dụng tránh lãng phí diện tích. Biến không gian sảnh đón thành khu tiếp đón trang trọng ấn tượng kết hợp với trưng bày giới thiệu về Vietnam Airlines;
- Cải tạo không gian hành lang giữa của tầng 1 và 2;
- Cải tạo không gian sảnh phụ của tầng 1 + 2 (khu vực sảnh đợi trước phòng chủ tịch HĐQT và trước phòng Tổng giám đốc) thành không gian đợi thân thiện, sang trọng.















Công trình cải tạo nội thất Trụ sở công ty Vietnam Airlines đồng thời đã được gửi đến cuộc thi lần thứ 98 của Hiệp hội đạo diễn nghệ thuật tại New York năm 2018 – 98th Art Director Club (ADC) Award – và được đề cử cho category mới của năm dự thi: hạng mục Cải Tạo Môi Trường Trải Nghiệm (Renovation: Brand Environment Design).
Dự án cải tạo nội thất Trụ sở công ty Vietnam Airlines– Vị trí: Gia Lâm, Hà Nội |

