Dự án có tên QBY được cải tạo từ một ngôi nhà cũ kết hợp với một nhà hàng ăn nhỏ, không gian cũ của ngôi nhà là sự đan xen giữa việc kinh doanh và nơi ở, điều này tạo nên rất nhiều bất tiện cho sinh hoạt trong gia đình và ảnh hưởng rất lớn đến việc kinh doanh của nhà hàng.
![]()




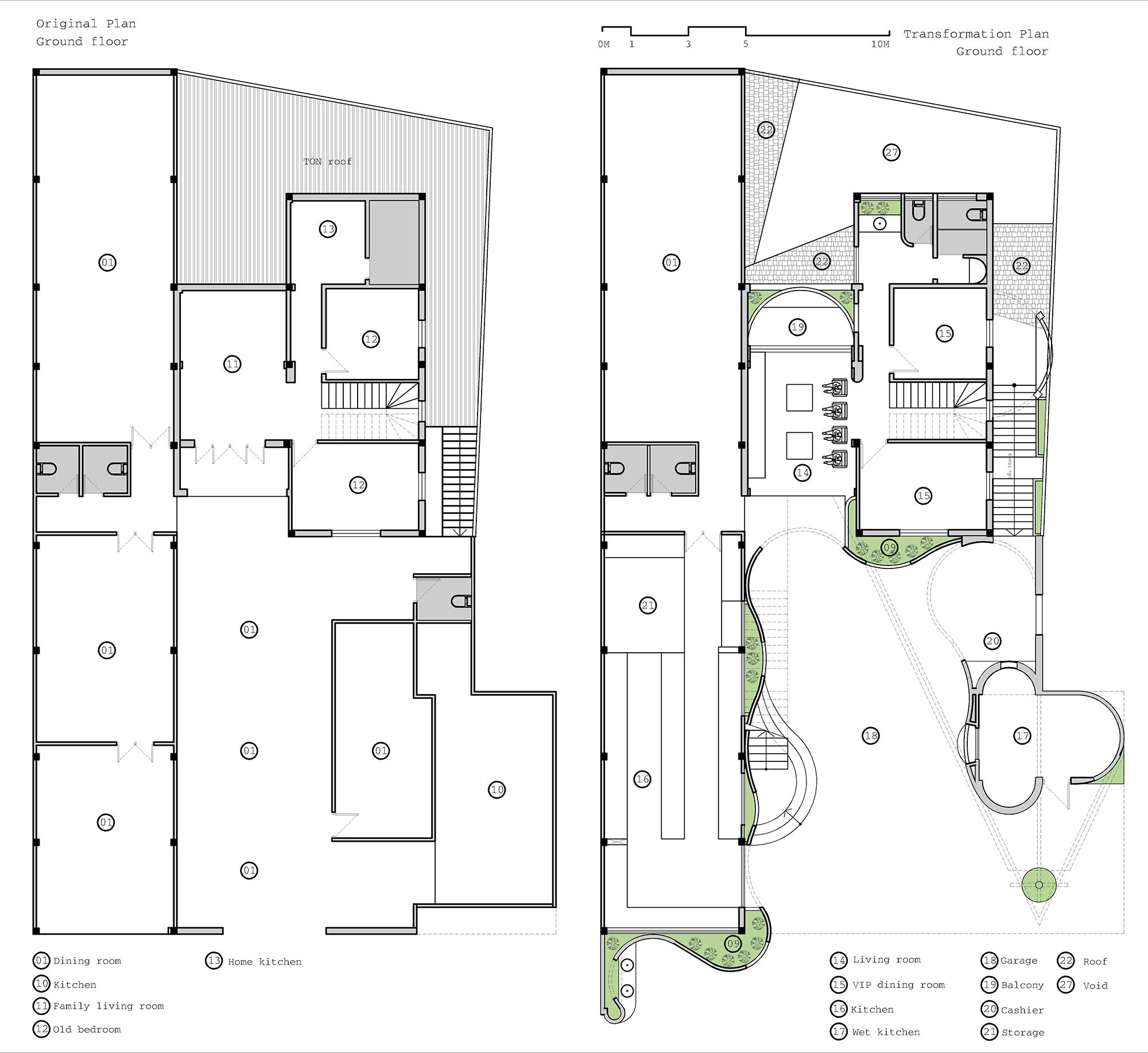
Mục đích của việc thiết kế là cải tạo ngôi nhà để tạo ra một không gian riêng rẽ, đảm bảo được công việc kinh doanh cũng như môi trường sống cho các thành viên trong gia đình có nhiều thế hệ và đông con.
Không gian ở của gia đình được đưa xuống phía dưới (tầng bán âm), nơi có thể nhìn ra những cánh đồng lúa, phía bên trên dành cho khu nhà hàng với các không gian chức năng như sân đỗ xe, khu bếp nấu và bếp củi để phục vụ cho các món ăn dân tộc. Các phòng chức năng của nhà hàng được phân bổ ở tầng 1 với các phòng khép kín và tầng 2 với phòng hội trường rộng, cầu thang bằng gỗ cũ kết lối trực tiếp từ sân lên, tạo thành một lối đi riêng tư cho tầng phía trên.







Việc tận dụng toàn bộ các vật liệu cũ sẵn có ở địa phương và vật liệu từ một phần của ngôi nhà cũ được dỡ ra, làm cho việc xây dựng được đơn giản hóa, phù hợp với người dân địa phương, nơi vốn còn là huyện nghèo của tỉnh Sơn La.
Phần mái nhà phòng hội trường được đặt chéo 45 độ, đan xen với mái ngói của ngôi nhà cũ để từ đây tất cả các phòng chức năng đều đảm bảo được ánh sáng, tầm nhìn ra các khoảng sân lớn nhỏ, một dải đồi núi và cánh đồng ruộng bậc thang ở xung quanh.
Khoảng sân phía trên dành cho khu nhà hàng và khoảng sân nhỏ phía dưới dành cho khu ở được tổ chức để thích ứng với nhiều chức khác nhau, riêng tư và đầy nắng gió.







Ngôi nhà như là sự tiếp nối của cánh đống lúa cho những khoảng xanh, màu đỏ của ngói ngói mới và cũ hòa vào nhau tạo cho công trình có một chút gì đó đặc biệt nhưng hòa hợp. Đó là sự tiếp nối của cái mới và cái cũ, của sự đổi thay để phát triển.
QBYVị trí: Bắc Yên, tỉnh Sơn La |





