The Riverside House nằm trong một khu đất riêng biệt có diện tích 411,9m2 thuộc khu Euro village 1, Đà Nẵng – nơi có gần 1km đường bờ sông và diện tích mặt nước trải dài từ Cầu Rồng sang cầu Trần Thị Lý. Khu đất tuy không vuông vứt nhưng có một mặt giáp với bờ sông Hàn thơ mộng, một mặt giáp với công viên cây xanh. Đứng từ vị trí khu đất có thể nhìn sông Hàn từ nhiều hướng. Tận dụng tối đa ưu thế này, các kiến trúc sư của AVA architects thông qua những gì thiên nhiên ban tặng đã tạo nên một công trình có tính kết nối giữa không gian bên trong và bên ngoài một cách hài hòa nhất. Đây cũng là mong muốn của Chủ đầu tư khi quyết định lựa chọn khu đất cho không gian sống của gia đình. Chủ nhà là những người bận bịu với công việc, nên họ mong muốn ngôi nhà của mình hiện đại, gần gũi với thiên nhiên để có thể thật thư giãn khi trở về nhà sau những giờ làm việc căng thẳng.

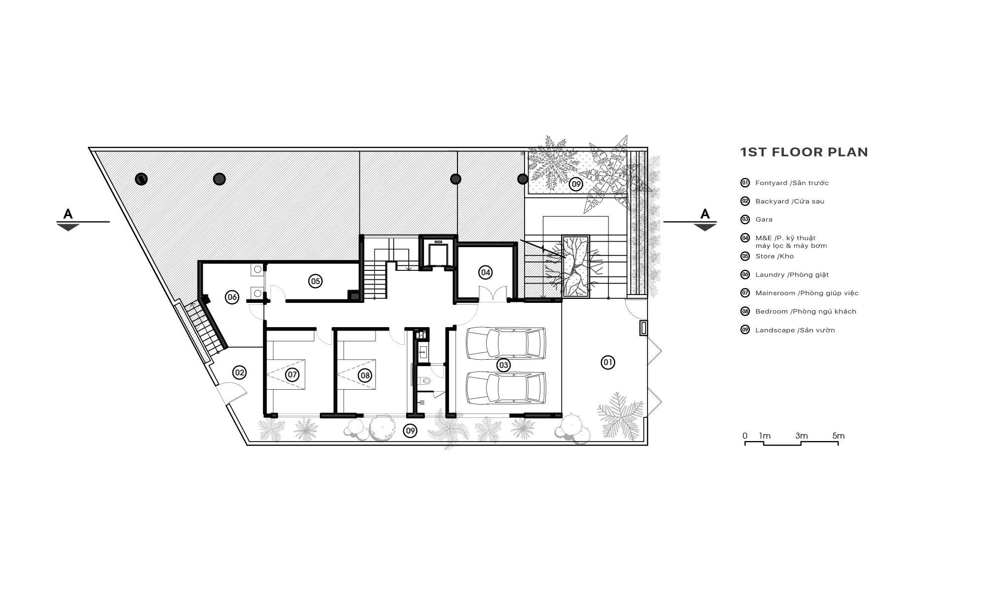
The Riverside House gồm 4 tầng, có tổng diện tích sử dụng 1.009m2. Các không gian sinh hoạt chính của ngôi nhà và sân vườn được nâng lên khỏi mặt đất để có thể tận hưởng được khung cảnh bên ngoài mà không bị ngăn cản bởi tường rào bảo vệ. Một phần diện tích phía dưới bố trí gara, phòng gia nhân, kho, giặt phơi… Ở tầng 2, các không gian sinh hoạt như khách, bếp được bố trí lệch về một bên của khu đất, bên còn lại bố trí sân vườn, hồ cá và trục giao thông xuyên suốt từ phía trước ra sau. Đây là điểm nhấn của ngôi nhà, nơi giao thoa giữa con người và thiên nhiên. Dù đứng ở ngoài sân vườn hay ở bên trong ngôi nhà đều có thể tận hưởng được khung cảnh tuyệt đẹp của sông Hàn thơ mộng.
Với mong muốn của Chủ đầu tư là tất cả các không gian trong nhà đều tiếp xúc với ánh sáng, gió tự nhiên. AVA architects đã bố trí bốn phòng ngủ của ở tầng 3 xung quanh khoảng sân trong ngôi nhà, hành lang giao thông kết nối các phòng đều hướng về sân trong ngôi nhà. Từ bên trong các phòng ngủ hay logia bên ngoài mọi người đều có thể tận hưởng được các góc đẹp của bờ sông Hàn theo nhiều hướng khác nhau.

Mặt tiền ngôi nhà được bố trí hệ lam gỗ xoay tự động được kết nối với hệ thống điện thông minh của ngôi nhà, vì thế chủ ngôi nhà có thể chủ động điều chỉnh các góc nhìn, ánh sáng và gió mọi lúc, mọi nơi. Hệ lam này ngoài là điểm nhấn trang trí và giải pháp lấy sáng, gió tự nhiên còn làm cho không gian sống trở nên sinh động hơn.
Tầng 4 của ngôi nhà là các không gian giải trí và thư giãn của gia chủ. Điểm nhấn đặc biệt ở đây là hồ bơi, nơi có góc nhìn trải dài ra bờ sông Hàn. Ở đây mọi thành viên có thể vừa thư giãn cùng nhau và ngắm được cầu rồng phun lửa và toàn thành phố Đà nẵng tuyệt đẹp về đêm.
Riverside HouseĐịa điểm: Euro Village 1, Đà Nẵng |




































AVA Architects

