
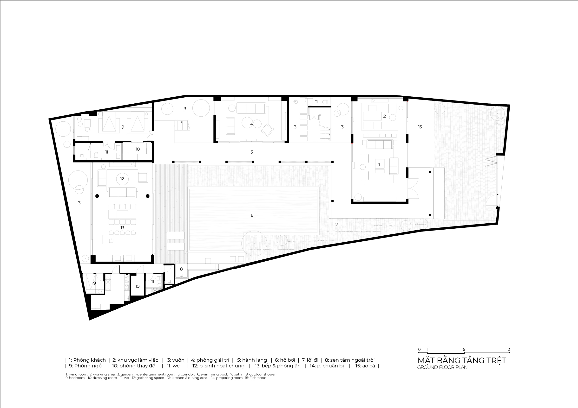
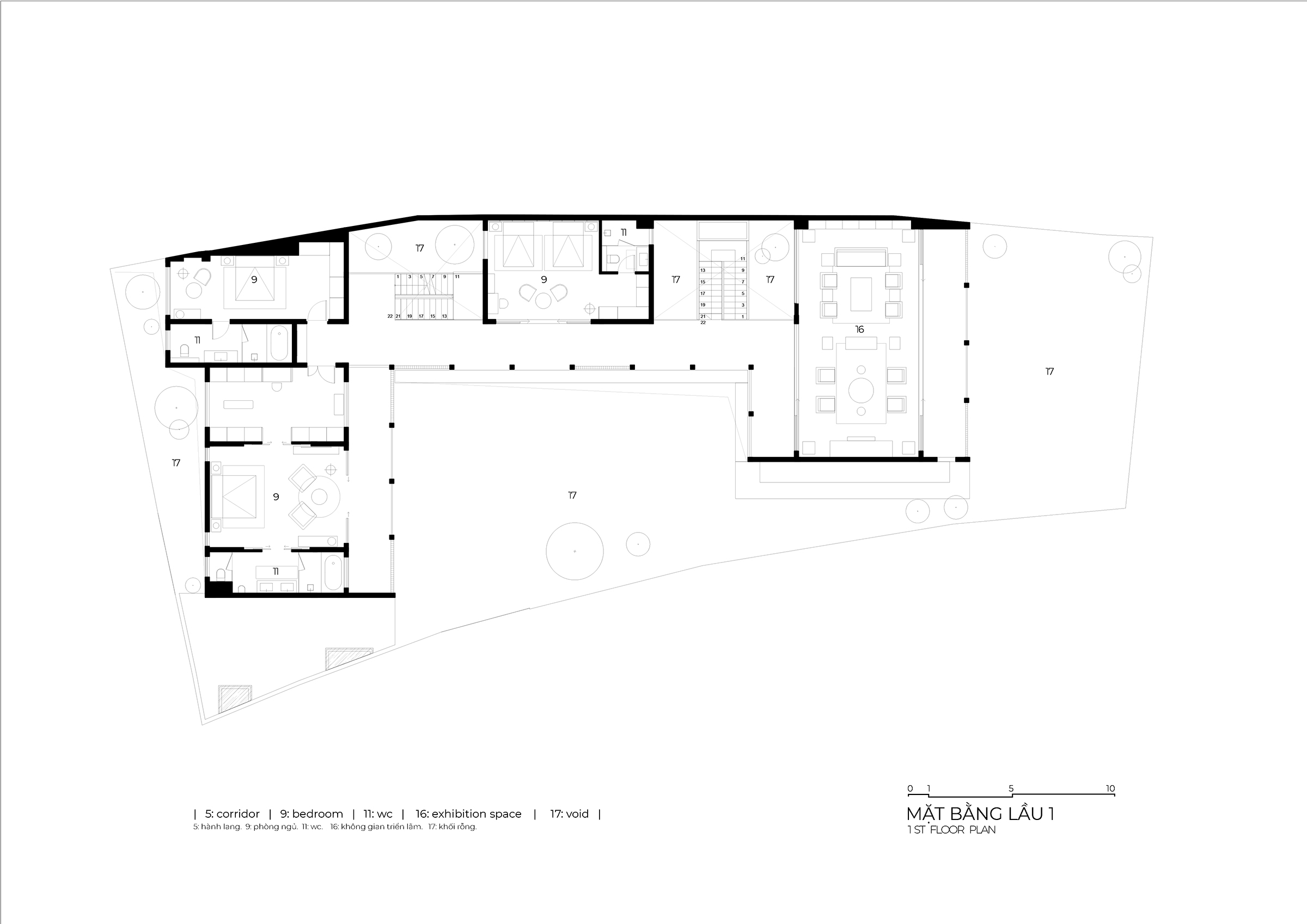
Bối cảnh nhà ở Vũng Tàu
Trong bối cảnh đô thị ven biển Vũng Tàu ngày càng bị nén chặt, nhà ở đứng trước yêu cầu tái thiết lập mối quan hệ giữa con người, không gian sống, khí hậu và những giá trị truyền thống đã dần bị mai một. Trên nền tảng đó, công trình được hình thành là một ngôi nhà dành cho gia đình ba thế hệ, nơi kiến trúc hướng đến sự gắn kết, thích ứng với thời gian và nuôi dưỡng chất lượng sống lâu dài.



5 khoảng sân
Ý tưởng của dự án được hình thành từ hệ thống 5 khoảng sân len lõi trong cấu trúc ngôi nhà, nơi sân không còn là phần phụ, mà trở thành không gian sống thực thụ. Các khoảng sân tạo nên những lớp chuyển tiếp mềm mại giữa trong và ngoài, giữa ánh sáng, gió, tĩnh và động, giúp ngôi nhà luôn có những “khoảng thở” tự nhiên. Sân trung tâm đóng vai trò như trái tim, kết nối các không gian và các mối quan hệ gia đình. Kiến trúc được tiết chế hình thức, lộ cấu trúc và vật liệu thô mộc, nhằm làm nổi bật bầu không khí sống. Trên nền tảng đó, tinh thần nhà ở truyền thống được chắt lọc và thích ứng với lối sống đương đại, đặt con người và cảm nhận sống vào trung tâm của kiến trúc.

Kiến trúc được tiếp cận như một cấu trúc sống, nơi chất lượng không gian nội tại và bầu không khí sống được ưu tiên. Không gian, cấu trúc và vật liệu cùng nhau nuôi dưỡng sự gắn kết gia đình và tạo nên một kiến trúc bền vững, có chiều sâu và giá trị theo thời gian.


























| Thông tin dự án: Địa điểm: Vũng Tàu Đơn vị thiết kế: TAA design Nhóm thiết kế: Nguyễn Văn Thiên, Nguyễn Sỹ Tuấn, Trần Anh Huy, Võ Thành Sơn, Nguyễn Huỳnh Duyên, Võ Lê Cường, Mai Ngọc Minh, Mai Đức Duy, Kiên Nguyễn Đơn vị thi công kiến trúc: Doricons Diện tích đất: 900m2 Tổng diện tích sàn xây dựng: 450 m2 Năm thiết kế / hoàn thành: 2022 / 2025 Hình ảnh: Lệ Nguyễn |

