
Kiến trúc làm nền cho văn hóa và thiên nhiên giữa lòng Sài Gòn
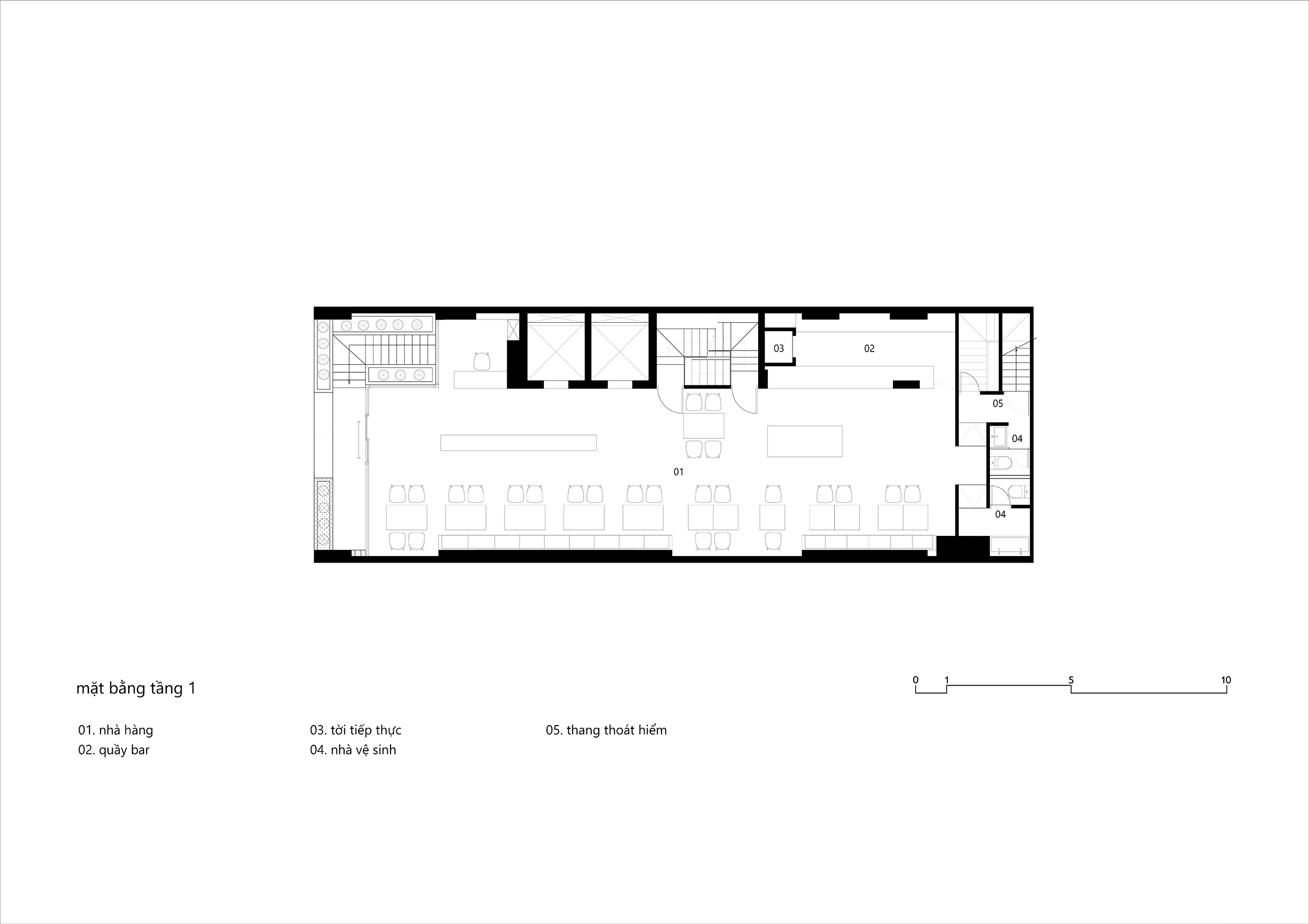
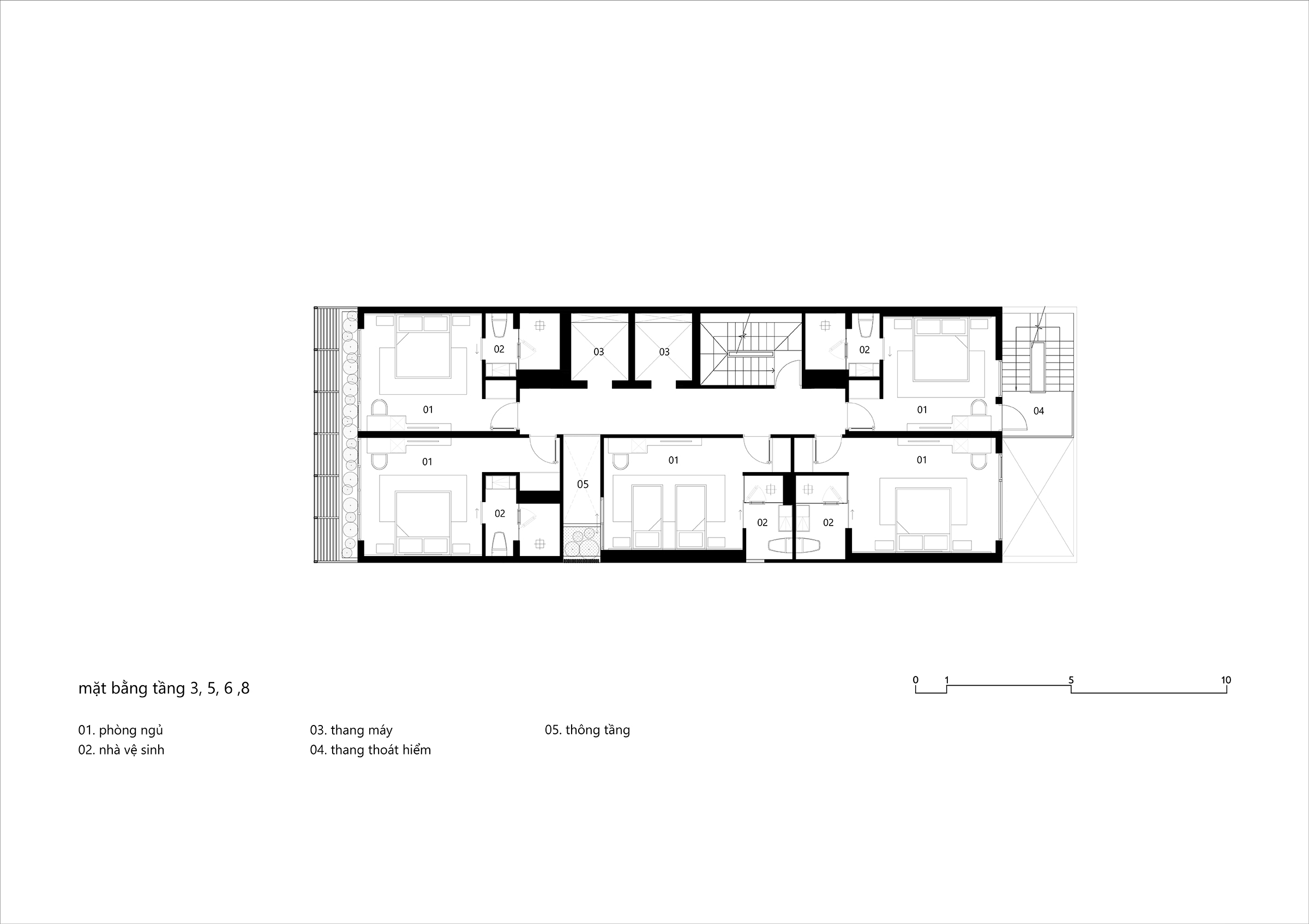
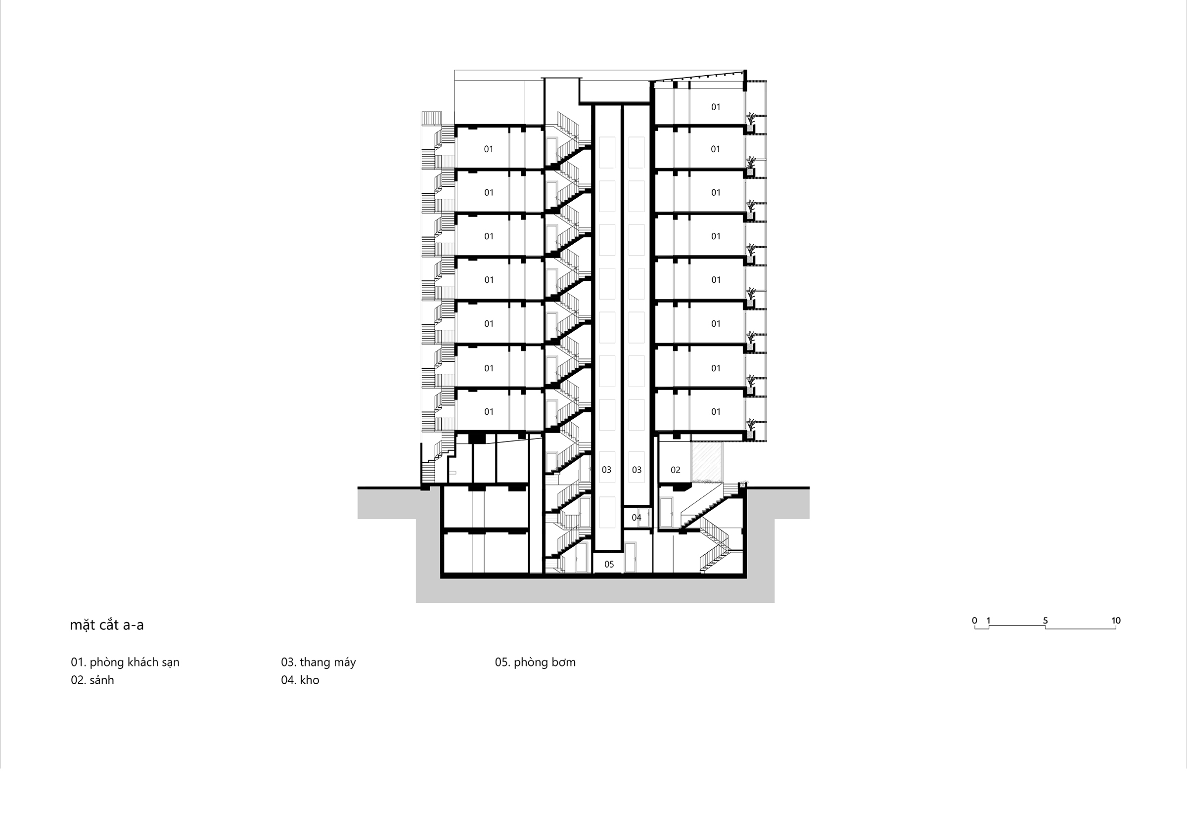
Triple E Hotel tọa lạc ngay trung tâm TP.HCM – khu vực sôi động với tốc độ phát triển nhanh chóng, nơi quy tụ nhiều khách sạn quy mô nhỏ và đa dạng về phong cách kiến trúc. Dự án gồm hai tòa nhà cao 9 tầng, 2 tầng hầm, tổng cộng 80 phòng khách sạn.

Công trình nằm trong khu vực của đô thị Sài Gòn xưa – nơi từng chứng kiến sự giao thoa giữa kiến trúc Nhiệt đới Hiện đại và nền văn hóa đặc sắc của thành phố. Thay vì chạy theo hình thức mới lạ, ý tưởng thiết kế hướng đến việc tạo nên một “phông nền” trầm tĩnh cho đô thị và văn hóa bản địa – một không gian nhường chỗ cho nghệ thuật và cây xanh lên tiếng.

Mặt đứng công trình được thiết kế như một lớp “màng lọc xanh” – sử dụng hệ khung thép treo cây xanh vừa để che nắng hướng Tây, vừa tạo nên tầm nhìn xanh mát từ bên trong phòng. Cây xanh, dây cáp và thép tạo thành một khối “xốp” nhiệt đới, nhẹ nhàng nhưng giàu cá tính – một hình ảnh thẩm mỹ khiêm tốn giữa lòng đô thị.
Cấu trúc công trình lược bỏ các yếu tố trang trí, giữ tính thuần khiết của cấu trúc và công năng. Vật liệu thô mộc, giải pháp tiết kiệm năng lượng, khả năng thích nghi khí hậu nhiệt đới – tất cả góp phần tạo nên một công trình bền vững, hài hòa với môi trường và bối cảnh đô thị xung quanh.


















| Thông tin dự án: Địa điểm: 146-158 Ký Con, Quận 1, TP Hồ Chí Minh Hạng mục: Khách sạn Thiết kế: TAA design Kiến trúc sư chủ trì: KTS Nguyễn Văn Thiên Diện tích khu đất: 2 lô 180m2 GFA: 2000 m2 Chủ đầu tư: Công ty Cổ Phần SaiGonese Hình ảnh: TAA design |

