Đường dạo bộ và đường mòn xe đạp hồ Lady Bird là một tuyến đường mòn danh lam thắng cảnh và cảnh quan dọc theo bờ sông Colorado trong trung tâm thành phố Austin.
Rất quen thuộc đối với các vận động viên và người đi xe đạp, công viên tạo ra cho cư dân và du khách với một không gian đồng quê trong khung cảnh một đô thị. Nhà vệ sinh công cộng đầu tiên được xây dựng trong công viên hơn 30 năm trước. Nhà vệ sinh mới được xây dựng là sự hợp tác giữa Town Lake Trail Foundation và công viên thành phố cùng cục Giải trí – một tổ chức phi lợi nhuận dựa vào cộng đồng.
![]()



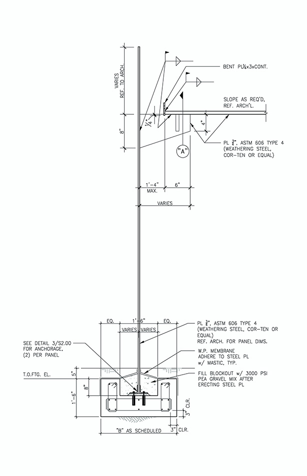
Các phòng vệ sinh mới đã được hình thành như một tác phẩm điêu khắc, một tác phẩm năng động dọc theo những con đường mòn.
Nhà vệ sinh dành cho cả người khuyết tật, bao gồm một đài phun nước uống và tắm bên ngoài, thêm vào một tủ có ngăn, bồn tiểu, bồn rửa và băng ghế dự phòng bên trong. Xây dựng đơn giản, đòi hỏi bảo trì tối thiểu: các đường ống nước được làm từ thép không gỉ, chiếu sáng và thông gió hoàn toàn tự nhiên.
Architects: Miro Rivera Architects
Location: Lady Bird Lake Trail, Austin, TX, USA
Area: 70.0 m2
Photographs: Paul Finkel, Courtesy of Miró Rivera Architects, Paul Bardagiy











