Cuộc sống luôn có những đổi thay, một gia đình hân hoan khi đón chào một nhân khẩu mới ra đời hay lặng buồn khi một người ra đi. Cũng có khi là một cuộc lưu chuyển day dứt dời khỏi chốn cũ để rồi một gia đình mới dọn về với một sự bỡ ngỡ và hồi hộp. Lúc đó, ngôi nhà chỉ cần được sắp xếp lại hay thay đổi một vài màu sơn nhưng cũng có thể là một sự sửa đổi hay cơi nới đáng kể.
Từ thời điểm đó câu chuyện của ngôi nhà lại được viết thêm những trang mới và rồi bộ mặt của đô thị sẽ xuất hiện những tình tiết mới. Điều quan trọng là những tình tiết này sẽ đóng góp gì cho sự phát triển của kiến trúc mà đặc biệt ở một thành phố mang nặng dấu ấn lịch sử như Paris.

Khi tới thành phố Paris, mọi người sẽ nhận ra trước tiên những con đường rộng rãi cùng với những ngôi nhà có chung một kiểu kiến trúc và được đặt thẳng hàng đều đặn nối liền nhau. Nhưng ít ai có thể ngờ rằng đó là thành quả mà Paris mới chỉ có được từ cuối thế kỷ 19. Paris là một thành phố rất cổ, cho tới đầu thế kỷ 19 rất nhiều vùng của thành phố còn mang kiến trúc trung đại (medieval).
Thành phố lúc đó rất suy tàn và có nhiều độc hại bởi nguyên do nhà xây quá cao so với chiều rộng của đường phố làm cho thiếu ánh sáng. Các ngôi nhà rất ẩm thấp và không sạch. Trung tâm của Paris có mật độ xây dựng rất dày đặc với những con đường hẹp gồ ghề và ngoằn ngoèo. Điều nguy hại nữa là hệ thống thoát nước rất tồi tệ cùng với sự thiếu thốn trầm trọng nước sạch. Năm 1832 bệnh dịch tả đã làm cho 25.000 người dân thành phố thiệt mạng.

Sự đồng đều của kiến trúc thành phố Paris với những ngôi nhà Haussemann cùng chiều cao và cùng kiểu kiến trúc.
Được một Paris tráng lệ như ngày hôm nay người dân nước Pháp phải biết ơn tới hai người quan trọng. Người thứ nhất là vua Napoléon III, khi ông sống ở London (1846 – 1848) đã nhận thấy vẻ đẹp hiện đại của thành phố này (thành phố được xây dựng lại hoàn toàn sau trận hoả hoạn năm 1666), nên ông đã thầm mơ ước biến Paris trở thành một thành phố điển hình của châu Âu. Khi lên nhậm chức hoàng đế ông đã không ngần ngại thực hiện ý tưởng của mình. Người thứ hai là Georges Eugène Haussemann, tỉnh trưởng của Paris lúc bấy giờ, người đã được giao trách nhiệm và có công rất lớn trong việc điều hành công cuộc cải cách thành phố.
Lúc đó ba chủ trương chính được đưa ra:
– Đem cây xanh vào trong thành phố, nhiều cây cối được trồng dọc theo các con phố, trong các quảng trường. Tổ hợp, chỉnh đốn và bảo dưỡng những thảm thực vật xanh đang tồn tại. Đặc biệt xây dựng toàn bộ hệ thống cấp nước cũng như mạng lưới nước thải mà Paris đang thiếu thốn trầm trọng.
– Nhiều con đường mới được mở ra để nối liền các khu vực trong thành phố cũng như sự liên kết các nhà ga, tất cả phải tạo ra một tổng thể đô thị. Các con đường mới này được vạch định hướng tới các điểm nhìn đẹp trong thành phố.
– Nhiều công trình lịch sử phải được tu sửa, hơn nữa các nhà sát xung quanh bị loại bỏ để tạo sự quang đãng cho những công trình này.
Để thực hiện những chủ trương này thì rất nhiều nhà cũ bị đập bỏ, đó cũng là cơ hội để xây dựng một thành phố mới. Các khu nhà mới xây dựng phải tuân thủ theo các điều luật rất nghiêm ngặt, chúng thường cùng một kiểu kiến trúc, có chiều cao như nhau và đặc biệt phải tạo ra được một sự đồng nhất trong thành phố. Công cuộc cải tạo và xây mới này kéo dài gần 70 năm (1853 – 1920), người ta dự tính trong 70 năm đó số lượng xây dựng nhà ở bằng ba thế kỷ trước. Cách quy hoạch thành phố cũng như kiểu kiến trúc những khu nhà mới được lấy tên Haussemann để tưởng nhớ đến người tỉnh trưởng lúc bấy giờ (ông giữ chức tỉnh trưởng từ năm 1853 đến năm 1870). Đúng là khi nói đến quy hoạch không thể không nhắc tới chính trị và tầm nhìn xa trông rộng của những nhà lãnh đạo. Và tất nhiên khi nói tới quy hoạch người ta nói tới những dự định phát triển của thành phố từ hàng chục có khi đến hàng trăm năm sau. Nếu đường lối được lựa chọn đúng đắn sẽ đem tới một giá trị lớn lao và bền vững cho nhiều thế hệ sau này.

Mặt tiền ngôi nhà Galvani. Phần cơi nới được treo cao để giải phóng tầng một thông suốt. Từ ngoài đường ta vẫn nhận ra mặt tiền ngôi nhà cũ ở phía sau / Cuộc hành trình trong không gian theo chiều đứng bởi hai khối cầu thang và sự xuyên suốt theo chiều ngang.
Sau thế chiến thứ hai, Paris cũng như nhiều thành phố khác của châu Âu thiếu thốn nhà ở, hơn nữa thành phố phải tiếp nhận nhiều làn sóng nhập cư của những người nước ngoài phần lớn đến từ các nước Bắc Phi. Những năm từ 1950 đến 1970 Paris được biết tới một lần quy hoạch lớn nữa, đặc biệt ở những vùng ngoại ô. Những khu nhà tập thể lớn và kéo dài là mô hình chủ đạo ở những thập niên này. Đây là mô hình bị chỉ trích rất nhiều sau này vì không phù hợp với tỷ lệ con người, hơn nữa những khu nhà này chỉ phục vụ để ở nên thiếu vắng nhiều dịch vụ hay các chương trình văn hoá vì vậy đã tạo ra một sự sống tẻ nhạt trong khu vực.
Tuy trải qua nhiều công cuộc quy hoạch lớn, thành phố Paris vẫn còn để lại nhiều ngôi biệt thự, nhà ở tư nhân, những dãy nhà ống liền kề trước kia được xây dựng dành cho những người công nhân, những ngôi nhà nhỏ chia lô. Ít nhiều thì người dân Paris vẫn có thói quen ở trong những ngôi nhà tư hữu. Những năm trở lại đây việc sở hữu một ngôi nhà đã trở thành mục đích hàng đầu của nhiều gia đình.

Mặt tiền ngôi nhà cũ trước khi cơi nới.
Ngôi nhà Galvani nằm ở quận 17 là một trong những trường hợp bị “bỏ quên” còn sót lại sau những cuộc chinh phục đô thị. Nó là ngôi biệt thự kiểu tư sản ba tầng với khu vườn phía trước và bị kẹp giữa hai ngôi nhà được xây dựng kiểu tân cổ điển. Chủ nhà mới dọn đến có năm người con nên muốn cơi nới thêm ra phía trước để có đủ chỗ cho mọi người. Họ muốn có thêm diện tích nhưng lại không muốn mất đi mảnh vườn phía trước. Bài toán đặt ra là phần cơi nới này được thể hiện kiểu gì để không làm ảnh hưởng tới lịch sử của ngôi nhà cũ cũng như nó sẽ đóng vai trò như thế nào trên bộ mặt của đô thị.
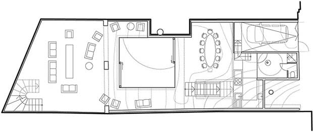
Kiến trúc sư Christian Pottgiesser đã đưa ra giải pháp giải phóng tầng một trong khi khai thác tầng hầm và một phần ở tầng hai. Tầng hầm được đào hết diện tích thửa đất và nối liền với tầng hầm của ngôi nhà cũ. Toàn bộ không gian sinh hoạt chung được đặt ở tầng này. Để có ánh sáng tự nhiên tới nơi đây, hai giếng trời được mở rất khéo léo để vừa mang lại ánh sáng nhưng cũng không làm mất đi diện tích cần thiết.
- Ảnh bên : Khối ánh sáng và không gian
Phần cơi nới ở ngoài đường được thể hiện như một khối “treo” để tránh làm mất đi sự liên hệ giữa ngôi nhà cũ với đô thị. Đây là không gian đa chức năng vừa là phòng làm việc nhưng cũng có thể biến thành phòng cho khách mời. Toàn bộ ba tầng của ngôi nhà cũ được dành cho phòng ngủ và phòng tắm. Ngoài ra, khu vườn được thiết kế lại trên sàn của tầng một.
Với ý tưởng chủ đạo là mối liên hệ với môi trường hiện hữu, phần cơi nới là sự nghiên cứu không gian từ sự tổ hợp của các phần tử kiến trúc hoàn toàn riêng biệt. Việc tìm tòi khai thác các chi tiết đầy sáng tạo của các phần tử kiến trúc này đã mang lại cho công trình nhiều cảm giác bất ngờ.

Tầng hầm thứ hai được khai thác để làm phòng chiếu phim. Mô hình phần cơi nới của ngôi nhà như một bức tượng điêu khắc được tổ hợp từ những phần tử kiến trúc riêng biệt.

|
Ngôi nhà Galvani Địa điểm: Quận 17, Paris |
Đầu tiên phải kể tới bản sàn ở tầng một. Nó được làm từ bêtông và được tạo hình uốn cong. Sự uốn cong ở đây không chỉ mang lại cảm giác tự nhiên của thiên nhiên từ mảnh vườn mà sự uốn cong này còn xác định những không gian cần thiết. Phía ngoài đường nó vươn cao để hình thành không gian để xe cũng như nó tạo cầu nối giữa hai độ cao khác nhau giữa vỉa hè và sàn tầng một của ngôi nhà cũ. Nó cùng một lúc mang ba chức năng, vừa là bản sàn vừa là mái và cũng vừa là tường ngăn.
Phần tử quan trọng nữa của ngôi nhà là không gian đa chức năng được cơi nới phía ngoài đường. Nó được cấu tạo như một cây cầu nối giữa hai nhà hai bên với nhau và trở thành mái che của mảnh vườn ở tầng một. Nó được đặt vào không gian như để lấp đi khoảng trống nhưng đồng thời cũng không muốn làm xáo trộn cái thực thể đang tồn tại. Nó muốn củng cố bộ mặt của đô thị trong khi vẫn tôn trọng sự phát triển của những sinh vật nhỏ nhoi nhất. Nó muốn khác biệt với môi trường xung quanh nhưng sự khác biệt này rất cần thiết cho việc hàn gắn lịch sử.


Mặt hướng ra đường của không gian này được lát đá trắng với sự tổ hợp tự do của những cửa sổ có kích thước khác nhau. Sự tự do này hoàn toàn đối lập với kiểu đối xứng của hai công trình hai bên. Ngoài ngôi nhà cũ, một nhân chứng lịch sử khác cũng đã được giữ lại, đó là cây “tilleul” của khu vườn ngày xưa. Nó được dàn cảnh như được mọc xuyên qua không gian đa chức năng khi thoát qua cửa sổ của mặt tiền cũng như mái của không gian này. Điều đó dẫn đến việc tạo thành một khối ánh sáng trong không gian và nó đã trở thành đồ vật trang trí duy nhất ở nơi đây.
Ý tưởng “treo” được lặp đi lặp lại ở nhiều phần tử, ngoài không gian đa chức năng, hai cầu thang nối liền ba tầng cũng là sự tìm tòi chi tiết đáng bất ngờ. Chúng như hai khối treo trong khoảng không và định vị không gian của từng tầng. Ngoài ra, cũng phải kể đến cửa sổ lớn ở không gian đa chức năng được định vị theo kiểu consol hướng ra phía sau nhà.

Ánh sáng nhân tạo biểu hiện âm hưởng không gian ở lối vào nhà.

Mảnh vườn ở lối vào tầng một. Giếng trời được mở xuống khu bếp ở tầng hầm.
Với việc tìm tòi nghiên cứu đưa ra những định nghĩa hoàn toàn khác “bản chất” quen thuộc của các phần tử kiến trúc, KTS Christian Pottgiesser đã tạo ra những âm hưởng trong không gian rất mới mẻ, những cảm xúc nhiều khi kỳ lạ. Lối vào nhà cũng là mảnh vườn uốn cong phía trước, đây là không gian nửa thuộc về đô thị nửa đã ở trong nhà. Việc đưa toàn bộ không gian sinh hoạt chung xuống tầng hầm để rồi khai thác ánh sáng từ trên trời xuống đã tạo ra ánh sáng và bóng tối thay đổi trong ngày rất sinh động. Không gian đa chức năng được thể hiện một cách “trung tính” đúng theo ý nghĩa tên gọi của nó. Sự “thắt” và “nở” trong không gian khi đi qua những khối cầu thang khép kín. Cửa sổ lớn cũng là nơi ngồi đọc sách được treo trong không gian. Còn rất nhiều các chi tiết khác mà chúng ta có thể nêu ra được, suy cho cùng việc tìm kiếm những cảm giác mới là sự thách thức cho người thiết kế để tạo ra một cuộc sống có giá trị hơn.

Cầu thang được treo trong không gian, một trong những phần tử cấu tạo kiến trúc được tìm tòi để đánh mất thói quen thường lệ / Cảnh nhìn từ mái không gian đa chức năng. Giếng trời mở cho tầng hầm.

Không gian đa chức năng. Khối ánh sáng chứa cây “tilleul” là vật trang trí duy nhất trong không gian này.

Cửa sổ lớn hướng ra sân sau của không gian đa chức năng. Đây là nơi đọc sách hay cũng có thể biến thành giường ngủ.

Không gian sinh hoạt chung hướng ra giếng trời. Ánh sáng và bóng tối rất sinh động khi thời gian thay đổi trong ngày.

Giếng trời từ khu vườn được sơn màu da cam thông xuống bếp. Cầu thang như một bức tượng đặt tự do trong không gian.
Vâng, để có một cuộc sống có giá trị hơn thì đô thị cũng là một nhân tố đóng góp quan trọng. Sức sống của một đô thị là sự thay đổi hàng ngày của nó. Những ngôi nhà mới mọc lên sẽ củng cố hay làm vỡ bỏ cấu trúc tổng thể, đó là trách nhiệm rất nặng nề của những người có quyền quyết định. Phần cơi nới của ngôi nhà Galvani không đến từ một “kiểu” kiến trúc áp đặt từ trước mà ta thường thấy từ một số kiến trúc sư nổi tiếng, nó chỉ là hệ quả của một cấu trúc khu vực. Nó là điểm nối của ngôi nhà cũ với những nhà xung quanh, với đô thị. Nó cũng là điểm nối của thời gian, giữa quá khứ và hiện tại. Và để rồi nó sẽ đóng góp vào vẻ đẹp chung của con phố đó, thành phố đó.
KTS Vũ Hoàng Sơn

