Ngôi nhà của gia đình này nằm ở trung tâm của thành phố Hồ Chí Minh, ở một khu phố đông đúc. Khu đất rộng 3,9m và sâu 17,8m, tách biệt và chỉ có thể tiếp cận được bằng một con hẻm nhỏ. Trong không gian đông đúc của đô thị như vậy, chúng tôi tiếp cận phương án thiết kế bằng giải pháp đưa tự nhiên vào bên trong, đồng thời vẫn giữ được sự riêng tư cho ngôi nhà.
![]()


Vị trí ngôi nhà nằm gần các tòa nhà lân cận, bị hạn chế không gian mở từ phía trước, trên và sau. Do đó, trước sau và phía trên của ngôi nhà được che bởi một “tấm màn che xanh,” để ánh sang tự nhiên và không khí có thể đi vào bên trong, đồng thời tạo thêm khoảng không đệm giữa các tòa nhà lân cận. Tấm màn che xanh này giúp khuếch tán môi trường, lọc ánh sang mặt trời khắc nghiệt, cải thiện tầm nhìn và đảm bảo an ninh, sự riêng tư cho ngôi nhà. Tấm màn là sự kết hợp của bồn cây được đặt tại mỗi tầng, và các khung thép mạ kẽm cho dây leo.



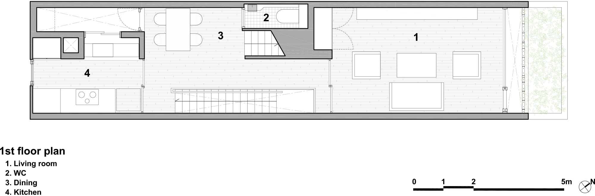
Bên trong tấm màn này là 5 khối phòng sắp xếp so le nhau giữa hai bức tường. Sự sắp xếp này giúp tạo các “khoảng không nhỏ” dọc theo các tầng. Bằng cách này, thông gió tự nhiên sẽ diễn ra theo hiệu ứng ống khói, đồng thời, cung cấp ánh sáng gián tiếp ở khắp mọi không gian trong ngôi nhà. Trong không gian đô thị chật hẹp của khu đất, sự kết hợp của những “khoảng không nhỏ” giữa những khối phòng được sắp xếp so le theo cách này sẽ tạo điều kiện thông thoáng tự nhiên tốt hơn là tạo một khoảng sân lớn riêng lẻ ở giữa. Ngoài ra, kết hợp với các khoảng trống nhỏ dọc, chéo từ khắp mọi nơi, khoảng nhìn được mở rộng và phủ xanh. Cầu thang cũng được thiết kế như là một khoảng trống thẳng đứng, chạy dọc lên tầng thượng, nơi có khoảng sân đầy ánh sáng và cây xanh. Sự sắp xếp các khối phòng kết hợp cùng tấm màn che xanh này giúp giảm việc sử dụng điều hòa, tăng cường thông gió tự nhiên, tạo không gian kết nối và độ sâu cho ngôi nhà.







Tầng mái xanh và cả ngôi nhà được bao phủ bởi một “tấm màn xanh”, tạo ra những không gian thiên nhiên hiếm hoi trong môi trường đô thị như hiện nay. Ngôi nhà góp phần cải thiện môi trường xung quanh, phục vụ như một ốc đảo xanh trong một rừng bê tông và một mô hình mẫu của cuộc sống hiện đại trong một bối cảnh đô thị dày đặc như hiện nay.

Breathing HouseĐịa điểm: Tp Hồ Chí Minh, Việt Nam |










Nguyễn Hoàn

