Với hai yếu tố then chốt là chất lượng sản phẩm và tiến độ thi công, Saint-Gobain Việt Nam được tin tưởng lựa chọn để cung cấp giải pháp trần vách cho các bệnh viện dã chiến.

Tiến độ và chất lượng sản phẩm tiêu chí không thể bỏ qua
Do yêu cầu thi công gấp rút trong 15 ngày đối với bệnh viện dã chiến phòng chống dịch nên các loại vật liệu xây dựng cần phải nhẹ, linh hoạt, kết cấu đơn giản nhưng đảm bảo công năng sử dụng như tấm thạch cao, tấm xi măng sợi được khuyến khích sử dụng trong văn bản hướng dẫn từ Bộ Xây dựng ban hành tại Quyết định số 212/QĐ-BXD.
Cụ thể, tấm thạch cao hay tấm xi măng sợi là những vật liệu nhẹ, được sản xuất theo khổ, nên vận chuyển dễ dàng, giúp tiết kiệm chi phí vận chuyển, nguồn nhân lực, thời gian thi công; đồng thời cũng rất tiện và nhanh khi có nhu cầu sửa chữa, thay đổi hoặc tháo dỡ công trình sau khi hết công năng sử dụng. Khi thi công, khung xương được liên kết nhanh với tấm qua phụ kiện là hoàn thành kết cấu vách ngăn chia hay trần trang trí. Hay với việc đảm bảo hàng hóa cung ứng nhanh với số lượng lớn cho công trình trong giai đoạn này cũng là yếu tố then chốt thúc đẩy tiến độ của cả dự án. Saint-Gobain Việt Nam hoàn toàn đáp ứng được các tiêu chí trên từ nhóm sản phẩm phù hợp, đến chất lượng và khả năng cung ứng.
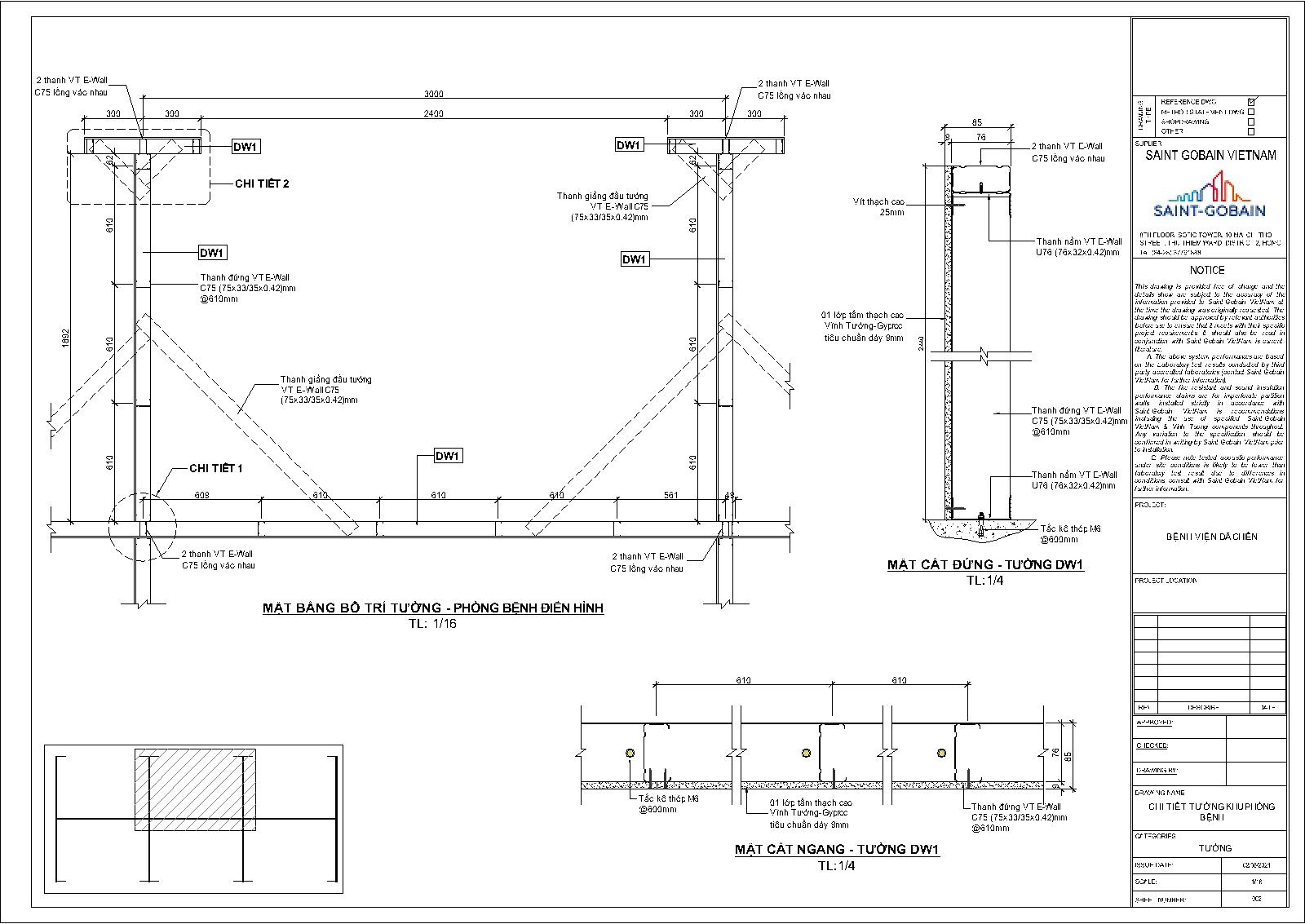
Tại một bệnh viện dã chiến trên địa bàn thành phố Hồ Chí Minh đã sử dụng hệ vách ngăn thạch cao DW1 của Saint-Gobain Việt Nam bao gồm khung xương Vĩnh Tường E-Wall kết hợp với tấm thạch cao Vĩnh Tường-Gyproc Tiêu chuẩn để ngăn chia cho khu vực giường bệnh.

Mặt cắt vách ngăn ứng dụng các sản phẩm Saint-Gobain Việt Nam tại bệnh viện dã chiến cải tạo từ không gian có sẵn
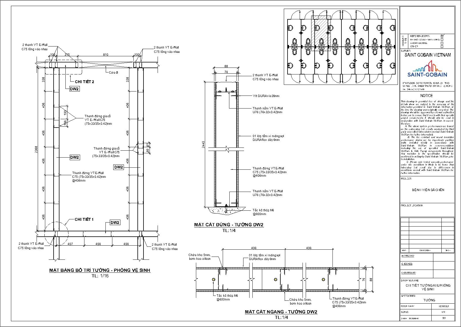
Với khu vực vệ sinh, giải pháp vách ngăn DW2 được sử dụng tấm xi măng sợi DURAflex 6mm với độ bền vượt trội, chịu ẩm, đi cùng với khung xương Vĩnh Tường E-Wall. Tổng diện tích ứng dụng lên đến 30.000m2 khung và tấm.

Tại khu vực ẩm, tấm xi măng sợi DURAflex kết hợp cùng khung xương Vĩnh Tường để làm vách ngăn. Tải đầy đủ bản vẽ tại đây hoặc gọi 1800 1218 để được tư vấn trực tiếp.
Chất lượng sản phẩm khung, tấm được bảo chứng từ các chứng nhận trong và ngoài nước như TCVN, tiêu chuẩn Châu Âu EN 520, ASTM…, đồng thời sản phẩm của tập đoàn Saint-Gobain đều đạt yêu cầu “Low VOCs”; tấm xi măng sợi DURAflex không chứa amiăng, đạt chứng nhận xanh an toàn cho bệnh nhân, đội ngũ y bác sĩ tại các công trình khu vực cách ly, bệnh viện dã chiến.
Luôn sẵn sàng đóng góp vào các công trình chống dịch
Tập đoàn Saint-Gobain Việt Nam không chỉ sở hữu sự đa dạng sản phẩm, giải pháp vật liệu xây dựng, mà còn có nguồn nhân lực chuyên môn cao giàu kinh nghiệm; đồng thời duy trì hoạt động sản xuất đảm bảo cung ứng hàng hóa. Vì thế thời gian qua, Saint-Gobain Việt Nam đã tự tin cung cấp gói dịch vụ chuyên biệt để đáp ứng cho các công trình phục vụ kế hoạch phòng chống dịch bệnh của Chính phủ. Ở đó, nhân sự dự án luôn sẵn sàng tư vấn các giải pháp phù hợp 24/24, lên bản vẽ kĩ thuật và bốc tách khối lượng vật tư nhanh nhất.
“Tham gia tư vấn, cung cấp nhanh giải pháp trần vách chất lượng cho các công trình bệnh viện dã chiến phục vụ công cuộc phòng chống dịch Covid-19 chính là niềm tự hào của chúng tôi. Thông qua những công trình này, Saint-Gobain mong muốn góp sức cùng cộng đồng để cùng nhau mang trở lại một nhịp sống bình thường”, Ông Nguyễn Trường Hải-Tổng Giám đốc Saint-Gobain Việt Nam chia sẻ.

Giải pháp trần vách Saint-Gobain Việt Nam thích hợp cho công trình bệnh viện dã chiến cải tạo và xây mới
Hiện tại Saint-Gobain Việt Nam đã hoàn thiện và cung cấp các gói giải pháp với vách ngăn chia, trần Diệt Khuẩn có khả năng diệt đến 99% vi khuẩn; giải pháp chống thấm; giải pháp ốp lát để ứng dụng cho các công trình bệnh viện dã chiến, khu cách ly xây mới hoặc cải tạo. Các gói giải pháp, sản phẩm của Saint-Gobain đều được phát triển dựa trên tiêu chuẩn của Bộ xây dựng, vì vậy đơn vị chủ thầu hay thi công có thể lựa chọn ứng dụng ngay sau khi tìm hiểu hoặc nhận tư vấn.
Việt Hải

