Đặc điểm lô đất: Có đường trước nhà lớn, phía trước và sau đều là khu doanh trại quân đội nên có nhiều cây xanh, thoáng mát và điểm nhìn rộng.
![]()
Dựa trên nhiệm vụ thiết kế của chủ nhà, các kiến trúc sư đề xuất phương án thiết kế được tóm tắt trong một số điểm như sau:
Ý đồ thiêt kế 1: Một ngôi nhà phố có tầng 1 thông thoáng tối đa.
Giải pháp:
Thiết kế tầng 1 không có tường ngăn ngang, thangđược bố trí dọc tường. Trên 2 lớp cửa đi bố trí hàng gạch thông gió để nhà luôn có lưu thông không khí ngay cả khi đóng cửa


Tầng 1
Ý đồ thiêt kế 2: Tất cả các phòng ngủ đều có chiếu sáng tự nhiên
Giải pháp:
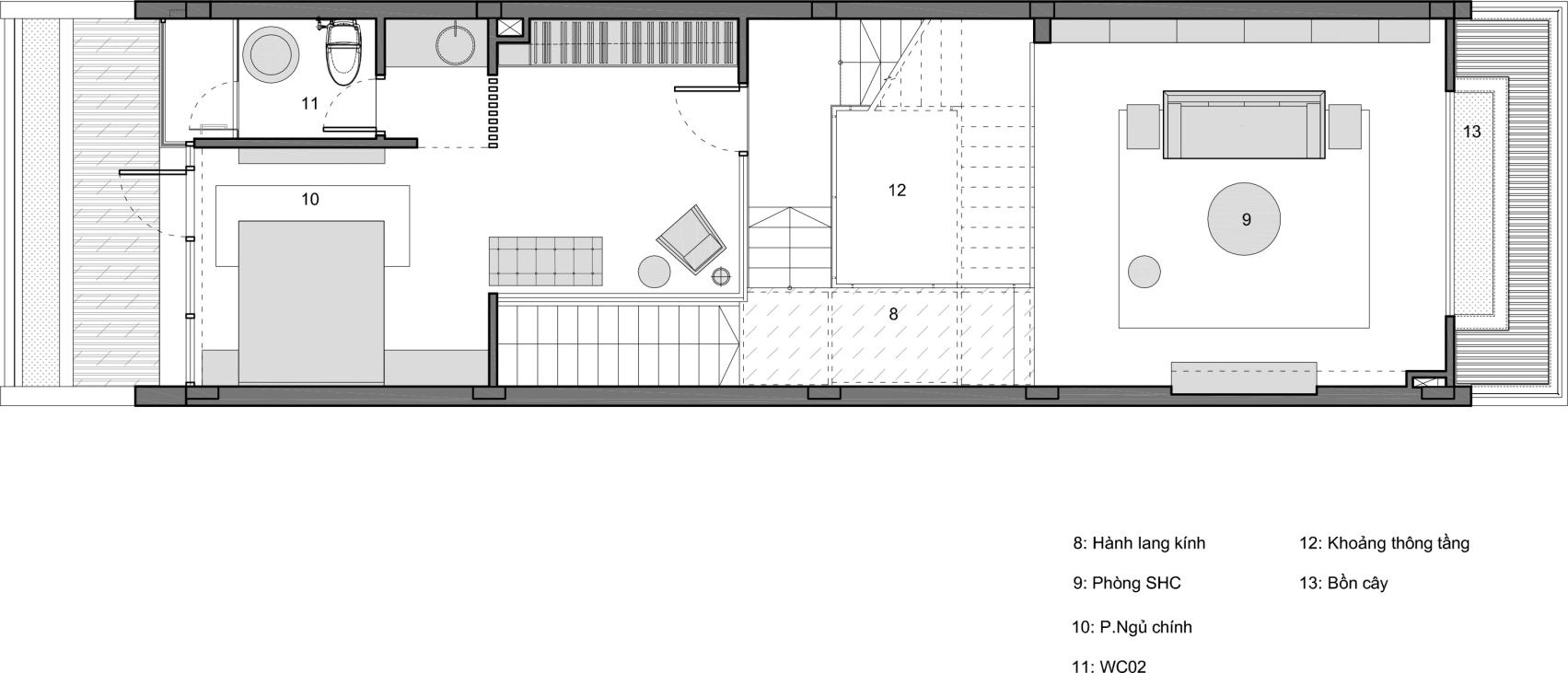
Phòng ngủ 1,2,4 bố trí ở mặt thoáng trước sau, được chiếu sáng tự nhiên trực tiếp. Phòng ngủ 3 dành cho khách nên tần suất sử dụng ít hơn. Dù được bố trí giữa nhà nhưng đổi lại việc thiết kế hệ vách kính thay vì tường gạch nên đủ sáng do nguồn từ mái kính.

Tầng 2

Tầng 3

Tầng 4
Ý đồ thiêt kế 3: Thông gió tối đa cho các tầng
Giải pháp:
Diện tích ô thang đứng lớn, phía trên có mái kính và khe lấy gió và tạo ra thông gió chiều đứng. Kết hợp với thông gió ngang do 2 mặt trước sau thoáng

Ý đồ thiêt kế 4: Không để ánh nắng chiếu trực tiếp qua mái kính
Giải pháp:
Sử dụng lam nhôm dưới các mái kính để “lọc” ánh sáng. Các hệ lam nhôm 25×50 hoặc 25×100 để dưới mái kính với khoảng cách vừa đủ, vừa đảm bảo lấy sáng đồng thời tránh nắng trực tiếp vào trong nội thất

Chi tiết sàn ban công kính tầng 2

Chi tiết hệ lam nhôm sân thượng

Mặt cắt phối cảnh
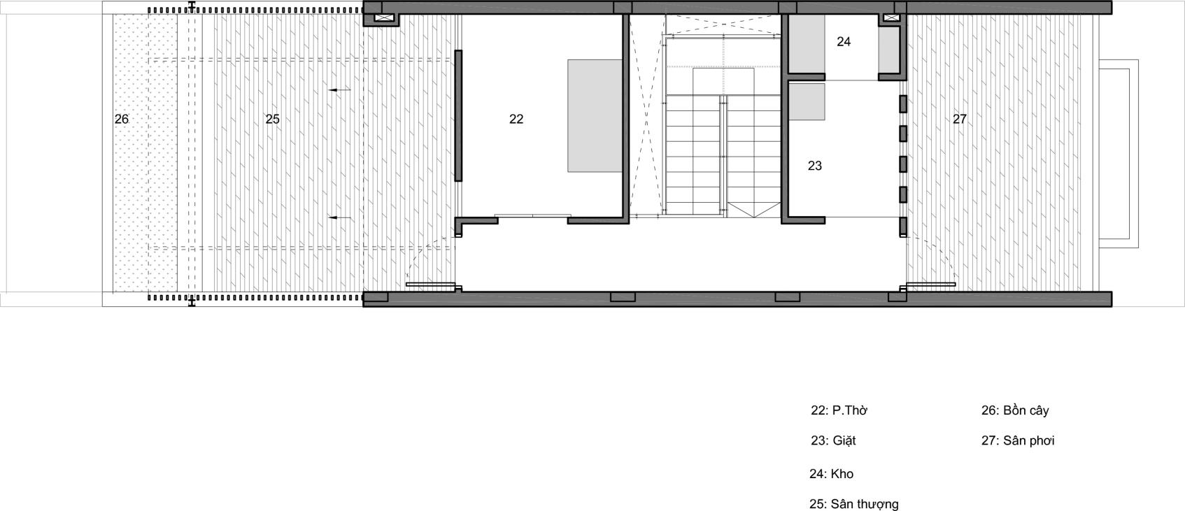
Ý đồ thiêt kế 5: Giảm thiểu tác hại của nắng nóng chiếu trực tiếp vào các phòng ở vị trí mặt tiền
Giải pháp:
Sử dụng lam nhôm đứng và ô văng lớn để chắn nắng trực tiếp cho các vách kính hướng Tây Nam
Ý đồ thiêt kế 6: Kiến trúc và nội thất đồng bộ
Giải pháp:
Thiết kế kiến trúc và nội thất sử dụng một cùng ngôn ngữ. Đồng thời kết hợp điều phối các nhà thầu hợp lý, giám sát tác giả xuyên suốt các giai đoạn từ lúc hình thành ý tưởng tới hoàn thành xây dựng, lắp đặt thiết bị đồ đạc.
Ý đồ thiêt kế 7: Giao thông đứng tạo trải nghiệm không gian nội thất
Giải pháp:
Thiết kế thang các tầng không giống nhau mà thay đổi, cùng với các hành lang tạo thành một chuỗi các trải nghiệm không gian cho người sử dụng khi di chuyển theo chiều ngang và chiều đứng.
Thông tin dự án:Vị trí: Quận 12, Tp Hồ Chí Minh |

Một số hình ảnh ngoại thất công trình sau khi hoàn thiện

Phòng khách, ăn, bếp, sinh hoạt chung

Hình ảnh cầu thang sắt, lan can kính và bậc thang ốp gỗ tự nhiên

Hình ảnh sân thượng
D3 Architecture

