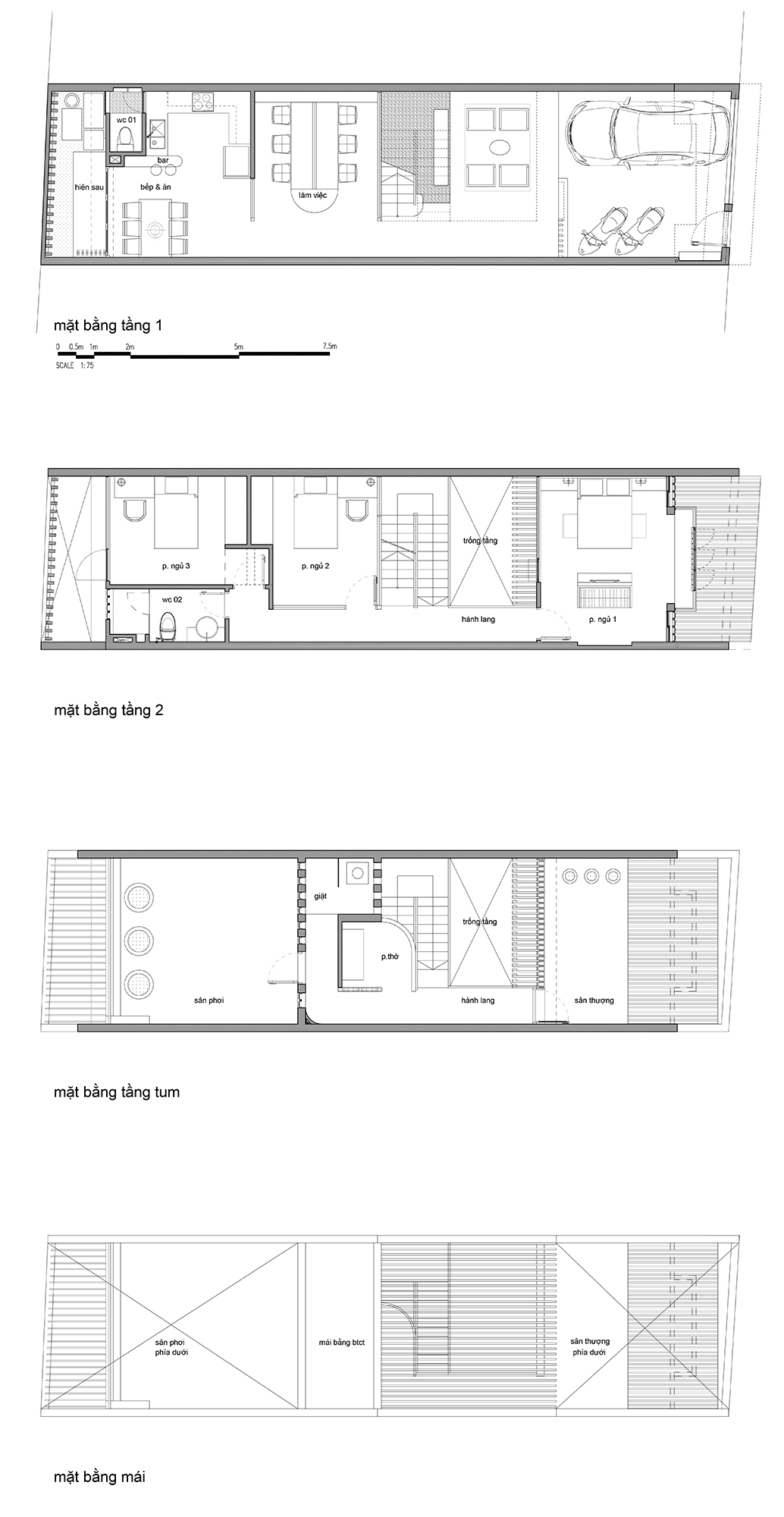
Ngôi nhà 2 tầng, một tầng tum thang và sân thượng được thiết kế cho một gia đình trẻ, năng động tại thành phố Vũng Tàu. Xây dựng trên khổ đất 5x19m, D3 Architecture
tạo ra một không gian kiến trúc hiện đại, sử dụng nhiều vật liệu mộc trong nội thất. Bên cạnh những khoảng trống trồng cây xanh nhỏ. luồng thông gió tự nhiên qua các giếng trời và đặc biệt, khoảng trống tầng trung tâm cùng với ánh sáng được lọc qua hệ nan gỗ là điểm nhấn tạo nên điểm riêng của Thai House.
![]()

Mặt cắt phối cảnh
| Địa điểm: Bình Giã, TP Vũng Tàu
Thiết kế: D3 Architecture Chủ đầu tư: mr Thai Diện tích: 5 x 19,5 (m) Năm hoàn thành: dự kiến giữa năm 2020 |


Không gian kiến trúc hình thành bởi các yếu tố căn bản khối, mảng, đường và điểm. Các kiến trúc sư muốn tái hiện vẻ đẹp trừu tượng của không gian bằng cách sử dụng phần mềm để tạo ra các phối cảnh 3D minh họa không gian kiến trúc với một vật liệu đơn nhất.

Góc nhìn không gian thông tầng

Không gian thông tầng, hành hang và mái kính lấy sáng

Hành lang dọc tầng tum


Ảnh công trình trong quá trình thi công, dự kiến hoàn thiện giữa năm 2020
D3A

