Chủ nhà là những người trẻ hiện đại và cũng yêu thích cách tiếp cận kiến trúc tối giản theo tinh thần “Less Is More”.
Khu đất rộng 80m2 nằm ở cuổi hẻm, thường gọi là “nhà trong hẻm cụt”, lại thêm một hạn chế khi có cạnh mặt tiền bị vát chéo. Tuy nhiên với ưu thế là nhà phố nhưng bề ngang đến 6m, ngay từ lúc tới khảo sát hiện trạng các kiến trúc sư đã hi vọng sớm tìm ra một phương án thiết kế hiệu quả và riêng biệt.
![]()

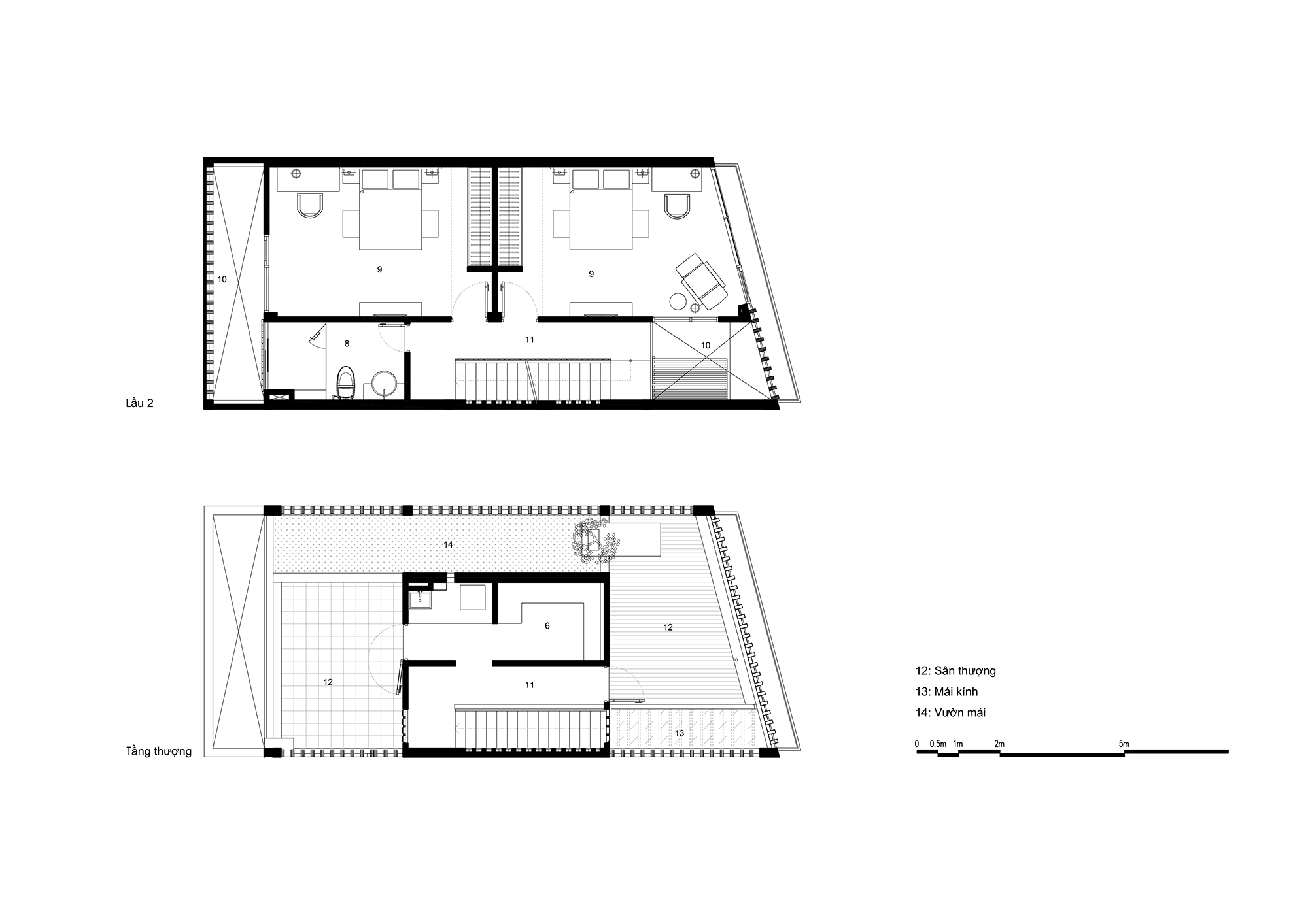
Sâu trong hẻm cụt, bốn bề đều đã có nhà ở được xây dựng với chiều cao từ 2 tới 6 tầng nhưng nhà thiết kế đặt mục tiêu tất cả các không gian sinh hoạt và hành lang phải được chiếu sáng và thông gió tự nhiên.
Hẻm hút gió, rõ ràng có thể tăng khả năng thông gió tự nhiên cho toàn nhà.
Thiết kế tầng trệt để thoáng và không bị ngăn chia bằng tường đặc cùng với một khoảng trống tầng lớn phía cuối nhà đã tạo ra dòng không khí lưu chuyển mạnh mẽ liên tục.


Gạch để mộc hoặc được sơn phủ trắng ngà được sử dụng với khối lượng lớn trên mặt tiền, tường hậu, tường phòng ăn, tường cầu thang, tường sân thượng…Tổng cộng có sáu thiết kế pattern từ gạch mộc đã hình thành phương án sử dụng vật liệu trang trí chủ đạo trong thiết kế của Tri House.
Các khoảng trống tuy nhỏ nhưng có thể làm không gian sống nhà phố gần gũi thiên nhiên hơn. Gió mát vào nhà làm khoan khoái, mưa tí tách ở sân nhỏ trước và hiên sau giúp tâm hồn thức tỉnh, đánh thức những kí ức xưa đẹp đẽ. Nắng nhẹ nhàng trải trên các bức tường gạch mộc và dần dần thay màu theo thời gian trong ngày chính là một vẻ đẹp được ban tặng của mẹ thiên nhiên.

Phòng khách

Phòng bếp & ăn

Phòng ngủ phía trước

Phòng ngủ phía sau







Ảnh chụp công trường trong quá trình thi công và hoàn thiện.
| Tri House Địa điểm: An Dương Vương, Quận 5, Tp Hồ Chí Minh Kiến trúc sư: D3 Architecture Thiết kế kết cấu: Võ Anh Quốc Thi công chính: Lê Công Tráng Diện tích: 80m2 Chiều cao tầng: 3,5 Năm thiết kế: 2019 |

