Có vài cảm giác về không gian chúng tôi đã thấy được ở đâu đó – màu xanh thiên nhiên đập vào mắt mỗi sáng sớm, tiếng lá xào xạc vào mỗi buổi khuya. Những cảm giác này được chúng tôi đem đến thành phố biển Vũng Tàu qua một thiết kế mới, ngôi nhà nhỏ cho một gia đình 4 người – những người yêu thích thiên nhiên và sự tươi mát. Thông qua việc giao tiếp với tự nhiên ở mọi thời điểm, con người và cây xanh trở nên gần gũi hơn, không gian mở ra nhưng vẫn có được sự riêng tư cần thiết. Đó là vấn đề đặt ra cho những không gian đông đúc, khói xe hiện nay.

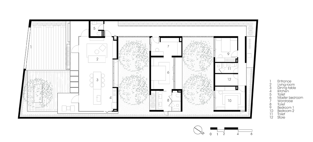
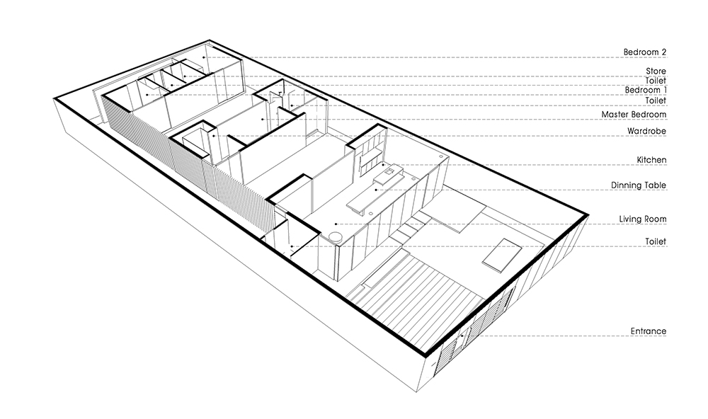
“Nhà Hộc Kéo” là ngôi nhà một tầng nằm trên khu đất 470 m2 với hơn 60% diện tích dành cho tự nhiên. 60% đó được đóng mở khéo léo thông qua những vách ngăn để con người có được cảm giác cây xanh ở khắp mọi nơi. Với một không gian khoảng 180m2 chúng tôi chia thành những “hộc” nhỏ chứa đựng công năng sử dụng bên trong, xen vào giữa chúng là các “hộc” cảnh quan. Các “hộc” này cùng nằm trên một phương nhưng việc tạo ra những vách ngăn so le khiến người sử dụng có cảm giác các khối phòng đặt lệch nhau như những hộc kéo đóng mở ngẫu nhiên, tương tự việc kéo hộc bàn và lấy ra một đồ vật cần thiết, chúng tôi mong muốn con người và cây cối tương tác với nhau một cách tự nhiên nhất. Con người khi hoạt động bên trong sẽ có những cảm nhận khác nhau ở từng vị trí bởi sự thay đổi đặc – rỗng sáng – tối linh hoạt.
Tất cả các “hộc” được kết nối với nhau qua một hành lang dài xuyên suốt công trình được nhấn nhá bởi hàng cúc tần xanh đầy sức sống – thủ pháp bố trí mảng xanh như một tấm rèm che giảm bớt cái nắng gay gắt của miền nhiệt đới đồng thời cũng tạo những họa tiết thú vị và biến đổi linh hoạt khi ánh nắng xuyên qua.



Những vách ngăn kết thúc khoảng sân vườn để tạo sự riêng tư đồng thời đảm nhận vai trò kiến tạo không gian chức năng kế tiếp. Ánh nắng len lỏi đổ bóng xuống thềm nhà tạo nên nhiều góc nhìn mới lạ, ranh giới giữa trong và ngoài nhẹ nhàng để con người có thể cảm nhận trọn vẹn sự thay đổi của tự nhiên. Những “hộc kéo” là sự đóng mở các phòng giúp đối lưu không khí và làm mát cả toàn bộ không gian sống. Cả ngôi nhà như một cơ thể sống mang sứ mệnh kết nối con người với con người, con người với thiên nhiên.
Triết lý thiết kế của MIA là tận dụng tối đa sự liên kết không gian sử sụng với ánh sáng, gió và những mảng sân vườn nhưng vẫn giữ được tính riêng tư cho từng không gian trong căn nhà. Và cũng không nằm ngoài tiêu chí đó, ý tưởng “NHÀ HỘC KÉO” với cách xây dựng hình khối, không gian hài hòa, chất liệu tối giản nhưng hiệu quả đã tạo nên một công trình mang hơi thở của thiên nhiên với những giải pháp hữu ích nhằm mang lại chất lượng cuộc sống tôt nhất cho người sử dụng.




















Thông tin dự án:
- Địa điểm: Vũng Tàu, Việt Nam
- Công ty thiết kế : MIA Design Studio
- Chủ trì thiết kế: KTS. Nguyễn Hoàng Mạnh
- Thiết kế ý tưởng: KTS. Nguyễn Hoàng Mạnh, KTS. Nguyễn Quốc Long, KTS. Nguyễn Văn Thiên
- Thiết kế kỹ thuật: KTS. Bùi Hoàng Bảo
- Triển khai: KTS. Nguyễn Thị Mai Phương
- Thiết kế nội thất: Steven Baeteman, Lữ Minh Khang.
- Hoàn thành: 06/2016
- Nhiếp ảnh: Hirouyki Oki

