Công trình cải tạo này bao gồm tầng áp mái và tầng mái của một tòa nhà được xây dựng bằng bê tông, tọa lạc ngay trung tâm thành phố Vinh – một thành phố thuộc Bắc Trung Bộ Việt Nam.

Từ những tầng này, có thể phóng tầm nhìn tuyệt vời ra những ngôi nhà thấp tầng xung quanh, hướng về phía dòng sông, khung cảnh rừng tuyệt đẹp và những tòa nhà đã nhiều tuổi. Các tòa nhà trong khu vực này đã bị chiến tranh Việt Nam phá hủy. Hầu hết trong số đó cũng đã được cải tạo với mặt tiền phong cách thuộc địa lấy cảm hứng từ thiết kế châu Âu. Ngày nay, bất kể chiều cao, một số tòa nhà vẫn bắt chước kiểu mặt tiền này.
Khách hàng yêu cầu không thay đổi hình thức bên ngoài của tòa nhà hiện hữu, nhưng phải tạo được một không gian độc đáo và hấp dẫn để có thể biến tòa nhà thành một biểu tượng của thành phố.
Thử thách ở đây là tạo một tác động vào tòa nhà bằng cách đưa một kết cấu mới độc đáo,và mang tính địa phương.
Sau khi nghiên cứu một số loại vật liệu địa phương như gạch, đá, gỗ…chúng tôi chọn tre làm vật liệu chủ đạo cho công trình. Từ kinh nghiệm thực tế chúng tôi biết tre rất dễ dàng khai thác trong điều kiện khí hậu nhiệt đới, tiết kiệm thời gian thi công và kinh phí.
Bản chất của việc sử dụng tre trong dự án này là ”sự nhẹ nhàng”. Tre có thể được nâng lên bởi vài công nhân hay dễ dàng vận chuyển lên cao bằng cẩu. Ngoài ra, việc lắp đặt kết cấu tre mà không cần bất cứ kết cấu phụ trợ nào là điều hoàn toàn khả thi.


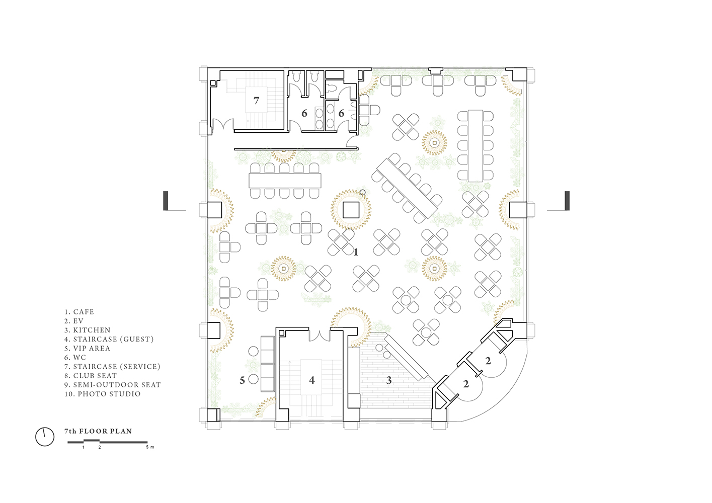
Tại tầng 7 (tầng áp mái), các cột bê tông kết cấu hiện hữu được bao phủ bằng tre và biến nó thành một yếu tố để tạo nên chất lượng không gian. Trần nhà cũng được bao phủ bằng tre đan tiếp nối từ cột, nên mọi người có thể nhận ra được không gian này ngay cả khi đi trên đường phố. Có 10 cột bê tông được bao phủ bởi tre và 4 cột tre khác được thêm vào. Chúng sẽ phân chia một cách nhẹ nhàng thành các không gian riêng tư khác nhau.
Không gian như như một hang động không thể trải nghiệm hết từ một góc nhìn, nhưng mỗi vị trí đều có tầm nhìn thoáng đãng ra thành phố xung quanh.
Sự kết hợp khối vòm và 2 hành lang hình chữ nhật trên tầng mái vừa vặn với mặt bằng hình chữ L hiện hữu. Các khối hành lang vòm này tạo khung nhìn về phía sân vận động thành phố và cảnh quan đô thị tuyệt đẹp.

| Địa điểm: tầng 7-8, số 23 Quang Trung, Thành phố Vinh, Nghệ An Thiết kế: VTN Architects (Vo Trong Nghia Architects) Kiến trúc sư chủ trì: Võ Trọng Nghĩa, Nguyễn Tất Đạt Nhóm thiết kế: Tô Quang Cầm, Lê Hoàng Tuyết Ngọc, Takahito Yamada Chức năng: Café, Club Diện tích xây dựng: 438m2 Tổng diện tích sàn (GFA): 687 m2 Thi công: VTN Architects Hoàn thành: tháng 05/2018 Nhiếp ảnh: Triệu Chiến |













Kim Hoàn

