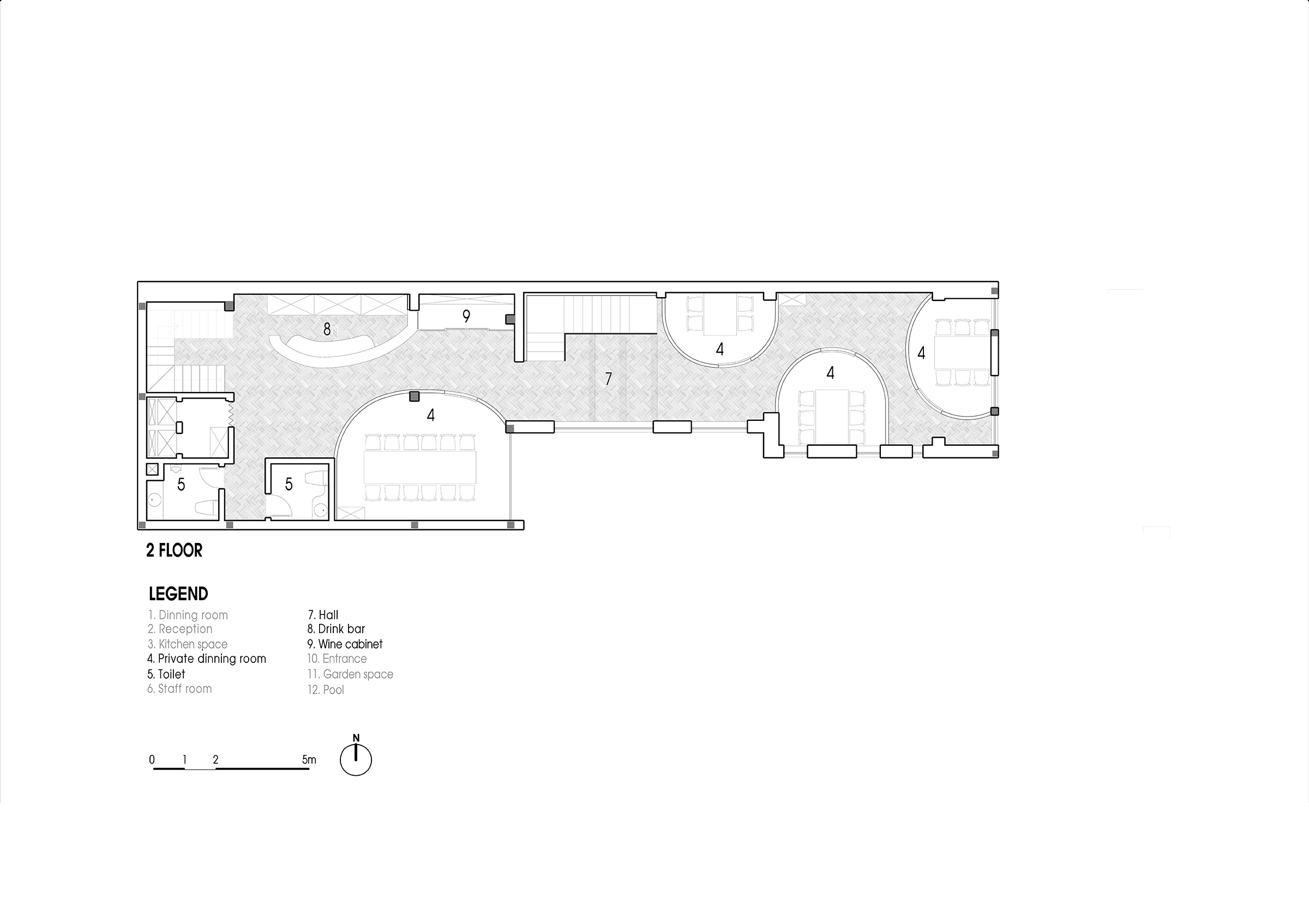
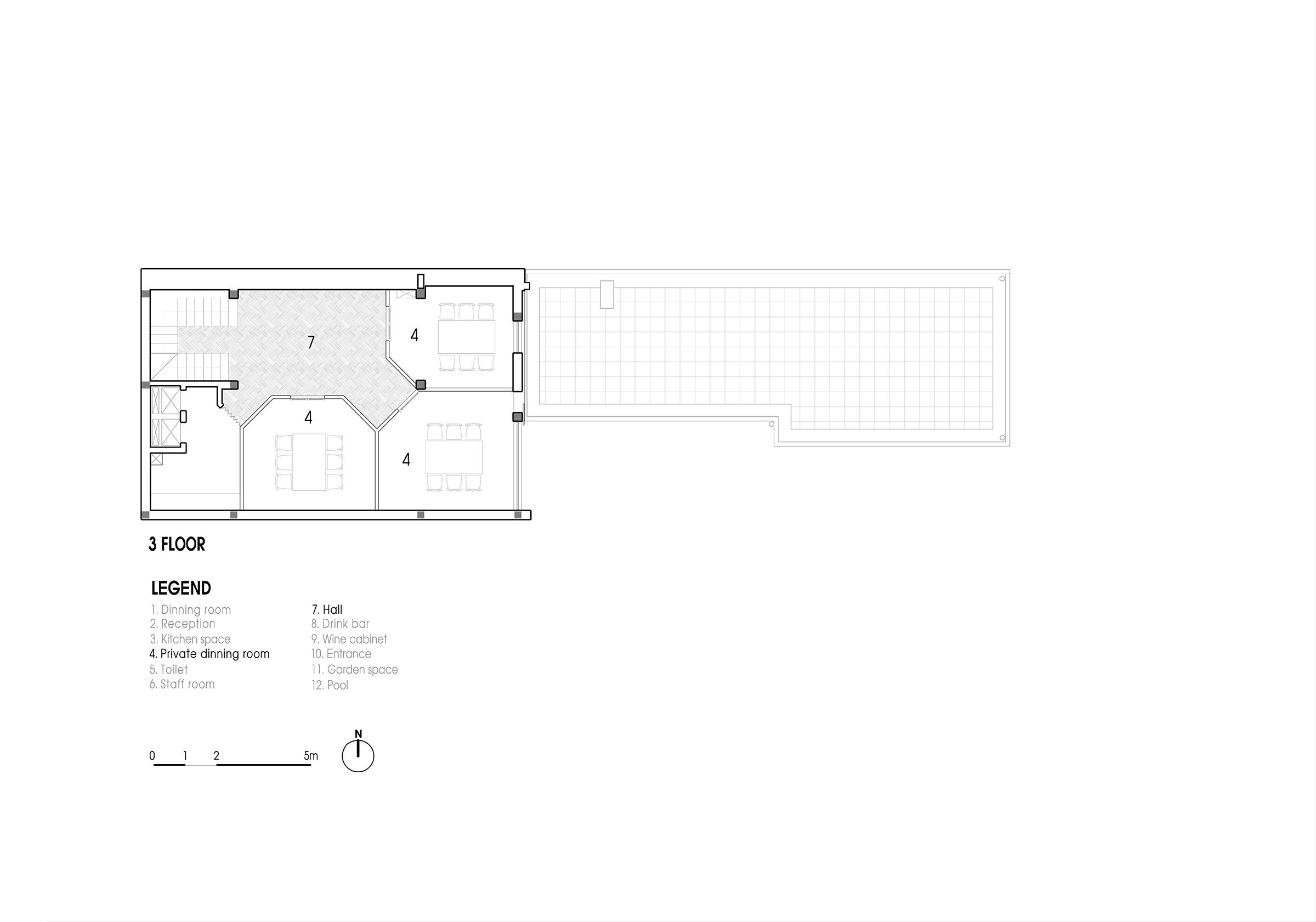
Nhà hàng được thiết kế cải tạo từ một căn nhà hình ống dài trên phố 53 Hàng Chuối, một phố cũ ở Hà Nội, với công năng là phục vụ các món thịt bò nướng cao cấp từ Nhật Bản. Một cây lớn có nhiều năm tuổi trong khuôn viên khu đất, đóng vai trò quan trọng trong việc hình thành lên thiết kế cảnh quan bên ngoài cho nhà hàng. Không gian ăn chung được bố trí ở tầng 1, đồng thời không gian cho các phòng ăn riêng sang trọng được đặt ở tầng 2 và tầng 3.
![]()
Ý tưởng thiết kế chủ đạo là tạo ra một không gian cấu thành từ những ánh pha lê tương phản với chất liệu gốm và không gian cảnh quan mềm mại sâu lắng bên ngoài nhà hàng tạo ra cảm giác sang trọng và tinh tế.


Bên ngoài nhà hàng được nhận diện bởi các ô cửa sổ kính dạng hình đa giác – được lấy cảm hứng từ những góc cạnh của các khối tinh thể pha lê – có hình dáng dường như tự do song có độ mở được tính toán cho từng vị trí phù hợp với góc nhìn cảnh quan và vị trí ngồi của thực khách tạo, tạo sự biến đổi trong trải nghiệm bên trong và kết nối một cách đa dạng với không gian cảnh quan bên ngoài.
Lối dẫn vào nhà hàng là đi dạo qua một khu vườn dưới tán cây lớn, xen lẫn cảnh quan mềm mại ở tầm thấp. Thực khách sẽ dừng chân trước một hồ nước phản chiếu, quan sát và cảm nhận được hoạt động trong bếp nhà hàng thông quan một ô cửa sổ lớn. Không gian ăn chung ở tầng 1 nối tiếp mở rộng với cảnh quan bên ngoài qua những ô cửa sổ kính hình đa giác.





Tầng 2 là các phòng ăn với vách gạch kính cong, nguồn ánh sáng từ dưới chân vách kính phản xạ lên toàn bộ bức tường , tôn lên vẻ đẹp pha lê của chất liệu cũng như hiệu ứng ánh sáng khi nhìn từ bên trong phòng cũng như lối đi bên ngoài. Bộ cửa kính cong được chế tạo từ kính có hoa văn sần thủ công được chế tạo riêng cho nhà hàng , tạo sự đồng bộ với tường gạch kính.











Các phòng ăn trên tầng 3 được ngăn cách bởi bức vách kính ép vải lụa tơ tằm ở giữa có màu vàng óng, những vách kính này vừa tạo không gian thông thoáng nhưng lại không nhìn xuyên thấu sang phòng bên cạnh, tạo cảm giác vừa rộng rãi vừa kín đáo. Đèn pha lê hình elip được thiết kế riêng tạo điểm nhấn chiếu sáng cho các phòng ăn riêng tầng 3.
Toàn bộ sàn được sử dụng gạch gốm từ làng nghề Bát Tràng, với tính chất bề mặt vừa thô mộc vừa bóng với màu sắc biến đổi từ quá trình hỏa biến được sử dụng trên khắp các sàn từ tầng 1 lên 3 vừa có chất mộc mạc nhưng có độ bóng, cộng hưởng với chất bóng của gạch kính và pha lê trong nội thất.







Thông tin dự án:Địa điểm: 53 Hàng Chuối, Hà Nội |

