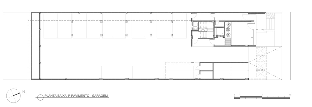
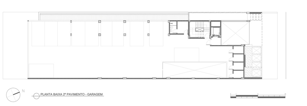
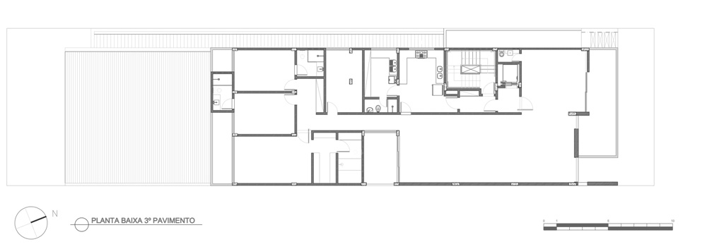
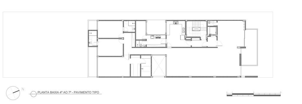
Maiorca là một tòa nhà chung cư được thiết kế bởi Lourenço & Bruno Sarmento Arquitetos tại thành phố Juiz de Fora, Brazil, gồm 5 căn hộ với ước chừng mỗi căn 260 m2 mặt bằng và 2 căn hộ penthouse, tọa lạc tại một khu dân cư cao cấp của thành phố.
- Kiến trúc: Paulo César Lourenço & Bruno Sarmento
- Địa điểm: Juiz de Fora, MG, Brazil
- Kết cấu : Protec Engenharia
- Xây dựng: Suport Engenharia
- Điện & nước: Primus Engenharia
- Diện tích khu đất: 600 m2
- Diện tích xây dựng: 3,300 m2
- Thời gian xây dựng: 2005-2007
- Chụp ảnh: Marcio Brigatto























