Quán cà phê gỗ phế liệu nằm trên một diện tích nhỏ 4 x 16m trong một con hẻm. Vật liệu của quán được chọn làm toàn bộ bằng gỗ Pallet, gỗ thùng đã qua sử dụng. Nhờ vật liệu này rẻ nên việc thi công ít tốn kém nhanh và đáp ứng việc bảo vệ môi trường mà vẫn có nét độc đáo riêng.

Hình khối bên ngoài như chiếc hộp
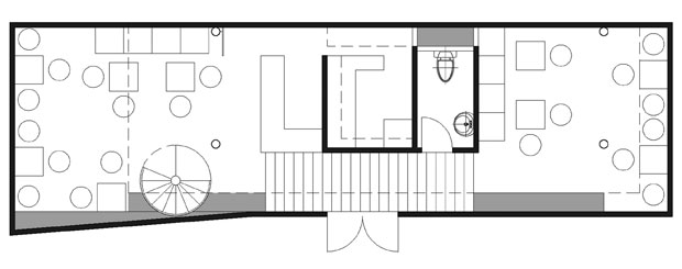
Về kiến trúc quán có hình khối chân phương như một chiếc hộp dài treo lơ lửng, phía dưới không gian được rộng mở không có ngăn cách để nhìn ra bên ngoài có những góc cây xanh nho nhỏ. Tầng trên là không gian kín đáo hơn với các cửa sổ dài hẹp. Vì diện tích hạn chế nên người thiết kế đã loại bớt các cột chịu lực và dùng khu vực pha chế và vệ sinh nằm ngay chính giữa để làm trụ chịu lực chính cho cả tầng trên, ngoài ra chỉ trợ lực thêm bằng hai cột sắt tròn nhỏ. Nhờ vậy nên dù diện tích nhỏ nhưng mặt bằng khá thoáng, dễ cho việc bố trí bàn ghế.
| Thiết kế: KTS Lê Thanh Phong Thi công: Địa chỉ quán: |
Bên cạnh đó, toàn bộ bàn ghế trong quán cũng được làm từ gỗ tận dụng kết hợp khung sắt có đường nét đơn giản. Ngay cả quầy bar cũng được làm bằng loại gỗ này để tạo sự đồng nhất.
Cầu thang cuốn được coi là điểm nhấn ở đây với vật liệu bằng sắt có lưới cuốn như một ống tròn.
Cây xanh ở đây tạo cảm giác mộc mạc khi có những bụi cỏ lau, và cây leo ngẫu nhiên tạo cảm giác gần gũi với mọi người.

Tầng trên với nhiều cửa sổ dài và hẹp để lấy sáng

Cũ kỹ nhưng ấm cúng

Thống nhất một loại vật liệu kể cả bàn ghế, kệ đựng sách báo / Cầu thang lượn vừa làm mềm không gian quán vừa phù hợp với không gian hẹp

Có cả những góc ngồi ngoài sân / Cũng có nhiều góc ngồi thơ mộng.

Mặt bằng tầng 1

Mặt bằng tầng 2
Thu Thuỷ

