Khách sạn Bandung Hilton với diện tích dự án rộng 30.000m2 được hoàn thành trong năm 2009 do công ty kiến trúc WOW Architects và Warner Wong Design thiết kế. Yêu cầu thiết kế của công trình khách sạn 5 sao bao gồm 186 căn phòng hiện đại dành cho danh nhân với một phòng hội nghị tiêu chuẩn cao cấp và các không gian tiện ích phục vụ cho các buổi hội họp dành cho doanh nhân cũng như khách du lịch.

Nhằm đáp ứng yêu cầu thiết kế đề ra, nhóm thiết kế đã định hình nên ý tưởng một resort ngay tại đô thị có cảm hứng bắt nguồn từ đặc điểm địa hình của khu vực Bandung, vốn bao xung quanh bởi các ngọn núi lửa, đồng thời hòa quyện với nền văn hóa Nhật Bản và tương tác về thị giác với quang cảnh đồi núi. Kết quả của việc kết hợp giữa hình thái đô thị địa phương và những đặc điểm địa lý đã tạo nên một trải nghiệm xuyên suốt cho toàn khách sạn mà phá bỏ đi những đường ranh giới giữa bên trong và bên ngoài khách sạn và ủng hộ những tương tác giữa khách và người dân địa phương tại khu vực.
Khách sạn Hilton Bandung đã thử thách những cách thiết kế và trải nghiệm khách sạn thông thường khác tại hình thái đô thị Châu Á. Công trình nổi bật, thể hiện được sự phát triển, nhưng công trình cũng sử dụng kính và các bức tuờng đá đã hình thành nên sự tương quan với những di sản của thành phố và vì vậy đã chinh phục được đa phần khách người Indonesia. Công trình này cũng không có đối chọi trực tiếp với phong cách kiến trúc Art Deco vốn chiếm phần lớn tại khu vực do ảnh hưởng của thuộc địa Hà Lan tại khu vực Bandung trước đây. Đồng thời nó cũng làm tôn lên vẻ đẹp và gia tăng trải nghiệm du lịch truyền thống cho khu vực mà Bandung được biết đến.





Giải pháp cho kiến trúc công trình và các không gian nội thất
Nhóm thiết kế bám sát các tiêu chí thiết kế tôn trọng địa điểm khu vực cũng như văn hóa địa phương đuợc hình thành dựa trên quang cảnh thiên nhiên và sự phát triển đô thị khu vực. Quá trình thiết kế cho dự án này cũng đồng thời dựa trên một sự nghiên cứu cặn kẽ về nền văn hóa, điều kiện kinh tế, đặc điểm vi khí hậu của khu vực Bandung.
Bandung tại phía bắc đảo Java, Indonesia, đã từ lâu là điểm đến du lịch thư giãn, nghỉ ngơi lý tưởng cuối tuần. Khu vực có được một thời tiết khá dễ chịu trong suốt năm với nhiệt độ trong khoảng 24oC với địa điểm tại khu vực thung lũng trong dãy núi Parahyangan. Sau khi đất nước Indonesia dành được độc lập từ người Hà Lan vào năm 1945, quá trình phát triển và đô thị hóa nhanh chóng đã biến đổi hoàn toàn Bandung từ một thị trấn heo hút trở thành trung tâm đô thị sôi động với mật độ dân số lên đến 15.000 người/km2. Mặc dù có mật độ dân cư đông, Bandung vẫn giữ được một vẻ đẹp tiềm ẩn thu hút khách du lịch cuối tuần, khách tham quan và doanh nhân từ Jakarta và các khu vực xa hơn.






Khu đất nằm trong chính trung tâm của thành phố, một địa điểm từ cuối thế kỷ 20 với các khách sạn nghỉ dưỡng và biệt thự bố trí trên các dãy đồi núi về phía bắc từ trung tâm thành phố. Khách sạn Hilton Bandung, tọa lạc ngay cạnh nhà ga trung tâm Bandung nhìn qua một khu đất lớn trước đây bị chiếm đóng bởi công trình quân đội, đã mang lại một xúc tác cho việc khôi phục lại trung tâm đô thị của thành phố. Khoảng cách thuận tiện đến nhà ga trung tâm đã mang lại sự thuận tiện và khuyến khích khách du lịch Indonesia đi tận hưởng du lịch cuối tuần từ Jakarta bằng tàu, vì vậy đã giảm thiểu ách tắc giao thông đường bộ.
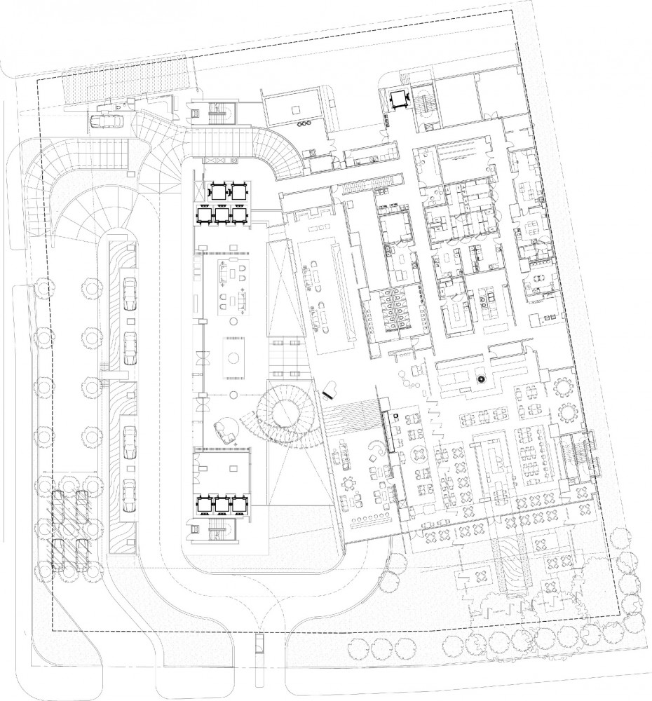
Địa hình của Bandung, với dãy núi lửa bao quanh, đã tạc địa hình đô thị trở thành một khu vực với các ngọn đồi và các thung lũng, và một khu vực lòng sông trung tâm nơi mà các không gian sử dụng chung của khách sạn được bố trí. Cả mặt phẳng cảnh quan được gập lại hình thành nên một bức tường đá lớn đối diện với sảnh chính, với những văn hoa chạm trổ có cảm hứng xuất phát từ văn hoa của kỹ thuật in hoa truyền thống của đảo Java. Khi bức tường lớn này kéo lên phía trên, nó bao lấy toàn bộ khu vực tiếp tân, phòng hội nghị, trung tâm thương mại và spa và tiếp tục kéo lên đến khu vực thư giãn nghỉ dưỡng phía trên mái. Cách thức lộ dần ra của các không gian kiến trúc, cảnh quan và nội thất đã mang lại một trải nghiệm tổng thể mang lại nhiều giác quan thể hiện tinh thần của khu vực Bandung.



Một loạt những cây cầu và cầu thang cho phép sự dịch chuyển nhẹ nhàng của khách du lịch đến sảnh hội nghị, phòng ăn, trung tâm thương mại và spa. Ấn tượng nhất là cầu thang xoắn nhô ra không đối xứng nơi mà khách có thể đi dạo trước khi vàp sảnh hội nghị trong những đám cưới và sự kiện.
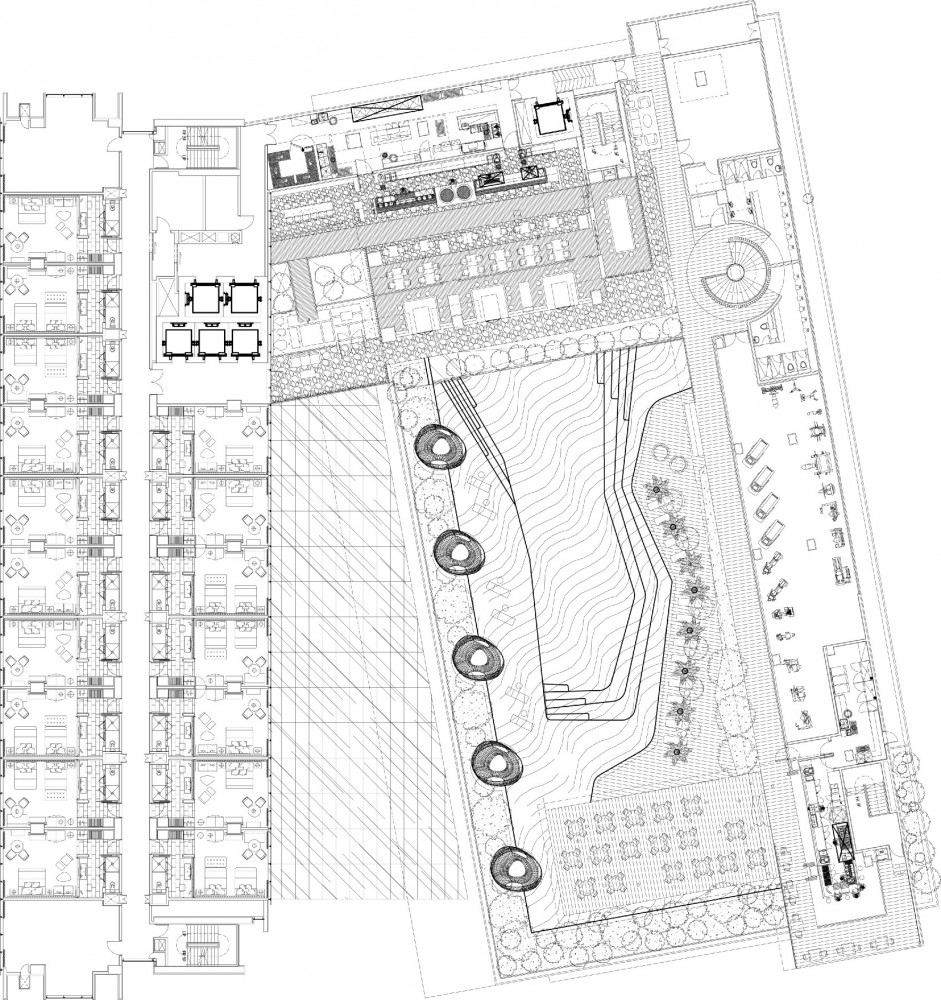
Tại khu vực vườn cây xanh trên mái, sự cách điệu hiện đại của nền văn hóa bản địa đảo Java với những chòi nhỏ được bố trí dọc theo hồ nước có cây xanh tươi mát của khách sạn, mang đến các không gian thân thuộc và được che bóng mát cho các nhóm gia đình. Một nhà hàng ngoài trời có tầm nhìn hướng ra hồ bơi đã hoàn thiện hoàn toàn bầu không khí nghĩ dưỡng của khách sạn.
Các khối cánh bố trí phòng được thiết kế treo nhô ra trên cảnh quan địa hình phía dưới với các khối vuông góc. Khối chính hướng phía bắc và phía nam hướng đến các góc nhìn bao quát đến dãy núi, và khối hướng tây nhìn ra khu vực sân hiên thư giãn.




Phần lớn các phòng khách sạn được thiết kế rộng rãi 40 m2 phù hợp với những yêu cầu du lịch của các gia đình Indonesia có nhiều thành viên và thường ở chung với nhau trong cùng một phòng. Các căn phòng này có lối vào từ một khu vực có các thang máy riêng tại tầng sảnh, từ đây tách biệt khỏi sự ồn ào của các không gian công cộng. Tất cả các phòng bao gồm cả phòng tắm tường kính mang lại các góc nhìn ngoạn mục của phong cảnh đồi núi bao quanh, đã làm tôn lên bầu không khí sang trọng nghỉ dưỡng của khách sạn. Giống như các khu vực công cộng, các phòng đều được hoàn thiện với trang thiết bị cao cấp và đa dạng chất liệu sử dụng có cảm hứng xuất phát từ vẻ đẹp của đảo Java. Các thanh gỗ ấm áp, các sợi vải uốn luợn Ikat và các tấm thảm theo phong cách dệt văn hoa đã tiếp tục hoàn thiện hơn cho truyền thống du lịch đẹp quyến rũ của khu vực Bandung, Indonesia.
KTS Vũ Linh Quang – Công ty Kiến trúc ARDOR Architects (biên dịch từ ArchDaily)
![]()

