Nằm ở TP Land Salzburg (Cộng hòa Áo), Sighartstein là một trường mẫu giáo có hai tầng, đóng góp một cách tối ưu các chức năng của một nhà trẻ. Trường do Hãng Kadawittfeld Architektur thiết kế và được xây dựng trong hai năm từ 2008-2009 với tổng chi phí 1,2 triệu EUR. Tòa nhà mái bằng màu xanh này hòa lẫn với phong cảnh tự nhiên chẳng khác gì một con tắc kè hoa.

Tòa nhà được kết cấu bêtông cốt thép hình lập phương với trụ và dầm. Bên trong nhà có các cửa sổ bằng kính cách âm và kiểm soát tiếng ồn, và những ô cửa đón ánh sáng mặt trời trên khu vực mái. Trên tường có rèm cửa được dát bột nhôm trang trí, hệ thống composite cách nhiệt. Còn bên ngoài là lưới ngăn ánh nắng cùng màu với hệ thống composite và thảm thực vật xanh rộng bát ngát.
Không gian bên ngoài và trong
Vị trí nằm trong vùng ngoại vi với những đồng cỏ và cánh đồng xanh của trường đã đưa đến ý tưởng về một mặt ngoài được trang trí bằng các lớp đất có cỏ.
Những phiến lá cỏ khổng lồ nói lên tính thống nhất độc đáo của tòa nhà và tạo nên điểm đặc trưng định hướng cho nhà trẻ. Chúng không chỉ để trang trí mà còn đóng vai trò như một phần tiếp nối các chủ đề phong cảnh bằng cách tạo nên chủ đề cỏ cây để ngăn cách những khu vực riêng. Những hàng cây vân sam ngắt quãng có thể nhìn thấy ở rìa đồng cỏ hoặc những nhánh cây nhiều lá cạnh đó.

Bề mặt ngoài trang trí bằng những phiến lá cỏ khổng lồ chính là điểm đặc trưng của nhà trẻ
Mặt ngoài màu xanh của tòa nhà được cách điệu và nâng lên mang đến một sự hài hòa chặt chẽ với sức chứa cũng như tính thống nhất và định hướng cho nhà trẻ.

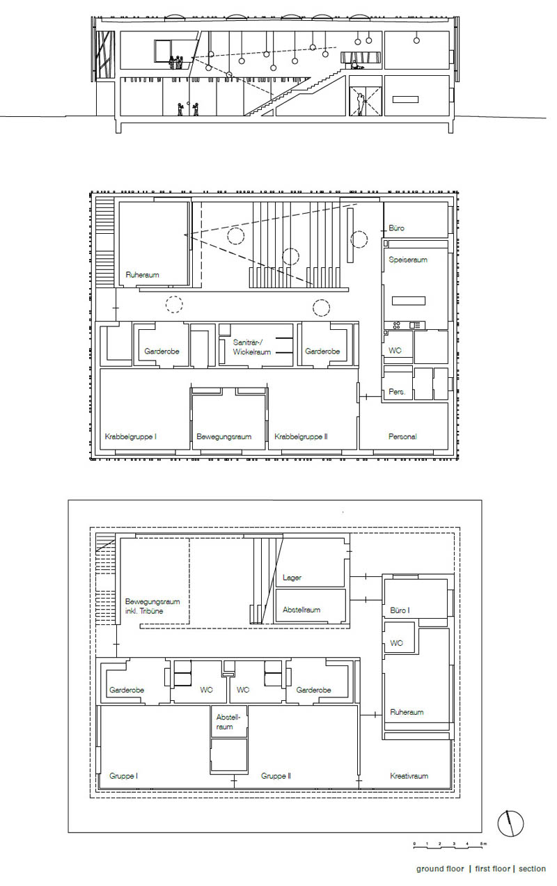
Trung tâm của tòa nhà là không gian tương tác với một hội trường đa chức năng, một khu vực truyền thông công cộng dành cho trẻ em và các cô nuôi dạy trẻ. Không gian đa chức năng không bó buộc bản thân nó bên trong tòa nhà. Chúng nằm ở điểm giao nhau giữa các phòng, được sử dụng như một tụ điểm cho nhiều mục đích: không gian dành cho các hoạt động chung và không gian luân phiên cho các hoạt động khi thời tiết xấu.
Sự tương xứng của phong cảnh diễn ra không chỉ trong bản thân không gian tòa nhà mà còn nằm ở cấu trúc nổi bật ngay từ bên trong. Tổ chức bên trong cho phép tận dụng tính logic trong khi sử dụng. Các nhóm nhà trẻ nằm dọc theo mặt phía nam có lối dẫn thẳng ra hiên và vườn, còn các nhóm khác được giữ an toàn ở tầng trên.
Mỗi phòng nhóm có hai phần, mỗi phần bao gồm một tủ quần áo, khu vực vệ sinh và một nhà kho nằm giữa hội trường và các khu vực nhóm. Về phía đông là các phòng phụ thêm như khu nhân viên, quản lý, phòng yên tĩnh và hội trường lộn xộn.

Trường Sighartstein hòa lẫn với phong cảnh tự nhiên chẳng khác gì một con tắc kè hoa


Nơi nào trong không gian trường cũng tràn ngập màu xanh cỏ dịu mắt





Các em nhỏ vui chơi trên cầu thang bộ lớn

Các phòng trẻ được chiếu sáng bằng ánh sáng mặt trời
Màu cỏ xanh
Thông thường, không gian của nhà trẻ sẽ dần dần tràn ngập những đồ sặc sỡ của trẻ con như đồ đạc, nguyên vật liệu và những công trình đầu tiên. Vì thế, người ta chủ động giảm bớt số lượng màu sắc, chỉ còn lại một tông màu đơn là màu cỏ xanh.
Vì mẫu giáo là bậc học đầu tiên nên các nhà thiết kế Trường Sighartstein đã chọn màu xanh như là một biểu tượng của sức sống, tuổi trẻ và mùa xuân. Những tác dụng về tâm lý của màu xanh có một vai trò quan trọng, đó là màu giúp con người giữ bình tĩnh và hòa hợp với nhau. Màu xanh củng cố thêm những đặc tính tốt như tính nhẫn nại, khả năng chịu đựng và sự hài lòng. Theo lý thuyết về màu sắc, màu xanh được xem như một màu trung tính có tác dụng hàn gắn, tạo nên sự cân bằng mà không gây ra đau đớn về thể xác hay những phản ứng ngược.
Nó tạo nên một không gian để tập trung năng lượng và đẩy nhanh quá trình phục hồi. Trước kia, đây là một trong những màu được yêu thích nhất trong thiết kế phòng ở và các salon. Bảng đen của trường màu xanh vì màu này rất dịu mắt và có độ tương phản rõ rệt so với những màu khác, vì thế sẽ giúp học sinh tập trung tốt hơn vào những điều chủ yếu vì trong việc học tập, một điều kiện không thể thiếu là sự tập trung. Màu xanh truyền tải ý niệm về sự tươi mới, non nớt và tuổi trẻ, vốn có nguồn gốc từ một từ Hà Lan cổ “groen,” có nghĩa là nảy nở và tươi tốt.
Mẫu giáo là thời kỳ trẻ nhỏ rất tò mò và ham học hỏi. Các em học bằng cách chơi và khi các em có thể học tập trong một không khí thoải mái, yên tĩnh và hoàn toàn tập trung, đây chính là nền tảng của mọi hình thức học hành sau này trong đời.
Ánh sáng và thiên nhiên
Trần nhà ốp kính ở tầng một như mời gọi thiên nhiên tràn vào trong nhà với các phòng trẻ được chiếu sáng bằng ánh sáng mặt trời. Những cánh cửa sổ mở ở tầng trên đằng sau mặt ngoài tạo nên một sự chiếu sáng hoàn toàn khác biệt và dành cho các bé học sinh mẫu giáo không khí của một môi trường giáo dục tốt.
Phản hồi đối với trường từ phía các nhà giáo dục và bản thân cộng đồng cực kỳ tích cực. Từ khi được bàn giao vào cuối tháng ba, Trường mẫu giáo Sighartstein đã mở cửa đón rất nhiều em nhỏ đến vui chơi và học tập. Hội trường bao gồm cầu thang bộ lớn đã được khai thác sử dụng tối đa, chứng tỏ lớp phủ sàn bằng cao su tự nhiên đã phục vụ mục đích của nó rất hiệu quả. Những ai thoạt đầu hoài nghi và chỉ trích sự lựa chọn màu sắc thì nay lại là những người ủng hộ tích cực nhất.
THƯỜNG NGA (Theo E-architect)



