Khu nhà ở xã hội ở thành phố Izola được hoàn thành năm 2006 dưới sự thiết kế của công ty kiến trúc Slovenia: OFIS architekti. Công trình của chủ đầu tư Quỹ nhà ở Slovenia và cộng đồng Izola có diện tích khu đất là 2.294 m2, diện tích xây dựng là 5.452 m2 và được hoàn thành trong giai đoạn từ năm 2004 đến năm 2006.

Dự án nhà ở xã hội Izola là dự án đoạt giải cho hai khối nhà dân cư trong cuộc thi thiết kế được tổ chức bởi Quỹ nhà ở Slovenia, một chương trình của chính phủ nhằm mang lại các căn hộ giá thành thấp cho các gia đình trẻ. Công trình này được hoàn thành với chi phí đầu tư cho mỗi khối nhà (gồm 30 căn hộ) là 2,42 triệu USD.
Dự án đã dành được thắng lợi về những mặt mang tính kinh tế, tính sáng suốt và tính công năng, nhưng quan trọng hơn cả là tỷ lệ giữa diện tích mặt bằng tạo ra và diện tích bán được và sự linh hoạt của các mặt bằng thiết kế. Khi ký kết hợp đồng, công ty kiến trúc OFIS arhitekti phải có trách nhiệm chuẩn bị hồ sơ thi công cho công trình tốn 600 Euro/m2 diện tích xây dựng này.


Các khối nhà chung cư được tọa lạc trên một ngọn đồi với tầm nhìn hướng về vịnh biển Izola theo một hướng và hướng ra các ngọn đồi bao quanh theo hướng còn lại. Miếng đất đô thị được phê chuẩn cho dự án với hai khối nhà với kích thước là 60 x 28m.
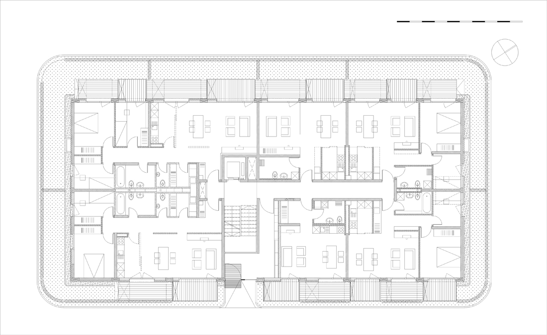
Dự án này yêu cầu 30 căn hộ với các kích thước và hệ kết cấu khác nhau, đa dạng từ các căn hộ studio cho đến các căn hộ với 3 phòng ngủ. Các căn hộ đều có diện tích nhỏ với các phòng có kích thước tối thiểu theo các tiêu chuẩn xây dựng của Slovenia. Trong thiết kế không có các hệ vách chịu lực trong các căn hộ, và vì thế mang lại sự linh hoạt và khả năng sắp xếp lại công năng bên trong.

Do vị trí đặc thù của khu vực với khí hậu Địa Trung Hải, các không gian ngoài trời và các thiết kế che nắng là các yếu tố quan trọng. Dự án đề xuất một sân ban công lớn có mái che cho mỗi căn hộ, và vì vậy mang lại một không gian ngoài trời thân mật, một phần kết nối với không gian nội thất bên trong, được che nắng và thông thoáng gió tự nhiên.
Các màn che bằng vải che chắn cho các ban công và các căn hộ khỏi các ánh mắt tò mò, nhưng đồng thời do tính chất bán trong suốt đã cho phép những dân cư tận hưởng được các góc nhìn tuyệt đẹp về vịnh Izola. Các tấm đục lỗ bên hông ban công cho phép những cơn gió mùa hè thổi vào không gian bên trong. Các màu sắc mạnh mẽ đã tạo nên các hình thái kiến trúc khác nhau tại từng căn hộ. Các khối hộp được bố trí bên hông từng ban công để tạo không gian cho các cục máy lạnh.

Các thiết kế bền vững:
Các mođun ban công được thiết kế như một hệ thống hiệu quả bằng việc mang lại bóng mát và thông thoáng gió cho các căn hộ. Các rèm vải được gắn cố định phía trước các căn hộ để che chắn khỏi nắng nóng mặt trời trực tiếp và hình thành nên vùng “đệm gió”. Vào mùa hè, không khí nóng tích tụ lại đằng sau các tấm che nắng và được thông thoáng gió tự nhiên thông qua các tấm đục lỗ (đường kính mỗi lỗ 10cm) bên hông các ban công. Vào mùa đông, không khí nóng được giữ lại tại ban công và cung cấp thêm sưởi ấm cho các căn hộ.






Mặt bằng tầng 0

Mặt bằng tầng 1-3

Mặt bằng tầng 2-4




Chi tiết ban công
KTS Vũ Linh Quang – Ardor Architects (biên dịch theo Archdaily)

