Ngôi nhà Hezelia tại Hezelia, Israel gần đây đã hoàn thành với diện tích dự án rộng 600 m2 do công ty kiến trúc Pitzo Kedem Architects và Tanju Qzelgin thiết kế.
Một công trình hiện đại và theo phong cách tối giản đã loại bỏ hoàn toàn các rào cản được chấp nhận giữa bên trong và bên ngoài, đồng thời che dấu đi, trong các không gian, một bầu không khí ấn tượng với các không gian mở rộng thoáng đãng.


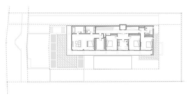
Căn nhà được xây dựng như một nhà nghỉ dưỡng cho một gia đình sống ở nước ngoài. Căn nhà được tọa lạc trực tiếp trên bờ biển tại trung tâm của đất nước. Căn nhà với thiết kế dựa trên ba không gian trung tâm chính bao quanh bằng một sân trong lớn với bể bơi được bố trí ngay chính giữa. Các khối này hình thành nên ranh giới giữa con đường, cộng đồng dân cư xung quanh và không gian nội thất, và giữa không gian sân trong và các không gian tương tự khác bao quanh. Ý tưởng chủ đạo là hình thành nên các bức tường ấn tượng, và đồng thời loại bỏ đi ranh giới giữa không gian sân trong trung tâm và các không gian bên trong, và đồng thời hình thành một mặt đứng cho phép đóng kín hoàn toàn hoặc mang lại các độ mở khác nhau.


Khối trung tâm được bao bọc bởi hồ bơi tại một bên, với một không gian trưng bày dài 7 mét bằng nhôm không được chống đỡ bởi cột. Phân nữa không gian trưng bày này được tiếp tục chia làm 6 phần tiếp nối lớn được bố trí bên trong bức tường và trở thành các phần được ẩn đi. Khối bao quanh trở thành một khối nổi lơ lửng và phân chia giữa khu vực nhà bếp và quầy bar dài kéo dài dọc theo toàn bộ chiều dài, và giữa bể bơi và sân gỗ nhằm hình thành nên một căn nhà không có các rào cản. Một không gian nơi ranh giới giữa bên trong và bên ngoài trở nên mờ nhạt, hình thành nên một không gian mới ngay giữa bên trong và bên ngoài.
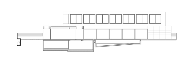
Hướng tây của căn nhà hướng ra biển nhằm mang lại mối quan hệ đa dạng và phong phú hơn. Một vách ngăn được tạo thành từ 6 phần kim loại có kích thước bằng nhau và các tấm gỗ có thể điều chỉnh được cho phép mặt đứng đóng kín hoàn toàn hoặc mang lại các mức độ mở khác nhau. Các cửa xếp lớn và hệ thống thanh gỗ cho phép ánh sáng tự nhiện chiếu vào bên trong că nhà, vốn đóng vai trò quan trọng tại các không gian nội thất và cho việc tạo thành các không gian trưng bày góc cạnh của ánh sáng tương phản với các không gian phương đứng và ngang, và đồng thời tôn lên các vật liệu nội thất.




Ý tưởng thiết kế kiến trúc đến từ phong cách bê tông phổ biến trước đây với tất cả các mặt đứng công trình mở và biến mất. Kết cấu của căn nhà trông giống như một khối đặc và che kín, bất ngờ trở nên nổi lơ lửng và mang lại cảm giác nhẹ về trọng lượng. Căn nhà trông như được xây dựng từ những mặt phẳng nổi lơ lửng với các hình ảnh chi cắt và di chuyển giữa chúng.
Các hướng tiếp cận chủ đạo mà kiến trúc sư thường sử dụng là dựa vào ít hình dạng hơn, giảm thiểu các vật liệu sử dụng và màu sắc. Những điều làm cho dự án này đặc biệt là việc tăng thêm cảm giác nhẹ về trọng lượng và mở về không gian và việc sử dụng hai màu chủ đạo đối nghịch với nhau: các vật liệu đặc, mạnh như các phiến đá vôi xám và đá bazan đen với trong suốt và trong mờ của kính và các vật liệu phản chiếu khác như nước.












KTS Vũ Linh Quang – Công ty Kiến trúc ARDOR Architects (biên dịch từ ArchDaily)

