
Thông tin dự án:
Địa điểm: Hà Nội
Đơn vị thiết kế: TNT Architecture
Kiến trúc sư chủ trì: Bùi Quang Tiến
Nhóm thiết kế: Hoàng Phương Nam, Phạm Như Tâm, Trần Bá Quân, Lương Thị Hồng Nhung, Nguyễn Đức Hậu, Hoàng Long, Lê Hữu Phong, Ngô Văn Nhật
Tổng thầu thi công: TNT Architecture
Đối tác thi công: Mr.Vinh, Mr.Thuận, Art Steel, Bac Terrazzo, Cama Wood, Thanh Tùng Decor, Croled Lighting, Kenli, Rita Võ, Shoji Tech
Quản lý thi công: Hoàng Long, Phạm Như Tâm
Diện tích khu đất: 166m2
Diện tích sàn: 1.065m2
Năm thiết kế: 2022
Năm hoàn thành: 2024
Nhiếp ảnh: Triệu Chiến

HN08 House – Nơi những giá trị truyền thống được khoác lên mình một cách biểu đạt mới, khi kiến trúc trở thành cầu nối dung hòa con người với thiên nhiên và đề cao sự gắn kết của các thành viên trong gia đình giữa nhịp sống hối hả, nhiều áp lực của đô thị hóa.
Trong bối cảnh đô thị hiện đại có tốc độ phát triển chóng mặt cùng mật độ xây dựng ngày càng dày đặc như hiện nay, những khoảng xanh trở nên vô cùng quý giá đặc biệt với một thành phố lớn như Hà Nội.


Vốn là một người yêu trẻ và sự tự do, gia chủ luôn mong muốn những đứa con của mình được lớn lên cùng thiên nhiên; từ đó, các kiến trúc sư đã chọn cách lùi lại để nhường thêm khoảng trống cho cây xanh, sân vườn.
HN08 House (Bình Mai House) là căn nhà thiết kế cho gia đình có 3 thế hệ sinh sống, với mong muốn tăng sự kết nối giữa các thành viên trong gia đình bằng thiết kế không gian mở linh hoạt theo nhu cầu sử dụng.

Công trình nằm trên một con ngõ gần đê Yên Phụ cùng hướng Tây Nam vốn chịu tác động trực tiếp của nắng nóng kèm nhiệt độ cao. Điều này là một yếu tố quan trọng trong bài toán thiết kế công trình trên diện tích 166m².
Vì vậy, việc thiết kế không dừng lại ở công năng đơn thuần, mà còn đi sâu vào các giải pháp vi khí hậu như tổ chức lớp vỏ, điều tiết thông gió, tận dụng khoảng không, cây xanh … là những yếu tố cốt lõi kiến tạo nên một ngôi nhà hài hòa với thời tiết nhiệt đới ẩm và môi trường đô thị.
Giải pháp thiết kế tập trung vào việc khai thác yếu tố văn hóa bản địa trong cách tổ chức không gian đa lớp, phát triển trục giao thông theo chiều đứng với nhiều mảng chuyển tiếp từ ngoài vào trong, từ dưới lên trên. Sau cùng là thông tầng đóng vai trò như lõi mở xuyên suốt kết nối các tầng tạo điều kiện đưa ánh sáng, gió trời vào sâu bên trong giúp công trình “tự thở”.


Điểm nhấn của ngôi nhà là khu vườn tại mặt tiền được nâng cao, tạo dốc về phía sân chơi nhằm tăng sự biến hóa cho không gian, kết hợp thành khối cổng giúp ngăn cách vùng sinh hoạt nội bộ với phố thị ồn ã bên ngoài.
Không chỉ vậy, khu vườn còn tựa như “trái tim xanh” của ngôi nhà. Nơi mà tại bất kỳ vị trí nào như sân chơi tầng 1, phòng khách tầng 2 cho đến tầng hầm, … các thành viên trong gia đình đều có thể hướng về tìm lại sự yên bình.
Để tiếp cận tới các chức năng quan trọng kể trên cần đi qua khu vực cổng, tại đó các luồng giao thông được kết nối qua lớp hành lang với sự biến hóa đa dạng. Đây là nơi ánh sáng, tỉ lệ, độ đặc – rỗng được xử lý tinh tế để mỗi bước đi đều mang lại một trải nghiệm mới.


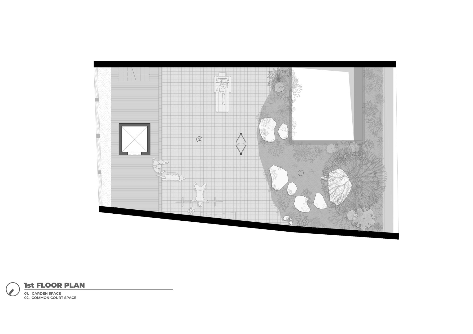
Tầng 1 là không gian mở kết hợp thềm hiên gỗ được tái hiện như một khoảng sân đúng nghĩa gợi nhớ đến nếp sống truyền thống Việt Nam, nơi trẻ nhỏ có thể vui chơi và gần gũi thiên nhiên. Đồng thời cũng là khu vực thể thao chung để những giờ phút tập luyện cũng trở thành thời gian gắn kết giữa người lớn tuổi, bố mẹ và con cái…
Đây là nơi đặc biệt nhất của công trình được hình thành bởi nhiều lớp không gian, khoảng sân được lùi lại nhường chỗ cho thiên nhiên phía trước, giúp con người tương tác trực tiếp với cây cối trong vườn qua các hoạt động thường ngày. Từ đó hình thành tuyến giao thông từ trước ra sau kết nối vườn cây, sân chơi, khu thang thông tầng cho đến khu vực phòng khách tầng hai, tầng hầm và cổng … một cách liên tục không gián đoạn.

Tầng 2 là không gian đối ngoại nơi gia chủ tiếp khách hoặc thưởng trà có tầm nhìn trải rộng xuống khu vườn dốc. Nhờ ưu thế về cao độ của khu vườn, mảng xanh phía trước được đẩy lên gần gũi với phòng khách, trở thành lớp đệm thiên nhiên giúp che chắn, mang lại sự riêng tư và cảm giác thư thái.
Khu vực này có trần cao 4m tạo không gian thoáng đạt, xuyên suốt nhưng vẫn có sự ngăn cách nhẹ nhàng với khu thông tầng và khoảng không phía trước bằng hai vách kính lớn có khả năng đóng mở linh hoạt. Cùng độ lùi thềm hiên hợp lý, ánh sáng và gió được lưu thông liên tục, giữ cho bầu không khí bên trong luôn trong lành, chan hòa cùng môi trường xung quanh.


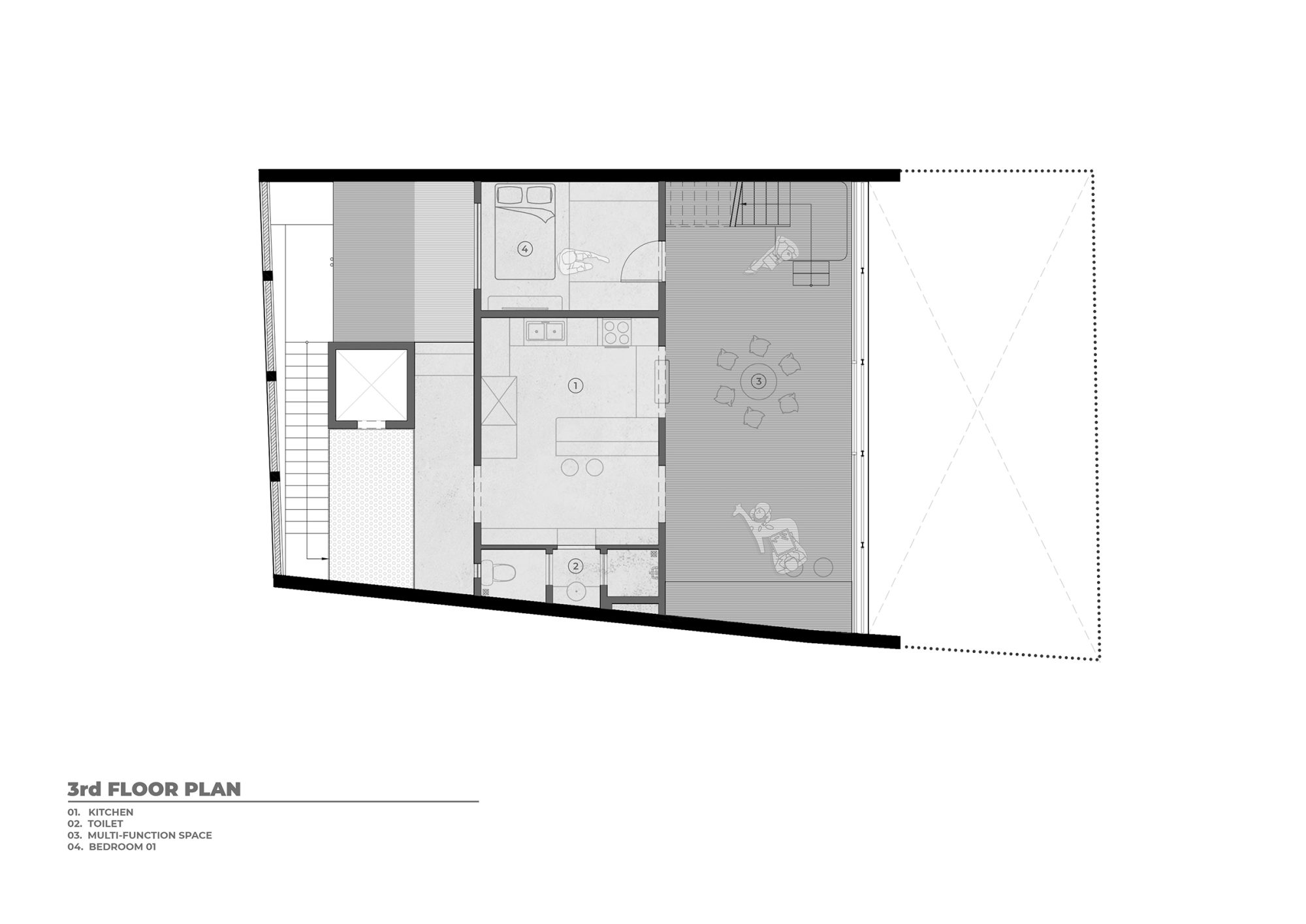
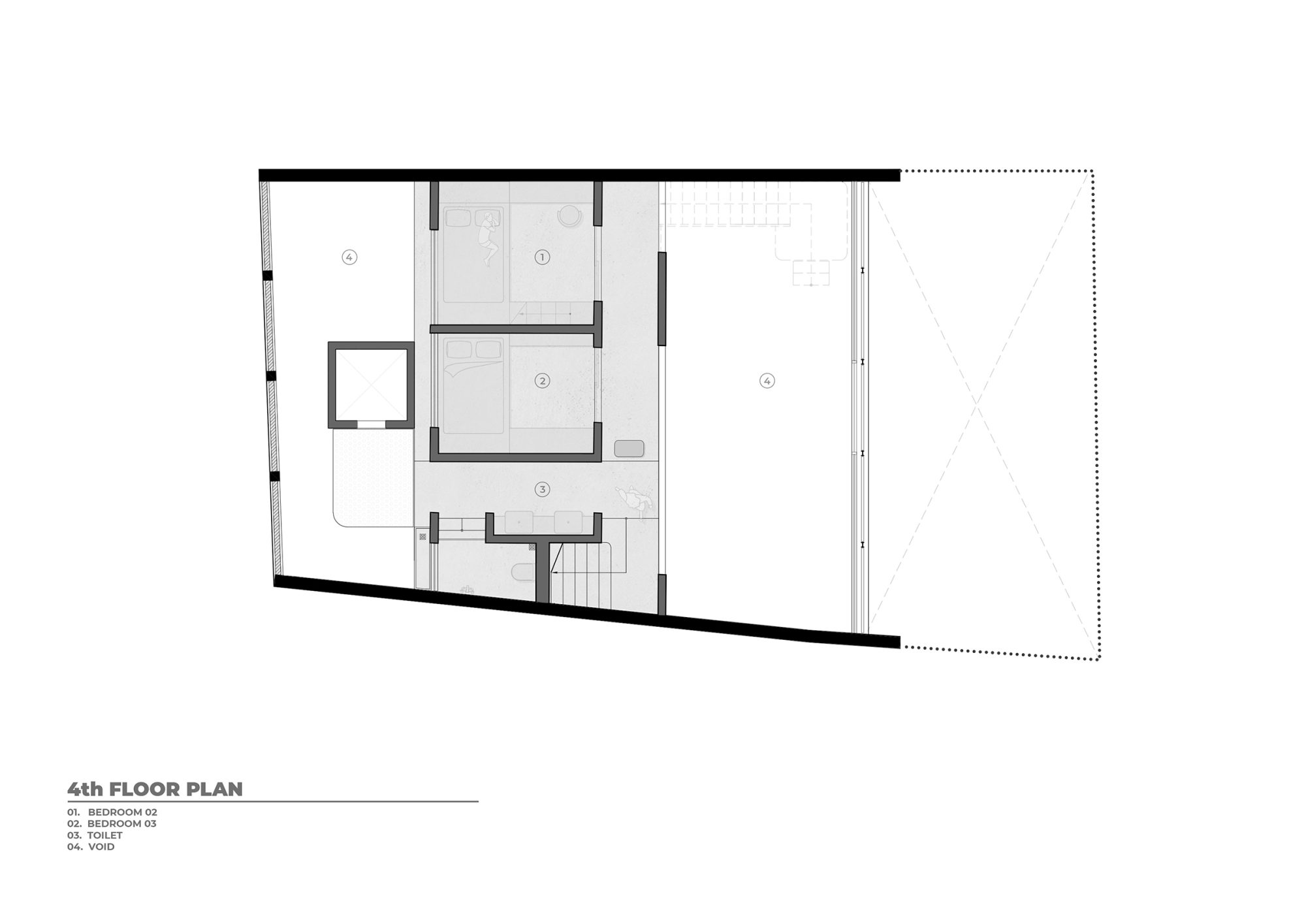
Tầng 3 và tầng 4 là một tổ hợp công năng nội bộ có sự liên thông bao gồm khu vực sinh hoạt chung, bếp, phòng ngủ cho con, phòng ngủ bà và vệ sinh chung.
Lấy cảm hứng từ thềm hiên trong kiến trúc truyền thống Việt Nam, chúng tôi kế thừa và phát triển tinh thần này bằng cách đương đại hóa chúng vào không gian sinh hoạt chung. Nhờ công năng linh hoạt, nơi đây có thể đáp ứng nhiều hoạt động khác nhau từ học tập, ăn uống, giải trí cho tới nghỉ ngơi; giúp gắn kết gia đình thời hiện đại nhưng vẫn duy trì nếp sống người Việt.
Khu vực này được tổ chức thành khối tích lớn, khai thác khoảng thông tầng nhằm kết nối khối phòng ngủ tới khoảng sinh hoạt chung qua một hành lang mở. Từ bếp, hành lang hay thông tầng đều có thể quan sát và tương tác với nhau một cách mật thiết. Mặt tiền được xử lý bằng hai lớp bao che, gồm hệ kính và lam che nắng tự động, vừa đảm bảo tầm nhìn, vừa kiểm soát nhiệt độ, ánh sáng hiệu quả.


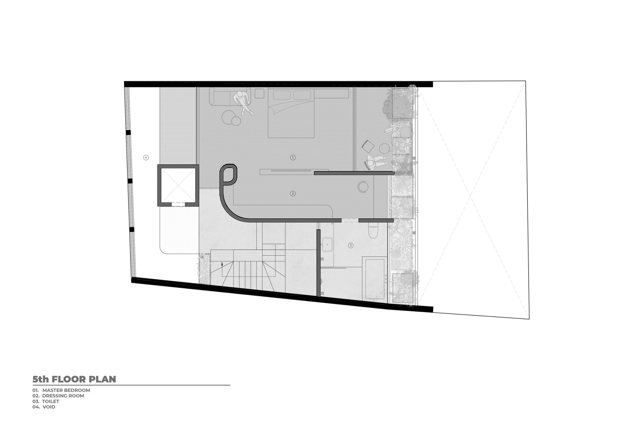
Phòng Master tầng năm tận dụng tối đa mặt tiền phía trước cho khu vực giường ngủ, vệ sinh riêng và khu thay đồ. Phía sau liên thông trực tiếp tới khoảng thông tầng đầy ánh sáng cùng gió tự nhiên, tạo nên một nơi nghỉ ngơi yên tĩnh và thoải mái.


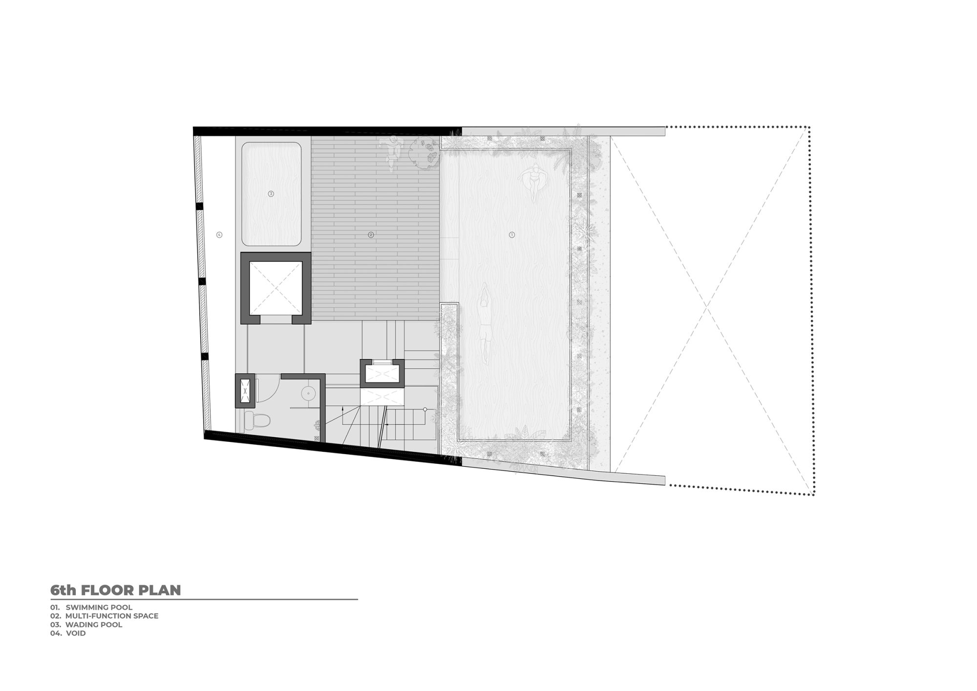
Khu vực tầng 6 mở ra một không gian sinh hoạt chung khác theo yêu cầu của gia chủ gồm bể bơi lớn phía trước được bao bọc bởi dải cây xanh, tạo sự riêng tư mà vẫn hòa hợp cùng thiên nhiên. Phía sau sát thông tầng là bể vầy nhỏ dành cho trẻ, liền mạch cùng khoảng sàn gỗ ngoài trời.
Giống như các không gian chung khác, đây cũng là nơi diễn ra các hoạt động thường nhật của gia đình. Tuy nhiên, nhờ ưu thế về cao độ và tầm nhìn rộng, không gian này đã mang lại một trải nghiệm mới phù hợp cho việc ăn uống, vui chơi của gia đình hay những dịp tiếp khách thân mật.


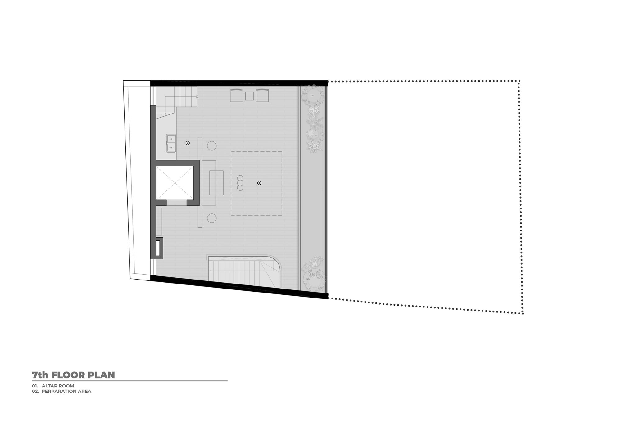
Khu thờ tự tầng bảy tiếp tục tận dụng toàn bộ mặt tiền để có lớp cửa kính và hệ lam gỗ lớn, có thể đóng mở tự động giúp kiểm soát ánh sáng, thông gió một cách linh hoạt. Thiết kế này khiến gian thờ vừa trang nghiêm vừa có ngôn ngữ nhất quán với tổng thể công trình.
Phần mái phía trên là nơi bố trí hệ thống kỹ thuật và một khu vườn nhỏ để trồng rau. Tầm nhìn rộng cùng cao độ đặc biệt ở đây đã tạo nên một trạng thái không gian khác giúp gia chủ tận hưởng và kết nối với thiên nhiên.

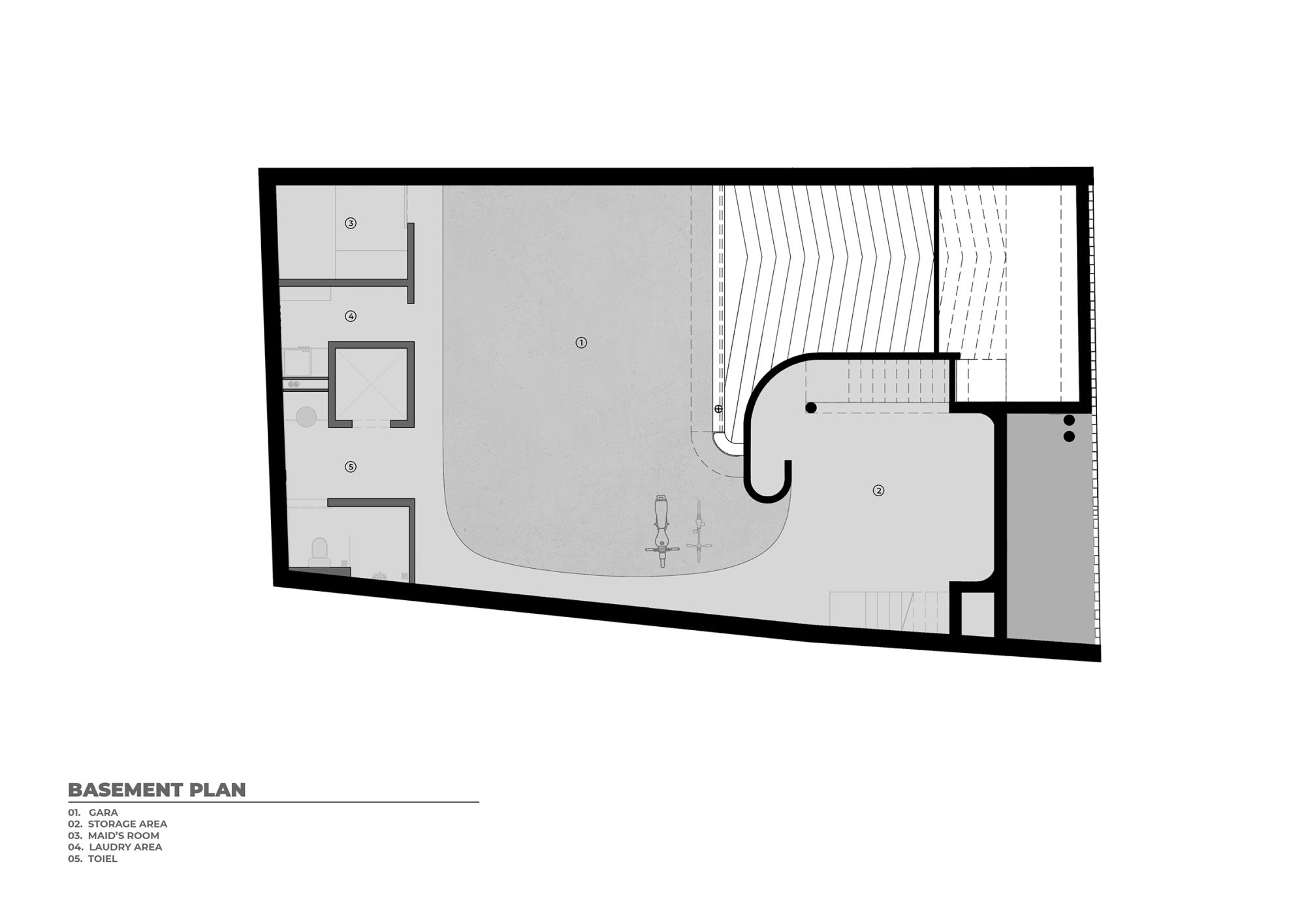
Tầng hầm bao gồm gara để xe, phòng ngủ giúp việc, vệ sinh và khu phụ trợ được tổ chức khoa học nhằm đáp ứng đầy đủ các nhu cầu sinh hoạt cơ bản của gia đình người Việt.
Thông qua các giải pháp vi khí hậu, tổ chức không gian đa lớp và khai thác khoảng trống, cây xanh; HN08 House là lời đối thoại giữa kiến trúc và đô thị mà vẫn giữ được tinh thần văn hóa bản địa phù hợp với thời cuộc mới.










