
Thông tin dự án:
Địa điểm: Quận 2 (cũ), TPHCM
Thiết kế: Studio KHOA VU
Kiến trúc sư chủ trì: Khoa Vũ
Trưởng nhóm thiết kế: Tạ Anh
Nhà thiết kế trẻ: Hoàng Bảo Phúc
Quản lý dự án: Trần Tuấn
Tổng thầu xây dựng: Pham Gia Technology Co.,Ltd
Nhà thầu gỗ: An Cường Wood Working JSC
Diện tích: 300m2
Năm hoàn thành: 2025
Ảnh: Chương Nguyên

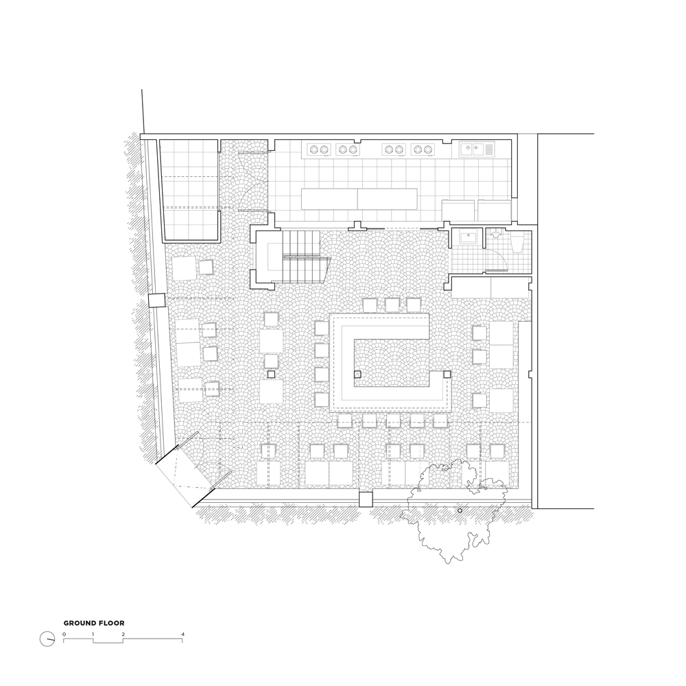
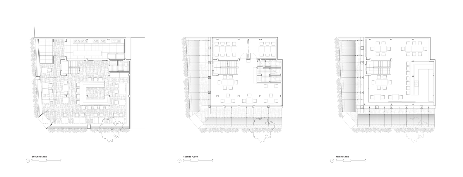
Ts VEIL là dự án cải tạo một biệt thự ba tầng rộng 300 mét vuông tại trung tâm Quận 2 (cũ), TPHCM – một khu vực đang phát triển nhanh chóng với sự kết hợp dày đặc của nhà ở, cửa hàng nhỏ và quán ăn địa phương. Thay vì lựa chọn phá dỡ và xây dựng mới, dự án cẩn thận bảo tồn khung kết cấu cốt lõi của tòa nhà, bao gồm khung bê tông, cầu thang, sàn và mái, đồng thời tái hiện cả sự hiện diện về mặt kiến trúc và hiệu suất không gian thông qua một hệ thống lớp vỏ mới – bên ngoài và bên trong.



Khái niệm thiết kế trung tâm xoay quanh ý tưởng về một tấm màn che: một ranh giới mềm mại, nhiều lớp, làm trung gian giữa con phố sôi động và không gian nội thất ấm cúng, gần gũi. Lớp vỏ ngoài mới này bao gồm các tấm lưới kim loại mở rộng được hỗ trợ bởi kết cấu bê tông đúc sẵn và thép, tạo thành một lớp vỏ xốp cho phép luồng không khí, ánh sáng được lọc và cảm giác mờ đục và rộng mở thay đổi. Tại góc cua hẹp của công trình, tấm màn che mở ra để tạo thành một cử chỉ đô thị nhẹ nhàng – một ngưỡng cửa râm mát, hấp dẫn thu hút mọi người vào bên trong. Cử chỉ này biến tòa nhà thành một nét đô thị mềm mại, mang đến một góc thoáng khí, nhạy bén trong một khu phố đông đúc và sôi động.


Bên trong, quá trình cải tạo giới thiệu một lớp da bên trong bổ sung, củng cố tính thẩm mỹ thô sơ nhưng tinh tế của dự án. Các vật liệu như tường khối kính, bê tông lộ thiên, thép chưa hoàn thiện và chi tiết tối giản định hình nên đặc điểm không gian mới – trung thực, xúc giác và hiện đại một cách lặng lẽ. Việc sử dụng khối kính khuếch đại thêm sự tương tác giữa ánh sáng và kết cấu, khúc xạ ánh sáng ban ngày một cách nhẹ nhàng trong khi vẫn mang lại sự riêng tư và rực rỡ. Những bề mặt được cân nhắc kỹ lưỡng này tạo ra một nội thất mở, thích ứng, nơi kiến trúc duy trì sự cân bằng giữa sự mạnh mẽ và bình tĩnh, sự không chính thức và chủ đích.
Khi kết hợp với nhau, tấm màn che và nội thất tạo thành một chiến lược hai lớp giúp định hình lại mối quan hệ giữa đường phố và không gian, làm mờ ranh giới giữa bên trong và bên ngoài, giữa sự bao bọc và sự phơi bày.






Ts VEIL không chỉ là một cuộc cải tạo; đó là sự tái hiện cuộc sống xây dựng trong bối cảnh đô thị nhiệt đới – một không gian hít thở, râm mát và hấp dẫn, cung cấp một mô hình về cách các can thiệp kiến trúc nhẹ có thể định hình lại các công trình hiện có với sắc thái, khả năng phục hồi và sức mạnh thầm lặng.












