
Thông tin dự án:
Địa điểm: Số 04 Phạm Ngọc Thạch, phường Sài Gòn, TPHCM
Tư vấn thiết kế kiến trúc: CPG Việt Nam
Chủ đầu tư: Ban QLDA ĐTXD các công trình dân dụng và công nghiệp
Diện tích đất: 14.344,57 m2
Mật độ xây dựng: 40%
Quy mô: 21 tầng nổi + 4 tầng hầm
Hệ số sử dụng đất: 3.0
Tổng diện tích sàn xây dựng: 93.505,77 m2
Bối cảnh:
Trong bối cảnh khu trung tâm Tp Hồ Chí Minh đặc trưng bởi sự đô thị hóa theo chiều đứng, sự thống trị của vỏ bao kính-thép (Glass-Steel Envelope) đã làm xói mòn kết nối giữa con người và thiên nhiên. Vốn là một yếu tố phổ quát, sự hiện diện của thiên nhiên lại trở thành chỉ số định vị sự xa xỉ (Luxury Indicator). Vì vậy, Dự án Nhà Văn Hóa Thanh Niên được thiết kế như một cách phản ứng lại thực trạng này, đặt mục tiêu hoàn trả món quà thiên nhiên cho cộng đồng, đặc biệt là thế hệ trẻ Thành phố.

Cảm hứng thiết kế:
Nhà văn hóa Thanh Niên Tp Hồ Chí Minh không chỉ là một địa chỉ đỏ của phong trào thanh niên, sinh viên, học sinh Sài Gòn – Gia Định – Tp.HCM, nơi giao thoa của lịch sử hào hùng và tương lai đầy khát vọng của thanh niên thành phố, mà còn là điểm hẹn thanh xuân, điểm hẹn của tuổi trẻ…
Tích hợp cảm hứng văn hóa và tính biểu tượng vào thiết kế: hình tượng Bó Đuốc – một cấu trúc vươn cao, kiên định, tượng trưng cho ngọn lửa tri thức, sức sống và sự tiên phong của thanh niên thành phố; hình tượng Hoa Sen – biểu trưng cho lý tưởng và nhân cách Hồ Chí Minh, cũng như sự vươn lên mạnh mẽ từ môi trường khó khăn, tinh thần lạc quan và khát vọng tuổi trẻ. HÌnh khối giật cấp tạo sự chuyển tiếp và kết nối duyên dáng từ thấp đến cao biểu trưng cho sự phát triển liên tục và mạnh mẽ của thế hệ trẻ Thành phố.

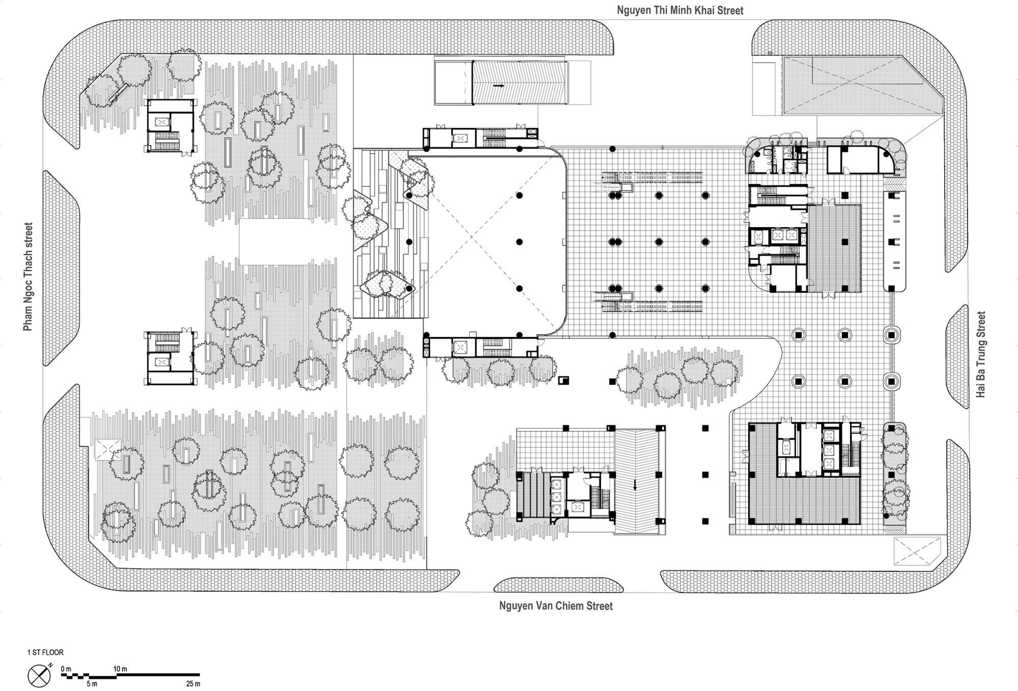
Không gian mở đa dạng và đa năng:
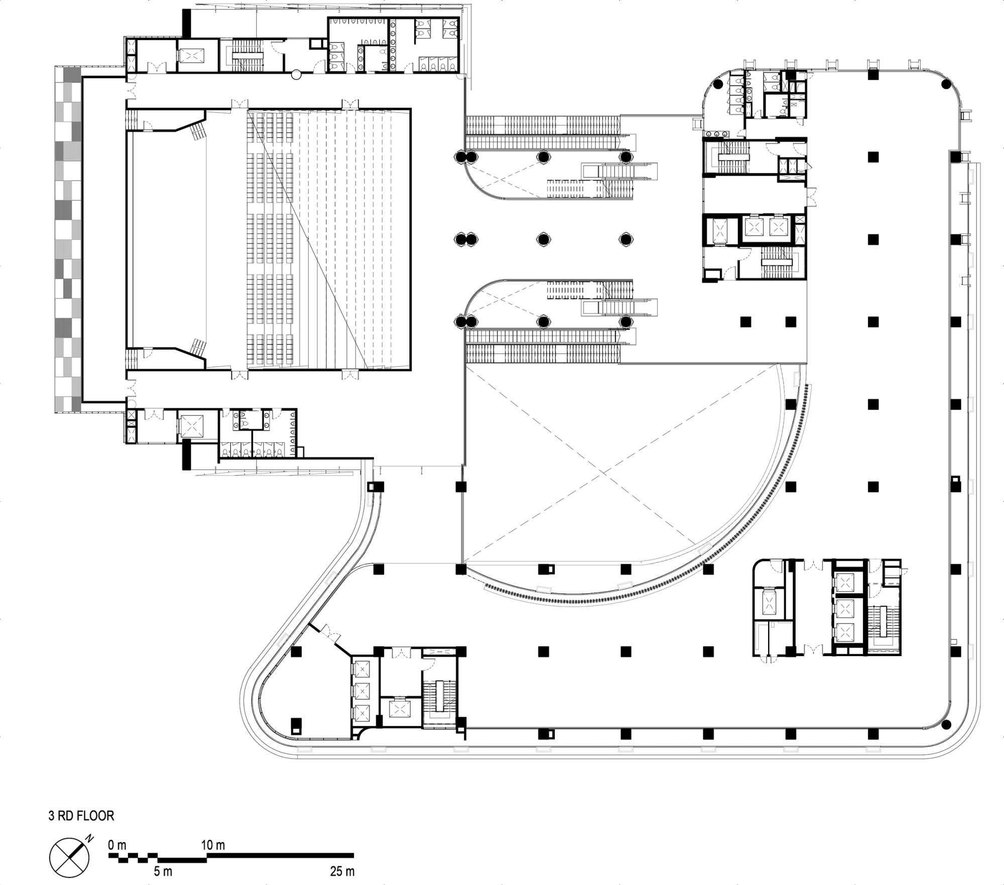
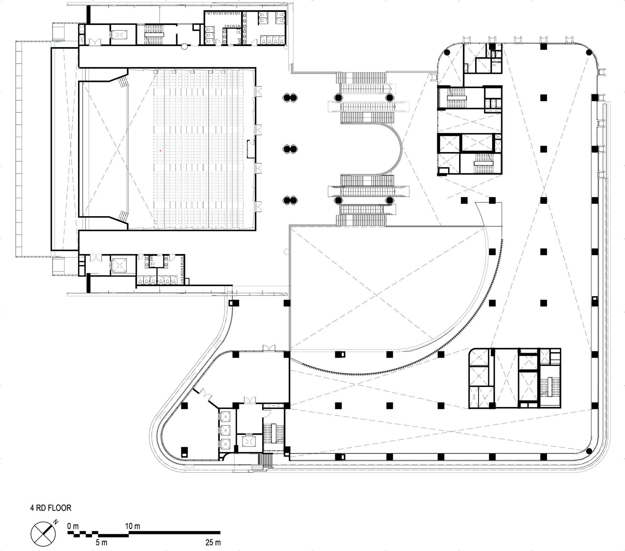
Thiết kế nổi bật bởi sự phong phú và đa chiều trong trải nghiệm không gian, được kiến tạo thông qua việc bố trí các khu thông tầng quy mô lớn tại tầng 1 và tầng 3. Sự kết nối thị giác và vật lý giữa các không gian này, đặc biệt là mối liên hệ xuyên suốt xuống tới tầng hầm, không chỉ tối ưu hóa ánh sáng tự nhiên và thông gió mà còn tạo ra một dòng chảy liên tục, đầy kịch tính, làm giàu thêm cảm thụ của người sử dụng về chiều sâu và sự phức hợp của công trình.
Lựa chọn bỏ trống toàn bộ không gian tầng 1 và triệt tiêu mọi hàng rào bao bọc truyền thống là ứng xử chủ động xóa mờ ranh giới giữa công trình và đô thị, cống hiến cho khu trung tâm thêm một quãng trường đa năng, một mảng xanh công cộng, một điểm hẹn cởi mở và bình đẳng cho thanh niên Thành phố.

Thủ pháp thiết kế Biophilic:
Thủ pháp thiết kế chủ đạo là Biophilic (Thiết kế kết nối với Thiên nhiên) trực tiếp giải quyết vấn đề thiếu hụt không gian xanh tại trung tâm đô thị:
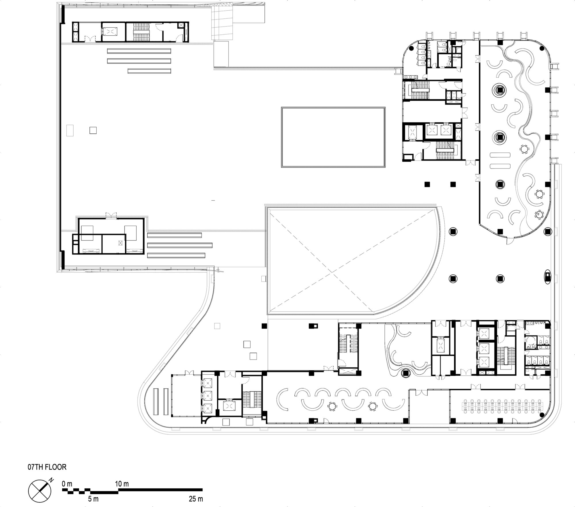
• Hệ thống Dải Xanh liên tục : Công trình loại bỏ khái niệm cây xanh cục bộ, thay vào đó là việc triển khai các dải cây xanh có hệ thống, liên tục viền quanh các tầng cao. Điều này tạo ra một lớp da sinh thái (Ecological Skin) sống động, làm phong phú hóa tầm nhìn ra xung quanh vốn chỉ bị chi phối bởi kính và bê tông.
• Trải nghiệm Vườn trên cao: Thiết kế đảm bảo rằng người sử dụng có thể nhìn thấy cây cỏ xanh mát từ chính chỗ ngồi bên trong nhà. Sự tích hợp này giúp cải tạo vi khí hậu (Microclimate) không gian làm việc và học tập, nâng cao sức khỏe tinh thần và năng suất cho người sử dụng.



Kiến trúc xanh và bền vững:
Cam kết đưa thiên nhiên lên cao được đi kèm với các giải pháp kỹ thuật nhằm đảm bảo tính bền vững của hệ sinh thái này:
• Tái tạo Nước: Việc tái sử dụng nước thải kết hợp với hệ thống tưới tự động không chỉ tiết kiệm nước và nhân công mà còn biến hệ thống cây xanh trên cao thành một thành phần của chu trình tài nguyên khép kín của tòa nhà, biến thách thức của việc duy trì vườn trên cao thành một giải pháp bền vững về tài nguyên.
• Tiết kiệm Năng lượng: Bằng cách tối đa các không gian thông thoáng tự nhiên, sử dụng kính hộp Low-E và giải pháp lam che nắng ở hướng Tây, tích hợp pin năng lượng mặt trời, công trình giảm thiểu nhu cầu năng lượng, biến mặt đứng xanh không chỉ là một yếu tố thẩm mỹ mà còn là một lớp đệm nhiệt hiệu quả.

Đối thoại vật liệu:
Tương phản mạnh mẽ: sử dụng cặp vật liệu đối lập: Kính – trong suốt, mong manh và Bê-tông trần – đặc chắc, thô mộc. Sự tương phản này có chủ đích nhằm tôn vinh màu xanh của dải thực vật được lồng ghép.
Điểm nhấn Hữu cơ: Vật liệu màu gỗ được sử dụng để trang trí các khu vực sân vườn, truyền tải cảm giác ấm áp, thân thiện, củng cố trải nghiệm kết nối với thiên nhiên.

Nhà văn hóa Thanh niên TPHCM khi hoàn thành sẽ góp thêm một công trình kiến trúc mang tính biểu tượng cho khu trung tâm, thêm một điểm đến cho du khách và là điểm hẹn văn hóa – nghệ thuật – lịch sử của giới trẻ thành phố.







