
Thông tin dự án:
Địa điểm: phố Tràng Tiền, Hà Nội
Thiết kế: SAGA Space Architects
Nhóm thiết kế: Sebastian Aristotelis, Diep Ngo, Kien Ngo H.
Nhà cung cấp: Louis Poulsen, Bamboo Ali, Flokk, Megaliine, Xingfa
Diện tích: 300 m²
Hoàn thành: 2025
Ảnh: Triệu Chiến

Ẩn mình giữa mê cung sôi động của Phố Cổ Hà Nội, dự án cá nhân mới nhất của SAGA Space Architects đã thổi luồng sinh khí mới vào một ngôi nhà phố thuộc địa Pháp 130 năm tuổi. Từng là một phần của trung tâm văn hóa và chính trị của thành phố, tòa nhà văn phòng của SAGA đã lặng lẽ chứng kiến bao thế hệ thay đổi đô thị. Giờ đây, thông qua quá trình trùng tu không phá hủy, tòa nhà trở thành trụ sở mới của văn phòng SAGA tại Việt Nam – một không gian kết nối văn hóa, lịch sử và thực hành kiến trúc đương đại.

Việc cải tạo được dẫn dắt bởi sự tôn trọng sâu sắc đối với di sản kiến trúc và văn hóa của tòa nhà. Lấy cảm hứng từ sự đơn giản của Bắc Âu và truyền thống bản địa Việt Nam, văn phòng này thể hiện tính biểu tượng, tính bền vững và tay nghề thủ công tinh xảo. Bất cứ khi nào có thể, các vật liệu có nguồn gốc địa phương, vật liệu sinh học và vật liệu tái sử dụng đều được sử dụng để giảm thiểu tác động đến môi trường và duy trì tính liên tục với lịch sử địa phương.






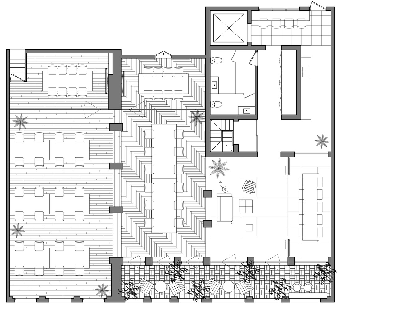
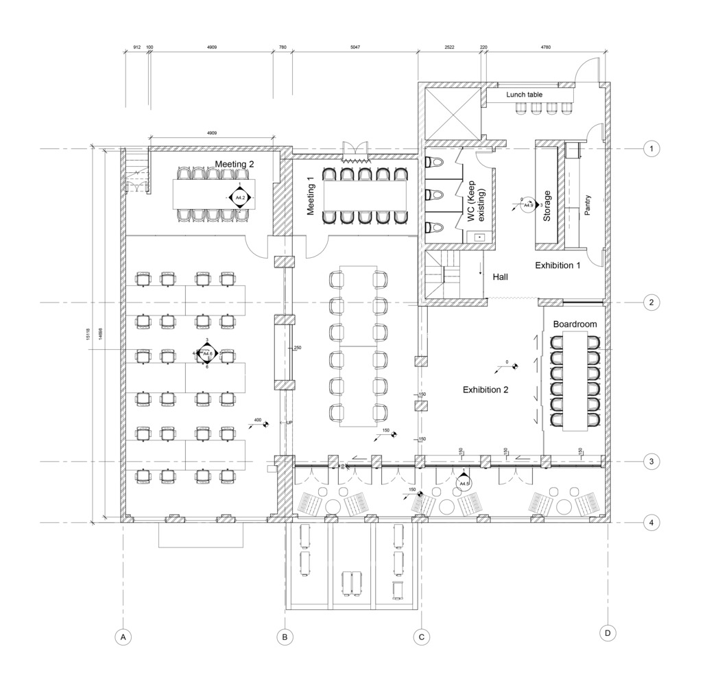
Bố cục không gian văn phòng hỗ trợ sự linh hoạt và hợp tác. Phòng họp được phân chia bằng tường kính, giúp giữ tầm nhìn bao quát toàn bộ không gian và giữ cho kết cấu gạch ban đầu luôn rõ ràng. Không gian làm việc mở được bố trí dọc theo trục trung tâm, với sàn gỗ ấm áp và nội thất tông màu trung tính, tạo nên một không gian nội thất cân bằng và tiện dụng. Hệ thống âm thanh, ánh sáng và điều hòa không khí được tích hợp một cách kín đáo vào khung trần hiện có để duy trì sự thông thoáng cho không gian.
Xuyên suốt tòa nhà, các yếu tố nguyên bản như vòm gạch, dầm gỗ, khung cửa sổ và các chi tiết sắt đã được phục chế và tích hợp lại một cách cẩn thận. Những công đoạn này được hoàn thành một cách tỉ mỉ, ưu tiên phục hồi hơn là thay thế, và vẫn giữ nguyên được nét đặc trưng của công trình.
Một trong những nét đặc trưng nhất của tòa nhà – không gian ban công chuyển tiếp đặc trưng của kiến trúc thuộc địa Hà Nội – đã được tái hiện. Ban công từng là không gian ngưỡng cửa đã được cải tạo thành phòng đọc sách và phòng họp xanh mát với cây xanh địa phương và ánh sáng tự nhiên. Giờ đây, ban công như một điểm tựa vững chắc cho không gian làm việc với không gian xanh yên bình, kết nối quá khứ và hiện tại. Những mái vòm gạch nguyên bản trên ban công đã được cải tạo để tôn vinh kiến trúc tân cổ điển Pháp.
















