
Thông tin dự án:
Vị trí: TP Vinh (cũ), Nghệ An
Thiết kế: HO Studio
Kiến trúc sư chủ trì: Hồ Văn Cường
Nhóm thiết kế: Hoàng Vân, Nguyễn Anh Nhật
Nhà cung cấp: TOSTEM (cửa nhôm)
Diện tích sàn: 420m2
Hoàn thành: 2023
Nhiếp ảnh: Nguyễn Thái Thạch




1. Nằm trong phạm vi mở rộng đường theo quy hoạch mới tại thành phố Vinh, khu đất của khách hàng vừa cắt giảm diện tích, vừa tạo ra một đường chéo 40 độ với vỉa hè mới-đang được lên kế hoạch thực hiện trong vài năm tới. Khi khảo sát khu đất vào năm 2023, lúc này đang là ngôi nhà một tầng khá khép kín, được sử dụng hơn hai mươi năm và có phần nền rất thấp. Lúc cùng khách hàng đứng trên mái ngôi nhà cũ chúng tôi ngay lập tức cảm nhận được nơi này rất mát bởi lượng gió dồi dào thổi qua, cảnh quan xung quanh rất thoáng và tồn tại khoảng trống đô thị ở ba mặt. Với chúng tôi, rõ ràng là vị trí này có tiềm năng lớn cho một ngôi nhà có tầm nhìn rộng mở, đồng thời tối đa hóa luồng không khí di chuyển qua toàn bộ không gian bên trong.
Đặt gần với hai toà chung cư 15 và 23 tầng, ngôi nhà được nhận biết như một khối tháp đặc với một màu trắng đồng nhất. Các đường chéo, vát cắt được sử dụng để tạo các đặc điểm riêng biệt trong thiết kế ngoại thất công trình.
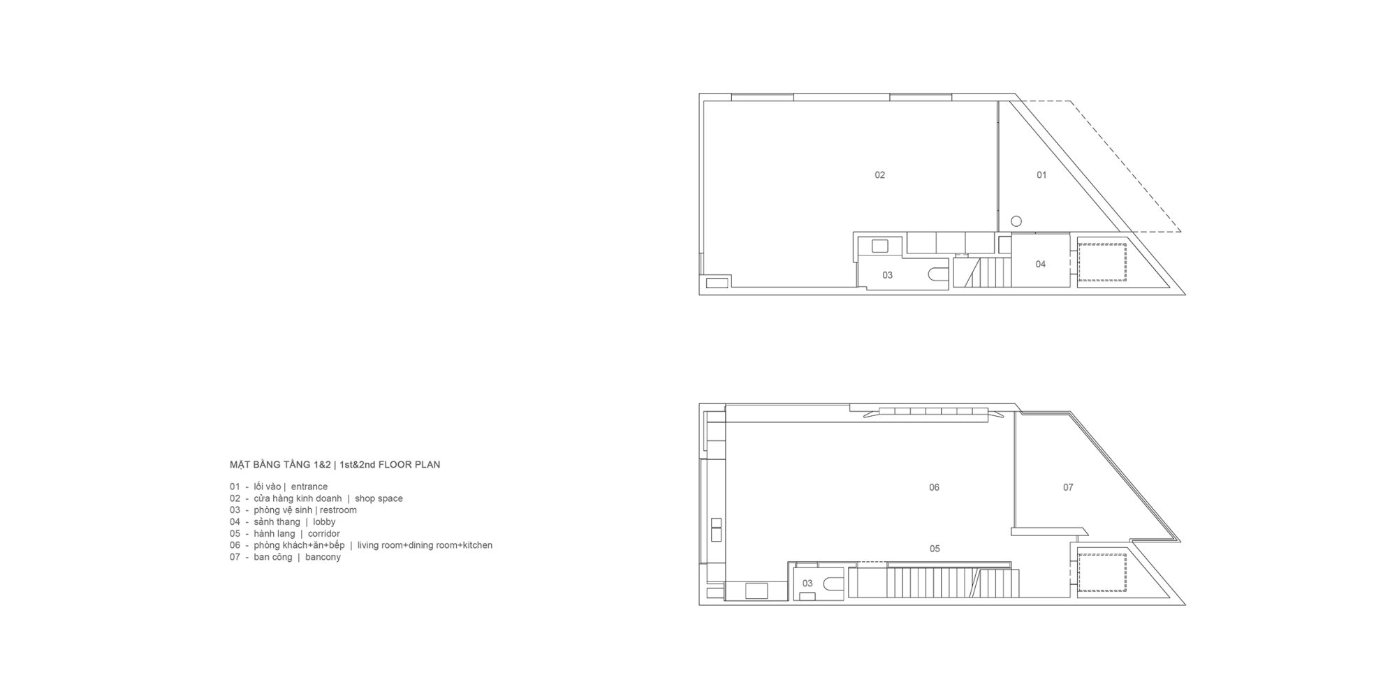
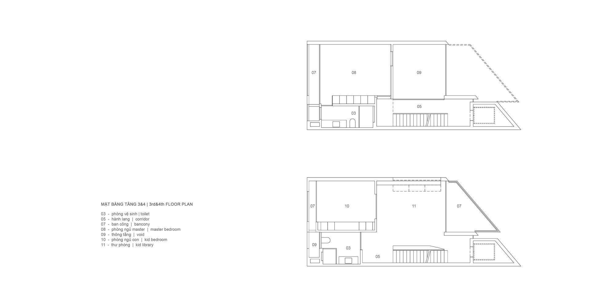
Ngôi nhà gồm một tầng trệt dành cho kinh doanh và bốn tầng dành cho gia đình gồm bố mẹ và hai con gái. Bố trí phần tháp đặc ở phía tây, gồm diện tích dành cho giao thông (thang máy, thang bộ, hành lang) và các phòng vệ sinh kín. Không gian còn lại được phân bổ cho các khu vực chức năng khác nhau, với độ mở tối đa kéo dài từ phía trước đến phía sau ngôi nhà. Các bức tường bên trong được giảm thiểu và tránh các phòng như không gian kín tuyệt đối. Những khoảng thông tầng và giếng trời được được tích hợp một cách chiến lược xen kẽ.




Ánh sáng tự nhiên được chào đón thông qua hình thể ngôi nhà, đường cắt, giếng trời và phần kính lớn. Cây xanh sẽ được phủ đầy suốt ba ban công giật bậc thang (to nhỏ khác nhau) như những khu vườn treo phía trước nhà, lúc này thảm thực vật tựa vào phần khối đặc phía tây hỗ trợ nâng cao chất lượng sống cho các không gian kế cận.
Không gian sinh hoạt của cả gia đình đặt tại tầng hai là nơi được quan tâm nhất với tầm nhìn lớn ra các tán cây trước và sau. Tại đây được bố trí một khoảng thông tầng cao hơn 5 mét mở ra một góc bầu trời không bị che chắn, cảm nhận được sự thay đổi của từng thời khắc trong ngày.



2. “Kết nối không gian”:
– Tận dụng tối đa luồng gió dồi dào thổi qua khu đất để đôi lưu không khí di chuyển trong công trình.
– Mở ra những mảng kính lớn hướng Đông-Nam, hướng có tòa nhà chung cứ 15 tầng che chắn phần lớn ánh sáng (tiêu cực). Bố trí cửa kính trượt với khoảng lùi có ban công, gạch thông gió ở hướng Tây-Bắc (phía sau).
– Thiết kế khối tích và hình khối tòa nhà phù hợp góp phần tạo dựng cảnh quan của tuyến phố.
– Thiết kế kết nối không gian nội thất với tán lá cây đô thị có sẵn, với góc nhìn rộng ra thành phố, với một khoảng trời riêng không bị che chắn.
– Thiết kế không gian liên thông giữa các không gian chức năng, tăng cơ hội tương tác-sự hiện diện của các thành viên trong gia đình với nhau (nhìn thấy nhau, nghe thấy nhau).


















