
Thông tin dự án:
Địa điểm: Quảng Ngãi (cũ)
Đơn vị thiết kế: WINHOUSE Architecture
Kiến trúc sư chủ nhiệm: Thái Hữu Hải
Nhóm thiết kế: Hà Hoàng Nguyên, Hoàng Phan Quốc Huy, Lưu Tấn Chí, Hồ Tấn Đạt, Đỗ Xuân Toàn
Đơn vị thi công: Liên danh Dothico – Hoàng Yên – Tiến Mạnh – Thành Trung – MHQ – PLT – Thịnh Châu – Bình An – Tấn Thịnh
Chủ đầu tư: UBND Tỉnh Quảng Ngãi
Diện tích khu đất: 14.800 m²
Tổng diện tích sàn: 11.736 m²
Năm hoàn thành: 2025
Ảnh: Hoàng Lê


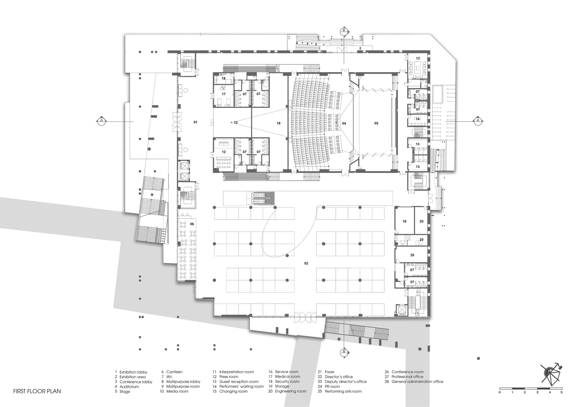
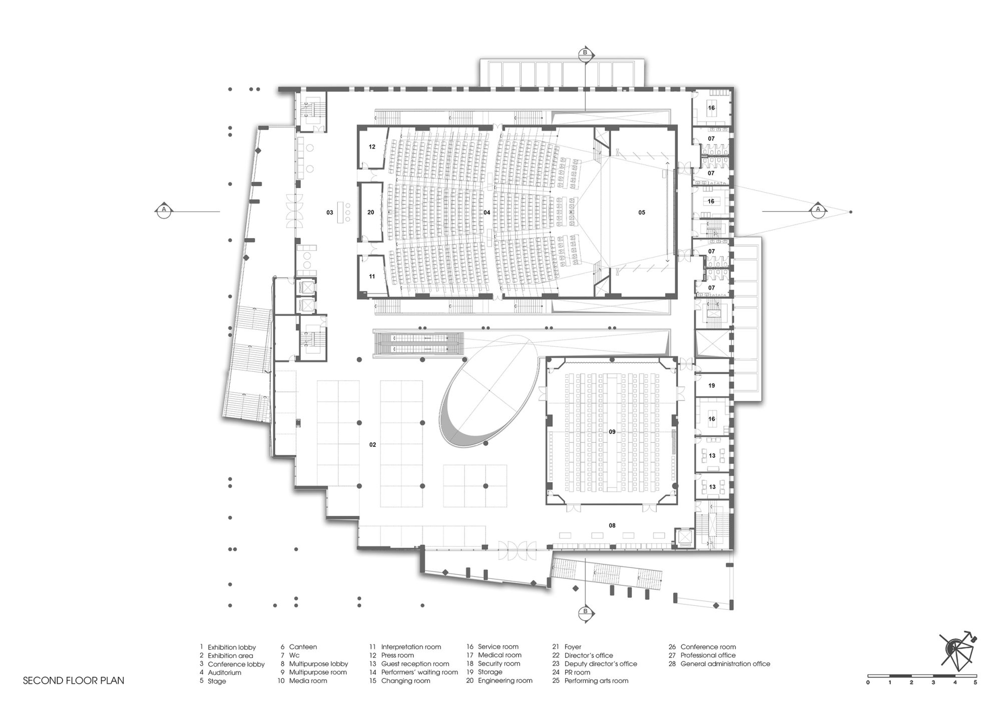
Trung tâm Hội nghị và Triển lãm tỉnh Quảng Ngãi được định vị như một công trình biểu tượng mới của địa phương, là nơi tổ chức các sự kiện trọng đại của tỉnh và quốc gia, đồng thời kiến tạo không gian văn hóa – giải trí chất lượng cao phục vụ cộng đồng. Công trình bao gồm hội trường sức chứa hơn 1.000 chỗ ngồi, phòng họp lớn và các không gian triển lãm trong nhà đáp ứng tiêu chuẩn hiện đại.

Thông qua ngôn ngữ kiến trúc đương đại kết hợp vật liệu và yếu tố bản địa, công trình mang đến hệ thống không gian mở có tính kết nối cao. Hàng rào được lược bỏ nhằm xóa nhòa khoảng cách giữa công trình hành chính và người dân, tạo cảm giác thân thiện và tiếp cận tự nhiên. Hệ thống cây xanh lâu năm được bảo tồn tối đa, biến toàn bộ khu vực thành một công viên mở cho cộng đồng.



Công trình hướng đến sự khác biệt so với các mô hình kiến trúc hành chính truyền thống, vượt qua những giới hạn thường thấy về quy chuẩn và định mức đầu tư, nhằm tạo nên một diện mạo hiện đại, nhân văn và giàu bản sắc.
Ngôn ngữ hình khối và bề mặt kiến trúc lấy cảm hứng từ cấu trúc địa chất độc đáo của những dãy núi lửa Hang Câu tại đảo Lý Sơn, biểu trưng cho vẻ đẹp nguyên sơ và mạnh mẽ của Quảng Ngãi.


Sảnh đón được thiết kế với hệ cột cao rộng và mái vươn lớn, giúp che nắng hướng Tây, đồng thời tạo nên một không gian chào đón trang trọng và cởi mở. Lối vào bậc cấp mở rộng đóng vai trò điểm nhấn thị giác, mang lại sự cân đối và nét uy nghi cho tổng thể.

Khoảng thông tầng trung tâm không chỉ đóng vai trò điều hòa vi khí hậu tự nhiên mà còn tạo nên không gian chuyển tiếp tinh tế, phân tách ước lệ các khu chức năng khác nhau trong công trình.


Toàn bộ kết cấu chính và lớp hoàn thiện bao che được thi công bằng bê tông trần tại chỗ, phù hợp với năng lực thi công của đội ngũ địa phương, giúp tối ưu chi phí và bảo đảm độ bền vững trước khí hậu khắc nghiệt với nắng nóng, mưa lớn và gió bão thường xuyên.

















