
Thông tin dự án:
Địa điểm: Đà Nẵng
Thiết kế: live out studio
Kiến trúc sư: Lê Văn Tấn Quyền, Trần Thị Ánh Nguyệt
Kỹ thuật: Truong Phu Khanh
Tổng thầu: Sigma Construction
Diện tích: 241 m²
Năm hoàn thành: 2024
Ảnh: live out studio

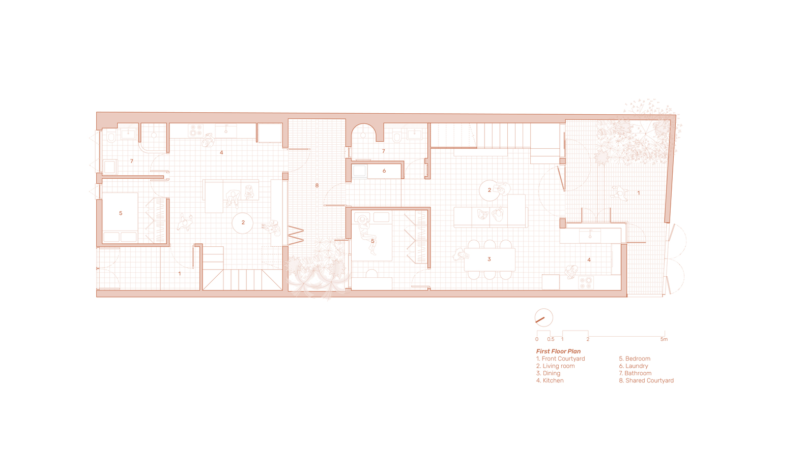
Terracotta Breath của live out studio là một ngôi nhà đa thế hệ thanh lịch nhưng khiêm tốn, nằm lặng lẽ trong một con hẻm nhỏ ở Đà Nẵng, Việt Nam. Được thiết kế cho hai hộ gia đình – nhà của bố mẹ ở phía trước và nhà của con gái ở phía sau – dự án nằm trên một khu đất đô thị khiêm tốn 7×22 mét. Giữa hai ngôi nhà, một khoảng sân nhỏ trồng cây vừa là ranh giới vừa là điểm kết nối: một không gian chung mang hơi thở cuộc sống, ánh sáng ban ngày và cộng đồng thân thiện vào cuộc sống thường nhật.



Phương pháp thiết kế – Nắm bắt các nguyên tắc phong thủy Việt Nam và được thực hiện với ngân sách hạn chế, kiến trúc tôn vinh nghề thủ công địa phương và các chiến lược khí hậu thụ động phù hợp với khí hậu nhiệt đới. Một bảng màu hài hòa, mộc mạc của gạch, tre, gỗ, vữa màu đất sét và mái tôn bao phủ toàn bộ công trình từ mặt tiền đến lối đi trong vườn, tạo nên một lớp vỏ cách nhiệt, hòa nhập hoàn hảo với môi trường đô thị đông đúc. Từng chi tiết được chăm chút tỉ mỉ – màn chắn gạch có thể tháo lắp, lan can dây thừng đan tay và tường gạch tinh xảo – đồng thời thể hiện sự khiêm nhường và tinh tế. Hơi thở Đất nung không chỉ là một nơi trú ẩn đơn thuần; đó là một nơi của vẻ đẹp tĩnh lặng, sự liên tục và gắn kết gia đình, bắt nguồn sâu sắc từ truyền thống địa phương và lối sống chánh niệm.

Ngôi nhà của cha mẹ: Truyền thống và nghi lễ – Nằm ngay mặt tiền đường, ngôi nhà của cha mẹ chào đón du khách bằng một khu vườn phía trước ngập tràn ánh nắng – một điểm dừng chân nhẹ nhàng trước khi bước vào. Mặt tiền bằng gạch có kết cấu, với các cửa sổ liên kết góc cạnh và xoay, cân bằng giữa sự riêng tư và sự thoáng đãng, trong khi bóng râm của tre và mái tôn màu đất sét có tuổi thọ duyên dáng theo thời gian. Bên trong, tầng một thông từ phòng khách đến phòng ăn và nhà bếp, mở thẳng ra khu vườn để sinh hoạt trong nhà và ngoài trời dễ dàng. Một cầu thang điêu khắc dẫn lên phòng cầu nguyện ở tầng hai, một hội trường nghi lễ yên bình cũng có chức năng là không gian tụ họp cộng đồng. Một góc đọc sách nhìn ra sân trong, đón gió và ánh sáng ban ngày. Khắp nơi, gạch, tre và gỗ tạo thành một phông nền ấm áp, xúc giác và vượt thời gian, với gạch ốp tường bằng đất nung trong nhà bếp và phòng tắm kết hợp với gạch lát sàn màu be để tăng thêm cảm giác thoải mái.



Ngôi nhà của con gái: Linh hoạt và Vui tươi – Phía sau, ngôi nhà của con gái phản ánh nguyên tắc sống tối giản nhưng không thỏa hiệp. Được thiết kế cho một gia đình trẻ, ngôi nhà có thiết kế mở linh hoạt, tận dụng tối đa từng mét vuông. Cửa sổ gấp lớn xóa bỏ sự ngăn cách giữa không gian sinh hoạt chung và sân trong, đón không khí trong lành, ánh sáng tự nhiên và cây xanh, mở rộng không gian nội thất một cách trực quan. Tầng trệt bao gồm không gian sinh hoạt chung kết hợp bếp/phòng khách, một phòng ngủ nhỏ gọn và một phòng tắm, với hệ thống lưu trữ tích hợp và nội thất đa năng, cho phép gia đình tùy chỉnh không gian theo nhu cầu. Một cầu thang thép thanh mảnh, hoàn thiện với lan can dây thừng đan thủ công, dẫn lên một chiếu nghỉ chung nhỏ – nơi cầu nguyện hoặc vui chơi.
Hai phòng ngủ tràn ngập ánh sáng ở tầng trên, được thông gió qua các khe hở hẹp và giếng trời, luôn mát mẻ và thoáng đãng quanh năm. Vị trí cửa sổ được bố trí hợp lý đảm bảo sự riêng tư nhưng vẫn giữ được sự thông thoáng, tạo cảm giác ngôi nhà rộng rãi hơn so với diện tích thực tế. Thiết kế này minh chứng cho việc quy hoạch chu đáo và kết nối với không gian ngoài trời có thể mang lại cho cuộc sống nhỏ bé sự thoải mái và tự do.
Cảnh quan ý nghĩa, kiến trúc nhẹ nhàng – Xuyên suốt cả hai ngôi nhà, vẻ đẹp giản dị của gạch, tre, gỗ và đất sét địa phương được tái hiện một cách nhất quán. Kiến trúc tránh những chi tiết rườm rà không cần thiết, cho phép những chi tiết tinh tế – bóng đổ chuyển động qua các bức tường gạch, bóng râm lốm đốm từ tán tre, và cây xanh phủ lên những bức tường kết cấu – mang đến những khoảnh khắc yên bình, thư thái. Khoảng sân, được thiết kế tối giản nhưng vẫn giàu chi tiết cảm quan, kết nối hai ngôi nhà một cách hiệu quả, làm mềm mại những góc cạnh và đánh dấu sự trôi chảy nhẹ nhàng của thời gian. Terracotta Breath đã khéo léo minh họa cách vật liệu giản dị, tay nghề thủ công địa phương và thiết kế tinh tế có thể tạo nên kiến trúc tinh tế, âm thầm nâng tầm cuộc sống thường nhật. Ngôi nhà này là tuyên ngôn thầm lặng của studio về cách các gia đình có thể sống gần gũi, bền vững và tươi đẹp, hít thở không khí qua những không gian mở và những bức tường thấm đẫm kỷ niệm.













