
Thông tin dự án:
Địa chỉ: Lô 41D, KCN Quang Minh, thị trấn Quang Minh, huyện Mê Linh, Thành phố Hà Nội
Thiết kế: Baumschlager Eberle Architekten Vietnam (BEA) Việt Nam
KTS Chủ trì: Cung Thành Đạt
KTS Dự án: Servando Garcia Lugo, Trần Văn Nội, Nguyễn Quang Tuấn
Chủ đầu tư: Công ty TNHH Sản xuất Thương Mại Xuất nhập khẩu Huho Hardware
Diện tích khu đất: 39.590 m2
Tổng diện tích sàn: 39.163 m2
Bắt đầu thiết kế: 2021
Hoàn thành: 2024


Hiện tại, xã hội của chúng ta đang đối mặt với những thay đổi mang tính siêu việt trên tất cả các lĩnh vực như tri thức, khoa học, khoa học xã hội, công nghệ, kiến trúc, quy hoạch đô thị, mọi thứ liên quan đến thiết kế, và xây dựng cũng không ngoại lệ. Sự đột phá của những tiến bộ trong khoa học kĩ thuật làm cho những thay đổi này diễn ra nhanh hơn bao giờ và không còn nghi ngờ rằng những thay đổi này được coi là những bước tiến vĩ đại trong quá trình tiến hoá của tư tưởng loài người. Cùng lúc này, chúng ta cũng tìm thấy bản thân trong thời điểm của những thử thách lớn: toàn bộ hành tinh và những tài nguyên thiên nhiên, bao gồm cả sự sống, phụ thuộc vào sự cần bằng chặt chẽ mà đang bị đe doạ theo một cách chưa từng có trước nay.
Đồng thời, nhà máy Huy Hoàng được đặt ra thách thức để đáp ứng những yêu cầu này, trở thành một công trình xây dựng bền vững phù hợp với giai đoạn lịch sử mà chúng ra đang sống, và trở thành một nhà máy linh loạt với nhiều chức năng.
Trong bối cảnh này, nhà máy Huy Hoàng (toà cơ sở vật chất) được thiết kế để đảm bảo về mặt kiến trúc, cảnh quan và cả thiết kế nội thất để đáp ứng được hai yêu cầu trên.
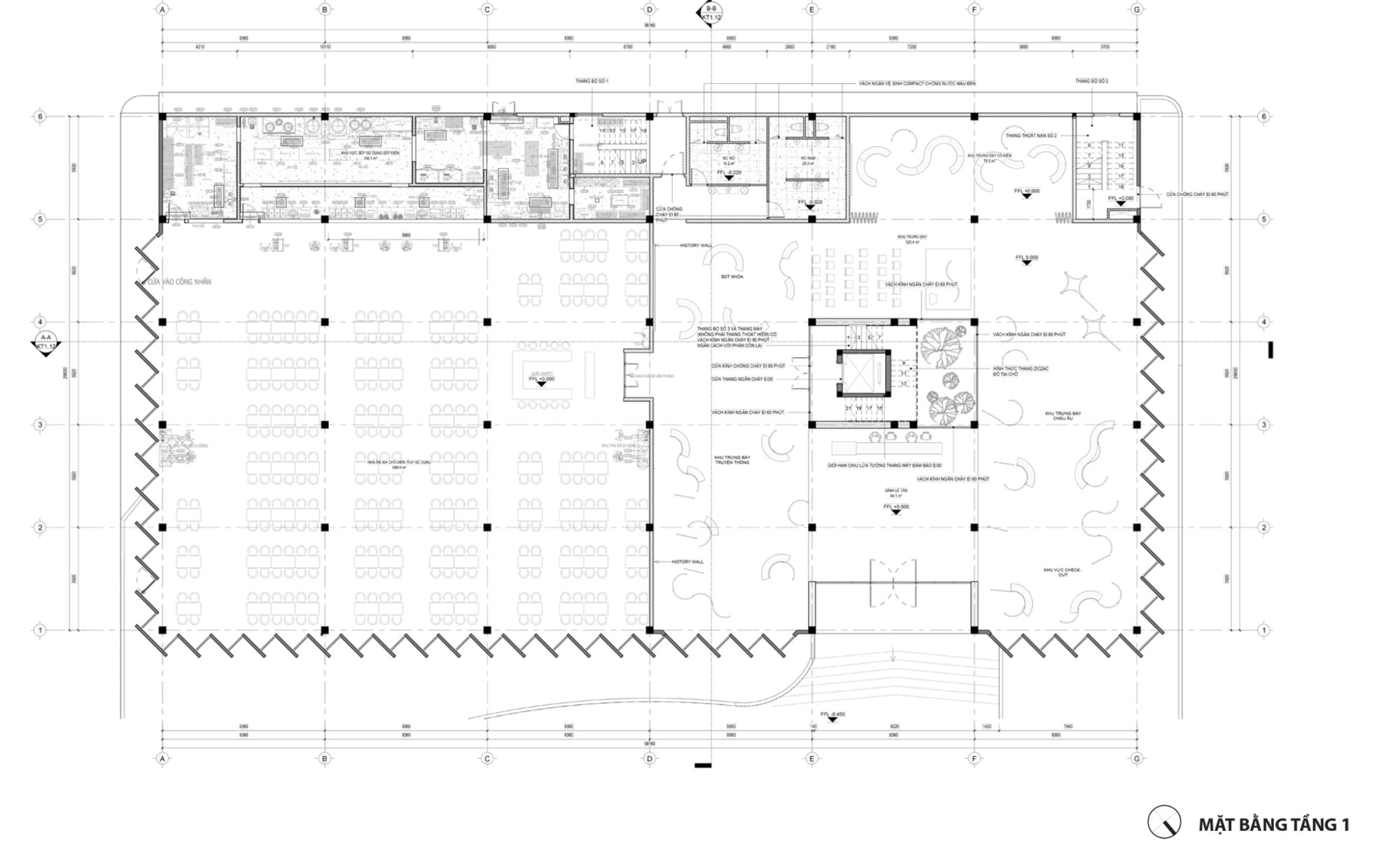
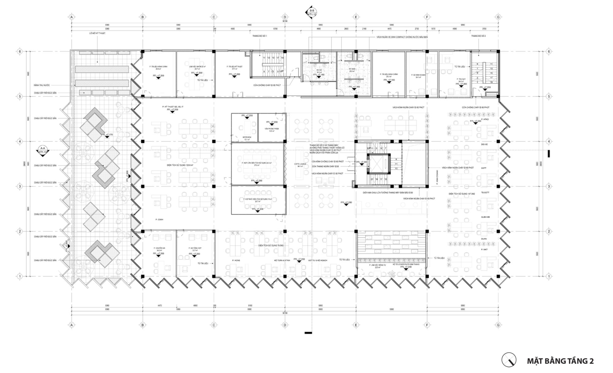
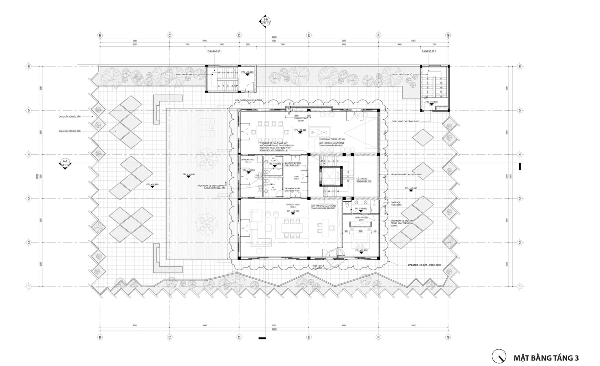
Ý tưởng thiết kế

Với thiết kế diện tích hình chữ nhật thông thường, hình dạng của toà nhà được dự kiến là một không gian chứa đa chức năng được bao quanh bơỉ một đường viền zizac liên tưởng đến hình dạng của 1 chiếc chìa khoá, một trong những mặt hàng chính được nhà máy sản xuất. Vỏ ngoài của toà nhà được xác định là sự kết hợp của các yếu tố xây dựng như tấm pin và cửa sổ có tính đến tỉ lệ năng lượng mặt trời cụ thể, giảm nhiệt độ của toà nhà, và do đó giảm mức tiêu thụ năng lượng được sử dụng để cho mục đích làm mát và điều hoà của không gian nội thất có người sử dụng. Đồng thời mối quan hệ giữa những khoảng trống và bề mặt rắn được thiết lập như một cuộc đối thoại giữa nội thất và ngoại thất của toà nhà, tạo ra một ranh giới rõ ràng giữa toà nhà và môi trường.




Mặt đứng văn phòng là sự đan xen của những hệ lam bê tông và vách nhôm kính băng cao hình thành sự tương phản đặc rỗng tạo ra sự độc đáo cho công trình ở những góc nhìn khác nhau. Các hệ lam bê tông và nhôm kính được bố trí theo góc xoay hợp lí với vi khí hậu, tận dụng tối đa khả năng che chắn nắng của vách tường nhưng vẫn đảm bảo đủ ánh sáng và thông gió tự nhiên đem đến một không gian sinh hoạt và làm việc tiện nghi, thoải mái, ấm về đông, mát về hè cho cán bộ nhân viên.




Chính sách Vệ sinh xanh – dự án Huy Hoàng
Mục đích: Tuân thủ yêu cầu tiên quyết của chứng chỉ LEED.
Phạm vi áp dụng:
Chiến lược làm sạch cho:
- Vệ sinh và bảo dưỡng sàn cứng, thảm.
- Bảo vệ sức khỏe những người nhạy cảm/ dễ tổn thương trong quá trình vệ sinh.
- Lựa chọn và sử dụng chất khử trùng và nước rửa tay.
- Lưu trữ và xử lý an toàn hóa chất tẩy rửa, bao gồm quản lý tránh đổ tràn.
Đo lường hiệu suất và phát triển chiến lược:
- Giảm sử dụng nước, sử dụng năng lượng và độc tính hóa học.
- Mua sản phẩm làm sạch xanh.
- Mua thiết bị vệ sinh xanh.
Đào tạo nhân lực:
- Yêu cầu về nhân sự và dự phòng khi thiếu nhân sự.
- Thời gian và tần suất đào tạo nhân viên.




Chính sách Bảo trì và Cải tạo cơ sở – dự án Huy Hoàng
Mục đích: Tuân thủ yêu cầu tiên quyết của chứng chỉ LEED.
Phạm vi áp dụng:
Chính sách này áp dụng cho bất kỳ hoạt động bảo trì và cải tạo cơ sở diễn ra liên tục nào tại dự án Huy Hoàng Việt Nam. Chính sách này bao gồm các hướng dẫn thực hiện mua sắm vật liệu, xử lý chất thải phát sinh và quản lý chất lượng không khí trong nhà.
Các hạng mục xây dựng cơ bản cố định hoặc vĩnh viễn gắn liền với tòa nhà (không bao gồm các thiết bị cơ khí, điện và ống nước và các hạng mục đặc biệt như thang máy). Các thiết bị lắp đặt không được tính trong trường hợp này.
Đồ đạc và nội thất đi kèm với các thành phần/ hạng mục cần thiết nhằm duy trì hoạt động của chính sản phẩm đó.
Với mục đích của chính sách, bảo dưỡng định kỳ sẽ bao gồm (không chỉ riêng) thay thế sơn & thảm, và thay thế tấm lợp trần nhà. Cải tạo bao gồm việc tân trang lại đồ đạc, nội thất trong phòng và có tác động/ gây ảnh hưởng đến nhiều gian phòng hoặc các phòng lớn như sảnh hoặc phòng họp và liên quan đến nhiều yếu tố, chẳng hạn như di chuyển tường, xây lại tường vách ngăn, các công việc điện đóm hoặc thay thế nhiều lớp hoàn thiện kiến trúc khác nhau.


Chính sách Mua sắm – dự án Huy Hoàng
Mục đích: Tuân thủ yêu cầu tiên quyết của chứng chỉ LEED. Giảm tác hại đến môi trường từ các vật liệu và sản phẩm được mua và sử dụng trong quá trình vận hành và bảo trì các tòa nhà.
Phạm vi áp dụng:
Chính sách này áp dụng cho tất cả các giao dịch mua sắm tại các tòa nhà trong khuôn khổ chứng nhận LEED của dự án Huy Hoàng Vietnam và trong khu đất dự án. Chính sách này sẽ được tư vấn/ thông báo trước khi mua các nguồn nguyên vật liệu; thực phẩm và đồ uống.










